Contact avec le fond
Traversier roulier à passagers Grace Sparkes
Burnside (Terre-Neuve-et-Labrador)
Le Bureau de la sécurité des transports du Canada (BST) a enquêté sur cet événement dans le but de promouvoir la sécurité des transports. Le Bureau n’est pas habilité à attribuer ni à déterminer les responsabilités civiles ou pénales. Le présent rapport n’est pas créé pour être utilisé dans le contexte d’une procédure judiciaire, disciplinaire ou autre. Voir Propriété et utilisation du contenu.
Résumé
Le 21 janvier 2015 à 17 h 46, heure normale de Terre-Neuve, le traversier roulier à passagers Grace Sparkes, transportant 8 membres d’équipage et 4 passagers, a heurté le récif Burnside alors qu’il traversait le chenal du port de Burnside (Terre-Neuve-et-Labrador). Le navire a poursuivi son périple et a accosté à Burnside quelques minutes plus tard. Il n’y a eu ni blessure ni pollution, mais la coque et la quille de roulis du navire ont été endommagées.
1.0 Renseignements de base
1.1 Fiche technique du navire
| Nom du navire | Grace Sparkes |
|---|---|
| Numéro de registre/permis | 835419 |
| Port d'immatriculation | St. John's (Terre-Neuve-et-Labrador) |
| Pavillon | Canadien |
| Type | Traversier roulier à passagers |
| Jauge brute | 939 |
| Longueur | 38,45 m |
| Tirant d'eau | Avant : 2,8 m Arrière : 2,8 m |
| Construction | 2011 |
| Propulsion | Deux hélices de 600 kW entraînées par des moteurs et fixées à des nacelles orientables (propulseurs à nacelle) |
| Capacité maximale | 50 passagers et 8 membres d'équipage 16 véhicules à passagers ou 1 tracteur semi-remorque et 11 véhicules à passagers |
| Personnes et véhicules à bord au moment de l'événement | 8 membres d'équipage et 4 passagers 1 véhicule à passagers |
| Propriétaire enregistré/gestionnaire | Ministère des Transports et des Travaux publics de Terre-Neuve-et-Labrador |
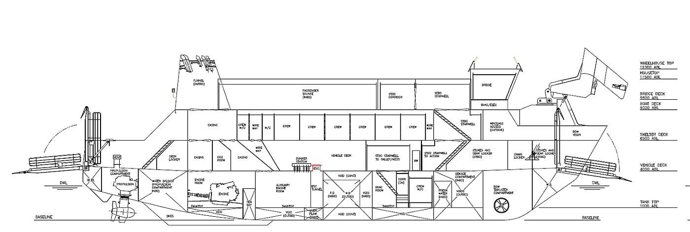
1.2 Description du navire
Le traversier roulier à passagers Grace Sparkes (photo 1) a été construit en 2011. Il s'agit de l'un de 2 navires jumeaux exploités par le ministère des Transports et des Travaux publics (MTTP) de Terre-Neuve-et-Labrador. La poupe est ouverte à la hauteur du pont-garage, et la proue est fermée par une porte d'étraveNote de bas de page 1 pouvant être soulevée et abaissée à l'aide d'un système hydraulique.
Ce navire est doté de 6 ponts (annexe A). Le pont inférieur est le dessus du réservoir, lequel contient les systèmes de propulsion et auxiliaires, la cuisine et le poste d'équipage. Le pont-garage est ouvert à la poupe, et on peut y accéder à l'aide de rampes aux 2 extrémités du navire. Le pont abri comprend les quartiers d'équipage, le panneau de commande de la porte d'étrave, le cabestan d'amarrage et les guindeaux des 2 ancres. Le pont des embarcations comprend le salon des passagers (qui est le point de rassemblement désigné en cas d'urgence), les aires d'embarquement et l'équipement de sauvetage. Les gilets de sauvetage sont rangés dans des casiers à l'extrémité arrière du pont des embarcations, et des radeaux de sauvetage et des canots pneumatiques à coque rigide sous bossoir sont rangés à bâbord et à tribord du navire. Le pont de la passerelle comprend l'équipement de navigation et les postes de conduite, et le dessus de la timonerie comprend le projecteur, les mâts et l'habitacle du compas.
Le navire est propulsé par 2 moteurs diesel principaux raccordés à des propulseurs orientables par l'intermédiaire d'une transmission marine à engrenages et d'un arbre d'entraînement. Les propulseurs orientables peuvent pivoter sur 360 ° et sont dotés d'hélices; ils servent de systèmes de propulsion et de gouvernes. Le navire peut être propulsé par 1 seul propulseur orientable actionné par le moteur principal correspondant.
La génératrice principale du navire alimente en électricité le tableau de distribution principal et un propulseur d'étrave électrique, lequel est généralement utilisé pendant les manœuvres d'accostage et d'appareillage. Une génératrice de secours alimente le tableau de distribution de secours en électricité.
L'équipement de navigation du navire est composé de 2 radars, de 1 système de cartes électroniques (SCE), de 1 échosondeur, de 1 système de positionnement mondial pour navigation satellite GPS, de 1 gyrocompas, de 1 enregistreur des données du voyage (VDR) et de 1 pilote automatique. Les données de l'équipement de navigation peuvent être affichées aux 2 postes de gouverne (1 à bâbord et 1 à tribord du pont) et à la table à cartes, laquelle se trouve dans la partie avant du pont, sur l'axe longitudinal du navire.
L'équipement de communications interne de bord est composé de 2 interphones (1 sur le poste de gouverne bâbord et 1 sur le poste de gouverne tribord) pouvant être utilisés pour transmettre un message aux passagers ou pour communiquer avec les autres membres de l'équipage.
1.3 Déroulement du voyage
Le 21 janvier 2015, à environ 16 h 50Note de bas de page 2, 4 passagers voyageant à bord de 1 véhicule ont pris place à bord du Grace Sparkes à St. Brendan's (Terre-Neuve-et-Labrador) pour un voyage à destination de Burnside (Terre-Neuve-et-Labrador). Trois passagers sont demeurés dans le véhicule, et le quatrième s'est rendu au salon pour payer leurs droits.
Il s'agissait de la cinquième traversée de la journée du navire. On a rempli la liste de vérification préalable au départ et configuré l'équipement de navigation pour le voyage : la carte de la région étant déjà chargée dans le SCE, on a placé sur la table à cartes la version papier de cette carte; on a réglé la portée du radar à 1,5 mille marin (nm), en mode avant vers le haut et décalé, avec des marqueurs de portée à 0,25 nm et 0,75 nm.
Les 3 matelots de pont ont largué les amarres, et le navire a quitté St. Brendan's à environ 17 hNote de bas de page 3. L'équipe à la passerelle était composée du capitaine, de 1 capitaine en second et de 1 matelot de pont. Pendant le départ, le capitaine en second suivait une formation en cours d'emploi qui consistait à manœuvrer et à guider le navire depuis le poste de conduite bâbord sous la supervision du capitaine. Le navire a traversé le chenal balisé et a quitté le port.
Après avoir quitté le port, le capitaine en second et le capitaine ont activé le pilote automatique du navire. Les membres de l'équipe à la passerelle ont quitté la passerelle à tour de rôle pour souper et prendre de courtes pauses. À 17 h 38, le crépuscule civil a pris fin et des dispositifs d'éclairage étaient dès lors requis pour voir les objets sur l'eau et à terre. À 17 h 39, on a allumé le projecteur et on a constaté que celui-ci n'était pas très brillant. Le navire se trouvait maintenant à environ 1,35 nm du quai de Burnside et approchait de l'entrée du port de Burnside (annexe B) à une vitesse de 11,5 nœuds. Le capitaine, le capitaine en second, et 2 matelots de pont se trouvaient sur la passerelle. Le capitaine assurait le commandement et se trouvait au poste de gouverne bâbord; le capitaine en second se trouvait à la table de cartes et regardait par la fenêtre; les 2 matelots de pont agissaient comme vigies.
Le Grace Sparkes a poursuivi sa route à la même vitesse pendant que les membres de l'équipe à la passerelle discutaient de l'intensité du projecteur et d'autres sujets. À 17 h 43, le navire a atteint l'entrée du chenal de Burnside et a passé la bouée extérieure de tribord (JR4). À la demande du capitaine, 1 des matelots de pont a confirmé la position de la bouée par rapport au navire, et le navire a commencé à ralentir. Pendant que le navire pénétrait dans le chenal, sa vitesse a graduellement diminué jusqu'à 7,5 nœuds. L'équipe à la passerelle a continué à discuter de l'intensité du projecteur et d'autres sujets ne concernant pas la navigation du navire. À 17 h 46, le Grace Sparkes a heurté le récif Burnside et a roulé sur tribord à 0,17 nm du quai.
1.4 Événements après le contact avec le fond
Immédiatement après le contact avec le fond, le capitaine a demandé au capitaine en second de communiquer avec l'équipage de la salle des machines pour que celui-ci effectue une brève inspection afin de déceler toute infiltration d'eau. Les matelots de pont ont levé la porte d'étrave et ont préparé les amarres en vue de l'accostage du navire. Le traversier a atteint le quai à 17 h 49, on a descendu la rampe, et les passagers ont quitté le navire à bord de leur véhicule.
Bien qu'on n'ait pas immédiatement signalé l'incident aux Services de communication et de trafic maritime (SCTM) de St. John's; le capitaine a appelé les SCTM pour signaler l'incident à 18 h, soit après l'accostage du navire. Les SCTM ont ensuite transmis les renseignements à Transports Canada (TC). Le capitaine a également communiqué avec le responsable à terre du MTTP et la société de classification du navire (le Lloyd's Register of Shipping, ou Lloyd's) pour les aviser de l'incident. Environ 2 minutes après l'appel initial, les SCTM ont rappelé le capitaine pour lui demander de plus amples renseignements sur le contact avec le fond et le nombre de passagers qui se trouvaient à bord au moment de l'incident. Le capitaine a indiqué au SCTM que 2 passagers se trouvaient à bord. On a ensuite demandé à un entrepreneur en plongée d'inspecter le dessous de la coque.
1.5 Avaries au navire
Le Grace Sparkes a subi des avaries à une partie de la coque mesurant 3 m2, entre les couples 51 et 56. La partie endommagée se trouvait au bouchain inférieurNote de bas de page 4, mesurait 300 mm de largeur et comprenait plusieurs éléments structuraux internes (annexe C).
De plus, le rebord extérieur de la partie avant de la quille de roulis a été endommagé entre les couples 44 à 47 (annexe D).
1.6 Horaires, certification et expérience du personnel
1.6.1 Horaires du personnel
À bord du Grace Sparkes, l'horaire de travail est composé de cycles de 2 semaines de travail/de congé. Le jour de l'événement à l'étude, le capitaine commençait son premier cycle de 2 semaines après une absence de 4 mois. Il a quitté son domicile à 9 h et a rejoint le navire à 14 h. Le capitaine en second a rejoint le navire la veille de l'événement à l'étude pour se familiariser avec le navire et est entré en fonction à 14 h le jour de l'événement. Le premier des 2 matelots de pont qui se trouvaient sur la passerelle au moment de l'événement à l'étude avait rejoint le navire 3 jours auparavant, et le second avait rejoint le navire le jour même.
1.6.2 Certification et expérience du personnel
Le capitaine était titulaire d'un certificat de compétence de capitaine à proximité du littoral délivré en 1992 et d'un visa de gestion spécialisée de la sécurité des passagers. Le capitaine travaillait pour le MTTP depuis 1977 et occupait le poste de capitaine depuis 1992; il était capitaine du Grace Sparkes depuis 2011.
Le capitaine en second était titulaire d'un brevet valide d'officier de pont de quart à proximité du littoral et d'un visa de gestion spécialisée de la sécurité des passagers. Il travaillait au MTTP comme capitaine en second à bord d'autres traversiers depuis 2009, dont 3 mois à bord du navire de rechange assurant l'itinéraire Burnside-St. Brendan's. À bord du Grace Sparkes, le capitaine en second n'avait suivi que 1 jour de formation en cours d'emploi et avait moins de 1 jour d'expérience.
Les 2 matelots de pont étaient titulaires d'un brevet de matelot de quart à la passerelle et d'un visa de gestion de la sécurité des passagers. Ils occupaient leurs postes de matelot de pont à bord du Grace Sparkes depuis 2011.
Conformément aux exigences réglementairesNote de bas de page 5, tous les officiers et membres de l'équipage du navire (à l'exception du cuisinierNote de bas de page 6) avaient suivi des formations approuvées par TC sur la gestion de la sécurité des passagers. Ces formations en classe comprenaient des présentations et des vidéos. L'un des objectifs énoncés de ces formations était de permettre aux participants de prendre connaissance des normes de familiarisation, d'obtenir une formation de base sur la sécurité, et d'acquérir les compétences nécessaires pour réagir aux urgences et aux dangers auxquels ils peuvent faire face dans l'exercice de leur rôle à bord de navires transportant des passagersNote de bas de page 7.
1.7 Certification des navires
Le Grace Sparkes était doté en personnel et en équipement conformément aux règlements en vigueur et faisait l'objet de certificats valides délivrés par Lloyd's en vertu du Programme de délégation des inspections obligatoires (PDIO) de TC. Ce programme permet à Transports Canada (TC) d'autoriser un organisme reconnu à délivrer certains documents maritimes canadiens et à inspecter les navires visés par le programme, conformément à l'article 16 de la Loi de 2001 sur la marine marchande du Canada (LMMC 2001). TC effectue toujours les inspections réglementaires des navires délégués et demeure responsable de la délivrance des documents quinquennaux sur l'effectif de sécurité pour ces navires. Le Grace Sparkes a fait l'objet d'une inspection d'inscription le 17 avril 2012 et a été entièrement délégué à Lloyd's le 13 août 2012.
Au moment de l'événement à l'étude, les exploitants du navire avaient volontairement obtenu un certificat de gestion de la sécurité conforme au Code international de gestion pour la sécurité de l'exploitation des navires et la prévention de la pollution (code ISM) et émis par Lloyd's. De plus, le MTTP avait volontairement obtenu un document de conformité également émis par Lloyd's. Comme la conformité au code ISM n'est ni une exigence de la Convention internationale pour la sauvegarde de la vie humaine en mer (SOLAS), ni une exigence canadienne pour ce navire, TC n'avait jamais inspecté le système de gestion de la sécurité (SGS) du MTTP.
1.8 Conditions environnementales
Le jour de l'événement, la visibilité était bonne et les vents soufflaient de l'ouest à une vitesse de 7 à 10 nœuds. À 17 h 46, la marée montait et se trouvait à 0,24 m au-dessus du zéro des cartes. Le coucher du soleil était à 16 h 45.
1.9 Ministère des Transports et des Travaux publics de Terre-Neuve-et-Labrador
Le MTTP emploie plus de 2000 personnes à l'échelle de la province et fournit une vaste gamme de services de transport, dont un service de traversiers provinciaux comprenant 15 itinéraires et desservant plus de 40 agglomérationsNote de bas de page 8. Au moment de l'événement à l'étude, le MTTP possédait 10 navires, dont 8 étaient dotés en personnel et exploités directement par le MTTP. Le sous-ministre adjoint est responsable de la gestion générale des services de traversiers interprovinciauxNote de bas de page 9.
1.10 Système de gestion de la sécurité
La gestion de la sécurité à bord des navires vise avant tout à assurer la sécurité en mer ainsi qu'à éviter les blessures, les pertes de vie et les dommages à l'environnement. Une approche de gestion de la sécurité documentée et systématique contribue à faire en sorte qu'à chaque échelon de l'organisation, les intervenants disposent de l'information et des outils nécessaires pour prendre des décisions éclairées, en temps normal comme en situation d'urgence. L'un des objectifs d'un SGS est d'évaluer tous les risques cernés liés aux navires d'un organisme, au personnel et à l'environnement, ainsi qu'à prendre les mesures de protection appropriées. En outre, les exploitants de navires devraient effectuer des évaluations de sécurité internes pour soupeser l'efficacité du SGS et vérifier si toutes les activités de sécurité et de prévention de la pollution y sont conformes.
Le SGS du MTTP était composé d'un manuel de gestion de la sécurité (MGS) s'appliquant à l'ensemble de la flotte et de manuels propres aux différents navires. Ces 2 manuels se trouvaient à bord du Grace Sparkes .
Conformément au code ISM, les inspections internes doivent être effectuées par les responsables des normes de sécurité et de la conformité du MTTP, et les inspections externes doivent être effectuées par Lloyd's, et ce, pour soupeser l'efficacité du SGS et vérifier si toutes les activités de sécurité et de prévention de la pollution y sont conformes.
Le 17 juillet 2014, une inspection interne du Grace Sparkes a permis de cerner certaines non-conformités, dont des cartes non à jour en fonction des dernières corrections ou des corrections non enregistrées. On a noté que ces non-conformités avaient été éliminées sur la fiche de suivi des fermetures (de non conformités) du 7 août 2014.
En plus de ces non-conformités, le responsable des normes de sécurité et de la conformité a constaté qu'on n'avait pas familiarisé tous les membres de l'équipage avec leur rôle à bord du navire et que les dossiers de la liste de vérification de familiarisation du navire n'étaient pas à jour. On a également constaté que la politique sur les véhicules à passagers n'avait pas été mise en œuvreNote de bas de page 10. On avait décelé des problèmes liés à la politique sur les véhicules à passagers dans le cadre d'une enquête sur un autre navire du MTTP, le Beaumont Hamel Note de bas de page 11.
Lloyd's a effectué une inspection externe le 30 octobre 2014. Dans le cadre de cette inspection, on a constaté des lacunes liées à la tenue des dossiers : rien n'indiquait que 3 types d'exercices avaient été effectués en 2013, mais les dossiers indiquaient qu'on avait tenu ces exercices en 2014. Cette inspection comprenait un examen de la documentation (dont les cartes) pour s'assurer que celle-ci était à jour, et des entretiens avec certains membres de l'équipage pour évaluer leurs connaissances de leurs tâches et du SGS. Les résultats de cette inspection étaient satisfaisants, et les non-conformités constatées lors d'inspections précédentes avaient été éliminées.
1.11 Planification et surveillance du voyage
Selon l'Organisation maritime internationale (OMI), l'équipage de tous les navires devrait dresser un plan de voyage afin d'assurer une traversée sécuritaire, et ce, d'une aire de mouillage à l'autre. La planification du voyage comprend 4 étapesNote de bas de page 12 :
- Une évaluation de tous les renseignements disponibles sur le voyage à entreprendre, y compris un examen des cartes et publications, la prédiction de l'état du navire, l'évaluation des dangers prévus, la collecte d'information au sujet des conditions météorologiques et la vérification des avertissements locaux en cours de route.
- La planification du voyage prévu, y compris le repérage des endroits à éviter et de ceux où des précautions particulières s'imposent.
- L'exécution du plan de voyage, en tenant compte des conditions régnantes.
- Le suivi constant, pendant tout le voyage, de la progression du navire en fonction du plan établi et l'obtention des avertissements locaux en fonction de l'itinéraire prévu.
En ce qui concerne la planification des traversées, le MGS de la compagnie comprend le passage suivant [traduction] :
La planification des traverséesNote de bas de page 13 comprend la collecte de tous les renseignements sur le voyage, d'une aire de mouillage à l'autre. Tous les membres de l'équipe à la passerelle doivent prendre connaissance du voyage et de l'itinéraire prévus avant le départ. Si l'itinéraire est toujours le même, on peut élaborer un plan de traversée unique approuvé par le capitaine et mis à la disposition de tous les officiers de navigation.
Il faut assurer une surveillance adéquate de la progression du navire, utiliser en tout temps au moins 2 méthodes de détermination de la position, et recourir à de multiples systèmes (systèmes de navigation, radar, GPS, SEVCM, etc.) pour confirmer le cap et la traversée.
Il faut saisir les points de cheminement dans le GPS et créer un itinéraire. Cela permet de s'assurer que les caps et les distances figurant sur les cartes sont exacts. On doit utiliser cet itinéraire lorsque la visibilité est réduite, lorsqu'un nouvel officier de navigation est à bord ou lorsque le capitaine le juge nécessaire. Il faut également créer les itinéraires dans les autres appareils de navigation. Ne jamais se fier à une seule aide à la navigationNote de bas de page 14.
L'équipage du Grace Sparkes utilisait un plan de traversée standard pour l'itinéraire St. Brendan's-Burnside depuis 2011 (annexe E). Cet itinéraire comprend notamment 6 points de cheminement et caps. Au moment de l'événement à l'étude, un exemplaire du plan de traversée standard était rangé sur une tablette de la passerelle. Ce plan ne comprenait pas d'instructions supplémentaires relatives à chaque étape du voyage, dont les eaux peu profondes et les distances minimales à respecter entre le navire et les dangers. On n'y présentait pas non plus les pratiques de navigation standards utilisées par l'équipage du Grace Sparkes, dont la navigation visuelle et l'utilisation du projecteur pour repérer les balises des chenaux dans la noirceur.
1.12 Aides à la navigation et équipement de navigation
1.12.1 Bouées et balises
À l'endroit où s'est produit l'événement à l'étude, il y avait 2 bouées de tribord et 1 balise de bâbord (photo 2 et photo 3). Les 2 bouées marquaient la limite tribord du chenal. La balise indiquait l'emplacement du récif Burnside, mais ne délimitait pas la limite bâbord du chenal.
1.12.2 Cartes sur papier
Au moment de l'événement à l'étude, l'équipage du Grace Sparkes utilisait la carte sur papier 4855 publiée par le Service hydrographique du Canada (SHC) le 6 juin 1997. On avait acheté cette carte à jour le 24 septembre 2010. Entre la date d'achat et le jour de l'événement à l'étude, 18 mises à jour ont été publiées par l'intermédiaire d'avis aux navigateurs. Toutefois, ces corrections n'avaient pas été ajoutées à la carte comme l'exige le Règlement sur les cartes marines et les publications nautiques (1995) Note de bas de page 15. À bord du Grace Sparkes, il incombe au capitaine en second d'ajouter aux cartes les corrections figurant dans les avis aux navigateurs. L'itinéraire de la carte comprenait les points de cheminement du voyage, mais aucun cap n'était indiqué entre ceux-ci.
1.12.3 Système électronique de visualisation des cartes marines
Le Grace Sparkes était équipé d'un SCE pouvant afficher des cartes matricielles et vectoriellesNote de bas de page 16. Ce système comprenait notamment des fonctions d'alarmes sonores et d'écart d'itinéraire. L'équipe à la passerelle utilisait la version matricielle de la carte 4855 du SHC (photo 4), laquelle couvre la même région que la carte vectorielle CA276092.
Certains officiers à la passerelle trouvaient que l'écran du SCE était trop lumineuxNote de bas de page 17 pendant le quart de nuit; même quand le système était en mode de nuit, la terre jaune orangé et l'eau blanche des cartes matricielles étaient plus brillantes que sur les cartes vectoriellesNote de bas de page 18. Pour éliminer ce problème, on éteignait l'écran du SCE du poste de conduite de bâbord.
La carte matricielle qu'on utilisait au moment de l'événement à l'étude ne comportait pas de caps ou de points de cheminement pour le voyage.
1.12.4 Radar
Au récif Burnside, le chenal navigable a une largeur de 0,035 nm (environ 64,8 m). Au moment de l'événement à l'étude, l'écran du radar actif au poste de conduite de bâbord était réglé à une portée de 1,5 nm, en mode avant vers le haut et décalé. Cet écran comportait 2 marqueurs de portée à 0,25 nm et 0,75 nm offrant une référence visuelle à l'équipage.
1.13 Gestion des ressources à la passerelle
La gestion des ressources à la passerelle (GRP) est la gestion et l'utilisation efficaces de toutes les ressources, humaines et techniques, qui sont à la disposition de l'équipe à la passerelle afin de veiller à la sécurité du voyage. La GRP comprend les techniques, les théories et les stratégies sur la gestion de la charge de travail, la résolution des problèmes, la prise de décisions, le travail d'équipe et la conscience situationnelleNote de bas de page 19, principalement durant les opérations importantes ou à risques élevés, dont la navigation dans le chenal d'un port. Il incombe aux membres de l'équipe à la passerelle d'être toujours attentifs à la situation tout en se consacrant à leurs tâches individuelles. Ils doivent aussi collaborer et partager entre eux de l'information pour s'assurer d'avoir la même vision de la situation et prévenir les méprises ponctuelles, lesquelles peuvent survenir lorsque 1 seule personne doit exécuter une tâche essentielle à la sécurité et que cette personne ne dispose d'aucun soutien pouvant l'aider à repérer et à corriger les erreurs possibles.
Dans l'événement à l'étude, le capitaine avait suivi un cours officiel en GRP d'une durée de 30 heuresNote de bas de page 20 en avril 2012. Le capitaine en second et les matelots de pont qui se trouvaient sur la passerelle n'avaient jamais suivi de formation en GRP, et la réglementation n'exigeait pas qu'ils le fassent. À l'heure actuelle, TC n'exige pas des officiers à la passerelle qu'ils reçoivent une formation en GRP afin d'obtenir ou de conserver leur certificat de compétence, bien qu'il fixe des normes pour la formation non obligatoire en GRPNote de bas de page 21.
Il est prévu que le Règlement sur le personnel maritime (RPM) sera modifié d'ici 2017 dans le cadre du processus de transition relatif à la mise en œuvre des modifications de Manille de 2010 à la Convention internationale sur les normes de formation des gens de mer, de délivrance des brevets et de veille (convention STCW). Ces modifications seront publiées dans la Partie I de la Gazette du Canada en 2016; ceux-ci comprennent l'ajout de la GRP à la formation en navigation électronique simulée (NES) pour tous les certificats de compétence pertinents aux niveaux des opérations (NES1) et de la direction (NES2), dont les suivants :
- Capitaine au long cours
- Capitaine, à proximité du littoral
- Capitaine, jauge brute de 3000 tonneaux, à proximité du littoral
- Capitaine, jauge brute de 500 tonneaux, à proximité du littoral
- Capitaine, jauge brute de 3000 tonneaux, navigation intérieure
- Capitaine, jauge brute de 500 tonneaux, navigation intérieure
- Premier officier de pont
- Premier officier de pont, à proximité du littoral
- Officier de pont de quart
- Officier de pont de quart, à proximité du littoral
- Premier officier de pont, jauge brute de 500 tonneaux, navigation intérieure
1.14 Certificats médicaux maritimes
Les navigants doivent se soumettre à un examen médical maritime pour obtenir un certificat médical maritimeNote de bas de page 22. Des médecins examinateurs de la marine désignés effectuent ces examens pour déterminer si les navigants sont aptes à effectuer leurs tâches quotidiennes et à réagir aux situations d'urgence, et pour s'assurer qu'ils ne souffrent pas d'affections médicales que le service en mer pourrait aggraver. Ces examens permettent également de déterminer si les navigants peuvent satisfaire aux exigences minimales sur la capacité visuelle, auditive et physique, la baisse de la vigilance par la prise de médicaments, et la présence ou les antécédents récents de maladie ou d'affectionNote de bas de page 23.
Les médecins examinateurs de la marine peuvent juger qu'un navigant est apte (sans restrictions), apte avec des restrictions ou inapte (de manière permanente ou temporaire). Ils peuvent ensuite délivrer un certificat provisoire valide pour 6 mois. Pendant cette période, le navigant peut toujours accomplir ses tâches opérationnelles. Ce certificat provisoire et la documentation liée à l'examen médical sont envoyés à TC à des fins d'évaluation par 1 de 5 médecins examinateurs. TC examine la documentation liée à l'examen médical et y ajoute des formulaires de couleurNote de bas de page 24 pour identifier toute évolution de l'état du navigant et toute modification considérable de son état médical. Si le médecin examinateur de la marine et TC jugent que le navigant est apte à accomplir les tâches requises et qu'aucune restriction géographique ou opérationnelle n'est nécessaire, un certificat médical maritime lui est remis. Ce certificat est d'une durée de validité maximale de 2 ans, à l'exception des personnes de moins de 18 ans, dont le certificat est valide pendant un maximum de 1 an.
On avait jugé que le capitaine du navire de l'événement à l'étude était apte à accomplir les tâches requises, et ce, sans restrictions. L'enquête sur l'événement à l'étude a permis de cerner certains problèmes liés à la documentation et à la supervision de son état médical dans le cadre du processus d'examen.
1.14.1 Qualifications des médecins examinateurs de la marine et processus d'examen
Les médecins examinateurs de la marine sont des médecins qui ont été choisis, formés et officiellement nommés par TC. Parmi les critères qu'ils doivent satisfaire pour être nommés par TC (et tous les 4 ans par la suite), on retrouve l'expérience en médecine du travail, la connaissance des conditions de vie et de travail à bord de navires, et la participation à un séminaire de médecine maritime de TCNote de bas de page 25. Ce séminaire de médecine maritime comprend la présentation de la réglementation et des normes de médecine maritime qu'il faut respecter pendant le processus d'examen, la présentation de certaines questions liées à la médecine maritime, des ateliers d'examen de cas, des exposés de spécialistes invités, et des séances de familiarisation avec l'environnement maritime (p. ex., des visites de navires et de simulateurs).
Après la formation, TC n'évalue pas les connaissances des médecins évaluateurs pour s'assurer qu'ils ont bien assimilé les directives de TC et le contenu de la formation, et qu'ils sont prêts à assumer leur rôle de médecin examinateur. On n'évalue pas non plus les installations et les méthodes d'examen des médecins examinateurs pour s'assurer que ceux-ci satisfont aux exigences énoncées dans la documentation de l'Organisation internationale du Travail (OIT), de l'Organisation maritime internationale (OMI) et de TC.
Une fois qu'on les a nommés, les médecins examinateurs de la marine peuvent commencer à effectuer des examens sur demande ou lorsque nécessaire. On s'attend à ce que les médecins examinateurs de la marine « connaisse[nt] le processus de certification [de TC], en respecte[nt] les normes et les exigences, et procède[nt] à un examen médical approfondi permettant d'évaluer comme il convient l'état de santé du navigant et de protéger la sécurité publique »Note de bas de page 26.
1.14.2 Communication des renseignements médicaux des navigants
Les navigants peuvent sélectionner le médecin examinateur qui effectuera leur examen médical maritime. Il incombe aux navigants de fournir leurs antécédents médicaux pertinents s'ils choisissent un médecin examinateur qui n'est pas leur médecin habituel ou qui les examine pour la première fois. Aux termes de la LMMC 2001, chaque membre d'équipage est tenu « de signaler tout changement dans sa situation qui pourrait nuire à sa capacité d'exercer ses attributions de façon sécuritaireNote de bas de page 27 ». Toutefois, les navigants n'ont pas l'obligation de fournir les dossiers médicaux de leur médecin de famille ou leur certificat médical maritime de TC précédent au moment de chaque examen médical maritime. Dans le cas de l'événement à l'étude, la documentation sur les examens médicaux maritimes du capitaine faisait référence à de multiples médecins examinateurs, lesquels n'ont jamais eu accès aux dossiers médicaux du médecin habituel du capitaine.
Aux termes de la LMMC 2001, tous les médecins (y compris les médecins de famille) doivent s'adresser à TC s'ils croient que « l'état du titulaire d'un certificat est susceptible de constituer un risque pour la sécurité maritime »Note de bas de page 28. Rien n'indiquait que le médecin de famille du capitaine avait signalé les problèmes de santé du capitaine à TC.
1.14.3 Évaluation de l'aptitude au travail
À l'article 16 de la LMMC 2001, on énonce les renseignements dont TC a besoin pour évaluer l'aptitude physique des navigants et leur délivrer un certificat médical maritime.
Dans son document intitulé Examen médical des navigants – guide du médecin (ci-après nommé le Guide du médecin ), TC fournit des directives sur les examens médicaux maritimes dont l'objectif est d'évaluer l'aptitude au travail. Ce document est basé sur les Directives relatives aux examens médicaux des gens de mer de l'OIT/OMI, conformément à la convention STCW et à la partie 2 du RPM. Dans le Guide du médecin, on fournit des renseignements sur l'aptitude physique, sur différentes affections médicales, et sur les catégories de médicaments nécessitant une documentation supplémentaire ou la mise en œuvre de restrictions. Ce guide comprend également des directives sur la délivrance de certificats médicaux provisoires après l'évaluation et, lorsque nécessaire, l'application de restrictions temporaires ou permanentes, de restrictions liées à certains endroits et/ou certaines tâches opérationnelles, ou l'augmentation de la fréquence des activités de surveillance. Toutefois, il n'est pas possible de fournir des directives sur toutes les affections, tous les médicaments et tous les niveaux d'aptitude possibles (et les différentes combinaisons de ces éléments) : les médecins examinateurs doivent donc faire preuve de jugement lorsqu'ils considèrent l'application de restrictionsNote de bas de page 29.
Dans ce guide, on souligne également l'importance d'obtenir de la documentation justificative (surtout pour l'évaluation de problèmes de santé mentale), et d'évaluer les problèmes de santé physique et mentale pour en définir les répercussions potentielles sur le rendement opérationnel et la sécurité.
Le capitaine avait subi un examen médical maritime en 2014. Son formulaire d'examen faisait mention de plusieurs affections physiques et mentales et de médicaments qu'il prenait pour gérer ces affections. TC a demandé de la documentation justificative pour seulement l'une de ces affections. L'examinateur médical de la marine a proposé l'application d'une restriction géographiqueNote de bas de page 30 sur le rapport d'examen médical de la marine du capitaine en raison d'une autre affection. Les dossiers de son médecin de famille indiquaient qu'il souffrait depuis 2008 d'une affection qui n'avait jamais été notée dans un formulaire d'examen rempli avant 2014.
On a envoyé le formulaire d'examen médical du capitaine à TC pour fins d'évaluation, et le capitaine a reçu un certificat médical maritime sans restrictions, en fonction de ce formulaire d'examen et du certificat provisoire. Toutefois, rien dans le dossier du capitaine n'indiquait qu'un aperçu détaillé était requis, ou que TC avait effectué un examen approfondi avant de délivrer le certificat médical maritime. Ce certificat a été délivré avant la réception des renseignements justificatifs concernant les affections dont souffrait le capitaine.
1.15 Gestion des passagers
Lorsqu'une situation d'urgence survient à bord d'un navire transportant des passagers, le navire, l'équipage et les passagers doivent disposer de l'équipement et de l'information nécessaires. Le navire doit être doté d'une alarme, d'un système de diffusion publique et d'équipement de sauvetage. L'équipage doit mettre en œuvre des procédures d'urgence documentées qu'il doit exercer périodiquement, et ce, pour s'assurer qu'il peut réagir adéquatement à toute situation d'urgence. Il faut donner aux passagers des instructions sur le point de rassemblement en cas d'urgence, ainsi que sur l'accès à l'équipement de sauvetage et leur mode d'emploi.
1.15.1 Annonces et alarmes
Le Grace Sparkes est doté de 2 systèmes de diffusion principaux d'instructions de sécurité aux passagers : un système automatisé d'annonces enregistrées et un système de diffusion publique à bouton-poussoir.
Le système automatisé d'annonces enregistrées comprend 3 ensembles d'instructions qui sont communiquées aux passagers à différentes étapes du voyage :
- Dans l'annonce d'embarquement, on demande aux passagers de quitter leur véhicule (se trouvant sur le pont-garage) et de se rendre au salon des passagers et d'y rester pendant tout le voyage.
- Dans l'annonce de sécurité, on indique aux passagers que le salon des passagers est le point de rassemblement désigné en cas d'urgence, et on donne des renseignements sur la signalisation de sécurité et l'emplacement de l'embarcation et des gilets de sauvetage.
- Dans l'annonce d'arrivée, on indique aux passagers que le navire a été amarré et qu'ils peuvent se rendre à leur véhicule en vue du débarquementNote de bas de page 31.
Un numéro est attribué à chaque annonce du système automatisé. Pour diffuser une annonce, l'équipage compose le numéro approprié depuis l'un des postes de gouverne.
L'équipe à la passerelle utilise le système de diffusion publique à bouton-poussoir pour communiquer des renseignements sur le voyage directement à l'équipage et aux passagers, et particulièrement des renseignements importants en cas d'urgence. Une alarme retentit également dans l'éventualité d'une situation d'urgence.
Deux jours après l'événement à l'étude, les enquêteurs du Bureau de la sécurité des transports du Canada (BST) ont constaté que s'il était possible de sélectionner et d'entendre les annonces enregistrées depuis les postes de gouverne, ces messages n'étaient toutefois pas transmis dans tout le navire. Le MTTP a constaté qu'une carte de programmation du système de diffusion publique était défectueuse. On a remplacé cette carte, et un nouvel essai du système a permis de constater que les annonces enregistrées étaient redevenues audibles dans le salon des passagers.
1.15.2 Matériel de sauvetage
À bord du Grace Sparkes, les gilets de sauvetage étaient rangés sur le pont, à l'arrière du salon des passagers, dans des caisses orange identifiées. Ces caisses n'étaient visibles depuis l'intérieur du salon des passagers que si l'on se positionnait près de la porte arrière et qu'on regardait (photo 5) dans la direction de ces caisses. Dans le salon se trouvaient des affiches de mode d'emploi des gilets de sauvetage. Toutefois, aucune signalisation n'indiquait l'emplacement des gilets de sauvetage ou des caisses contenant ceux-ci, et la réglementation n'exigeait pas l'installation de cette signalisation.
Le Grace Sparkes était doté de trousses de premiers soins, de défibrillateurs et d'autre matériel de premiers soins, mais les composants de cet équipement n'étaient pas tous visibles. La trousse de premiers soins du salon des passagers était rangée dans un contenant non identifié (photo 6), et d'autres dispositifs de premiers soins, dont un défibrillateur et une douche oculaire, étaient rangés sur le mur d'un corridor du pont des embarcations, à l'avant du salon des passagers. Il était impossible de voir l'équipement rangé dans le corridor depuis la section sièges du salon, et aucune signalisation n'en indiquait l'emplacement. D'autres dispositifs de sauvetage, dont un porte-voix et des feux de détresse fumigènes, étaient rangés dans des armoires non identifiées.
1.15.3 Listes de vérification des procédures d'urgence
La section du MGS portant sur les listes de vérification des procédures d'urgence commence par quelques remarques générales et la politique du MTTP sur la préparation aux situations d'urgence [traduction] :
Le ministère a adopté une politique exigeant que tous les milieux de travail atteignent un niveau de préparation aux situations d'urgence qui permet une réaction immédiate et efficace à toute situation d'urgence locale.
Les objectifs de la préparation aux situations d'urgence sont :
- prévenir les blessures aux employés causées par une situation d'urgence prévisible, ou en limiter la gravité;
- réduire au minimum les dommages à l'équipement, aux installations et à l'environnement; et
- réduire autant que possible le délai de reprise complète des services après une situation d'urgenceNote de bas de page 32.
Les listes de vérification d'urgence servent de lignes directrices portant principalement sur les procédures d'urgence de base. Ces listes de vérification sont générales (p. ex., on n'y précise pas le membre de l'équipage qui doit accomplir une tâche donnée) et comprennent les différentes mesures que l'on peut prendre pour réagir à une situation d'urgence particulière. Six listes de vérification de cette section (collision avec un objet fixe, collision avec un autre navire, échouement, inondation, incendie et abandon du navire) comprennent des tâches et des mesures de rassemblement et de dénombrement des passagers. Chacune de ces listes comprend 2 éléments de rassemblement et de dénombrement des passagers, soit :
- rassembler tout le monde, compter les personnes et informer le capitaine du nombre de personnes pour déterminer si quelqu'un manque à l'appel; et
- si une personne manque à l'appel, effectuer des recherchesNote de bas de page 33
1.15.5 Rôle d'appel
À bord du Grace Sparkes, un rôle d'appel était affiché à différents endroits pour indiquer aux membres de l'équipage l'attribution des rôles en cas de situation d'urgence (embarcations, incendie et personne tombée à la mer)Note de bas de page 34. Selon ce rôle d'appel, toutes les tâches relatives à la sécurité des passagers étaient attribuées au cuisinier et comportaient ce qui suit :
- dans le cadre des tâches liées aux incendies, guider les passagers jusqu'au point de rassemblement et assurer le contrôle de la foule; et
- dans le cadre des tâches liées aux embarcations, assurer le contrôle de la foule (rassembler les passagers, récupérer les couvertures, compter les passagers, distribuer les gilets de sauvetage, faire la démonstration de la manière d'enfiler les gilets de sauvetage, s'assurer que les passagers ont enfilé leur gilet de sauvetage correctement et guider les passagers jusqu'aux postes d'embarquement).
En plus du rôle d'appel, on conservait une liste de vérification afférente au point de rassemblement des passagers sur une planchette à pince sur la passerelle; on y retrouvait également d'autres appareils (une radio portative et un mégaphone-avertisseur) permettant au cuisinier d'accomplir ses tâches de contrôleur de foule. Cette liste de vérification comprenait des directives sur la manière de se comporter devant les passagers, de communiquer avec les passagers (et certains renseignements précis qui doivent leur être transmis) et de gérer des passagers agressifs ou cédant à la panique. Dans cette liste de vérification, on demandait également au contrôleur de foule de faire appel à des volontaires pour empêcher les passagers de quitter le point de rassemblement et distribuer les gilets de sauvetage, ainsi que pour faire la démonstration de la manière de les enfiler et s'assurer que les passagers les enfilent correctement. Cette liste recommandait également de demander l'aide d'un volontaire pour confirmer le nombre de passagers, lequel devait être transmis au capitaine à l'aide d'une radio portative; si une personne manquait à l'appel, le capitaine devait ensuite demander à une personne d'effectuer des recherches. En ce qui concerne la gestion des passagers handicapés, la liste de vérification demandait au contrôleur de foule de demander aux personnes handicapées de s'identifier, puis de transmettre le nombre de personnes handicapées au capitaine pour que celui-ci puisse évaluer le temps nécessaire à l'évacuation.
1.15.6 Plan d'évacuation
Au moment de l'événement à l'étude, 2 analyses d'évacuation étaient en vigueur à bord du Grace Sparkes . La première était fondée sur un groupe de 80 passagers et de 9 membres d'équipage, et la seconde sur un groupe de 50 passagers et de 8 membres d'équipage. Ces analyses étaient accompagnées d'une procédure d'évacuation comprenant les étapes suivantes :
- guider tous les passagers jusqu'au salon des passagers;
- compter les passagers et les diviser en groupes; et
- se rendre jusqu'à la zone d'embarquement désignée par le capitaine.
Dans l'une et l'autre de ces analyses, il incombait au cuisiner de guider et de gérer les passagers (ses tâches précises étaient définies dans le rôle d'appel). Les tâches du cuisinier étaient les mêmes dans les 2 cas. Ces analyses comprenaient également la procédure de mise à l'eau des bateaux de sauvetage et le nombre de membres d'équipage et de passagers pouvant monter à bord de chaque bateau, conformément au rôle d'appel. Elles comprenaient également des durées estimées d'évacuationNote de bas de page 35 et démontraient la conformité du navire aux exigences du Règlement sur l'équipement de sauvetage . On a calculé les estimations du temps nécessaire pour que les passagers atteignent l'aire d'embarcation en supposant que tous les passagers se trouvaient initialement dans le salon des passagers.
1.15.7 Exercices
On effectuait régulièrement des exercices d'incendie et d'embarcation à bord du Grace Sparkes . Dans le MGSNote de bas de page 36, on décrivait la nature, l'objectif et la fréquence de ces exercices, ainsi que la manière de les effectuer et d'en consigner les résultats. En ce qui concerne le rassemblement des passagers, on indiquait dans le MGS que [traduction] « tous les exercices doivent comprendre le rassemblement hypothétique des passagers et une discussion sur les techniques de contrôle de la foule »Note de bas de page 37. Le MGS comprenait également une liste de vérification pour les exercices d'embarcation et d'incendie (annexe F) à laquelle l'équipage et le capitaine devaient se référer pour s'assurer qu'ils accomplissaient toutes les tâches qui leur étaient attribuées (y compris, notamment, rassembler les passagers, et retrouver et secourir les personnes manquant à l'appel).
Dans la pratique, le scénario des exercices d'urgence à bord du Grace Sparkes comprenait habituellement un incendie et les préparatifs d'abandon du navire, et seuls les membres de l'équipage y prenaient part. Le cuisinier – le seul membre de l'équipage affecté aux activités liées à la sécurité des passagers – devait accomplir les différentes étapes de la procédure, depuis son arrivée au point de rassemblement jusqu'à l'utilisation de la radio portative pour communiquer au capitaine un rapport sur le dénombrement des passagers. Ces exercices ne comprenaient pas les étapes liées à la recherche d'un passager manquant à l'appel.
1.15.8 Effectif minimal de sécurité
Le représentant autorisé (RA) d'un navire canadien doit s'assurer que l'équipage satisfait aux exigences de l'article 207 du RPM. Le RA doit soumettre à TC une demande de document concernant l'effectif minimal de sécurité (DEMS), laquelle doit comprendre différents renseignements, dont le type de navire, le nombre de passagers, la puissance du système de propulsion, le type de voyage, le système de quarts utilisé et les systèmes de communication, entre autres. Cette demande doit comprendre la liste de l'effectif proposé dans laquelle figurent le nombre de membres d'équipage et les certifications de chacun d'eux. Si la demande satisfait aux exigences, TC délivre un DEMS dans où se trouve indiqué le nombre minimal de membres d'équipage et les certifications obligatoires de chacun d'eux.
En octobre 2009, TC a publié une directive de travailNote de bas de page 38 offrant des conseils sur l'interprétation des exigences relatives à l'effectif minimal de sécurité. Dans cette directive, on indiquait que les inspecteurs de TC doivent utiliser un formulaire standard lorsqu'ils évaluent l'effectif minimal de sécurité d'un navire. Ce formulaire tient compte des activités quotidiennes et des situations d'urgence, dont des scénarios d'évacuation et d'intervention après l'abandon du navire. En ce qui concerne les situations d'urgence, ce formulaire requiert l'évaluation du nombre de membres d'équipage requis et des certifications que ceux-ci doivent posséder pour communiquer ou participer à la lutte contre les incendies, notamment, ainsi qu'une évaluation du nombre de membres d'équipage requis pour effectuer les tâches de contrôle des passagers.
Dans le cas d'un navire à ponts multiples dont le capitaine ne peut pas voir le salon des passagers, le formulaire requiert l'affectation d'au moins 2 membres d'équipage au contrôle des passagers : 1 pour chaque compartiment normalement occupé par des passagers, et 1 pour ratisser 3 ponts auxquels les passagers ont accès, mais qu'ils n'occupent pas normalement. À bord du Grace Sparkes, les passagers avaient accès à 3 ponts et n'occupaient normalement que le salon des passagers.
En juillet 2009, le MTTP a transmis à TC une demande de DEMS pour le Grace Sparkes . Cette demande était basée sur un groupe de 80 passagers et proposait un équipage de 9 membres au total. Elle comprenait également des ébauches du plan d'évacuation et du rôle d'appel. Selon la demande, 1 membre de l'équipage (c.-à-d., le cuisinier) était chargé de satisfaire aux exigences du RPM sur le contrôle des passagers en cas d'urgence. On supposait que le salon des passagers (près du poste d'embarquement) pouvait contenir les 80 passagers.
En avril 2011, quand le Grace Sparkes a été mis en service, TC a délivré un DEMS pour un groupe de 80 passagers et de 9 membres d'équipage. En avril 2013, le MTTP a demandé et reçu un nouveau DEMS pour un groupe de 50 passagers. On a réduit à 8 le nombre minimal de membres d'équipage. Au tableau 2, on compare les DEMS et le nombre de membres d'équipage du Grace Sparkes au moment de l'événement à l'étude.
| DEMS pour 80 passagers (26 avril 2011) | DEMS pour 50 passagers (18 avril 2013) | Effectif typique au moment de l'événement à l'étude (21 janvier 2015) | |
|---|---|---|---|
| Capitaine (certifié) | 1 | 1 | 1 |
| Premier officier de pont (certifié) | 1 | 1 | 1 |
| Chef mécanicien (certifié) | 1 | 1 | 1 |
| Mécanicien (certifié) | 1 | - | 1 |
| Matelot de quart à la passerelle | 2 | 2 | 3 (matelots de pont/ timoniers) |
| Ratio | 3 | 3 | 1 (cuisinier) |
| TOTAL | 9 | 8 | 8 |
L'inspecteur de TC qui a délivré les DEMS pour le Grace Sparkes n'a pas rempli le formulaire d'évaluation standard et ne le connaissait pas. Pour évaluer l'effectif de sécurité requis à bord du navire pour accomplir les tâches de contrôle des passagers en cas d'urgence, l'inspecteur a compté 1 membre d'équipage pour chaque tranche de 50 passagers.
Une fois que TC a évalué le nombre minimal de membres d'équipage et leurs qualifications et noté ces renseignements sur le DEMS, il incombe à l'exploitant d'attribuer les tâches opérationnelles et d'intervention en cas d'urgence et d'ajouter des membres à l'équipage, au besoin, pourvu que le minimum du DEMS soit atteint.
1.15.9 Exigences réglementaires
La LMMC de 2001 comprend 2 règlements sur les procédures et les exercices de rassemblement et de dénombrement des passagers dans une situation d'urgence : le Règlement sur l'équipement de sauvetage et le Règlement sur les exercices d'incendie et d'embarcation .
Aux termes du Règlement sur l'équipement de sauvetage, tout navire à passagers doit « avoir une marche à suivre pour l'évacuation du chargement en personnes en toute sécurité dans un délai de 30 minutes après le moment où le signal d'abandon du navire est donné »Note de bas de page 39. Pendant leur inspection annuelle, les inspecteurs de Sécurité et sûreté maritimes de Transports Canada (SSMTC) ou d'organismes reconnus (OR) doivent s'assurer que la procédure documentée se trouve à bord; toutefois, ils n'évaluent pas cette procédure pour en déterminer la pertinence.
En 2010, on a modifié le Règlement sur les exercices d'incendie et d'embarcation pour exiger que le rôle d'appel des navires à passagers comprenne l'affectation des tâches que doit accomplir l'équipage en cas d'urgence en ce qui a trait aux passagersNote de bas de page 40. Selon la réglementation, certaines responsabilités doivent figurer sur le rôle d'appel (p. ex., retrouver et secourir les passagers manquant à l'appel), et des procédures doivent être définies pour ces responsabilités.
La réglementation exige également que le capitaine d'un navire à passagers s'assure que les procédures sont en place pour retrouver et secourir les passagers qui manquent à l'appel durant une situation d'urgenceNote de bas de page 41, et que les membres de l'équipage exercent leurs tâches liées à la sécurité des passagers durant ces exercicesNote de bas de page 42. Au moment de leur entrée en vigueur, ces nouvelles exigences avaient été publiées dans la Gazette du Canada et présentées durant les réunions régionales et nationales du Conseil consultatif maritime canadien (CCMC). TC n'a ni élaboré, ni promulgué de lignes directrices pour aider le secteur et les inspecteurs à interpréter correctement ces modifications et à les mettre en œuvre.
En plus de ces règlements, l'article 106 de la LMMC 2001 contient des dispositions sur les obligations générales des RA, dont :
- élabore[r] des règles d'exploitation sécuritaire du bâtiment ainsi que la procédure à suivre en cas d'urgence;
- veille[r] à ce que l'équipage reçoive une formation en matière de sécuritéNote de bas de page 43.
1.15.10 Inspections obligatoires
Les inspecteurs de TC effectuent les inspections annuelles obligatoires des navires à passagers; dans le cas de navires délégués, ce sont des experts de la société de classification agissant au nom du ministère des Transports qui les font. Pendant cette inspection, ils vérifient si le rôle d'appel se trouve à bord, puis assistent à un exercice d'urgence pour s'assurer que les tâches et les responsabilités correspondent à ce qui figure sur le rôle d'appel.
Le 4 juillet 2014, TC a publié l'avis courriel FLAGSTATENETNote de bas de page 44 06-2014, intitulé « Exigences réglementaires liées à l'inspection ou à la surveillance de tous les bâtiments et exigences additionnelles applicables aux navires à passagers », dans lequel il indiquait que les inspecteurs devaient :
- s'assurer que le rôle d'appel est conforme aux exigences du Règlement sur les exercices d'incendie et d'embarcation ;
- s'assurer que le navire est conforme à l'article 106 de la LMMC 2001 sur les procédures d'urgence; et
- s'assurer que les membres d'équipage auxquels on a attribué des tâches de contrôle des passagers démontrent qu'ils comprennent bien leurs responsabilités.
Dans cet avis, on indiquait également les champs de données qui ont été ajoutés au Système de rapports d'inspection des navires (SIRS) pour noter les résultats de ces étapes d'inspection.
Le 7 juillet 2014, un inspecteur de Lloyd's avait effectué la dernière inspection obligatoire du Grace Sparkes avant l'événement à l'étude à St. John's (Terre-Neuve-et-Labrador), et ce, en se référant au rôle d'appel et en tenant compte du fait que le navire ne transportait aucun passager et que l'équipage était réduit. Cet inspecteur n'avait pas reçu l'avis courriel FLAGSTATENET 06-2014, et la liste de vérification qu'il utilisait pour l'inspection ne faisait pas mention des règlements sur lesquels portait cet avis. La dernière inspection de surveillance de TC remontait à avril 2015 et n'avait pas permis de constater de manquements aux exigences réglementaires dont traitait l'avis courriel FLAGSTATENET 06-2014. De plus, les inspecteurs n'avaient pas rempli les champs de données appropriés dans le SIRS.
1.15.11 Campagne d'inspection ciblée de Transports Canada
À l'automne 2014, TC a mis en œuvre une campagne d'inspection ciblée (CIC) pour les navires à passagers de petite et moyenne tailleNote de bas de page 45 et portant principalement sur les plans et les procédures dont l'objectif est d'assurer le bon fonctionnement des systèmes de lutte contre les incendies et de sauvetage. Dans le cadre de cette CIC, les inspecteurs ont évalué les compétences et la préparation des équipages dans l'exercice des tâches qu'ils doivent assumer en cas d'urgence. La CIC comprenait l'inspection de 60 navires de toutes les régions du pays, mais le Grace Sparkes n'en faisait pas partie.
Pour les aider à effectuer les inspections, on a remis aux inspecteurs de TC un questionnaire (annexe G) comprenant 19 points ainsi que des directives générales et des renseignements sur les particularités de chaque point.Note de bas de page 46 Le rapport sur les résultats de ce questionnaireNote de bas de page 47 (publié au printemps 2015) souligne 2 points à risques élevés : les procédures d'identification et d'enregistrement des passagers nécessitant de l'aide, et la pertinence des plans sur l'équipement de sauvetage et de lutte contre les incendies. De plus, les questions sur la conformité des rôles d'appel et l'élaboration de procédures d'urgence pertinentes ont obtenu un pourcentage élevé de réponses négatives (37 % et 48 %, respectivement)Note de bas de page 48.
| Questions | Directives pour l'inspecteur | Résultats négatifs (%) |
|---|---|---|
| Question 4 – Le rôle d'appel est-il satisfaisant? | L'inspecteur doit vérifier que le rôle d'appel est conforme aux exigences de l'article 7 du Règlement sur les exercices d'incendie et d'embarcation . | 37 % |
| Question 5 – Y a-t-il d'autres procédures d'urgence écrites qui ne figurent pas dans le rôle d'appel? | L'inspecteur doit prendre note de l'exigence pour l'élaboration des procédures pour trouver et secourir les passagers qui manquent à l'appel dans une situation d'urgence, conformément à l'article 12 du Règlement sur les exercices d'incendie et d'embarcation . L'inspecteur est avisé de déterminer si des procédures d'urgence ont été décrites, mais ne figurent pas dans le rôle d'appel, comme des procédures pour le dénombrement des passagers. | 48 % |
| Question 11 – Procède-t-on au dénombrement des passagers? | Les consignes font rappel à l'inspecteur que l'article 10 du Règlement sur les exercices d'incendie et d'embarcation stipule que le capitaine d'un bâtiment doit veiller, avant qu'un bâtiment qui transporte des passagers entreprenne un voyage, à ce que le nombre de personnes à bord soit consigné. | 5 % |
| Question 18 – Le capitaine et l'équipage ont-ils effectué un exercice d'incendie satisfaisant? | Voici ce que l'inspecteur doit vérifier ou observer au cours de l'exercice : Les membres d'équipage qui participent au contrôle des passagers doivent être invités à faire la démonstration de leurs fonctions, à décrire les issues de secours de l'espace et les consignes pour se rendre au poste de rassemblement, en plus d'expliquer les signaux et les alarmes d'urgence. L'équipage a-t-il réussi à faire la démonstration satisfaisante de ses fonctions? |
11 % |
| Question 19 – Le capitaine et l'équipage ont-ils apporté la preuve d'un exercice satisfaisant d'abandon du bâtiment? Le dénombrement des passagers s'est-il déroulé de manière satisfaisante au poste de rassemblement? | Les inspecteurs sont avisés que « l'exercice doit se dérouler avec le plus de réalisme possible pour assurer que les fonctions sont exercées telles qu'elles sont définies dans le rôle d'appel. Les éléments suivants doivent être vérifiés ou observés durant l'exercice : Dans la mesure du possible, les passagers doivent être convoqués au poste de rassemblement en déclenchant l'alarme qui convient et en s'assurant que les passagers sont au courant des alarmes. Par ailleurs, si possible, l'équipage doit procéder à une opération fictive de recherche et sauvetage des passagers prisonniers de leurs cabines. |
11 % |
| Commentaires généraux sur les questions portant sur les exercices : | Les inspecteurs sont avisés que l'exercice doit être le plus réaliste possible. Il est préférable que les exercices aient lieu alors que les passagers sont à bord, toutefois, comme l'a déclaré SSMTC à la réunion du CCMC national d'avril 2014, il est important de perturber le moins possible l'exploitation d'un bâtiment. La décision de mener l'exercice avec l'équipage et les passagers ou avec l'équipage seulement est laissée à la discrétion de l'inspecteur qui procède à la CIC après en avoir discuté avec le capitaine ou son représentant autorisé. | S. O. |
| Commentaires généraux sur les questions portant sur les exercices : | Les inspecteurs sont avisés que, une fois les exercices terminés, ils doivent indiquer si les éléments suivants ont également été respectés :
Tous les passagers sont présents à l'appel. Tous les secteurs du bâtiment ont été évacués, y compris l'ensemble des secteurs verrouillés. Le cas échéant, a-t-on procédé au contrôle des cabines? |
S. O. |
Le rapport de TC sur la CIC comprenait plusieurs recommandations sur des mesures supplémentaires que pouvait prendre TC, dont :
- l'ajout de la liste de vérification et des directives de la CIC au processus d'inspection des navires à passagers délégués et non délégués; et
- l'élaboration d'une approche de mise en œuvre pour fournir des directives supplémentaires aux inspecteurs de TC en ce qui concerne les exigences sur les procédures relatives à l'équipement de lutte contre les incendies et de sauvetage.
Le 20 août 2015, TC a envoyé l'avis FLAGSTATENET 06-2015 à tous les inspecteurs de TC et OR pour leur fournir des renseignements sur la CIC, dont le rapport, les directives et le questionnaire de la CIC. Dans cet avis, on demandait aux inspecteurs de TC d'utiliser les directives et le questionnaire de la CIC dans leurs prochaines inspections périodiques de tous les navires à passagers. En ce qui concerne les OR, on indiquait dans l'avis que « SSMTC n'exige pas que les OR remplissent la liste de vérification de la CIC dans le cadre de l'évaluation annuelle des navires à passagers délégués. Toutefois, on recommande aux évaluateurs des OR d'examiner les lignes directrices et la liste de vérification afin de s'assurer d'inspecter les articles de cette listeNote de bas de page 49 ».
1.16 Événements antérieurs
1.16.1 Événements mettant en cause d'autres navires du ministère des Transports et des Travaux publics de Terre-Neuve-et-Labrador
En mai 2012, le traversier à passagers Beaumont Hamel Note de bas de page 50 a perdu sa propulsion et sa direction à la suite d'une panne électrique, à l'approche de Portugal Cove (Terre-Neuve-et-Labrador), et a heurté le quai. La porte d'étrave du navire a été endommagée, puis réparée. L'enquête du BST sur cet événement a permis de déceler des problèmes liés au SGS de la compagnie en ce qui concerne l'atténuation des risques, le signalement des quasi-abordages et la politique sur les véhicules à passagers. On a également constaté que le VDR du navire ne fonctionnait pas correctement.
1.16.2 Événements liés aux aides à la navigation et à la gestion des ressources à la passerelle
Des enquêtes précédentes du BST ont permis de constater des problèmes liés aux aides à la navigation et à la GRP.
En septembre 2009, le vraquier Petersfield a été affecté par un signal de cap gyromagnétique défectueux et a heurté la rive ouest du chenal Douglas (Colombie-Britannique). L'enquête du BST sur cet événementNote de bas de page 51 a permis de constater qu'on ne surveillait pas adéquatement la progression du navire dans le chenal et qu'il n'existait aucun plan détaillé consensuel pour aider les membres de l'équipe à la passerelle dans cette surveillance, conformément aux principes de la GRP.
En novembre 2011, le navire d'approvisionnement en mer Maersk Detector a heurté l'unité mobile de forage en mer GSF Grand Banks pendant le transbordement de fret de l'unité au navire dans le champ pétrolifère de White Rose, dans les Grands Bancs de Terre-Neuve-et-Labrador. L'enquête du BST sur cet événementNote de bas de page 52 a permis de constater que le capitaine se concentrait principalement sur la surveillance visuelle de la distance du navire par rapport à la plateforme et n'avait pas complètement examiné les données sur la position, les avertissements et les alarmes. De plus, le capitaine et l'officier de quart n'ont pas tenu les discussions qui auraient pu les aider à travailler ensemble et à maintenir leur connaissance des activités des autres membres de l'équipe à la passerelle.
En octobre 2012, le pétrolier Nanny s'est échoué sur un haut-fond en quittant Baker Lake (Nunavut). Le navire s'est déséchoué 2 jours plus tard et a été ultérieurement réparé. L'enquête du BST sur cet événementNote de bas de page 53 a permis de constater qu'une GRP inefficace a contribué à une réduction de la conscience situationnelle de l'équipe à la passerelle. Plus précisément, les communications entre les membres de l'équipe à la passerelle étaient minimales, ce qui a réduit leur capacité d'identifier la position du navire. De plus, on n'a pas contre-vérifié la position du navire à l'aide de différents appareils de navigation, et le capitaine était le seul officier de passerelle ayant suivi une formation en GRP.
1.16.3 Événements liés aux procédures et exercices de rassemblement et de dénombrement des passagers en cas d'urgence
Des enquêtes précédentes du BST ont aussi permis de constater des problèmes liés aux procédures et aux exercices de rassemblement et de dénombrement des passagers en cas d'urgence.
En mai 2003, un incendie s'est déclaré sur l'un des ponts d'embarquement du traversier roulier à passagers et véhicules Joseph and Clara Smallwood alors que celui-ci se trouvait à 8 nm de Port aux Basques (Terre-Neuve-et-Labrador). L'enquête du BST sur cet événementNote de bas de page 54 a permis de constater que les membres de l'équipage ne possédaient ni les connaissances ni les habiletés requises pour accomplir adéquatement leurs tâches en cas d'urgence. Le BST a par la suite exprimé des préoccupations sur la pertinence des procédures et de la formation sur la sécurité des passagers.
En mars 2006, le traversier roulier à passagers Queen of the North a sombré au large de l'île Gil (Colombie-Britannique). Deux passagers manquaient à l'appel après les procédures d'évacuation et n'ont jamais été retrouvés. L'enquête du BST sur cet événementNote de bas de page 55 a permis de conclure que les personnes responsables des passagers avaient eu de la difficulté à établir et à rapprocher le nombre total de passagers et à déterminer ceux qui manquaient à l'appel. Le Bureau a par la suite recommandé que :
[l]e ministère des Transports, de concert avec l'Association canadienne des opérateurs de traversiers et la Garde côtière canadienne, élabore un cadre basé sur le risque grâce auquel les exploitants de traversiers pourront élaborer des méthodes efficaces qui permettront de dénombrer les passagers de chaque navire et de chaque itinéraire, et d'en rendre compte avec exactitude.
L'enquête du BST a également montré que les exercices n'abordaient pas toutes les compétences nécessaires pour rassembler les passagers et contrôler une foule nombreuse. Compte tenu des risques liés à des préparatifs mal coordonnés pour évacuer un grand nombre de passagers, le Bureau a recommandé que :
[l]e ministère des Transports établisse des règles, y compris l'obligation de mener des exercices réalistes, qui permettent aux exploitants de navires à passagers d'évaluer la préparation de leurs équipages à gérer efficacement les passagers durant une situation d'urgence.
Dans le cadre de la réponse de TC à ces recommandations, le Règlement sur les exercices d'incendie et d'embarcation a été modifié pour exiger que les tâches du rôle d'appel à bord de navires à passagers comprennent la recherche de passagers qui manquent à l'appel dans une situation d'urgence afin de les secourir. Cette modification exige en outre l'adoption de procédures et d'exercices réalistes liés à ces tâches. En juillet 2010, le BST a jugé que les réponses à ces 2 recommandations étaient entièrement satisfaisantesNote de bas de page 56.
En août 2007, le traversier roulier à passagers Nordik Express a heurté l'île de l'Entrée (Québec), et sa coque a subi des avaries sous la ligne de flottaison. L'enquête du BST sur cet événementNote de bas de page 57 a relevé plusieurs lacunes concernant les tâches relatives à la sécurité des passagers, y compris les suivantes :
- l'équipe à la passerelle n'avait pas sonné l'alarme, ce qui a obligé les membres de l'équipe responsables de la sécurité des passagers à improviser leur intervention;
- les listes de tâches en situation d'urgence n'indiquaient pas les tâches liées à la préparation d'une évacuation;
- les passagers n'avaient pas été dénombrés.
En octobre 2012, le traversier roulier à passagers Jiimaan s'est échoué à l'approche du port de Kingsville, sur le lac Érié (Ontario). L'enquête du BST sur cet incidentNote de bas de page 58 a montré que les plans et les procédures à bord du navire pour le rassemblement et le dénombrement des passagers n'étaient pas complets et que les exercices avaient été effectués seulement avec les membres d'équipage; ceux-ci n'avaient donc pas été en mesure de s'exercer à l'encadrement des passagers de façon réaliste.
L'enquête a aussi permis d'établir que les inspecteurs de TC n'avaient pas vérifié si les tâches liées à la sécurité des passagers et les procédures exigées par la réglementation figuraient dans les procédures à bord du navire. Le Bureau a par la suite rendu publique la préoccupation qui suit concernant la sécurité :
Le Bureau est préoccupé par le fait que, si les inspecteurs de la sécurité maritime de TC n'évaluent pas les rôles d'appel et les procédures d'évacuation pour déterminer leur conformité et leur pertinence, et si TC ne fournit pas de lignes directrices d'interprétation, la conformité à la réglementation de sécurité pour les passagers risque d'être inadéquate, ce qui annulerait les avantages potentiels de sécurité de cette réglementation.
Depuis l'enquête sur l'incident du Jiimaan, on a effectué des constatations semblables sur la pertinence des procédures et des exercices de rassemblement et de dénombrement des passagers dans le cadre de 2 autres enquêtes du BST sur des événements mettant en cause des navires à passagers (le Louis Jolliet et le Princess of Acadia )Note de bas de page 59. Ces 2 enquêtes ont également révélé que les procédures d'urgence à bord des navires comportaient des lacunes de gestion de la sécurité des passagers et que les membres d'équipage ne s'étaient pas exercés de façon réaliste à mettre ces procédures en pratique. Ces enquêtes ont aussi fait ressortir le besoin pour TC d'exercer une surveillance efficace de la sécurité des passagers.
En réponse au rapport du BST sur l'événement du Louis Jolliet, TC a avisé le Bureau qu'il avait transmis aux inspecteurs un rappel sur les exigences de l'article 7 du Règlement sur les exercices d'incendie et d'embarcation en publiant un avis FLAGSTATENET et en ajoutant des champs au SIRS. TC a également informé le Bureau que la CIC serait mise en œuvre à l'automne 2014 et porterait principalement sur les plans et les procédures dont l'objectif est d'assurer le bon fonctionnement des systèmes de lutte contre les incendies et de sauvetage.
1.16.4 Communications de sécurité précédentes
En février 2015, le BST a envoyé une lettre à TCNote de bas de page 60 pour lui rappeler ses préoccupations sur le manque de directives et de surveillance efficace de TC concernant les modifications apportées en 2010 au Règlement sur les exercices d'incendie et d'embarcation sur les procédures d'urgence à bord des navires à passagers. Si l'avis courriel FLAGSTATENET et la CIC constituaient de bonnes initiatives d'atténuation des risques à la sécurité des passagers, l'avis ne soulignait pas les exigences sur des procédures précises ou des exercices réalistes. En outre, on n'avait pas élaboré les directives pour faciliter l'interprétation de ces exigences. Pourtant, de telles directives auraient permis de s'assurer que les procédures pertinentes du navire respectent l'esprit de la réglementation, et que les inspecteurs évaluent la conformité de manière uniforme. On a demandé qu'une mise à jour soit publiée sur les mesures prévues par TC pour atténuer les risques liés à cette question.
En réponse à cette lettre, TC a indiqué qu'il avait récemment approuvé une recommandation sur l'ajout de la liste de vérification et des directives de la CIC au processus d'inspection annuelle des navires à passagers. De plus, la surveillance des navires à passagers inspectés par les experts de la société de classification passerait à 75 % des navires en 2015 et 2016, puis à 100 % les années suivantes. En réponse aux préoccupations du BST sur l'inactivité de TC à élaborer ou à publier des directives pour aider les exploitants et les inspecteurs à interpréter et appliquer les nouvelles exigences, TC a indiqué que des directives avaient été fournies aux inspecteurs dans le cadre de la CIC et que ces directives encourageaient l'adoption d'une approche uniforme pour ces inspections.
TC a également reconnu que les résultats de la CIC (annexe H) indiquaient que près du tiers des rôles d'appel évalués ne satisfaisaient pas aux exigences réglementaires. En utilisant la liste de vérification de la CIC pour effectuer les inspections en 2015 et 2016, TC s'attendait à être en mesure d'évaluer la conformité à cette exigence et à l'article 12 du Règlement sur les exercices d'incendie et d'embarcation en ce qui concerne les procédures d'urgence. En ce qui concerne la tenue d'exercices réalistes, TC a indiqué que dans le cadre de la CIC, la plupart des exercices ont été effectués avec les membres d'équipage seulement, et ce, pour réduire au minimum les répercussions commerciales pour les propriétaires des navires. TC allait toutefois encourager la participation de passagers aux exercices, lorsque possible.
1.17 Liste de surveillance du BST
1.17.1 Gestion et supervision de la sécurité : un enjeu sur la Liste de surveillance de 2014
La Liste de surveillance est une liste des enjeux qui posent les plus grands risques pour le système de transport du Canada. Le BST la publie afin de sensibiliser le secteur et les organismes de réglementation aux problèmes qui doivent être corrigés rapidement.
Le BST a inscrit la gestion de la sécurité et la surveillance en tant qu'enjeu sur sa Liste de surveillance. Pour résoudre ce problème, tous les exploitants du secteur maritime devront mettre sur pied des processus structurés de gestion de la sécurité. De plus, TC doit surveiller les processus de gestion de la sécurité des compagnies : certaines entreprises de transport ne gèrent pas efficacement leurs risques de sécurité, et la surveillance et les interventions menées par TC ne lui ont pas toujours permis de faire changer les méthodes d'exploitation non sécuritaires de ces entreprises.
2.0 Analyse
2.1 Événements qui ont conduit au contact avec le fond
Le Grace Sparkes naviguait à l'est-sud-est de la trajectoire figurant dans le plan de traversée standard. Au moment où le navire se préparait à pénétrer dans le chenal Burnside, on ne s'est pas rendu compte de cet écart de trajectoire, et on n'a apporté aucun correctif. Le capitaine dirigeait le navire, ce qui réduisait sa capacité de surveiller la position du navire par rapport à l'itinéraire du plan de traversée. Simultanément, le capitaine en second n'a pas suffisamment surveillé ou contre-vérifié l'équipement de navigation, et cet équipement n'était pas configuré d'une manière optimisant les données permettant de confirmer la position du navire. Comme rien n'indiquait le contraire, l'équipage avait l'impression que la traversée se déroulait normalement jusqu'à ce que le navire heurte le récif Burnside.
2.2 Obligation de déclarer un échouement
À bord du Grace Sparkes, un navire de la flotte du ministère des Transports et des Travaux publics (MTTP), on utilisait une liste de mesures devant être prises en cas d'échouement (annexe I). L'une de ses mesures était d'aviser la Garde côtière canadienne de l'incident. Le Règlement sur les rapports de sinistres maritimes comprend des directives sur la manière de signaler un incident et indique que tout incident doit être signalé « sans délai »Note de bas de page 61. Toutefois, dans le cas de l'événement à l'étude, le capitaine a attendu 14 minutes avant de signaler l'incident, soit après l'accostage du Grace Sparkes à Burnside. Tout retard mis à signaler l'événement aurait retardé l'intervention des services d'urgence si elle avait été nécessaire.
2.3 Pratiques de navigation
Si l'on peut recourir à la navigation visuelle pour déterminer la position d'un navire, cette méthode s'avère cependant moins efficace dans la noirceur ou lorsque la visibilité est restreinte. Il est donc essentiel de contre-vérifier la navigation visuelle avec des aides à la navigation (p. ex., des radars, des cartes sur papier et des systèmes de cartes électroniques [SCE]) qui ont été configurées pour offrir un rendement optimal. Le Bureau de la sécurité des transports du Canada (BST) a déjà déterminéNote de bas de page 62 que le matériel de navigation n'était pas toujours configuré de manière à tirer pleinement parti des fonctions de sécurité, ce qui a empêché les équipages d'obtenir des avertissements en temps opportun.
Dans le cas de l'événement à l'étude, on utilisait la navigation visuelle dans la noirceur et un projecteur pour faciliter le repérage des balises du chenal. Toutefois, l'utilisation du projecteur peut avoir réduit l'attention que le capitaine portait aux autres tâches sur la passerelle.
Dans le manuel de gestion de la sécurité (MGS) de la compagnie, on soulignait l'importance de comparer les données de différents instruments et de ne pas se fier qu'à une seule aide à la navigation; toutefois, le capitaine et le capitaine en second n'ont pas effectué cette contre-vérification ni avant ni après le départ. Le radar aurait pu servir à contre-vérifier le repérage visuel des balises du chenal. Toutefois, comme on l'avait réglé à une portée de 1,5 mille marin (environ 2,8 km), il ne fournissait pas assez de détails pour qu'il soit possible de définir la distance approximative du navire des balises du chenal, car la largeur de ce dernier n'était que de 0,035 nm (environ 64,8 m). De plus, on n'avait pas défini de repères parallèles ou d'alarmes de distance pour avertir l'équipe à la passerelle d'un danger imminent.
Le Grace Sparkes était doté de cartes électroniques et sur papier. Toutefois, on avait éteint l'écran du SCE du poste de conduite bâbord, car celui-ci était trop lumineux. Ainsi, le capitaine n'a pas utilisé la carte électronique de la région, laquelle aurait pu lui indiquer la position du navire. La situation a été empirée par le fait qu'on n'avait pas activé les alarmes sonores du SCE, lesquelles auraient pu avertir l'équipage du danger imminent, et qu'on n'avait pas saisi dans le SCE les points de cheminement qui auraient pu faciliter la navigation.
Les trajectoires et les points de cheminement figuraient sur la carte sur papier qu'on utilisait au moment de l'événement à l'étude. Toutefois, les trajectoires et les distances entre les points de cheminement ne figuraient pas sur la carte; on retrouvait celles-ci dans le plan de traversée, lequel était rangé ailleurs sur la passerelle et auquel l'équipe à la passerelle n'avait pas facilement accès. En outre, aucune position n'avait été marquée sur la carte pendant le voyage, et la carte n'avait pas été mise en jour en fonction des dernières corrections, comme l'exigeait la réglementation.
Dans les situations où l'espace est restreint, comme dans l'événement à l'étude, il est encore plus important de contre-vérifier la navigation visuelle en utilisant des aides à la navigation dont les fonctions et les alarmes sonores sont activées. Si elles sont configurées correctement, les alarmes sonores du SCE et des radars permettent d'alerter l'équipe à la passerelle de la position du navire dans le chenal. Dans le cas de l'événement à l'étude, l'équipe à la passerelle n'a pas reçu d'alarmes ou d'avertissements; de plus, son attention n'a pas été portée vers les écrans, lesquels indiquaient l'écart entre la position du navire et la route représentée sur les cartes pendant la traversée du chenal Burnside.
Si l'on ne contre-vérifie pas les aides à la navigation ou que leurs fonctions respectives, dont les alarmes, ne sont pas configurées de manière optimale, l'équipe à la passerelle risque de ne pas avoir accès à des renseignements potentiellement utiles à la navigation sécuritaire du navire.
2.4 Gestion des ressources à la passerelle
La gestion des ressources à la passerelle (GRP) est particulièrement importante lorsqu'un navire navigue en eaux restreintes, comme dans le chenal d'un port. Dans une telle situation, il est crucial que les membres de l'équipe à la passerelle maintiennent une bonne conscience situationnelle en collaborant et en communiquant.
Dans le cas de l'événement à l'étude, un manque de communication entre les membres de l'équipe à la passerelle a contribué à ce que ces derniers ne remarquent pas la déviation du navire par rapport au plan de traversée.
Pendant la traversée, ils ont partagé peu de données sur la position du navire, ce qui a réduit les chances de constater la déviation du navire. L'équipe à la passerelle a discuté de la position de la bouée extérieure de tribord par rapport au navire, mais pas de la position du navire par rapport à l'itinéraire du plan de traversée. Elle n'a discuté de la position du navire par rapport à la balise intérieure de bâbord qu'après le contact avec le fond.
Le capitaine était le seul membre de l'équipe à la passerelle qui avait suivi une formation en GRP. Ainsi, l'équipe à la passerelle a eu peu d'occasions d'utiliser et de renforcer les meilleures pratiques et les principes de GRP.
Comme il est démontré dans l'événement à l'étude ainsi que dans d'autres événementsNote de bas de page 63, les lacunes dans la mise en œuvre des principes de GRP peuvent contribuer aux accidents maritimes. À l'heure actuelle, la réglementation n'exige pas que les officiers à la passerelle et le personnel de quart suivent une formation en GRP ou maintiennent des compétences en GRP pour obtenir et conserver leurs certificats de compétence. Transports Canada (TC) a proposé des modifications au Règlement sur le personnel maritime (RPM) pour imposer la formation en GRP aux certificats de compétence de capitaine à proximité du littoral et de premier officier de pont à proximité du littoral, notamment, mais pas au brevet de matelot de quart à la passerelle.
Si tous les membres de l'équipe à la passerelle n'ont pas suivi de formation officielle en GRP ou ne maintiennent pas de compétences en GRP, il y a un risque accru que la conscience situationnelle soit appauvrie, surtout dans les parties à risques élevés des traversées, comme la navigation en eaux restreintes.
2.5 Certificats médicaux maritimes
Comme le capitaine n'a pas subi d'examen médical complet peu de temps avant ou après l'événement à l'étude, il n'a pas été possible de définir à quel point le capitaine était affecté par des problèmes médicaux au moment de l'événement à l'étude ni de connaître l'incidence de ceux-ci sur son rendement. La présente section de l'analyse portera donc sur le processus de certification médicale maritime.
2.5.1 Qualifications des médecins examinateurs de la marine et processus d'examen
Les médecins qui ont reçu le titre de médecins examinateurs de la marine de TC possèdent les qualifications requises pour effectuer des examens, au besoin. Cela signifie que certains peuvent effectuer plus d'examens que d'autres, et que les examinateurs qui ont moins d'occasions d'appliquer les connaissances qu'ils ont acquises dans le cadre des séminaires de médecine maritime peuvent devenir moins familiers avec les procédures.
Comme les examinateurs ne font pas l'objet d'une évaluation de TC après leur formation, il est impossible de déterminer s'ils ont bien compris cette formation ou s'ils devraient suivre une formation d'appoint avant la fin de la période de certification (4 ans). Ainsi, les examens médicaux maritimes peuvent ne pas satisfaire aux normes de TC. Par exemple, un examinateur peut ne pas avoir compris ou retenu les répercussions opérationnelles d'une affection signalée; il risque donc de ne pas poser les questions pertinentes, de ne pas demander de renseignements justificatifs, de ne pas appliquer les restrictions requises, de ne pas recommander une surveillance accrue et de ne pas prendre la bonne décision en ce qui concerne la certification.
Dans le cas de l'examen médical que le capitaine a passé en 2014, rien n'indiquait que le médecin examinateur avait effectué une évaluation complète des affections médicales nouvellement signalées par le capitaine et des antécédents médicaux pertinents, que des restrictions avaient été appliquées ou qu'une surveillance accrue avait été recommandée, comme l'exigent les directives de l'Organisation internationale du Travail (OIT), de l'Organisation maritime internationale (OMI) et de TC sur la gestion de certaines affections médicales et des médicaments connexes.
Si l'on n'évalue pas les médecins examinateurs de la marine pour déterminer si leurs examens sont conformes aux normes de l'OIT, de l'OMI et de TC, il y a un risque qu'on juge un navigant apte à accomplir les tâches requises avec une supervision médicale insuffisante.
2.5.2 Communication et validation des données médicales
Pour évaluer l'état de santé d'un navigant conformément aux exigences de l'OIT et de l'OMI et aux directives de TC, et cerner les risques potentiels que présentent les affections dont il est atteint, les médecins examinateurs doivent avoir accès à des antécédents médicaux complets et exacts. Autrement, il y a un risque que des affections médicales ayant des répercussions considérables sur le rendement au travail ne soient pas détectées.
Il incombe aux navigants de fournir leurs antécédents médicaux pertinents aux médecins examinateurs de la marine. Si un navigant omet de signaler une affection ou un médicament, il est possible qu'on n'en tienne pas compte pendant l'évaluation de son aptitude au travail. La communication complète des antécédents médicaux (y compris les médicaments) est d'autant plus importante lorsque chaque examen est effectué par un médecin examinateur de la marine différent. Autrement, il est possible qu'une décision soit prise en fonction de renseignements incomplets pendant l'examen.
Dans le cas de l'événement à l'étude, on a constaté que le capitaine présentait des antécédents familiaux considérables et prenait des médicaments pour gérer l'une des affections dont il souffrait, laquelle s'était manifestée en 2008. Cette affection figurait dans le dossier médical du médecin de famille du capitaine, lequel n'effectuait pas les examens médicaux maritimes de TC. Le médecin de famille avait également rédigé une lettre pour recommander que le capitaine fasse l'objet de restrictions géographiques et fonctionnelles en raison des affections dont il était atteint. Toutefois, cette affection, les médicaments et les antécédents médicaux n'ont été inscrits au dossier de TC qu'en 2014, et la lettre du médecin de famille n'y a jamais été ajoutée.
À l'heure actuelle, les navigants n'ont pas l'obligation de visiter le même médecin examinateur chaque année ni de fournir les dossiers de leur médecin de famille et leur certificat médical maritime de TC précédent à un nouveau médecin examinateur; le médecin examinateur qui a examiné le capitaine en 2014 n'avait donc pas la documentation requise pour confirmer les affections médicales signalées par le capitaine.
Si les renseignements médicaux d'un navigant et les dossiers médicaux connexes sont incomplets (c.-à-d., si le navigant ne communique pas tous les renseignements et que le médecin examinateur de la marine ne demande pas de données justificatives pour confirmer les dossiers du navigant), il y a un risque accru que des affections médicales appréciables ne soient pas détectées et qu'il soit permis au navigant d'accomplir ses tâches, même s'il n'est pas médicalement apte, ce qui augmente les risques d'accident.
2.5.3 Évaluation de l'aptitude au travail
Si un navigant signale une nouvelle affection médicale ou la prise d'un nouveau médicament au médecin examinateur, un formulaire de couleur doit être joint au dossier du navigant une fois qu'on l'a envoyé à TC à des fins d'évaluation. Avant de délivrer un certificat médical maritime, il faut effectuer un examen approfondi de la documentation justificative jointe au dossier ou une comparaison avec les résultats d'examens précédents. Il peut s'écouler jusqu'à 6 mois avant la délivrance du certificat; durant ce temps, le navigant dispose d'un certificat médical provisoire en fonction des résultats de l'examen.
La procédure d'examen approfondi des dossiers a été mise en œuvre pour veiller à ce que les dossiers prioritaires soient évalués avant les dossiers moins urgents. Toutefois, seulement 5 médecins sont chargés de l'examen de toutes les évaluations médicales maritimes au Canada. Ainsi, seuls les dossiers signalés peuvent faire l'objet d'un examen détaillé; les dossiers qui n'ont pas été signalés peuvent ne faire l'objet que d'une brève vérification. Si un dossier qui n'a pas été signalé comprend des renseignements médicaux contradictoires ou de nouvelles affections, TC peut ne pas les remarquer, et le navigant peut recevoir un certificat médical maritime qui ne correspond pas à son état.
Le capitaine en cause dans l'événement à l'étude avait passé un examen médical maritime en 2014, et le dossier envoyé à TC ne comprenait pas d'indication qu'un examen approfondi était requis ou que le capitaine devait faire l'objet d'une surveillance accrue en raison de ses affections médicales et des médicaments qu'il prenait. Toutefois, le médecin examinateur de la marine avait, dans son rapport d'examen médical maritime, recommandé l'application d'une restriction géographique justifiée par l'une des affections du capitaine. Comme le dossier n'était pas marqué comme étant urgent, rien n'indiquait que TC avait effectué un examen approfondi des affections et des médicaments du capitaine ou avait demandé des renseignements justificatifs connexes pour plus d'une affection après avoir reçu le dossier. Ainsi, on a délivré au capitaine un certificat médical maritime qui ne comportait pas la restriction géographique recommandée par le médecin examinateur de la marine, et l'on n'a pas justifié cette décision comme l'exigent les directives de l'OIT, de l'OMI et de TC. Sans examen approfondi ou demande connexe de renseignements justificatifs, il est impossible d'établir avec certitude si des restrictions sont requises. En absence de telles indications, on a jugé que le capitaine était apte au travail, sans restrictions.
Si l'on délivre un certificat médical maritime provisoire à un navigant sans disposer de tous les renseignements requis, il y a un risque qu'un navigant travaille pendant une période allant jusqu'à 6 mois, bien qu'il soit médicalement inapte.
Si les omissions dans le processus d'examen médical ne sont pas cernées et corrigées avant la délivrance d'un certificat médical maritime, il y a un risque qu'un navigant travaille pendant encore 18 mois, bien qu'il soit médicalement inapte.
2.6 Gestion des passagers
2.6.1 Annonces aux passagers et alarmes
Pour veiller à ce que les passagers soient prêts à réagir à une situation d'urgence, il est important de les gérer de manière appropriée à chaque étape de la traversée. Il faut notamment les diriger vers une zone sécuritaire pour le voyage, les empêcher d'accéder aux zones dangereuses et les guider vers un point de rassemblement en cas d'évacuation. De plus, selon les procédures du navire et la formation offerte aux membres de l'équipage, ces derniers doivent assumer les interventions d'urgence qui leur sont attribuées dès que sonne l'alarme.
À bord du Grace Sparkes, 3 annonces de sécurité différentes doivent être transmises aux passagers pendant la traversée : 2 au moment du départ, environ, et 1 à l'arrivée, soit les étapes de la traversée où la charge de travail est la plus élevée. De plus, le navire effectue quotidiennement de multiples départs et arrivées, avec une escale de seulement 30 minutes dans certains cas. Dans de telles circonstances, les membres d'équipage sont susceptibles d'être distraits; ils peuvent donc oublier de diffuser une annonce ou avoir de la difficulté à se rappeler si une annonce a été diffusée. Si les annonces ne sont pas diffusées, les passagers ne reçoivent pas de renseignements sur ce qu'ils doivent faire après l'embarquement, sur l'endroit où ils doivent se trouver pendant le voyage, sur l'endroit où les gilets de sauvetage sont rangés ou sur l'emplacement du point de rassemblement.
Dans le cas de l'événement à l'étude, il a été impossible de déterminer avec certitude si les annonces enregistrées ont été diffusées. Le cas échéant, elles n'ont pas été diffusées dans tout le navire en raison de la défectuosité de la carte de programmation du système de diffusion publique. Il est toutefois certain que, lorsque le navire a heurté le récif Burnside, les passagers n'ont pas été informés de l'urgence potentielle à l'aide du système de diffusion publique ou d'une alarme. Ce manque d'information aurait réduit leur capacité à comprendre et à prédire ce qu'on attendait d'eux dans une telle situation.
De plus, lorsque le navire a heurté le récif, le capitaine s'est concentré sur la navigation jusqu'au quai, un endroit qu'il jugeait sécuritaire; il n'a donc pas déclenché l'alarme et n'a pas demandé au capitaine en second de le faire.
Si l'on n'utilise pas les annonces de sécurité destinées aux passagers et les alarmes pour transmettre des renseignements de sécurité ou signaler une situation d'urgence, il y a un risque que les passagers et l'équipage ne soient pas prêts à réagir à une situation d'urgence de manière sécuritaire et rapide.
2.6.2 Équipement de sauvetage
L'équipement de sauvetage à bord des navires à passagers doit être adéquatement identifié pour qu'il soit facile de le trouver en cas d'urgence. L'identification et le rangement de l'équipement de sauvetage sont assujettis à des exigences liées aux règlements et à la vérification, lesquelles portent notamment sur la salle ou le contenant dans lequel cet équipement doit être rangé; toutefois, ces exigences ne touchent pas la signalisation indiquant aux passagers les endroits où l'équipement est rangé.
Le Règlement sur l'équipement de sauvetage, la Convention internationale pour la sauvegarde de la vie humaine en mer (SOLAS) et la résolution A.760 de l'OMI précisent tous que les gilets de sauvetage doivent être clairement identifiés, conformément aux normes de conception énoncées. Il n'existe pas d'exigences précises sur l'installation de signalisation indiquant l'emplacement des gilets de sauvetage dans le navire ou au nombre d'enseignes qui doivent être installées. De plus, le Règlement sur l'équipement de sauvetage actuel n'exige pas l'installation de signalisation dans tout le navire pour indiquer l'emplacement des contenants de rangement des gilets de sauvetage. Par exemple, les contenants de gilets de sauvetage à bord du Grace Sparkes étaient identifiés, mais ils se trouvaient sur le pont à l'arrière du salon des passagers et ainsi n'étaient visibles que depuis une certaine partie du salon des passagers. Les autres pièces d'équipement de sauvetage qu'il faut apporter dans les bateaux/radeaux de sauvetage dans une situation d'abandon du navire étaient identifiées conformément à ces exigences. Toutefois, certaines pièces d'équipement étaient rangées dans des armoires ou des contenants non identifiés; les passagers et l'équipage auraient donc eu de la difficulté à les trouver en cas d'urgence.
Dans le cas de l'événement à l'étude, on a jugé qu'il était acceptable d'identifier le contenant de rangement des gilets de sauvetage. Même s'il est important d'identifier les contenants pour veiller à ce que les passagers puissent trouver les gilets de sauvetage, ceux-ci doivent d'abord être en mesure de repérer les contenants. Si les contenants ne se trouvent pas dans un endroit accessible aux passagers ou à proximité du point de rassemblement, il se pourrait que les passagers ne puissent pas trouver l'équipement de sauvetage rapidement.
À bord du Grace Sparkes, les contenants des gilets de sauvetage étaient identifiés conformément aux exigences réglementaires; toutefois, la réglementation n'exige pas l'installation de signalisation pour indiquer l'emplacement des contenants.
2.6.3 Procédures et exercices d'urgence
On peut utiliser les procédures d'urgence documentées pour évaluer le rendement de l'équipage pendant un exercice, pour former des nouveaux membres d'équipage, pour optimiser et améliorer les procédures, et pour s'assurer que les membres d'équipage peuvent se remplacer ou s'entraider, au besoin.
Si la gestion de la sécurité des passagers n'a pas constitué une cause ou un facteur contributif de l'événement à l'étude, les procédures documentées utilisées à bord du Grace Sparkes présentaient des lacunes à cet égard, notamment en ce qui concernait la préparation à l'abandon du navire. Le rôle d'appel, la liste de vérification afférente au point de rassemblement des passagers, le(s) plan(s) d'évacuation et les listes de vérification relatives aux procédures d'urgence ne comportaient pas de détails pertinents, tels les suivants :
- comment fouiller tous les endroits du navire et en récupérer tous les passagers, et les personnes responsables de cette tâche;
- comment obtenir rapidement un décompte exact des passagers au point de rassemblement;
- comment aider les personnes blessées ou handicapées; et
- comment retrouver et secourir les passagers manquant à l'appel, et les personnes responsables de cette tâche.
En fait, selon la liste de vérification afférente au point de rassemblement des passagers, les 2 derniers points n'étaient effectués qu'après le rassemblement initial des passagers, au moment où le capitaine devait élaborer un plan ad hoc. Comme il n'existait pas de procédures préalablement définies pour les activités susmentionnées, il était impossible de savoir si le membre de l'équipage à qui incombaient ces tâches pouvait toutes les effectuer. De plus, sans procédures documentées, la compagnie ne pouvait pas s'assurer que les membres d'équipage étaient en mesure d'accomplir leurs tâches, ou de les faire de manière cohérente.
Il est important que les exercices de sécurité des passagers soient réalistes. À bord du Grace Sparkes, seuls les membres d'équipage participaient aux exercices, ce qui signifie que l'équipage ne pouvait pas exercer les tâches de gestion des passagers de manière réaliste ou s'assurer que ces tâches étaient accomplies judicieusement.
Si les membres d'équipage n'ont pas accès à des procédures complètes et documentées et ne participent pas à des exercices réalistes de rassemblement et de dénombrement des passagers, ils pourraient être incapables d'accomplir ces tâches de manière efficace en situation d'urgence, ce qui fait croître les risques pour la sécurité des passagers.
2.6.4 Effectif minimal de sécurité
Le succès des procédures d'urgence à bord d'un navire dépend grandement du nombre de membres d'équipage et des qualifications de ceux-ci pour les tâches requises. À bord des navires à passagers, la gestion sécuritaire des passagers constitue une grande partie de toute intervention d'urgence. C'est pourquoi l'évaluation de l'effectif minimal de sécurité comprend la définition du nombre de membres d'équipage requis pour s'acquitter des tâches de « contrôle des passagers ».
Dans le cas de l'événement à l'étude, l'inspecteur de TC qui avait évalué l'effectif minimal de sécurité du Grace Sparkes n'a pas suivi la directive de travail prescrite, et a plutôt attribué 1 membre d'équipage à 50 passagers. Ce nombre correspond à celui du document sur l'effectif minimal de sécurité (DEMS) délivré à l'exploitant du navire pour le transport de 50 passagers, ainsi que du rôle d'appel et du plan d'évacuation connexes. Un autre membre d'équipage devait être ajouté au DEMS pour le transport de 80 passagers. Toutefois, ce membre d'équipage supplémentaire était un mécanicien certifié, à qui l'on n'avait pas attribué de tâche de contrôle de passagers dans le rôle d'appel. Ainsi, un seul membre d'équipage était chargé de toutes les tâches de contrôle de passagers. C'est aussi ce qu'indiquaient le rôle d'appel et le plan d'évacuation du navire.
Comme le Grace Sparkes comportait de multiples ponts, les directives de travail de TC pour l'évaluation de l'effectif minimal de sécurité exigeaient qu'au moins 2 membres d'équipage soient affectés aux tâches de contrôle des passagers, et ce, peu importe si le navire transportait 50 ou 80 passagers. Même si l'on indiquait dans la liste de vérification pour le point de rassemblement du navire qu'il fallait obtenir de l'aide pour effectuer les tâches de contrôle des passagers au point de rassemblement, on y indiquait que le contrôleur de foule devait demander l'aide d'un passager au lieu d'accroître le nombre de membres d'équipage.
Finalement, le MTTP ne possédait aucune procédure détaillée sur le rassemblement et le dénombrement des passagers, ce qui signifie qu'il n'existait aucune référence facilitant la définition du nombre de membres d'équipage devant être affectés à ces tâches.
Si l'on ne tient pas compte des caractéristiques du navire et de l'ensemble des procédures d'urgence liées au rassemblement et au dénombrement des passagers dans le cadre du processus d'évaluation de l'effectif minimal de sécurité, il y a un risque que l'équipage ne comporte pas assez de membres pour réagir efficacement à une situation d'urgence.
2.6.5 Supervision adéquate par l'organisme de réglementation
Des enquêtes précédentes du BSTNote de bas de page 64 ont permis de cerner certaines lacunes et certains risques liés à la préparation des équipages des navires à passagers canadiens pour le rassemblement et le dénombrement des passagers en situation d'urgence. En réponse aux recommandations du BST pour corriger cette lacune, TC a pris des règlements qui exigent que le rôle d'appel d'un navire à passagers comprenne des tâches portant tout particulièrement sur la sécurité des passagers, que l'on élabore les procédures nécessaires pour exécuter ces tâches, et que des exercices soient effectués pour s'exercer à accomplir ces tâches. TC n'a ni élaboré ni promulgué de lignes directrices pour aider le secteur d'activité et les inspecteurs à interpréter correctement ces règlements et à les mettre en œuvre.
L'avis courriel FLAGSTATENET 06-2014, intitulé « Exigences réglementaires liées à l'inspection ou à la surveillance de tous les bâtiments et exigences additionnelles applicables aux navires à passagers », émis par TC en juillet 2014 portait sur ces exigences réglementaires. Toutefois, environ 1 an après la publication de cet avis, ni les experts de la société de classification ni les inspecteurs de la sécurité maritime de TC n'avaient modifié leurs procédures d'inspection en fonction de ces exigences. De plus, l'avis lui-même comportait des lacunes. On n'y attirait pas l'attention sur les exigences liées à des procédures précises ou au réalisme des exercices, et on n'y offrait pas de directives ni d'interprétation pour aider les inspecteurs à évaluer la conformité à la réglementation des procédures et des exercices.
Dans le cas de l'événement à l'étude, on s'assurait que le rôle d'appel se trouvait à bord du Grace Sparkes dans le cadre des inspections annuelles obligatoires, mais on ne vérifiait pas la conformité à la réglementation du contenu de celui-ci. Ni le rôle d'appel ni la liste de vérification afférente au point de rassemblement des passagers ne désignaient la personne à qui incombait la tâche de trouver et de secourir les passagers manquant à l'appel, ce qu'exige la réglementation.
La campagne d'inspection ciblée (CIC) de TC a constitué une bonne initiative contribuant à l'identification des problèmes liés à la sécurité de la flotte de navires à passagers du Canada. Toutefois, cette campagne ne ciblait pas expressément les procédures et les exercices de rassemblement et de dénombrement des passagers. Ainsi, les questions et les directives de la CIC à ce sujet n'offraient pas suffisamment de détails ou d'explications pour enrichir la compréhension de l'enjeu. Par exemple :
- Les directives pour la question 5 font référence à la réglementation qui exige des procédures de recherche et de secours des passagers, mais ne comprennent aucune recommandation sur l'évaluation de la pertinence des procédures.
- En ce qui concerne les exercices, on met l'accent sur la réduction au minimum des perturbations à l'exploitation du navire au lieu de s'assurer que les tâches de rassemblement et de dénombrement des passagers sont effectuées de manière réaliste (et on n'énonce aucune directive sur ce qui constitue un exercice « réaliste »).
- La décision d'effectuer les exercices avec des passagers ou non revient aux inspecteurs, ce qui signifie qu'il est impossible d'assurer l'uniformité des évaluations d'exercices.
- Le dénombrement des passagers fait partie de l'exercice d'abandon du navire seulement. Cela peut donner l'impression que le dénombrement des passagers n'est nécessaire que lorsque la situation exige l'abandon du navire; en réalité, il existe des scénarios de nombreux types et niveaux justifiant le dénombrement des passagers, et ce, qu'il soit nécessaire d'abandonner le navire ou non. Par exemple, en cas d'incendie, pendant qu'on s'affaire à le maîtriser, il est nécessaire d'effectuer un dénombrement exact des passagers pour veiller à ce que les passagers en difficulté reçoivent l'aide dont ils ont besoin.
- Les directives sur les exercices d'abandon du navire indiquent qu'il faut « simuler une opération de recherche et de sauvetage des passagers prisonniers dans leur cabine ». Cela laisse entendre qu'on doit effectuer une recherche seulement si l'on constate qu'un passager manque à l'appel et doit être secouru; toutefois, en raison des difficultés de dénombrement exact des passagers au point de rassemblementNote de bas de page 65 précédemment définies, il y aurait peut-être lieu de considérer l'exercice de fouille du navire comme une partie intégrante du processus de rassemblement des passagers. De plus, en faisant référence aux cabines en particulier, on peut donner l'impression à l'inspecteur qu'il n'est pas nécessaire d'effectuer des recherches dans les autres parties du navire (p. ex., les toilettes, les quartiers de l'équipage, les ponts-garages).
- On a approuvé l'intégration de la liste de vérification et des directives à toutes les inspections de navires à passagers, et TC met en œuvre plus d'activités de surveillance des inspections que des organismes reconnus (OR) effectuent en son nom. La liste de vérification (comprenant des directives) a également été transmise aux OR; toutefois, TC n'exige pas que cette liste de vérification soit remplie. Ainsi, il est impossible de savoir si l'on intègre celle-ci aux inspections de navires délégués.
- On a remis le document sur les directives aux inspecteurs de TC et aux OR seulement. Le rapport sur la CIC, lequel ne comprenait pas de notes sur ces directives, est disponible en ligne et a été présenté à la réunion du printemps 2015 du Conseil consultatif maritime canadien (CCMC). Toutefois, les représentants autorisés (RA) et les capitaines bénéficieraient aussi de directives pertinentes ou d'une interprétation des exigences, et ce, en raison de leurs responsabilités d'élaboration de procédures et d'organisation d'exercices.
Si, dans le cadre de ses activités de surveillance, TC n'évalue pas l'efficacité des procédures d'urgence liées à la sécurité des passagers, ces procédures risquent de ne pas donner les résultats escomptés.
2.7 Gestion de la sécurité
Pour que la gestion de la sécurité se fasse efficacement au sein d'une entreprise, quelle que soit sa taille, il faut que celle-ci saisisse bien les risques liés à ses activités, qu'elle gère ces risques avec compétence et qu'elle soit résolue à mener ses activités en toute sécurité. La mise en place d'un système de gestion de la sécurité (SGS) s'inscrit dans une approche documentée et systématique qui garantit l'application de méthodes sécuritaires d'exploitation des navires et favorise un milieu de travail sûr. Un tel système impose l'établissement de mesures de protection contre tous les risques recensés, ainsi que l'amélioration continue des compétences en gestion de la sécurité du personnel à terre ou embarqué.
Si l'on définit les rôles et les responsabilités du personnel des navires dans le SGS, les membres d'équipage peuvent toutefois accomplir leurs tâches différemment. Ils peuvent adapter les procédures établies en pratiques équivalentes pour une multitude de raisons, dont le manque de ressources, la pression des délais ou le désir d'éviter toute confrontation. Ces adaptations peuvent se traduire par la création de routines qui deviennent des procédures normales. Pour chaque tâche qu'ils réussissent avec ces routines, les membres d'équipage persistent de plus en plus à croire que leurs adaptations sont sécuritaires, et ce, même s'ils omettent les mesures de protection du SGS dont l'objectif est d'atténuer les risques. Une meilleure compréhension des raisons pour lesquelles on adopte des pratiques différant des procédures définies permettra aux organismes d'intervenir plus efficacement plutôt que de simplement dire aux travailleurs de suivre les règles ou d'être plus prudents.Note de bas de page 66
Dans le cas de l'événement à l'étude, on a constaté les écarts suivants par rapport au SGS de la compagnie :
- On n'a pas apporté les corrections à la carte utilisée pendant le voyage.
- Les pratiques de navigation en vigueur pendant le voyage de l'événement à l'étude différaient des pratiques figurant dans le Manuel de gestion de la sécurité et la liste de vérification remplie pour la traversée.
- Les itinéraires, les points de cheminement, les caps et les positions n'étaient pas indiqués sur la carte électronique utilisée pendant le voyage de l'événement à l'étude.
- La carte sur papier comportait un itinéraire et des points de cheminement, mais pas de caps ou de distances.
- On n'a pas suivi la procédure d'urgence en cas de collision avec un objet fixe, laquelle comprenait le déclenchement de l'alarme générale, la diffusion d'une annonce aux passagers et le dénombrement des passagers.
- On n'a pas diffusé les annonces de sécurité destinées aux passagers.
- On n'a pas appliqué la politique sur les véhicules à passagers pendant le voyage de l'événement à l'étude.
Le SGS comprenait des vérifications internes et externes ayant pour objectif l'identification des écarts des procédures documentées et des adaptations de ces procédures. Au cours de l'année précédente, on avait effectué une vérification interne et une vérification externe à bord du Grace Sparkes, et l'on avait observé des non-conformités et des problèmes dans les deux cas. Toutefois, le SGS ne comportait pas de mécanisme permettant de vérifier si les problèmes et les non-conformités avaient été éliminés, à l'exception de la signature du formulaire de suivi, d'une note dans le registre de suivi, et d'un rapport de vérification conservé à des fins de tenue des dossiers. Les mesures de suivi visant à confirmer l'élimination des non-conformités et des problèmes permettent de s'assurer que les risques connexes ont été gérés conformément au SGS.
Si aucun processus de suivi n'est en place pour s'assurer que les non-conformités et les autres problèmes soulevés dans le cadre d'une vérification de sécurité ont été éliminés, il y a un risque que des situations dangereuses et des écarts du SGS de la compagnie persistent.
3.0 Faits établis
3.1 Faits établis quant aux causes et aux facteurs contributifs
- Le Grace Sparkes s'est écarté de l'itinéraire figurant dans le plan de traversée standard.
- Le navire a pénétré dans le chenal, puis le capitaine s'est concentré sur le guidage du navire, ce qui a réduit sa capacité à en surveiller la position.
- En raison d'une surveillance insuffisante, l'équipe à la passerelle n'avait pas conscience de la position du navire jusqu'à ce que celui-ci heurte le récif Burnside.
3.2 Faits établis quant aux risques
- Si l'on ne contre-vérifie pas les aides à la navigation ou que leurs fonctions respectives, dont les alarmes, ne sont pas configurées de manière optimale, l'équipe à la passerelle risque de ne pas avoir accès à des renseignements potentiellement utiles à la navigation sécuritaire du navire.
- Si tous les membres de l'équipe à la passerelle n'ont pas suivi de formation officielle en GRP ou ne maintiennent pas de compétences en gestion des ressources à la passerelle, il y a un risque accru que la conscience situationnelle soit appauvrie, surtout dans les parties à risques élevés des traversées, comme la navigation en eaux restreintes.
- Si l'on n'évalue pas les médecins examinateurs de la marine pour déterminer si leurs examens sont conformes aux normes de l'Organisation internationale du Travail, de l'Organisation maritime internationale et de Transports Canada, il y a un risque qu'on juge un navigant apte à accomplir les tâches requises avec une supervision médicale insuffisante.
- Si les renseignements médicaux d'un navigant et les dossiers médicaux connexes sont incomplets (c.-à-d., si le navigant ne communique pas tous les renseignements et que le médecin examinateur de la marine ne demande pas de données justificatives pour confirmer les dossiers du navigant), il y a un risque accru que des affections médicales appréciables ne soient pas détectées et qu'il soit permis au navigant d'accomplir ses tâches même s'il n'est pas médicalement apte, ce qui augmente les risques d'accident.
- Si l'on délivre un certificat médical maritime provisoire à un navigant sans disposer de tous les renseignements requis, il y a un risque qu'un navigant travaille pendant une période allant jusqu'à 6 mois, bien qu'il soit médicalement inapte.
- Si les omissions dans le processus d'examen médical ne sont pas cernées et corrigées avant la délivrance d'un certificat médical maritime, il y a un risque qu'un navigant travaille pendant encore 18 mois, bien qu'il soit médicalement inapte.
- Si l'on n'utilise pas les annonces de sécurité destinées aux passagers et les alarmes pour transmettre des renseignements de sécurité ou signaler une situation d'urgence, il y a un risque que les passagers et l'équipage ne soient pas prêts à réagir à une situation d'urgence de manière sécuritaire et rapide.
- Si les membres d'équipage n'ont pas accès à des procédures complètes et documentées et ne participent pas à des exercices réalistes de rassemblement et de dénombrement des passagers, ils pourraient être incapables d'accomplir ces tâches de manière efficace en situation d'urgence, ce qui fait croître les risques pour la sécurité des passagers.
- Si l'on ne tient pas compte des caractéristiques du navire et de l'ensemble des procédures d'urgence liées au rassemblement et au dénombrement des passagers dans le cadre du processus d'évaluation de l'effectif minimal de sécurité, il y a un risque que l'équipage ne comporte pas assez de membres pour réagir efficacement à une situation d'urgence.
- Si, dans le cadre de ses activités de surveillance, Transports Canada n'évalue pas l'efficacité des procédures d'urgence liées à la sécurité des passagers, ces procédures risquent de ne pas donner les résultats escomptés.
- Si aucun processus de suivi n'est en place pour s'assurer que les non-conformités et les autres problèmes soulevés dans le cadre d'une vérification de sécurité ont été éliminés, il y a un risque que des situations dangereuses et des écarts du système de gestion de la sécurité de la compagnie persistent.
3.3 Autres faits établis
- À bord du Grace Sparkes, les contenants des gilets de sauvetage étaient identifiés conformément aux exigences réglementaires; toutefois, la réglementation n'exige pas l'installation de signalisation pour indiquer l'emplacement des contenants.
4.0 Mesures de sécurité
4.1 Mesures de sécurité prises
4.1.1 Bureau de la sécurité des transports du Canada
Le 17 mars 2015, le Bureau de la sécurité des transports du Canada (BST) a transmis la Lettre d'information sur la sécurité maritime (MSI) 02/15 au ministère des Transports et des Travaux publics (MTTP) de Terre-Neuve-et-Labrador. Dans cette lettre, le BST informait le MTTP des différents problèmes qu'il avait constatés dans le cadre de son enquête, notamment les radars, les systèmes de cartes électroniques, la préparation aux situations d'urgence, la sécurité des passagers et le dénombrement des passagers.
4.1.2 Ministère des Transports et des Travaux publics de Terre-Neuve-et-Labrador
Le MTTP a répondu à la MSI 02/15 le 13 mai 2015. Le capitaine et l'équipage de navire ont été mis au courant du contenu de la lettre, puis on a effectué une enquête interne et technique complète, ainsi qu'une vérification interne. Cette vérification interne s'est traduite par la mise en œuvre des mesures correctives suivantes :
- On a renvoyé les procédures de correction des cartes à tous les navires de la flotte.
- On a installé de la signalisation et des flèches à bord des navires pour indiquer l'emplacement des gilets de sauvetage.
- On a installé des marques indiquant l'emplacement de la trousse de premiers soins.
- On a solidifié le montage des contenants de rangement dans le salon des passagers.
- On a réparé la composante des annonces enregistrées automatiques du système de diffusion publique.
- De plus, on a installé 2 nouveaux projecteurs sur le Grace Sparkes en février 2015.
En plus de ce qui précède, le MTTP a indiqué au BST qu'il avait mis en œuvre les mesures de sécurité suivantes :
- Il a envoyé une lettre de service à tous ses navires pour clarifier les procédures sur le dénombrement précis des passagers, et pour demander aux équipages de noter le nombre de passagers à bord et de transmettre ce nombre au personnel à terre avant chaque départ.
- Il a amorcé une vérification de la signalisation et des annonces de sécurité à bord de tous ses navires.
- Il a répété à ses équipages que le temps nécessaire aux exercices et à la prise d'autres précautions a préséance sur l'horaire du service, et qu'ils peuvent demander du temps supplémentaire (pendant ou après l'horaire) pour effectuer les exercices requis.
Le présent rapport conclut l'enquête du Bureau de la sécurité des transports sur cet événement. Le Bureau a autorisé la publication de ce rapport le . Le rapport a été officiellement publié le .
Annexes
Annexe A – Aménagement général et de la passerelle du Grace Sparkes
Source : Ministère des Transports et des Travaux publics de Terre-Neuve-et-Labrador [en anglais seulement] (avec annotations du BST)
Annexe B – Lieu de l'événement à l'étude
Annexe C – Dommages au bordé extérieur
Annexe D – Dommages à la quille de roulis
Annexe E – Plan de traversée standard du Grace Sparkes
Annexe F - Liste de vérification pour les exercices d'embarcation et d'incendie
| Le capitaine du navire doit s'assurer que les membres d'équipage accomplissent les tâches qui leur incombent, dont les suivantes : | |
| Rassembler les passagers | |
| Trouver et secourir les passagers manquant à l'appel | |
| Trouver et secourir les membres d'équipage manquant à l'appel | |
Vérifier le fonctionnement des portes étanches pendant chaque exercice d'incendie
|
|
| Vérifier le fonctionnement des portes coupe-feu, des registres coupe-feu, et des entrées et sorties principales du système de ventilation | |
| Fermer les portes coupe-feu, les robinets, les dalots autovideurs, les écoutillons latéraux, les claires-voies, les hublots et les autres ouvertures semblables | |
| Inspecter et faire fonctionner la pompe d'incendie et la pompe d'incendie de secours (le cas échéant) avec au moins 2 jets d'eau | |
| Inspecter l'équipement de lutte contre les incendies à bord du navire | |
| Vérifier les uniformes ignifugés et tout autre équipement de sauvetage personnel | |
| Inspecter le système de gicleurs | |
| Inspecter le système d'alarme d'incendie | |
| Inspecter le système de détection d'incendie | |
| Vérifier les boyaux et les bornes d'incendie | |
| Inspecter et tester l'équipement de communication pertinent, dont le système de sonorisation, les alarmes et les klaxons | |
| Inspecter et tester les dispositifs d'éclairage et les systèmes d'alimentation électrique d'urgence | |
| Préparer l'embarcation de sauvetage et l'équipement connexe | |
| Prendre les dispositions nécessaires à l'abandon potentiel du navire | |
Version : 2 Nº de doc. : SMS 01DD
Entrée en vigueur : Janv. 2011
Annexe G – Questionnaire de la campagne d'inspection ciblée
Questionnaire de la campagne d'inspection ciblée
Règlement sur les exercices d'incendie et d'embarcation et Règlement sur l'équipement de sauvetage
| Nom du bâtiment | |
| Numéro officiel | |
| Date d'inspection |
| Nº | Question | Oui | Non | S.O. |
|---|---|---|---|---|
| Examen de la documentation | ||||
| 1 | La documentation du bâtiment est-elle en règle et à jour? | |||
| 2 | S'il existe des décisions du BETMM au sujet des équipements de sauvetage et de lutte contre les incendies, les conditions d'approbation sont-elles respectées? | |||
| 3 | Y a-t-il des anomalies en suspens qui datent de l'inspection périodique précédente en ce qui a trait à l'équipement de sauvetage et de lutte contre les incendies? | |||
| 4 | Le rôle d'appel est-il satisfaisant? | |||
| 5 | Y a-t-il d'autres procédures d'urgence écrites qui ne figurent pas dans le rôle d'appel? | |||
| 6 | L'équipage a-t-il suivi la familiarisation et la formation sur la sécurité à bord? | |||
| 7 | Y a-t-il des manuels de formation à bord qui expliquent la façon d'utiliser l'équipement de sauvetage du bâtiment? | |||
| 8 | Les essais, l'entretien et les inspections de l'équipement de sauvetage et de lutte contre les incendies sont-ils consignés? | |||
| 9 | Tient-on un registre des passagers qui ont besoin d'assistance? | |||
| 10 | Y a-t-il une procédure en place permettant de reconnaître les passagers qui ont des besoins particuliers? | |||
| Vérification de procédure | ||||
| 11 | Procède-t-on au dénombrement des passagers? | |||
| 12 | Le plan de lutte contre les incendies est-il satisfaisant? | |||
| 13 | Le plan sur l'équipement de sauvetage est-il satisfaisant? | |||
| 14 | Le capitaine est-il conscient des obligations en vertu des articles 20 à 24 et de l'annexe du Règlement sur les exercices d'incendie et d'embarcation ? | |||
| 15 | Les portes étanches fonctionnent-elles correctement et sont-elles en bon état de marche (pour les opérations quotidiennes)? | |||
| 16 | S'assure-t-on que les portes d'incendie sont hermétiquement fermées? | |||
| 17 | Mener une inspection générale du bâtiment et vérifier ce qui suit : | |||
|
||||
|
||||
|
||||
|
||||
|
||||
| Exercices (en mener un ou plusieurs) | ||||
| 18 | Le capitaine et l'équipage ont-ils effectué un exercice d'incendie satisfaisant? | |||
| 19 | Le capitaine et l'équipage ont-ils apporté la preuve d'un exercice satisfaisant d'abandon du bâtiment? Le dénombrement des passagers s'est-il déroulé de manière satisfaisante au poste de rassemblement? | |||
Nota – Pour tous les éléments où on a coché « Non », prière de donner la raison dans le champ des commentaires prévu (pour chacun).
| Point no | Commentaires |
|---|---|
Si l'espace est insuffisant, joindre des feuilles volantes.
Annexe H – Résumé des résultats du questionnaire de la campagne d'inspection ciblée
| Numéro | Question | Oui | Non | S. O. | TOTAL | % de non |
| Examen de la documentation | ||||||
|---|---|---|---|---|---|---|
| 1 | La documentation du bâtiment est-elle en règle et à jour? | 47 | 13 | 0 | 60 | 22 % |
| 2 | S'il existe des décisions du BETMM au sujet des équipements de sauvetage et de lutte contre les incendies, les conditions d'approbation sont-elles respectées? | 19 | 6 | 30 | 55 | 24 % |
| 3 | Y a-t-il des anomalies en suspens qui datent de l'inspection périodique précédente en ce qui a trait à l'équipement de sauvetage et de lutte contre les incendies? | 6 | 53 | 0 | 59 | 90 % |
| 4 | Le rôle d'appel est-il satisfaisant? | 34 | 20 | 6 | 60 | 37 % |
| 5 | Y a-t-il d'autres procédures d'urgence écrites qui ne figurent pas dans le rôle d'appel? | 29 | 27 | 3 | 59 | 48 % |
| 6 | L'équipage a-t-il suivi la familiarisation et la formation sur la sécurité à bord? | 53 | 7 | 0 | 60 | 12 % |
| 7 | Y a-t-il des manuels de formation à bord qui expliquent la façon d'utiliser l'équipement de sauvetage du bâtiment? | 43 | 16 | 1 | 60 | 27 % |
| 8 | Les essais, l'entretien et les inspections de l'équipement de sauvetage et de lutte contre les incendies sont-ils consignés? | 43 | 16 | 1 | 60 | 27 % |
| 9 | Tient-on un registre des passagers qui ont besoin d'assistance? | 15 | 39 | 5 | 59 | 72 % |
| 10 | Y a-t-il une procédure en place permettant de reconnaître les passagers qui ont des besoins particuliers? | 18 | 38 | 4 | 60 | 68 % |
| Vérification de procédure | ||||||
| 11 | Procède-t-on au dénombrement des passagers? | 56 | 3 | 1 | 59 | 5 % |
| 12 | Le plan de lutte contre les incendies est-il satisfaisant? | 30 | 25 | 5 | 55 | 45 % |
| 13 | Le plan sur l'équipement de sauvetage est-il satisfaisant? | 35 | 23 | 2 | 58 | 40 % |
| 14 | Le capitaine est-il conscient des obligations en vertu des articles 20 à 24 et de l'annexe du Règlement sur les exercices d'incendie et d'embarcation ? | 50 | 9 | 1 | 59 | 15 % |
| 15 | Les portes étanches fonctionnent-elles correctement et sont-elles en bon état de marche (pour les opérations quotidiennes)? | 19 | 2 | 39 | 21 | 10 % |
| 16 | S'assure-t-on que les portes d'incendie sont hermétiquement fermées? | 22 | 2 | 36 | 24 | 8 % |
| 17 | Mener une inspection générale du bâtiment et vérifier ce qui suit : | |||||
|
52 | 8 | 0 | 60 | 13 % | |
|
57 | 3 | 0 | 60 | 5 % | |
|
51 | 7 | 0 | 58 | 12 % | |
|
35 | 16 | 9 | 51 | 31 % | |
|
40 | 14 | 6 | 54 | 26 % | |
| Exercices (en mener un ou plusieurs) | ||||||
| 18 | Le capitaine et l'équipage ont-ils effectué un exercice d'incendie satisfaisant? | 51 | 6 | 3 | 57 | 11 % |
| 19 | Le capitaine et l'équipage ont-ils apporté la preuve d'un exercice satisfaisant d'abandon du bâtiment? Le dénombrement des passagers s'est-il déroulé de manière satisfaisante au poste de rassemblement? | 50 | 6 | 3 | 56 | 11 % |
Nota – le % de « non » repose sur les totaux de « oui » et d'absence de réponse. Il ne tient pas compte des « sans objet ».