Marine Investigation Report M15A0009

Bottom contact
Roll-on roll-off passenger ferry Grace Sparkes
Burnside, Newfoundland and Labrador

The Transportation Safety Board of Canada (TSB) investigated this occurrence for the purpose of advancing transportation safety. It is not the function of the Board to assign fault or determine civil or criminal liability. This report is not created for use in the context of legal, disciplinary or other proceedings. See Ownership and use of content.

Table of contents

    Summary

    On 21 January 2015, at 1746 Newfoundland Standard Time, the roll-on roll-off passenger ferry Grace Sparkes, with 8 crew and 4 passengers on board, was transiting the harbour channel at Burnside, Newfoundland and Labrador, when it struck Burnside Rock. The vessel continued its voyage and docked at Burnside a few minutes later. There were no injuries or pollution, but the vessel sustained damage to the hull and the bilge keel.

    1.0 Factual information

    1.1 Particulars of the vessel

    Table 1. Particulars of the vessel
    Name of vessel Grace Sparkes
    Registry/Licence number 835419
    Port of registry St. John’s, Newfoundland and Labrador
    Flag Canada
    Type Roll-on roll-off passenger ferry
    Gross tonnage 939
    Length 38.45 m
    Draft Forward: 2.8 m
    Aft: 2.8 m
    Built 2011
    Propulsion Two 600 kW engine-driven propellers mounted on steerable pods (pod thrusters)
    Maximum capacity of vessel 50 passengers and 8 crew
    16 passenger vehicles or 1 tractor-trailer and 11 passenger vehicles
    On board at time of occurrence 8 crew and 4 passengers
    1 passenger vehicle
    Registered owner / manager Department of Transportation and Works, Newfoundland and Labrador

    1.2 Description of the vessel

    The passenger ferry Grace Sparkes (Photo 1) was built in 2011. It is 1 of 2 sister vessels operated by the Department of Transportation and Works (DTW) of Newfoundland and Labrador. The stern is open on the vehicle deck, and the bow is enclosed by a bow visorFootnote 1 that can be hydraulically raised and lowered.

    Photo 1. Grace Sparkes (Source: Gander Beacon)
    Image
    Image of the water shipping on board the Lasqueti Daughters via the bow ramp

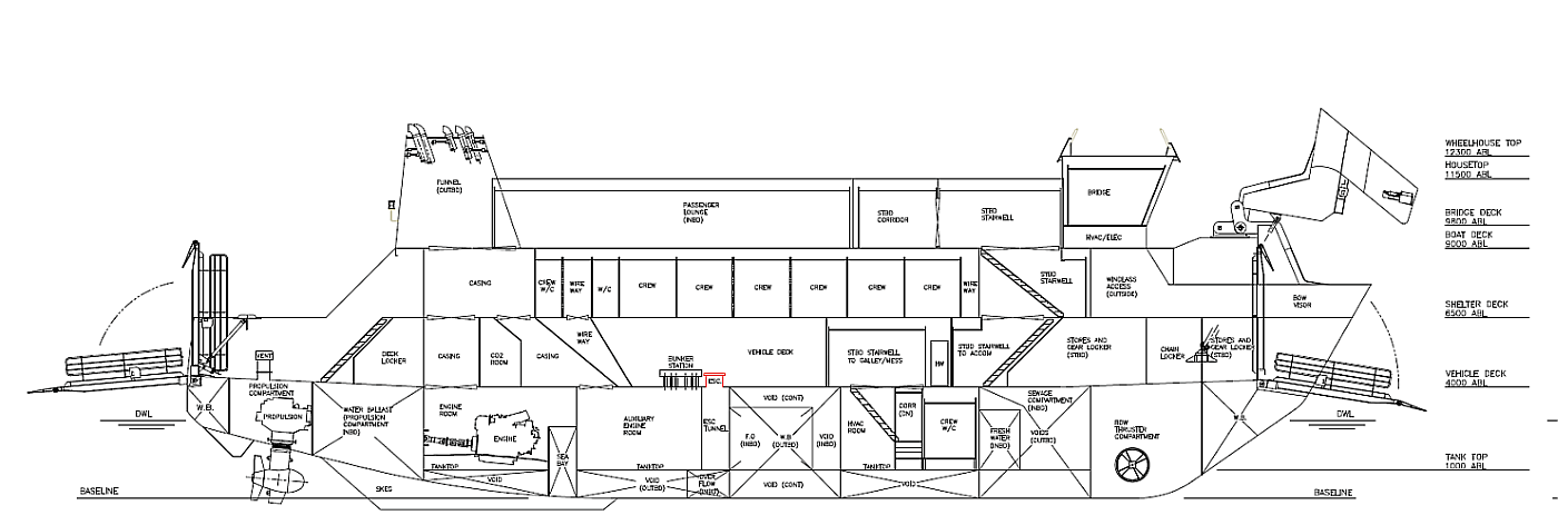
    The vessel consists of 6 decks (Appendix A). The lowest deck is the tank top, which contains propulsion and auxiliary equipment, the galley, and the mess. The vehicle deck is open at the stern and can be boarded using ramps at either end of the vessel. The shelter deck contains crew accommodations, the bow visor control panel, the mooring capstan, and the 2 anchor windlasses. The boat deck contains the passenger lounge (which is the designated muster point in the event of an emergency), the embarkation areas, and the lifesaving equipment. Lifejackets are stowed in lockers at the aft end of the boat deck, and davit-launched rigid-hull inflatable rescue boats and life rafts are stowed on both the port and starboard sides of the vessel. The bridge deck contains the navigational equipment and conning stations, and the wheelhouse top contains the searchlight, masts, and binnacle compass.

    The vessel is powered by 2 diesel main engines, each coupled to a pod thruster via a geared marine transmission and driveshaft. The pod thrusters, which can rotate through 360 °, have propellers mounted on them to provide propulsion and steering. The vessel can be propelled using only 1 pod thruster powered by its associated main engine.

    The vessel's main generator supplies electrical power to the main switchboard as well as to an electric bow thruster, which is normally used for docking and undocking. An emergency generator supplies electrical power to the emergency switchboard.

    Navigational equipment on board consists of 2 radars, an electronic chart system (ECS), an echo sounder, a global positioning system (GPS), a gyrocompass, a voyage data recorder (VDR) and an autopilot. Outputs from the navigational equipment can be read on displays at the 2 steering stations (1 on the port side and 1 on the starboard side of the bridge) and at the chart table, which is located at the forward portion of the bridge, on the centreline of the vessel.

    Internal communications equipment on board consists of 2 talkback stations (1 on the port steering station and 1 on the starboard steering station) that can be used to broadcast passenger announcements or communicate with other crew members.

    1.3 History of the voyage

    On 21 January 2015 at approximately 1650,Footnote 2 4 passengers in 1 vehicle boarded the Grace Sparkes at St. Brendan's, Newfoundland and Labrador, to travel to Burnside, Newfoundland and Labrador. Three passengers remained in their vehicle, and the fourth went to the passenger lounge to pay their fares.

    This was to be the vessel's fifth crossing of the day. The pre-departure checklist was completed, and the navigational equipment was set up for the voyage: the ECS had the chart for the area already loaded, the chart table was equipped with the paper version of the chart on the ECS, and the radar was set to a range of 1.5 nautical miles (nm), heads up and off centre, with range markers at 0.25 nm and 0.75 nm.

    The 3 deckhands let go the lines and the vessel departed St. Brendan's at approximately 1700.Footnote 3 The bridge team consisted of the master, the chief officer, and 1 deckhand. During the departure, the chief officer was doing on-the-job training that consisted of manoeuvring and steering the vessel at the port conning station under the guidance of the master. The vessel transited the buoyed channel and exited the harbour.

    Once the vessel had exited the harbour, the chief officer and the master put the ship on autopilot. The bridge team then took it in turns to leave the bridge for dinner and to take short breaks. By 1738, civil twilight had ended and illumination was required to view objects on water or on land. At 1739, the searchlight was turned on and it was observed that it was not shining very brightly. The vessel was now approximately 1.35 nm from the dock at Burnside, proceeding at 11.5 knots and approaching the entrance to Burnside Harbour (Appendix B). The master, the chief officer, and 2 deckhands were on the bridge. The master had the con and was at the port steering station, the chief officer was at the chart table looking out the window, and the 2 deckhands were performing lookout duties.

    The Grace Sparkes continued at the same speed while the bridge team discussed the performance of the searchlight and other topics. By 1743, the vessel had reached the entrance to the Burnside channel, passing the outer starboard-hand buoy (JR4). At the request of the master, one of the deckhands confirmed the position of the buoy in relation to the vessel, and the vessel began to reduce speed. As the vessel continued to enter the channel, its speed gradually decreased to 7.5 knots. The bridge team continued to discuss the performance of the searchlight as well as other matters not related to the navigation of the vessel. At 1746, the Grace Sparkes struck Burnside Rock and rolled to starboard 0.17 nm from the dock.

    1.4 Events following the bottom contact

    Immediately following the bottom contact, the master ordered the chief officer to have the engine room perform a quick inspection for water ingress. The deckhands prepared for docking by raising the bow visor and making the lines ready. The ferry reached the dock at 1749, the ramp was lowered, and the passengers drove ashore.

    Although the incident was not reported to Marine Communications and Traffic Services (MCTS) St. John's immediately, the master did call MCTS to report the incident at 1800, once the vessel had docked. MCTS then relayed the information to Transport Canada (TC). The master also contacted the DTW shore manager and the vessel's classification society (Lloyd's Register of Shipping, or Lloyd's) to advise them of the incident. Approximately 2 minutes after the initial call, MCTS called back for more information about the bottom contact and the number of passengers that were on board at the time of the incident. MCTS was told that 2 passengers had been on board. Arrangements were then made with a diving contractor to conduct a survey of the bottom of the hull.

    1.5 Damage to the vessel

    The Grace Sparkes sustained damage to an area of the hull measuring 3 m² from frames 51 to 56. The damaged area was at the lower chine,Footnote 4 measured 300 mm wide, and included several internal framing members (Appendix C).

    In addition, the forward end of the bilge keel was damaged on the outer edge from frames 44 to 47 (Appendix D).

    1.6 Personnel scheduling, certification, and experience

    1.6.1 Personnel scheduling

    The shift schedule on the Grace Sparkes is a 2-week on/off cycle. On the day of the occurrence, the master was starting his first cycle of 2 weeks on after 4 months' leave. He left home at 0900 and joined the ship at 1400. The chief officer had joined the ship the day before the occurrence for orientation and assumed his duties at 1400 on the day of the occurrence. One of the 2 deckhands on the bridge at the time of the occurrence had joined the ferry 3 days before the occurrence, and the other had joined on the day of the occurrence.

    1.6.2 Personnel certification and experience

    The master held a Master, Near Coastal certificate issued in 1992, with a specialized passenger safety management endorsement. The master had been employed by the DTW since 1977 and had served as a master since 1992, joining the Grace Sparkes as master in 2011.

    The chief officer held a Watchkeeping Mate, Near Coastal certificate with a specialized passenger safety management endorsement. He had been employed by the DTW as a chief officer on other ferries since 2009, including 3 months on the relief vessel for the Burnside-to-St. Brendan's run. On the Grace Sparkes,the chief officer had had only 1 day of on-the-job training and less than 1 day of experience.

    Both deckhands held a Bridge Watch Rating certificate with a passenger safety management endorsement. They had served as deckhands on the Grace Sparkes since 2011.

    To meet regulatory requirements,Footnote 5 all of the vessel's officers and crew members, with the exception of the cook,Footnote 6 had taken TC-approved training courses in passenger safety management. The training was delivered in a classroom environment using presentations and videos. One of the stated objectives of the training was to provide students with standards for familiarization and basic safety training as well as competencies to cope with such hazards and emergencies to the extent appropriate to their functions on board passenger-carrying vessels.Footnote 7

    1.7 Vessel certification

    The Grace Sparkes was crewed and equipped in accordance with existing regulations and held valid certificates issued by Lloyd's as delegated by Transport Canada (TC) under the Delegated Statutory Inspection Program (DSIP). This is a program in which TC authorizes a recognized organization to deliver some Canadian maritime documents and complete required inspections as per section 16 of the Canada Shipping Act, 2001 (CSA 2001) to vessels enrolled in the program. On delegated vessels, TC audits statutory vessel inspections for conformity and continues to be the authority for issuing 5-year safe manning documents. The Grace Sparkes had had its enrollment inspection on 17 April 2012 and was fully delegated to Lloyd's on 13 August 2012.

    At the time of the occurrence, the vessel had voluntarily acquired a valid safety management certificate in accordance with the International Management Code for the Safe Operation of Ships and for Pollution Prevention (ISM Code) issued by Lloyd's. As well, the DTW had voluntarily acquired a document of compliance (DOC) also issued by Lloyd's. Because compliance with the ISM Code is neither a Safety of Life at Sea (SOLAS) requirement nor a Canadian requirement for this vessel, the safety management system (SMS) had never been audited by TC.

    1.8 Environmental conditions

    At the time of the occurrence, visibility was good and winds were from the west at 7 to 10 knots. At 1746, the tide was flooding, at 0.24 m above chart datum. Sunset was at 1645.

    1.9 Department of Transportation and Works of Newfoundland and Labrador

    The DTW employs over 2000 people across the province and provides a range of transportation services, including provincial ferry service on 15 routes serving over 40 communities.Footnote 8 At the time of the occurrence, the DTW owned 10 vessels, 8 of which were crewed and operated by the DTW directly. The assistant deputy minister is responsible for the overall management of the intraprovincial ferry services. Footnote 9

    1.10 Safety management system

    The principal objectives of safety management on board vessels are to ensure safety at sea, prevent human injury or loss of life, and avoid damage to the environment. A documented, systematic approach to safety management helps ensure that individuals at all levels of an organization have the information and the tools needed to make sound decisions in both routine and emergency operations. One of the objectives of an SMS is to assess all identified risks to an organization's vessels, personnel and the environment and to establish appropriate safeguards. In addition, a vessel operator should carry out internal safety assessments to evaluate the effectiveness of the SMS and to verify whether the safety and pollution prevention activities comply with it.

    The DTW SMS consisted of a fleet-wide safety management manual (SMM) as well as vessel-specific manuals. The Grace Sparkes carried both of these manuals on board.

    As required by the ISM Code, audits are conducted by DTW safety standards and compliance officers (internal audits) and by Lloyd's (external audits) to evaluate the effectiveness of the SMS and to verify whether the safety and pollution prevention activities comply with the SMS.

    On 17 July 2014, an internal audit of the Grace Sparkes identified non-conformities such as chart corrections not being up to date or recorded. This non-conformity was reported as closed out on the close-out tracking sheet on 07 August 2014.

    In addition to the non-conformities, the safety standards and compliance officer observed that not all crew members had been familiarized with their duties on board the vessel and that records of the vessel familiarization checklist were not up to date. It was also observed that the passenger vehicle policy needed to be implemented.Footnote 10 Issues related to the passenger vehicle policy had been observed previously on another DTW ferry, the BeaumontHamel.Footnote 11

    An external audit was conducted by Lloyd's on 30 October 2014. One item noted in this audit was incomplete recordkeeping: there was no record of 3 types of drills being carried out in 2013, but they had been recorded as carried out in 2014. The audit included sampling of documentation, such as charts, to ensure that it was up to date, and interviews with selected crew members to establish their familiarity with their duties and the SMS. The results of the audit were satisfactory, with non-conformities from previous audits having been addressed.

    1.11 Voyage planning and monitoring

    According to the International Maritime Organization (IMO), all vessels should complete a voyage plan to ensure the safe passage of the vessel from berth to berth. Voyage planning consists of 4 stages: Footnote 12

    • Appraising all available information about the intended voyage, including reviewing the relevant charts and publications; predicting the vessel's condition; assessing the expected dangers; gathering information about environmental and local weather conditions; and determining how to obtain weather forecasts and local warnings en route.
    • Planning the intended voyage and identifying no-go areas and areas where special precautions must be taken.
    • Executing the voyage plan while taking into account the prevailing conditions.
    • Continuously monitoring the vessel's progress against the intended plan throughout the voyage and gathering the pertinent local warnings.

    With respect to passage planning, the company SMM states the following:

    Passage planningFootnote 13 includes gathering all information relevant to the voyage from berth to berth. All bridge team members must be aware of the intended voyage and route before departure. The vessel's route may not change from trip to trip therefore one passage plan can be developed, approved by the Captain and posted for all navigation officers to view and use.

    Due consideration must be given to ensure effective monitoring of the vessel's progress and that, at all times, 2 or more means of position fixing be maintained and to utilize alternate navigation systems, radar, GPS, electronic chart system etc. to confirm the course and the passage is correct.

    Enter waypoints into GPS and create a route. This will verify that chart courses and distances are correct. This route should be used in restricted visibility or when a new Navigation Officer is on duty and any other time deemed necessary by the Captain. Create routes in other applicable navigation equipment. Never rely on just one navigational aid.Footnote 14

    The Grace Sparkes has been using a standard passage plan for the St. Brendan's-to-Burnside voyage since 2011 (Appendix E). The plan includes, among other things, 6 waypoints and courses. At the time of the occurrence, a copy of the standard passage plan was stored on a shelf on the bridge. It did not include any additional instructions for each leg of the voyage, such as shallow waters or minimum clearing distances from hazards. It also did not specify the standard navigational practices adopted by the crew of the Grace Sparkes, such as visual navigation and searchlights to sight the channel markers during crossings in darkness.

    1.12 Aids to navigation and navigational equipment

    1.12.1 Buoys and markers

    There were 2 starboard-hand buoys and 1 port-hand marker in the area of the occurrence (Photo 2 and Photo 3). The 2 buoys indicated the starboard boundary of the channel. The marker indicated the location of Burnside Rock, but did not indicate the port boundary of the channel.

    Photo 2. Starboard-hand buoys designating the Burnside channel
    Image
    Image of the starboard-hand buoys designating the Burnside channel
    Photo 3. Grace Sparkes (Source: Gander Beacon)
    Image
    Image of the port-hand marker on Burnside Rock

    1.12.2 Paper charts

    The paper chart in use on the Grace Sparkes at the time of the occurrence was Canadian Hydrographic Service (CHS) Chart 4855, published on 06 June 1997. The chart was purchased on 24 September 2010 with the most recent updates. From the date of purchase to the time of the occurrence, a total of 18 chart corrections were issued via Notices to Mariners, but the corrections had not been applied to the chart as required by the Charts and Nautical Publications Regulations, 1995.Footnote 15 On the Grace Sparkes, the chief officer is responsible for applying chart corrections listed in Notices to Mariners. The route on the chart was marked with waypoints, but there were no course directions between the waypoints indicated for the voyage.

    1.12.3 Electronic chart system

    Photo 4. Raster chart of area of occurrence
    Image
    Image of the raster chart of the area of occurrence

    The Grace Sparkes was equipped with an ECS that could display both raster and vector charts.Footnote 16 The system included features such as audible alarms and cross-track error. The bridge team was using the raster chart of CHS Chart 4855 (Photo 4), which covers the same area as vector chart CA276092.

    Some bridge officers found the ECS display overly brightFootnote 17 during the night watch; even when the system was in night mode, the yellow-orange land and the white water on the raster charts would appear brighter than on vector charts.Footnote 18 To alleviate this problem, the ECS display monitor was turned off at the port conning station.

    The raster chart in use at the time of the occurrence did not have any courses or waypoints entered for the voyage.

    1.12.4 Radar

    At Burnside Rock, the navigable channel is 0.035 nm (approximately 64.8 m) wide. At the time of the occurrence, the display on the radar in use at the port conning station was set on a 1.5 nm range, heads up, and off centre. The display had 2 range markers that were set at 0.25 nm and 0.75 nm distances to provide a visual reference to the operator.

    1.13 Bridge resource management

    Bridge resource management (BRM) is the effective management and use of all human and technical resources available to the bridge team to ensure the safe completion of the voyage. BRM includes skills, knowledge, and strategies relating to workload management, problem solving, decision making, teamwork, and situational awareness,Footnote 19 especially during critical or higher-risk operations such as navigating a harbour channel. Bridge team members have a responsibility to maintain overall situational awareness in addition to performing their individual duties. They must also work together and exchange information to ensure that they share a common understanding of the situation and to help prevent single-point failure, which occurs when only 1 person is responsible for a safety-critical task and has no backup to help identify and correct possible errors.

    In this occurrence, the master had completed a formal 30-hour BRM courseFootnote 20 in April 2012. The chief officer and the deckhands who were on the bridge had not completed BRM training, nor were they required to do so by regulation. TC does not currently require bridge officers to complete BRM training in order to obtain or maintain their certificates of competency, but does set standards for non-mandatory BRM training.Footnote 21

    The Marine Personnel Regulations (MPR) are to be amended by 2017 as part of the transition process for implementing the 2010 Manila Amendments to the International Convention on Standards of Training, Certification and Watchkeeping of Seafarers (STCW Convention). The amendments, which are presently targeted for pre-publication in the CanadaGazette, Part I, in 2016, include the integration of BRM training into Simulated Electronic Navigation (SEN) courses at Operational Level (SEN1) and at Management Level (SEN2) for all relevant certificates of competency. These include the following:

    • Master Mariner,
    • Master, Near Coastal,
    • Master 3000 Gross Tonnage, Near Coastal,
    • Master 500 Gross Tonnage, Near Coastal,
    • Master 3000 Gross Tonnage, Domestic,
    • Master 500 Gross Tonnage, Domestic,
    • Chief Mate,
    • Chief Mate, Near Coastal,
    • Watchkeeping Mate,
    • Watchkeeping Mate, Near Coastal, and
    • Chief Mate 500 Gross Tonnage, Domestic.

    1.14 Marine medical certification

    Seafarers are required to undergo a marine medical examination in order to obtain a Marine Medical Certificate.Footnote 22 These examinations are performed by designated marine medical examiners and are intended to determine whether seafarers are fit to perform their routine and emergency duties and are not suffering from any medical condition likely to be aggravated by service at sea. The examinations are also intended to determine whether the seafarer can meet minimum performance requirements with respect to vision, hearing, physical capabilities, impairment from medication, or presence or recent history of an illness or condition.Footnote 23

    Marine medical examiners can assess a seafarer as being fit (with no limitations), fit with limitations, or unfit (either permanently or temporarily). They may then issue a Provisional Certificate that is valid for 6 months. During this period, the seafarer can still perform operational duties. The Provisional Certificate and the documentation from the medical examination are sent to TC for review by 1 of 5 medical officers. TC reviews the documentation from the medical examination and inserts colour-coded formsFootnote 24 to identify any new developments in the seafarer's condition or other significant medical changes. If both the marine medical examiner and TC agree that the seafarer is fit for duty and that there is no need for geographical or operational limitations, the seafarer is issued a Marine Medical Certificate. The certificate is valid for a maximum period of 2 years, except for candidates under 18 years of age, whose certificates are valid for a maximum period of 1 year.

    In this occurrence, the master had been assessed as fit for duty without limitations. The investigation into this occurrence identified issues relating to the documentation and oversight of his medical conditions as part of the examination process.

    1.14.1 Marine medical examiner qualifications and the examination process

    Marine medical examiners are medical practitioners who have been selected, trained, and formally designated as examiners by TC. Some of the criteria they must meet to become a marine medical examiner include experience in occupational medicine, knowledge of living and working conditions on board ships, and attendance at a TC Marine Medical Seminar prior to being designated and every 4 years thereafter.Footnote 25 The Marine Medical Seminar includes guidance on the marine medical regulations and standards to comply with during the examination process, marine medical issues, workshops on case reviews, specialist guest speakers, and marine environment familiarization (e.g., vessel and simulator tours).

    TC does not perform any specific post-training assessment of the examiners' knowledge of TC's specific guidance to ensure that the training was fully understood and that the medical practitioners are ready to commence the required role as an examiner. Nor are the examiners' facilities or examination methods reviewed to ensure that the examiner meets the requirements set out in the International Labour Organization (ILO) / International Maritime Organization (IMO) and TC documentation.

    Once they have been designated, marine medical examiners are qualified to perform examinations as and when required. Examiners are expected to be “familiar with [TC's] certification process and comply with its standards and requirements; conduct a thorough medical examination; and obtain any relevant documentation so that a proper assessment may be made with due regard to the examinees' medical condition and public safety.”Footnote 26

    1.14.2 Disclosure of seafarers' medical information

    Seafarers can select any examiner to perform their required marine medical examination. It is the responsibility of the seafarer to provide their relevant medical history if they select an examiner who is not their primary physician or who has not examined them previously. Under the CSA 2001, crew members are required to “report any change in their circumstances that could affect their ability to carry out their duties and functions safely.”Footnote 27 There is, however, no requirement to present medical records from the seafarer's personal family physician or the previous TC marine medical certificate at each marine medical examination. In this occurrence, the master's marine medical examination documentation indicated multiple examiners, none of whom had ready access to the master's medical records held by his primary physician.

    It is also a requirement of the CSA 2001 that all physicians, including family physicians, report to TC if they believe that the holder of a certificate of competency has a condition that is likely to constitute a hazard to marine safety.Footnote 28 There was no indication that the master's family physician had reported the master's medical issues to TC.

    1.14.3 Assessing fitness for duty

    The information that TC requires to establish medical fitness to issue a Marine Medical Certificate is detailed in section 16 of the CSA 2001.

    TC's Seafarer Medical Examinations – A Physician Guide (hereafter referred to as “the Physician Guide”) provides guidance on performing marine medical examinations for the purpose of assessing fitness for duty. It is based on the ILO/IMO Guidelines on the Medical Examination of Seafarers, as specified by the STCW Convention and Part 2 of the MPR. The Physician Guide provides guidance on physical fitness, various medical conditions, and categories of medications that may require further documentation or limitations. It also provides guidance on the issuance of a Provisional Medical Certificate after the assessment and, if required, the application of temporary or permanent limitations, restrictions on geographical locations and/or operational duties, or increased frequency of surveillance. However, it is not possible to provide guidance on every possible condition, medication, level of fitness, or combination thereof, and examiners need to use discretion when evaluating whether to apply limitations.Footnote 29

    The Guide also emphasizes the importance of obtaining supporting documentation, especially for assessing mental health issues, and reviewing the combination of physical and mental health issues and their potential impact on operational performance and safety.

    The master had undergone a marine medical examination in 2014. His examination form recorded several physical and mental health conditions, as well as the medications being taken to manage these conditions. A request by TC for supporting documentation was recorded for only one of these conditions. In response to another condition, the marine medical examiner proposed a geographical limitationFootnote 30 on the master's marine medical examination report. One condition had not been recorded on any examination forms completed before 2014, despite data from his family records indicating that he had suffered from this condition since at least 2008.

    The master's medical assessment was sent to TC for evaluation, and a marine medical certificate was issued without limitations, based on this assessment form and the provisional certificate. However, there was no indication on the master's file that a detailed review was required, nor was there any indication that TC had performed a detailed review before the Marine Medical Certificate was issued. The certificate was issued before the supporting information requested for one of the master's conditions had been received.

    1.15 Passenger management

    In an emergency situation on board a passenger vessel, the vessel, crew, and passengers all need to be appropriately equipped and informed. The vessel requires an alarm, a public address system, and lifesaving equipment. The crew needs documented emergency procedures that are practised regularly via drills to ensure that they can respond effectively to the emergency. Passengers need instructions on where to muster in the event of an emergency, access to lifesaving equipment, and information on how to use the lifesaving equipment.

    1.15.1 Announcements and alarms

    The Grace Sparkes has 2 main systems to verbally communicate passenger safety instructions once passengers are on board: an automated pre-recorded announcement system and a press-to-talk public address system.

    The automated pre-recorded announcement system consists of 3 sets of instructions for passengers that are required to be played at different phases of the voyage:

    • The boarding announcement instructs passengers to leave their vehicles on the vehicle deck and proceed to the passenger lounge for the duration of the voyage.
    • The safety announcement indicates that the passenger lounge is the designated muster point in the event of an emergency and provides information about safety signage and the location of survival craft and lifejackets.
    • The arrival announcement informs passengers that the vessel has secured alongside and that passengers may proceed to their vehicles for disembarking.Footnote 31

    Each announcement is assigned a number on the public address system. To broadcast an announcement, the crew dials the appropriate number from one of the steering stations.

    The press-to-talk public address system is used by the bridge team to communicate voyage information directly to the crew and passengers, especially critical information during an emergency. An emergency situation is also indicated by the sounding of an alarm.

    Two days after the occurrence, Transportation Safety Board of Canada (TSB) investigators found that, although the automated pre-recorded announcements could be selected and were audible from the steering stations, they were not being broadcast throughout the vessel. DTW found that a programming board in the public address system had failed. The programming board was replaced, and when tested, the pre-recorded announcements were once again audible in the passenger lounge.

    1.15.2 Lifesaving equipment

    Photo 5. Aft exit of passenger lounge (lifejackets outside door on deck but no signage)
    Image
    Image of the aft exit of the passenger lounge (lifejackets outside door on deck but no signage)

    The lifejackets on board the Grace Sparkes were stowed on deck, aft of the passenger lounge, in labelled orange stowage crates. The crates were visible from inside the lounge, but only to a person standing by the aft exit door looking out (Photo 5) in the direction of where they were stowed. The lounge had signage indicating donning instructions for the lifejackets. However, there was no signage indicating where the lifejackets or lifejacket containers were located, nor was there any regulatory requirement to indicate, by signage, the directions to the lifejackets.

    Photo 6. First-aid kit stowed in unmarked container
    Image
    Image of the first-aid kit stowed in an unmarked container

    The Grace Sparkes was equipped with first aid kits, defibrillators, and other first aid equipment, but not all of this equipment was readily visible. The first aid kit in the passenger lounge was stowed in an unmarked container (Photo 6), and other first aid equipment, such as a defibrillator and an eye wash station, was stowed on the wall of a corridor on the boat deck forward of the passenger lounge. The equipment in the corridor was not visible from the seating area in the lounge, and there was no signage to indicate its location. Other lifesaving equipment, such as a loud hailer and smoke signals, was stowed in unmarked cupboards.

    1.15.3 Emergency procedures checklists

    The section of the SMM devoted to emergency procedure checklists begins with some general remarks and the DTW policy on emergency preparedness:

    It is the policy of the Department to have each of its workplaces achieve a level of emergency preparedness so that immediate and appropriate response will be taken in the event of a local emergency.

    Emergency preparedness will:

    • prevent or minimize harm to employees resulting from a foreseeable emergency;
    • minimize damage to equipment, facilities and the environment; and
    • minimize the time required to restore full services after an emergency.Footnote 32

    The emergency checklists are given as guidelines that focus primarily on basic emergency procedures. The checklists are general (they do not specify which crew member is to perform which task) and list the actions that should be considered in response to a particular emergency. Six checklists in this section include tasks or actions related to the mustering and accounting of passengers (collision with a fixed object, collision with another vessel, grounding, flooding, fire, and abandon ship). Each of these checklists contains 2 similar items related to mustering and accounting for passengers:

    • muster everyone, take a head count, and inform the master of the count to determine if anyone is missing; and
    • if anyone is missing, conduct a search.Footnote 33

    1.15.4 Muster list

    The Grace Sparkes had a muster list posted at various locations around the vessel that assigned emergency duties—boat, fire, and man overboard—to the crew members.Footnote 34 According to the muster list, all duties related to passenger safety were assigned to the cook and consisted of the following:

    • as part of the fire duties, directing passengers to the muster area and assuming crowd control leader duties; and
    • as part of the boat duties, being crowd control leader—mustering passengers, bringing blankets, conducting a passenger count, distributing lifejackets, demonstrating the donning of lifejackets, ensuring lifejackets are donned properly, and leading passengers to embarkation stations.

    In addition to the muster list, a passenger muster area checklist was kept on a clipboard on the bridge, along with other equipment (handheld radio and bull horn) intended for use by the cook in his duties as crowd control leader. The checklist was a list of guidance notes on how to conduct oneself in front of the passengers, how to communicate with the passengers (as well as some specific information to communicate), and how to manage aggressive or panicked passengers. The checklist instructed the crowd control leader to solicit the aid of volunteers to keep passengers from leaving the muster area and to hand out lifejackets as well as to demonstrate and ensure the proper donning of them. The checklist also suggested seeking the aid of a volunteer to double-check the passenger count, which was to be reported to the master via hand-held radio, at which time the master would designate a person to conduct a search if anyone was missing. With respect to managing disabled passengers, the checklist instructed the crowd control leader to ask people with disabilities to identify themselves and then report the number to the master so that he could decide how much time to allow for the evacuation.

    1.15.5 Evacuation plan

    At the time of the occurrence, there were 2 evacuation analyses in effect for the Grace Sparkes. One was based on a complement of 80 passengers and 9 crew members, and the other was based on a complement of 50 passengers and 8 crew members. The analyses included an evacuation procedure, which contained the following steps:

    • direct all passengers to the passenger lounge;
    • perform a head count and divide the passengers into groups; and
    • proceed to the appropriate embarkation area as determined by the master.

    In both of these analyses, the cook was responsible for directing and controlling passengers, with his specific duties outlined in the muster list. The cook was assigned the same duties in both scenarios. The analyses also presented the procedure for launching the life rafts, and indicated the crew and passenger complements for each raft, consistent with the muster list. The analyses included estimates of the time required to perform the evacuation procedureFootnote 35 and demonstrated compliance with the requirements of the Life Saving Equipment Regulations. The calculated estimates of the time required for passengers to reach the embarkation areas assumed that all of the passengers were initially located in the passenger lounge.

    1.15.6 Drills

    On the Grace Sparkes, fire and boat drills were conducted regularly. The nature, purpose, and frequency of these drills, as well as how to conduct and record them, are described in the SMM.Footnote 36 With respect to passenger mustering, the SMM states that “all drills should include the hypothetical mustering of passengers and discussions about crowd control techniques.”Footnote 37 The SMM also includes a Boat and Fire Drill Checklist (Appendix F) to be used as a reference by the crew and the master to ensure that crew members perform their assigned duties including, among other things, mustering passengers and locating and rescuing those who were previously unaccounted for.

    In practice, drills on the Grace Sparkes generally involved a fire and preparation for abandonment scenario and were conducted with crew members only. The cook, who was the sole crew member dedicated to passenger safety activities, would go through the steps of arriving at the muster area and reporting all passengers as accounted for to the master via hand-held radio. The drills did not include the steps involved in searching the vessel for missing persons.

    1.15.7 Minimum safe manning

    The authorized representative (AR) of a Canadian vessel must ensure that the crew complement meets the requirements of section 207 of the MPR. The AR will submit an application to TC for a Minimum Safe Manning Document (SMD) which includes information about the type of vessel, number of passengers, propulsive power, type of voyage, watch system to be used, and communications systems, among other items. The application also includes a proposed manning list, detailing the number of crew and their respective certificates. When the application meets requirements, TC will issue an SMD that records the minimum number of crew and the required certifications for each crew member.

    In October 2009, TC issued a work instructionFootnote 38 to provide guidance on interpreting the minimum safe manning requirements. The instruction stated that TC inspectors are required to use a standard form when evaluating minimum safe manning for a vessel. The form takes into account both routine and emergency operations, including evacuation and post-abandonment scenarios. For emergency operations, the form requires an evaluation of the number and certifications of crew members needed to communicate, perform firefighting duties, etc., as well as an evaluation of the number of crew members needed to perform passenger control functions.

    For a vessel where there are multiple decks and the master does not have a clear view of the passenger area, the form would require a minimum of 2 crew members for passenger control: 1 for each compartment normally occupied by passengers and 1 for sweeping and searching every 3 decks accessible to but not normally occupied by passengers. On the Grace Sparkes, passengers had access to 3 decks and normally occupied only the passenger lounge.

    In July 2009, the DTW submitted an application for an SMD for the Grace Sparkes. The application was based on a passenger complement of 80 and proposed a total crew complement of 9. It also included a draft evacuation plan and muster list. The application had 1 crew member (the cook) allocated to address the MPR requirement for crew to perform passenger control duties in an emergency. This was based on the assumption that all 80 passengers would be contained to the passenger lounge, in proximity to the embarkation station.

    In April 2011, when the Grace Sparkes first went into operation, TC issued an SMD for 80 passengers indicating a minimum crew complement of 9. In April 2013, the DTW requested and was issued a new SMD for a reduced passenger complement of 50. The minimum crew complement was reduced to 8. The SMDs and the crew complement at the time of the occurrence are compared in Table 2.

    Table 2. Safe manning document (SMD) information and actual crew complement on the Grace Sparkes
      SMD for 80 passengers (26 April 2011) SMD for 50 passengers (18 April 2013) At time of occurrence (typical complement) (21 January 2015)
    Master (certified) 1 1 1
    Chief mate (certified) 1 1 1
    Chief engineer (certified) 1 1 1
    Engineer (certified) 1 - 1
    Bridge Watch Rating 2 2 3 (deckhand/helmsman)
    Rating 3 3 1 (cook)
    Total 9 8 8

    The TC inspector who issued the SMDs for the Grace Sparkes did not complete the standard evaluation form and was not familiar with it. To evaluate the number of crew members required to perform emergency passenger control functions, the inspector used 1 crew member for every 50 passengers when assessing the minimum safe manning requirements for the vessel.

    Once the minimum number and qualifications of crew members had been evaluated by TC and recorded on the SMD, it was the responsibility of the operator to determine how the operational and emergency tasks would be allocated, and to add crew members if necessary, as long as the minimum set out on the SMD was respected.

    1.15.8 Regulatory requirements

    There are 2 regulations pursuant to the CSA 2001 that specifically address procedures and drills for passenger mustering and accounting in an emergency situation: the Life Saving Equipment Regulations and the Fire and Boat Drills Regulations.

    The Life Saving Equipment Regulations require every passenger vessel to “have an evacuation procedure for the safe evacuation of the complement from the ship within 30 minutes after the abandon-ship signal is given.”Footnote 39 Inspectors from TC Marine Safety and Security (TCMSS) or recognized organizations (RO) verify that the documented procedure is on board during their annual inspection, but they do not assess the procedure's adequacy.

    The Fire and Boat Drills Regulations were amended in 2010 to include a requirement for a passenger vessel's muster list to assign emergency duties that crew need to perform in relation to passengers.Footnote 40 The regulations specify that certain tasks must be included on the muster list, such as the duty of locating and rescuing passengers who are unaccounted for, and that procedures must be in place for carrying out those tasks.

    The regulations also state that the master of a passenger vessel is required to ensure that procedures are in place for locating and rescuing passengers who are unaccounted for during an emergency,Footnote 41 and that crew members practice their passenger safety-related duties during drills.Footnote 42 When these new requirements entered into force, they were published in the CanadaGazette and presented at regional and national meetings of the Canadian Marine Advisory Council (CMAC). TC did not develop or promulgate guidelines to assist industry and inspectors with the appropriate interpretation and implementation of the amendments.

    In addition to these regulations, section 106 of the CSA 2001 contains a provision regarding the general duty of ARs to, among other things,

    • develop procedures for the safe operation of the vessel and for dealing with emergencies; and
    • ensure that the crew and passengers receive safety training.Footnote 43

    1.15.9 Statutory inspections

    Annual statutory inspections of passenger vessels are conducted by TC inspectors or, in the case of delegated vessels, by classification surveyors acting on behalf of the Minister of Transport. This inspection includes verifying that the muster list is on board and witnessing the conduct of an emergency drill, ensuring that it is consistent with the tasks and duties presented on the muster list.

    On 04 July 2014, TC issued FLAGSTATENETFootnote 44 notice 6-2014, “Regulatory requirements when inspecting or monitoring all vessels and the added requirements for passenger vessels,” which stated that inspectors were to

    • verify that the muster list complies with the requirements of the Fire and Boat Drills Regulations;
    • ensure compliance with section 106 of the CSA 2001 regarding emergency procedures; and
    • ensure that crew members who are assigned passenger control tasks demonstrate a clear understanding of their assigned duties.

    The notice also stated that data fields had been added to the Ship Inspection Reporting System (SIRS) to record the results of these inspection activities.

    The last statutory inspection of the Grace Sparkes before the occurrence was conducted by an inspector from Lloyd's on 07 July 2014 in St. John's, Newfoundland and Labrador, using the muster list as a reference and taking into consideration the fact that there were no passengers and a reduced crew on board. The inspector had not received a copy of FLAGSTATENET notice 6-2014, and the checklist used for the inspection did not contain any reference to the specific regulations referred to in this notice. The most recent monitoring inspection by TC was performed in April 2015 and did not identify that the regulatory requirements highlighted by FLAGSTATENET notice 6-2014 had not been addressed. In addition, the relevant SIRS data fields were not completed.

    1.15.10 Transport Canada Concentrated Inspection Campaign

    In the fall of 2014, TC conducted a Concentrated Inspection Campaign (CIC) for small to medium-sized passenger vesselsFootnote 45 that focused on plans and procedures for ensuring that firefighting and lifesaving systems were being operated correctly. As part of the CIC, crew competency and readiness in the performance of their emergency duties was evaluated. The CIC involved the inspection of 60 vessels from all regions of the country, but the Grace Sparkes was not one of them.

    TC inspectors were provided with a questionnaire of 19 items (Appendix G) as a tool for conducting the inspections, with general guidelines and information about what to look for on each specific item.Footnote 46 The report of the resultsFootnote 47 (released in the spring of 2015) highlighted 2 areas with high risk: procedures for identifying and recording passengers requiring assistance, and the adequacy of lifesaving equipment and firefighting equipment plans. In addition, the questions regarding the adequacy of muster lists and the development of relevant emergency procedures returned a high percentage of negative responses (37 percent and 48 percent respectively).Footnote 48

    Table 3. Concentrated Inspection Campaign questionnaire items relevant to the adequacy of emergency procedures for mustering and accounting for passengers
    Item from questionnaire Guidance to inspector Negative results (%)
    Question 4 - Is the muster list satisfactory? The inspector is instructed to verify the muster list against the requirements of section 7 of the Fire and Boat Drills Regulations. 37%
    Question 5 - Are there any other written emergency procedure(s) that would not be included in the muster list? The inspector's attention is drawn to the requirement for procedures to be developed for locating and rescuing passengers who are unaccounted for during an emergency, as per section 12 of the Fire and Boat Drills Regulations. The inspector is advised to determine if emergency procedures have been documented that would not be included as part of the muster list, such as procedures for accounting for passengers. 48%
    Question 11 - Is a passenger count recorded? The inspector is reminded that section 10 of the Fire and Boat Drills Regulations requires that the master of a vessel, before the vessel embarks on a voyage, ensure that the number of passengers on board is recorded. 5%
    Question 18 - Has [ sic]the master and crew demonstrated a satisfactory fire drill?

    The inspector is advised that the following should be verified/observed during the drill, among others:

    Crew members involved in passenger control should be asked to demonstrate their duties, describe the escapes from the space and directions to muster area, as well asked [ sic]to explain the emergency signals and alarms.

    Were the crew able to satisfactorily demonstrate their duties?

    11%
    Question 19 - Has [ sic]the master and crew demonstrated a satisfactory abandon ship drill? Is passenger accounting satisfactory at muster station(s)?

    Inspectors are advised that the drill is to be conducted as if it were as real as possible in order to ensure that the duties are carried out as defined on the muster list. The following should be verified/observed during the drill, among others:

    If possible, passengers should be summoned to the muster station by activating the appropriate alarm and ensuring that the passengers are aware of the appropriate alarms.

    As well, if possible, crew should conduct a mock search and rescue of passengers trapped in their staterooms.

    11%
    General comments regarding questions on drills: Inspectors are advised that the drill should be as realistic as possible. It is preferred that the drills be conducted with passengers on board – however, as TCMSS indicated at the 2014 April National CMAC, it is important to minimize the disruption on vessel operations. The decision to conduct the drill with crew and passengers, or crew only, will be left with the inspector conducting the CIC following the discussion with the master/AR. N/A
    General comments regarding questions on drills: Inspectors are advised that, once the drill(s) have been completed, please note if the following items were also met, among others:
    All passengers were accounted for.
    All vessel areas were cleared, including access to all locked areas.
    If applicable, were cabin checks conducted?
    N/A

    TC's report on the CIC also included several recommendations for further TC activity, including that

    • the CIC checklist and guidelines be included as part of the inspection process for delegated and non-delegated passenger vessels; and
    • an implementation approach be developed to provide further guidance to TC inspectors on the requirements for firefighting and lifesaving equipment procedures.

    On 20 August 2015, TC disseminated FLAGSTATENET notice 06-2015 to all TC inspectors and ROs with information about the CIC including the CIC report, guidelines and questionnaire. The notice required TC inspectors to use the CIC guidelines and questionnaire as part of the next periodic inspection for all passenger vessels. With respect to ROs, the notice states that “TCMSS does not require the RO to complete the CIC checklist as part of the annual survey of delegated passenger vessels. However, it is recommended that RO surveyors review the guidelines and checklist to ensure that the items in the checklist are inspected as part of the annual survey.”Footnote 49

    1.16 Previous occurrences

    1.16.1 Occurrences involving other vessels belonging to the Department of Transportation and Works of Newfoundland and Labrador

    In May 2012, while approaching Portugal Cove, Newfoundland and Labrador, the passenger ferry BeaumontHamelFootnote 50experienced an electrical failure resulting in a loss of propulsion and steering, and struck the wharf. The vessel sustained damage to the bow visor and was later repaired. The TSB investigation into that occurrence found that there were issues with the company's SMS with regard to hazard mitigation, reporting of near misses, and the passenger vehicle policy. The investigation also found that the VDR was not functioning properly.

    1.16.2 Occurrences related to navigational aids and bridge resource management

    Previous TSB investigations have found issues associated with navigational aids and BRM.

    In September 2009, the bulk carrier Petersfield experienced a malfunction of its gyro heading feed and struck the west shore of Douglas Channel, British Columbia. The TSB investigation into that occurrenceFootnote 51 found that the vessel's progress in the channel was not being effectively monitored, and that there was no detailed, mutually agreed-upon passage plan to help the members of the bridge team in this regard in accordance with the principles of BRM.

    In November 2011, the offshore supply vessel Maersk Detector struck the mobile offshore drilling unit GSFGrandBanks while loading cargo from the unit onto the vessel in the White Rose oil field off the Grand Banks of Newfoundland and Labrador. The TSB investigation into that occurrenceFootnote 52 found that the master was more focused on visually monitoring the vessel's distance from the rig, and did not fully review positioning data, warnings, and alarms. In addition, no discussions took place between the master and the officer of the watch that would have enabled them to work together and maintain awareness of what the other members of the bridge team were doing.

    In October 2012, the tanker Nanny ran aground on a shoal while outbound from Baker Lake, Nunavut. The vessel came off the shoal 2 days after grounding and was later repaired. The TSB investigation into that occurrenceFootnote 53 found that a lack of BRM contributed to the bridge team's limited situational awareness. Specifically, there was minimal communication between members of the bridge team that limited their ability to identify the vessel's position, cross-checks were not performed using different methods of navigation, and the master was the only bridge officer with BRM training.

    1.16.3 Occurrences relating to emergency procedures and drills for mustering and accounting for passengers

    Previous TSB investigations have also found issues relating to emergency procedures and drills for mustering and accounting for passengers.

    In May 2003, the roll-on/roll-off passenger ferry Joseph and Clara Smallwoodexperienced a fire on one of its cargo decks while 8 nm off Port aux Basques, Newfoundland and Labrador. The TSB investigation into that occurrenceFootnote 54 determined that crew members did not possess the knowledge or skills to adequately perform their emergency duties. The TSB subsequently expressed its concern about the adequacy of passenger safety procedures and training.

    In March 2006, the roll-on/roll-off passenger ferry Queen of the North sank off Gil Island, British Columbia. Two passengers remained unaccounted for following evacuation procedures and were never found. The TSB investigation into that occurrenceFootnote 55 found that those responsible for passengers had difficulties establishing and reconciling the total count and identifying those missing. The Board subsequently recommended that

    [t]he Department of Transport, in conjunction with the Canadian Ferry Operators Association and the Canadian Coast Guard, develop, through a risk-based approach, a framework that ferry operators can use to develop effective passenger accounting for each vessel and route.
    Transportation Safety Recommendation M08-01

    The TSB investigation also noted that drills did not cover the full range of skills necessary to muster and control large numbers of passengers. Given the risks associated with poorly coordinated preparations for evacuating large number of passengers, the Board recommended that

    [t]he Department of Transport establish criteria, including the requirement for realistic exercises, against which operators of passenger vessels can evaluate the preparedness of their crews to effectively manage passengers during an emergency.
    Transportation Safety Recommendation M08-02

    As part of TC's response to these recommendations, the Fire and Boat Drills Regulations were amended to require that the muster list duties for passenger vessels include locating passengers who are unaccounted for in an emergency and rescuing them. The amendment also required that procedures and realistic drills related to these duties be implemented. The Board assessed the responses to both recommendations as Fully SatisfactoryFootnote 56 in July 2010.

    In August 2007, the roll-on/roll-off passenger vessel Nordik Express struck Entry Island, Quebec, damaging its hull below the waterline. The TSB investigation into that occurrenceFootnote 57 identified several shortcomings with respect to duties related to passenger safety, including the following:

    • The bridge crew did not sound an alarm, leaving the crew members who were responsible for passenger safety to improvise their response.
    • The emergency duty lists did not address tasks related to the preparatory stages of an evacuation.
    • A passenger count was not performed.

    In October 2012, the roll-on/roll-off passenger ferry Jiimaan grounded on the approach to Kingsville Harbour on Lake Erie in Ontario. The TSB investigation into that occurrenceFootnote 58 determined that the shipboard plans and procedures for mustering and accounting for passengers were not comprehensive, and drills were conducted only with crew members, which meant that crew members were not able to practise passenger management duties in a realistic way.

    Furthermore, it was determined that TC inspections did not verify that the passenger safety–related duties or procedures required by the regulations were included in the shipboard procedures. The Board subsequently issued the following Safety Concern:

    The Board is concerned that, if TC marine safety inspectors do not assess muster lists and evacuation plans for compliance and adequacy and TC does not provide interpretive guidelines, compliance with passenger safety regulations may be inadequate, thereby negating the potential safety benefits of such regulations.

    Since the Jiimaan investigation, 2 other TSB investigations into passenger vessel occurrences ( LouisJolliet and PrincessofAcadia)Footnote 59 have made similar findings with respect to the adequacy of procedures and drills for mustering and accounting for passengers. Both investigations determined that the emergency procedures in place for the vessels had shortcomings with respect to passenger safety management, and that crew members had not practised these procedures in a realistic way. The investigations also highlighted the need for effective oversight of passenger safety by TC.

    In response to the TSB report on the LouisJolliet occurrence, TC advised the Board that inspectors had been reminded of the requirements under section 7 of the Fire and Boat Drill Regulations by issuing a FLAGSTATENET notice and by adding new fields to SIRS. TC also informed the Board of the CIC, which was to be conducted in the fall of 2014 and would focus on plans and procedures for ensuring that firefighting and lifesaving systems were being operated correctly.

    1.16.4 Previous safety communications

    In February 2015, the TSB sent a letter to TCFootnote 60 to reiterate the Board's concern about the lack of guidelines and effective TC oversight with respect to the 2010 amendments to the Fire and Boat Drill Regulations for emergency procedures on passenger vessels. Although the FLAGSTATENET notice and the CIC were good steps toward mitigating the risk to passenger safety, the notice does not call attention to the requirements for specific procedures or for realistic drills. Additionally, guidelines had not been developed to assist with the interpretation of these requirements, which would help ensure that any relevant shipboard procedures are fulfilling the intent of the regulations and that inspectors are verifying compliance consistently. An update was requested on any actions planned by TC to mitigate the risks associated with this issue.

    In response to this letter, TC advised that it had recently approved a recommendation to include the CIC checklist and guidelines in the annual inspection process for passenger vessels. In addition, the monitoring of passenger vessels inspected by classification surveyors would be increased to 75 percent of vessels in 2015/16 and to 100 percent of vessels every year thereafter. With respect to the TSB's concern that TC has not developed or promulgated guidelines to assist operators and inspectors with the interpretation and application of the new requirements, TC noted that guidelines were provided to inspectors as part of the CIC and that those guidelines promoted a consistent approach for those inspections.

    TC also recognized that the results of the CIC (Appendix H) indicate that approximately one-third of the muster lists reviewed did not meet regulatory requirements. By using the CIC checklist for annual inspections in 2015/16, TC expected to be able to monitor compliance with this requirement as well as with section 12 of the Fire and Boat Drill Regulation s regarding emergency procedures. As for the conduct of realistic drills, TC noted that, during the CIC, most drills were conducted with crew members only so as to minimize the commercial impact on vessel owners. TC would, however, promote the conduct of drills with passengers when feasible.

    1.17 TSB Watchlist

    1.17.1 Safety management and oversight is a 2014 Watchlist issue

    The Watchlist is a list of issues posing the greatest risk to Canada's transportation system; the TSB publishes it to focus the attention of industry and regulators on the problems that need addressing today.

    The TSB has identified safety management and oversight as a Watchlist issue. The solution will require all operators in the marine industry to have formal safety management processes. As well, TC must oversee companies' safety management processes, since some transportation companies are not effectively managing their safety risks, and TC oversight and intervention has not always proven effective at changing companies' unsafe operating practices.

    2.0 Analysis

    2.1 Events leading to the bottom contact

    The Grace Sparkes was travelling to the east-southeast of the course line specified in the standard passage plan. As it prepared to enter the Burnside channel, the deviation from the course line was not detected and no corrections were applied. The master was steering the vessel, limiting his ability to monitor its position in relation to the route defined in the passage plan. Meanwhile, there was insufficient monitoring or cross-referencing of navigational equipment by the chief officer, and the navigational equipment itself was not set up to optimize the information available to confirm the vessel's position. Without information to the contrary, the crew perceived the voyage to be a routine crossing until the vessel struck Burnside Rock.

    2.2 Reporting requirements following a grounding

    The Grace Sparkes, as part of the Department of Transportation and Works (DTW) fleet, has a checklist of actions to take in the event of a grounding (Appendix I). One of these actions is to advise the Canadian Coast Guard of the incident. The Shipping Casualties Reporting Regulations provide guidance on how to report an incident and specifies that any incident must be reported “without delay.”Footnote 61 However, in this occurrence, the master delayed reporting the incident for 14 minutes, until after the Grace Sparkes had docked in Burnside. Any delay in reporting the occurrence would have delayed any emergency response had it been required.

    2.3 Navigational practices

    Although visual navigation can be used to determine the position of a vessel, it will be less effective in restricted visibility or darkness. Therefore, it is essential to cross-reference visual navigation with navigational aids such as radars, paper charts, and electronic charting systems (ECS) that have been configured for optimal performance. The Transportation Safety Board of Canada (TSB) has found previouslyFootnote 62 that navigational equipment not set up to take full advantage of available safety features can deprive crews of timely warnings.

    In this occurrence, visual navigation was being used at night, with a searchlight to assist in spotting channel markers. However, the use of the searchlight may have distracted the master from other bridge duties.

    The company safety management manual (SMM) stresses the importance of different navigational aids being cross-referenced and not relying solely on a single navigational aid, but this cross-referencing was not performed before or after departure by the master and the chief officer. The radar could have been used to cross-reference the visual identification of the channel markers. However, it had been set to a range of 1.5 nautical miles (nm) (approximately 2.8 km), which did not provide a level of detail sufficient to determine the vessel's approximate distance from the channel markers, because the channel was only 0.035 nm (approximately 64.8 m) wide. Furthermore, there were no parallel index lines entered or distance alarms enabled to give warning to the bridge team of an approaching hazard.

    The Grace Sparkes was equipped with both electronic and paper charts. However, the ECS display at the port conning station had been turned off because it was too bright. Therefore, the master did not use the electronic chart of the area, which could have alerted him to the position of the vessel. The situation was compounded by the fact that audible alarms had not been enabled on the ECS that may have provided warning of the approaching hazard, and that no waypoints had been entered on the ECS to assist with navigation.

    Course lines and waypoints were identified on the paper chart in use at the time of the occurrence. However, the course directions and the distances between the waypoints were not recorded on the chart; these were recorded on the passage plan, which was stored elsewhere on the bridge and not readily available to the bridge team. Furthermore, no positions had been plotted on the chart during the voyage, and the chart itself had not been updated with the latest corrections as required by regulation.

    In a close-quarters situation such as in this occurrence, the importance of cross-referencing visual navigation with navigational aids that have features and audible alarms enabled becomes even greater. If properly configured, audible alarms on the ECS and radars are a means of alerting the bridge team to the vessel's position within the channel. In this occurrence, the bridge team received no such alert or warning and was not prompted to check the displays, which were indicating that the vessel's position was off the charted route as it transited the Burnside channel.

    If navigational aids are not cross-referenced or their associated features, such as alarms, are not configured optimally, bridge teams may be deprived of potentially useful information to assist in the vessel's safe navigation.

    2.3 Bridge resource management

    Bridge resource management (BRM) is particularly important when a vessel is operating in confined waters, such as a harbour channel. In this type of situation, it is critical that all bridge team members maintain situational awareness through teamwork and communication.

    In this occurrence, a lack of communication among the members of the bridge team contributed to their being unaware that the vessel was off the course specified in the passage plan.

    During the voyage, minimal vessel position data were exchanged, limiting opportunities to identify that the vessel was off course. The bridge team did discuss the position of the outer starboard-hand buoy in relation to the vessel, but not the vessel's position in relation to the route defined in the passage plan. The position of the vessel in relation to the inner port-hand marker, meanwhile, was discussed only after the bottom contact.

    The master had completed BRM training but was the only member of the bridge team to have done so. Therefore, there was little opportunity for the bridge team to use and reinforce BRM best practices and principles.

    As demonstrated by this occurrence and others,Footnote 63 shortcomings in the implementation of BRM can contribute to marine accidents. Bridge officers and watchkeeping personnel are not currently required by regulation to complete BRM training or demonstrate continued proficiency in BRM in order to obtain or maintain certificates of competency. Transport Canada (TC)'s proposed amendments to the Marine Personnel Regulations (MPR) will make BRM training mandatory for Master, Near Coastal, and Chief Mate, Near Coastal, certificates of competency, among others, but not for the Bridge Watch Rating certificate.

    If all bridge team members have not completed formal training or demonstrated continued proficiency in BRM, there is an increased risk of inadequate situational awareness, especially during higher-risk portions of a voyage such as operating in confined waters.

    2.5 Marine medical certification

    Because a detailed medical assessment was not performed around the time of the occurrence, it was not possible to quantify the degree to which the master's medical conditions were present at the time of the occurrence or the effect they had on performance. This section of the analysis will focus on the marine medical certification process.

    2.5.1 Marine medical examiner qualifications and the examination process

    Physicians who have been designated as marine medical examiners by TC are qualified to perform examinations whenever the need arises. This means that some may perform more examinations than others, and examiners who have less opportunity to put into practice the knowledge acquired from their marine medical seminars may become less familiar with the procedures.

    Because examiners do not receive post-training assessment from TC, there is no way to determine whether they have fully understood the training or whether refresher training is needed sooner than the prescribed interval of 4 years. As a result, marine medical examinations may not meet TC standards. For example, the examiner may not understand or may forget the operational implications of certain disclosed conditions and, as a result, they may not ask the appropriate questions, request supporting information, apply limitations as required, recommend increased surveillance, and decide on the appropriate certification.

    At the master's 2014 medical examination, there was no data to indicate that the examiner had performed a comprehensive review of the master's newly reported medical conditions and associated medication history, nor were limitations applied or increased surveillance recommended, as prescribed by International Labour Organization / International Maritime Organization (ILO/IMO) and TC guidelines concerning the management of certain medical conditions and associated medications.

    If marine medical examiners are not assessed to ensure that their examinations meet ILO/IMO and TC standards, there is a risk that seafarers will be assessed as fit for duty without sufficient medical oversight.

    2.5.2 Medical data disclosure and validation

    In order to assess seafarers' health in accordance with ILO/IMO requirements and TC guidelines and identify any potential risks posed by their conditions, examiners must be provided with a complete and accurate medical history. Otherwise, there is a risk that significant medical issues affecting on-the-job performance may go undetected.

    It is the seafarer's responsibility to provide the marine medical examiner with the relevant medical history. If a condition or medication is not disclosed, it may not be accounted for when assessing the seafarer's fitness for duty. Full disclosure of medical history (including medications) is especially important if each examination is performed by a different marine medical examiner. Otherwise, an assessment decision may be made with incomplete information.

    In this occurrence, it was determined that one of the master's medical conditions, which dated back to 2008, had a significant family history and was being managed with medications. This condition was documented in the master's file maintained by his family physician, who did not perform the TC marine medical examinations. The family physician had also written a letter recommending that the master's geographical and operational duties be restricted on the basis of his medical conditions. However, this condition, medication, and family history were not recorded in the master's TC file until 2014, and the physician's letter was not included in this file.

    Because there is currently no requirement for seafarers to visit the same examiner at each examination or to present their family medical records or the previous TC marine medical certificate to an examiner they visit for the first time, the master's examiner in 2014 would not have had any documentation to validate the master's reported medical conditions.

    If seafarer medical information and associated medical files are incomplete, i.e., the seafarer has not disclosed fully and the marine medical examiner has not requested supporting data to verify the seafarer's reports, there is an increased risk that significant medical conditions will go undetected, allowing the seafarer to carry out his duties when not medically fit, increasing the risk of accidents.

    2.5.3 Assessing fitness for duty

    If a seafarer reports a new medical condition or medication to the examiner, a colour-coded form is attached to the seafarer's file after it is sent to TC for review. A detailed review of the file's supporting documentation or a comparison with previous examination results is required prior to issuing a Marine Medical Certificate. It may take up to 6 months before this certificate is issued; in the meantime, the seafarer is allowed to operate under a provisional medical certificate that is based on the results of the examination.

    The procedure of flagging files for detailed review is in place to ensure that priority files are assessed before less urgent files. However, there are only 5 medical officers to review all marine medical assessments across Canada. Consequently, only those files that have been flagged may receive a more detailed review and those files that have not been flagged may receive only a brief check. If there are medical discrepancies or emerging conditions on a file that has not been flagged, these may be overlooked by TC, leading to the seafarer being issued a Marine Medical Certificate that may not be appropriate for his circumstances.

    The occurrence master had undergone a marine medical examination in 2014, and the file was submitted to TC with no indication that a detailed review was required or that increased surveillance was required of the master's combined medical conditions and medications. However, the marine medical examiner had proposed a geographical limitation in the marine medical examination report for one of the master's medical conditions. Once the file arrived at TC, because it was not flagged with any urgent indicators, there was no record that TC performed a detailed review of the master's conditions or medications or that TC had requested associated supporting information for more than one condition. Consequently, the master's Marine Medical Certificate was issued without applying the geographical limitation recommended by the marine medical examiner and without any substantiation of decisions in accordance with ILO/IMO and TC guidelines. Without a detailed review and associated request for supporting information, it would not be possible to determine with certainty whether limitations are required. In the absence of such indicators, the master was assessed as fit without limitations.

    If a seafarer's provisional marine medical certificate has been issued without all required information, there is a risk that the seafarer will be able to operate for up to 6 months while being medically unfit.

    If oversights in the medical assessment process are not identified and corrected before a Marine Medical Certificate is issued, there is a risk that the seafarer will be able to operate for a further 18 months while being medically unfit.

    2.6 Passenger management

    2.6.1 Passenger announcements and alarms

    To ensure that passengers are prepared for an emergency situation, it is important that they be managed appropriately during all phases of the voyage. This includes directing them to a safe area for travel, preventing them from entering unsafe areas, and mustering them at muster stations in the event of an evacuation. Furthermore, shipboard procedures and training dictate that crew members commence their emergency duties when signalled by an alarm.

    On the Grace Sparkes, 3 different passenger safety announcements are required to be broadcast during the voyage: 2 around departure time and 1 upon arrival, the phases of the voyage with the highest workload. In addition, there are multiple departures and arrivals per day, some with only 30 minutes of turnaround time. Under these circumstances, the crew are vulnerable to distraction; they might forget to broadcast the announcements or have difficulty remembering whether they have been broadcast. If the announcements are not broadcast, passengers will not receive information about what to do once they board, where they are to go for the duration of the journey, where the lifejackets are stowed, or where the muster station is located.

    In this occurrence, it was not possible to determine with certainty whether the automated pre-recorded announcements had been broadcast. However, if they were, they were not audible throughout the vessel due to a failure in the public address system's programming board. It is clear that, when the vessel struck Burnside Rock, the passengers were not informed of a potential emergency via the public address system or by an alarm being sounded. The lack of information would have limited their ability to understand and predict what was required of them in this situation.

    Furthermore, when the vessel struck the rock, the master prioritized the task of navigating to the perceived safety of the dock and did not sound the alarm, nor was the chief officer ordered to do so.

    If passenger safety announcements or alarms are not used to provide safety information or communicate a state of emergency, there is a risk that passengers and crew will not be prepared to respond to an emergency in a safe and timely manner.

    2.6.2 Lifesaving equipment

    Lifesaving equipment on passenger vessels must be appropriately labelled so that it can be found easily in an emergency. Regulatory and audit requirements govern the labelling and stowage of lifesaving equipment, including the room or container where it is stowed, but do not govern signage directing passengers to where the equipment is stowed.

    The Life Saving Equipment Regulations, the Safety of Life at Sea (SOLAS) Convention, and the IMO Resolution A.760 all specify that lifejackets should be clearly labelled according to specified design standards. There is no explicit requirement to post lifejacket signs at certain locations around the vessel, nor is there an explicit requirement on the number of lifejacket signs required. Furthermore, the current Life Saving Equipment Regulations do not explicitly specify that lifejacket signs are required throughout the vessel to indicate the location of the lifejacket stowage container. For example, the lifejacket containers on the Grace Sparkes were labelled, but they were stowed on deck aft of the passenger lounge, and thus were only visible from a certain area of the lounge. Other lifesaving equipment to be taken to the lifeboats/rafts in an abandon ship situation was found to be labelled in accordance with these requirements; however, some of it was stowed in unmarked cupboards or containers, making it difficult for passengers or crew to find in an emergency.

    In this occurrence, it was seen as acceptable to label the lifejacket stowage container. Although it is important to label stowage containers to ensure that passengers can locate the lifejackets, passengers need to be able to locate the stowage container in the first place. If the stowage container is not placed in a location that passengers frequent, or near a muster station, passengers may not find the lifesaving equipment in a timely manner.

    The lifejacket stowage containers on the Grace Sparkes were labelled in accordance with regulatory requirements; however, there is no requirement for signage to indicate the location of the containers.

    2.6.3 Emergency procedures and drills

    Documented emergency procedures can be used to evaluate crew performance during a drill, train new crew members, refine and improve the procedure itself, and test the ability of crew members to substitute for or help each other if the need arises.

    Although passenger safety management was not a causal or contributing factor in this occurrence, there were shortcomings in the Grace Sparkes' documented procedures in this regard, specifically with respect to preparing to abandon ship. The muster list, the passenger muster area checklist, the evacuation plan(s), and the emergency procedures checklists did not provide any relevant details such as:

    • how and by whom all spaces of the vessel would be initially searched and cleared of passengers;
    • how to quickly arrive at an accurate head count at the muster station;
    • how the need to assist people with injuries or disabilities would be addressed; and
    • how and by whom any missing passengers would be located and rescued.

    In fact, according to the passenger muster area checklist, these last 2 items were to be deferred until after the initial mustering of the passengers, at which time the master would be expected to formulate an ad hoc plan. Without formulating procedures for the above-mentioned activities in advance, there was no way to determine whether all of the necessary duties could be accomplished by the sole dedicated crew member. Furthermore, without documented procedures, the company could not ensure that the necessary duties would be practised on a consistent basis, if at all.

    It is important for passenger safety drills to be realistic. The drills on board the Grace Sparkes were conducted only with crew members, meaning that the crew was not able to practise passenger management duties in a realistic way and ensure that they could be carried out effectively.

    If crew members do not have comprehensive documented procedures and realistic drills for mustering and accounting for passengers, they may not be able to carry out these duties effectively in an emergency situation, increasing the risk to the safety of passengers.

    2.6.4 Minimum safe manning

    The success of any emergency operation on board a vessel depends to a great extent on whether there are sufficient crew with the appropriate qualifications to perform the required tasks. On passenger vessels, the safe management of passengers forms a large part of any emergency response. This is why one part of the evaluation for minimum safe manning includes the number of crew members required for “passenger control” duties.

    In this occurrence, the TC inspector who conducted the minimum safe manning assessment for the Grace Sparkes did not follow the prescribed work instructions and, instead, used 1 crew member for 50 passengers. This number is consistent with the safe manning document (SMD) that was issued to the vessel for a 50-passenger complement and with the corresponding muster list and evacuation plan. For an 80-passenger complement, an additional crew member was required on the SMD. However, that additional crew member was a certified engineer who had no passenger control duties on the muster list. This resulted in all passenger control duties effectively being the responsibility of a single crew member. This was also reflected on the vessel's muster list and evacuation plan.

    Because the layout of the Grace Sparkes comprised multiple decks, at least 2 crew members would have been required for passenger control duties, according to TC work instructions for evaluating safe manning, regardless of whether the passenger complement was 50 or 80. Although it was noted on the vessel's muster area checklist that additional help would be needed to perform passenger control duties at the muster area, the chosen solution was to suggest that the responsible crew member solicit the assistance of a passenger, rather than to increase the crew complement.

    Finally, the DTW had no detailed procedures for passenger mustering and accounting, meaning that there was no benchmark to help determine how many crew members would be needed to carry out these duties.

    If the minimum safe manning assessment process does not take into account vessel-specific characteristics and comprehensive emergency procedures for passenger mustering and accounting, there is a risk that the crew complement will be insufficient to respond effectively to an emergency situation.

    2.6.5 Adequacy of regulatory oversight

    Previous TSB investigationsFootnote 64 have identified deficiencies and associated risks related to the preparedness of Canadian passenger vessel crews to muster and account for passengers in an emergency situation. In response to TSB recommendations to address the issue, TC made regulations requiring that the muster list of a passenger vessel include specific tasks related to passenger safety, that procedures be developed to carry out those tasks, and that drills be conducted to practise them. However, TC did not develop or promulgate guidelines to assist industry and inspectors with the appropriate interpretation and implementation of the regulations.

    These regulatory requirements were the subject of FLAGSTATENET notice 6-2014, “Regulatory requirements when inspecting or monitoring all vessels and the added requirements for passenger vessels,” issued by TC in July 2014. However, approximately 1 year after the notice was issued, neither the classification surveyor nor the TC marine safety inspector had integrated it into their inspection procedures. In addition, the content of the notice itself did not fully address the issue. It did not call attention to the requirements for specific procedures or for realistic drills, nor did it offer any guidance or interpretation to assist inspectors when assessing procedures or drills for compliance with the regulations.

    In this occurrence, annual statutory inspections of the Grace Sparkes verified that a muster list was on board, but the contents of the muster list were not checked against the requirements. Neither the muster list nor the passenger muster area checklist assigned anyone the task of locating and rescuing passengers who may be unaccounted for, as required by regulation.

    TC's Concentrated Inspection Campaign (CIC) was a positive initiative toward identifying issues regarding the safety of the Canadian passenger vessel fleet. However, procedures and drills for the mustering and accounting for passengers were not the focus of the campaign. As a result, the questions and guidance in the CIC relating to this issue did not provide sufficient detail or clarity to enhance understanding of the issue in a meaningful way. For example:

    • The guidance for question 5 refers to the regulatory requirement for procedures to locate and rescue passengers but does not advise how to assess the adequacy of these procedures.
    • With respect to drills, the emphasis is put on minimizing disruption to vessel operations rather than ensuring that passenger mustering and accounting duties are practised realistically (and there is no guidance on what constitutes “realistic”).
    • Inspectors have discretion on whether to conduct drills with passengers, meaning that the consistency of drill inspections cannot be ensured.
    • The task of passenger accounting is associated only with the abandon ship drill. This may create the impression that accounting is only necessary when a situation escalates to an abandon ship scenario, whereas there are many types and levels of scenarios where it is desirable to account for the passengers whether or not the vessel is being abandoned. For example, in a fire situation, while the fire is brought under control, a detailed passenger accounting would be necessary to ensure that anyone who requires aid has received it.
    • The guidance relating to the abandon ship drill refers to a “mock search and rescue of passengers trapped in their staterooms.” This implies that a search is to be conducted only if someone is deemed to be missing and needs to be rescued; however, given the challenges previously identified with accurately accounting for passengers at the muster station,Footnote 65 the exercise of searching the vessel may best be viewed as an integral part of the passenger muster process. Also, referring specifically to staterooms may lead an inspector to infer that other areas of the vessel (e.g., washrooms, crew accommodations, vehicle decks) do not need to be searched.
    • The checklist and guidance have been approved for integration into all passenger vessel inspections, and TC is increasing its monitoring activities with respect to inspections conducted by recognized organizations (RO) on its behalf. The checklist (with guidance) has also been communicated to ROs; however, TC does not require them to complete it. As a result, it is unclear whether it is being integrated into the inspections of delegated vessels.
    • The guidance document was only provided to TC inspectors and ROs. The CIC report, which does not include those guidance notes, is available on line and was presented at the spring 2015 meeting of the Canadian Marine Advisory Council (CMAC). However, authorized representatives (AR) and masters would also benefit from meaningful guidance or interpretation of the requirements, considering their responsibilities with regard to developing procedures and conducting drills.

    If TC oversight does not assess the effectiveness of passenger safety–related emergency procedures, there is a risk that these procedures will not achieve their intended purpose.

    2.7 Safety management

    Effective safety management requires large and small organizations to be cognizant of the risks involved in their operations, to competently manage those risks, and to be committed to operating safely. A safety management system (SMS) is a documented, systematic approach to ensure safe practices in vessel operations and to promote a safe working environment. It obliges the establishment of safeguards against all identified risks and continuous improvement of the safety management skills of personnel ashore and on board vessels.

    Although an SMS defines the roles and responsibilities of personnel on board vessels, crews may perform tasks in a different way. Crews may adapt the defined procedures into alternative practices for a variety of reasons, such as lack of resources, deadline pressure, or a desire to avoid confrontation. These adaptations can create routines that become normal procedures. With each operation that is successfully completed while following these routines, crews reinforce their belief that the adaptations will continue to be safe, even though they may omit safeguards in the SMS intended to mitigate risk. A fuller understanding of why defined procedures are adapted into alternative practices will help organizations intervene more effectively than simply telling crews to follow the rules or to just be more careful.Footnote 66

    In this occurrence, the following deviations from the company SMS were identified:

    • Chart corrections had not been applied to the chart used for the voyage.
    • The navigational practices in use on the occurrence voyage differed from the practices prescribed by the Safety Management Manual and the completed passage plan checklist.
    • The electronic chart in use on the occurrence voyage did not have routes, waypoints, courses, or plotted positions indicated.
    • The paper chart had a route with waypoints indicated, but there were no courses or distances indicated.
    • The emergency procedure for collision with a fixed object, which included sounding the general alarm, making a passenger announcement, and performing a passenger count, was not followed.
    • Passenger safety announcements were not made.
    • The passenger vehicle policy was not enforced on the occurrence voyage.

    The SMS included internal and external audits intended to identify deviations from and adaptations of the documented procedures. Both an internal and an external audit had been conducted on the Grace Sparkes in the past year, and both had identified non-conformities and made observations. However, the SMS does not contain a mechanism to verify if observations and non-conformities have been resolved, other than a signature on the close-out form, a record in the tracking log, and an audit report that is retained for recordkeeping purposes. Follow-up actions to confirm that non-conformities or observations have indeed been addressed may ensure that any associated risks have been dealt with in accordance with the SMS.

    If there is no follow-up process in place to verify that non-conformities and other issues raised during a safety audit have been addressed, there is a risk that unsafe conditions and deviations from the company SMS will persist.

    3.0 Findings

    3.1 Findings as to causes and contributing factors

    1. The Grace Sparkes deviated from the route specified in the standard passage plan.
    2. After entering the channel, the master focused his attention on steering the vessel, limiting his ability to monitor its position.
    3. Due to insufficient monitoring, the bridge team was unaware of the vessel’s position until it struck Burnside Rock.

    3.2 Findings as to risk

    1. If navigational aids are not cross-referenced or their associated features, such as alarms, are not configured optimally, bridge teams may be deprived of potentially useful information to assist in the vessel’s safe navigation.
    2. If all bridge team members have not completed formal training or demonstrated continued proficiency in bridge resource management, there is an increased risk of inadequate situational awareness, especially during higher-risk portions of a voyage such as operating in confined waters.
    3. If marine medical examiners are not assessed to ensure that their examinations meet International Labour Organization / International Maritime Organization (ILO/IMO) and Transport Canada standards, there is a risk that seafarers will be assessed as fit for duty without sufficient medical oversight.
    4. If seafarer medical information and associated medical files are incomplete, i.e., where the seafarer has not fully disclosed and the marine medical examiner has not requested supporting data to verify the seafarer’s reports, there is an increased risk that significant medical conditions will go undetected, allowing the seafarer to carry out his duties when not medically fit, increasing the risk of accidents.
    5. If a seafarer’s provisional marine medical certificate has been issued without all required information, there is a risk that the seafarer will be able to operate for up to 6 months while being medically unfit.
    6. If oversights in the medical assessment process are not identified and corrected before a Marine Medical Certificate is issued, there is a risk that the seafarer will be able to operate for a further 18 months while being medically unfit.
    7. If passenger safety announcements or alarms are not used to provide safety information or communicate a state of emergency, there is a risk that passengers and crew will not be prepared to respond to an emergency in a safe and timely manner.
    8. If crew members do not have comprehensive documented procedures and realistic drills for mustering and accounting for passengers, they may not be able to carry out these duties effectively in an emergency situation, increasing the risk to the safety of passengers.
    9. If the minimum safe manning assessment process does not take into account vessel-specific characteristics and comprehensive emergency procedures for passenger mustering and accounting, there is a risk that the crew complement will be insufficient to respond effectively to an emergency situation.
    10. If Transport Canada oversight does not assess the effectiveness of passenger safety-related emergency procedures, there is a risk that these procedures will not achieve their intended purpose.
    11. If there is no follow-up process in place to verify that non-conformities and other issues raised during a safety audit have been addressed, there is a risk that unsafe conditions and deviations from the company safety management system will persist.

    3.3 Other findings

    1. The lifejacket stowage containers on the Grace Sparkes were labelled in accordance with regulatory requirements; however, there is no requirement for signage to indicate the location of the containers.

    4.0 Safety action

    4.1 Safety action taken

    4.1.1 Transportation Safety Board of Canada

    On 17 March 2015, the Transportation Safety Board of Canada (TSB) issued Marine Safety Information Letter (MSI) 02/15 to the Department of Transportation and Works (DTW) of Newfoundland and Labrador. The letter informed the DTW of various issues that were identified in the course of the TSB investigation, in areas such as radar and electronic chart systems, emergency preparedness, passenger safety, and passenger accounting.

    4.1.2 Department of Transportation and Works of Newfoundland and Labrador

    On 13 May 2015, the DTW responded to MSI 02/15. The master and crew were debriefed on its contents, a comprehensive internal and technical investigation was conducted, and an internal audit was conducted. The internal audit resulted in the following corrective actions:

    • Chart correction procedures have been re-sent to all vessels in the fleet.
    • Signage and arrows have been posted on board to indicate the location of the lifejackets.
    • Location markings for the first aid kit have been posted.
    • Previously unsecured stowage containers in the passenger lounge have been secured.
    • The automated pre-recorded announcement component of the public address system has been repaired.
    • In addition, 2 new searchlights were installed on the Grace Sparkes in February 2015.

    Further to the above, the DTW has indicated to the TSB that it has undertaken the following safety action:

    • A memo was issued to all of its vessels clarifying the procedures for obtaining an accurate passenger count, and the need for that count to be recorded on board and communicated ashore before each departure.
    • An audit has been initiated of safety signage and announcements on board all of its vessels.
    • It has reinforced to its crews that the time required for drills and other safety precautions overrule the service schedule, and that vessels have the option of requesting additional time, either during or outside the schedule, to complete the necessary drills.

    This report concludes the Transportation Safety Board’s investigation into this occurrence. The Board authorized the release of this report on . It was officially released on .

    Appendices

    Appendix A – Grace Sparkes general arrangement and bridge layout

    General arrangement of the Grace Sparkes (inboard profile)
    Image
    Image of the general arrangement of the Grace Sparkes (inboard profile)
    General arrangement of the Grace Sparkes (boat deck)
    Image
    Image of the general arrangement of the Grace Sparkes (boat deck)
    General arrangement of the Grace Sparkes (bridge deck)
    Image
    Image of the general arrangement of the Grace Sparkes (bridge deck)

    Source: Department of Transportation and Works of Newfoundland and Labrador, with TSB annotations

    Appendix B – Area of the occurrence

    Appendix C – Shell plating damage

    Appendix D – Bilge keel damage

    Image
    Bilge keel damage

    Source: Department of Transportation and Works of Newfoundland and Labrador

    Appendix E – Standard passage plan for the Grace Sparkes

    Appendix F – Boat and fire drill checklist

    FIRE DRILLS
    Master of vessel shall ensure that the crew members perform the duties assigned to them including:
    Mustering passengers  
    Locating and rescuing passengers, if unaccounted for  
    Locating and rescuing crewmembers, if unaccounted for  

    Perform a drill for the operation of watertight doors at each fire drill

    • Check the Watertight door and all the mechanisms and indicators
    • Check all valves – The closing which is necessary to make a compartment Watertight & the operation which is necessary for damage control cross connections
     
    Checking operation of fire doors, fire dampers, main inlets and outlets of ventilation system  
    Closing fire doors, valves, scuppers, side scuttles, skylights, portholes and other similar openings  
    Inspecting and operating the fire pump or emergency fire pump if fitted, using at least two jets of water  
    Inspecting the fire fighting equipment that is fitted on the vessel  
    Check Fire fighters outfits and other personal rescue equipment  
    Inspect sprinkler system  
    Inspect fire alarm system  
    Inspect Fire detection system  
    Check fire hoses and fire hydrants  
    Inspecting and testing relevant communication equipment, including PA, alarm systems and klaxons  
    Inspecting and testing emergency lighting and power systems  
    Preparing survival craft and other equipment  
    Checking the necessary arrangements for a subsequent abandonment of the vessel  

    Version: 2
    Effective: Jan 2011
    Doc #: SMS 01DD

    Appendix G – Concentrated Inspection Campaign questionnaire

    Concentrated Inspection Campaign Questionnaire
    Fire and Boat Drill and Life Saving Equipment Regulations
    Vessel Name  
    Official Number  
    Date of Inspection  
    No. Question Yes No N/A
    Documentation Review
    1 Is ship documentation in order and up-to-date?      
    2 If MTRBs relating to life saving and fire equipment exist, are the conditions of approval being maintained?      
    3 Are there any outstanding defects from the previous periodic inspection in relation to lifesaving and fire safety equipment?      
    4 Is the muster list satisfactory?      
    5 Are there any other written emergency procedure(s) that would not be included in the muster list?      
    6 Has the crew received onboard familiarization and safety training?      
    7 Are training manuals onboard that explain how to use the ship's life saving equipment?      
    8 Are records of tests, maintenance and inspections of lifesaving and fire fighting recorded?      
    9 Is a record kept on those passengers requiring assistance?      
    10 Does a procedure exist for identifying passengers requiring special needs?      
    Procedural Verification
    11 Is a passenger count recorded?      
    12 Is the fire control plan satisfactory?      
    13 Is the life saving equipment plan satisfactory?      
    14 Is the master aware of his/her obligations as per section 20 to 24 and schedule of the Fire and Boat Drill Regulations?      
    15 Are the watertight doors operated properly and in good working order (i.e. day-to-day operations)?      
    16 Do they ensure that fire doors are closed tight?      
    17 Conduct a general walk-around the vessel, and verify the following:      
    1. Are safety instructions and signage visible?
         
    1. Is the firefighting equipment satisfactory?
         
    1. Is lifesaving equipment satisfactory?
         
    1. Is the vessel as per the fire control plan? As part of your walk around, did you observe any deviations from the fire control plan?
         
    1. Is the vessel as per the life saving equipment plan? As part of your walk around, did you observe any deviations from the plan?
         
    Drills (conduct one or more)
    18 Has the master and crew demonstrated a satisfactory fire drill?      
    19 Has the master and crew demonstrated a satisfactory abandon ship drill? Is passenger accounting satisfactory at muster station(s)?      

    Note – for all items checked as “no”, please fill out the comments field provided to describe the reason (for each).

    Item # Comments
       
       
       
       
       

    If further space is needed, please attach any additional pages.

    Appendix H – Summary of Concentrated Inspection Campaign questionnaire results

    No. Question Yes No N/A Total % of No
    Documentation Review
    1 Is ship documentation in order and up-to-date? 47 13 0 60 22%
    2 If MTRBs relating to life saving and fire equipment exist, are the conditions of approval being maintained?  19  6  30  55  24%
    3 Are there any outstanding defects from the previous periodic inspection in relation to lifesaving and fire safety equipment?  6  53  0  59  90%
    4 Is the muster list satisfactory? 34 20 6 60 37%
    5 Are there any other written emergency procedure(s) that would not be included in the muster list?  29  27  3  59  48%
    6 Has the crew received onboard familiarization and safety training? 53 7 0 60 12%
    7 Are training manuals onboard that explain how to use the ship's life saving equipment?  43  16  1  60  27%
    8 Are records of tests, maintenance and inspections of lifesaving and fire fighting recorded?  43  16  1  60  27%
    9 Is a record kept on those passengers requiring assistance? 15 39 5 59 72%
    10 Does a procedure exist for identifying passengers requiring special needs? 18 38 4 60 68%
    Procedural Verification
    11 Is a passenger count recorded? 56 3 1 59 5%
    12 Is the fire control plan satisfactory? 30 25 5 55 45%
    13 Is the life saving equipment plan satisfactory? 35 23 2 58 40%
    14 Is the master aware of his/her obligations as per section 20 to 24 and schedule of the Fire and Boat Drill [ sic] Regulations?  50  9  1  59  15%
    15 Are the watertight doors operated properly and in good working order (i.e. day-to-day operations)?  19  2  39  21  10%
    16 Do they ensure that fire doors are closed tight? 22 2 36 24 8%
    17 Conduct a general walk-around the vessel, and verify the following:  
    a. Are safety instructions and signage visible? 52 8 0 60 13%
    b. Is the firefighting equipment satisfactory? 57 3 0 60 5%
    c. Is lifesaving equipment satisfactory? 51 7 0 58 12%
    d. Is the vessel as per the fire control plan? As part of your walk around, did you observe any deviations from the fire control plan?  35  16  9  51  31%
    e. Is the vessel as per the life saving equipment plan? As part of your walk around, did you observe any deviations from the plan?  40  14  6  54  26%
    Drills (conduct one or more)
    18 Has the master and crew demonstrated a satisfactory fire drill? 51 6 3 57 11%
    19 Has the master and crew demonstrated a satisfactory abandon ship drill? Is passenger accounting satisfactory at muster station(s)? 50 6 3 56 11%

    Note – the “% of No” is based on the totals of yes and no responses. It does not include “N/A” responses.

    Appendix I – Department of Transportation and Works of Newfoundland and Labrador Grounding Checklist

    Photo 1. Description
    Image
    Department of Transportation and Works of Newfoundland and Labrador Grounding Checklist