Rapport d'enquête de pipeline P95H0036

Ruptures de gazoduc de gaz naturel
TransCanada PipeLines Limited
Canalisation 100-3 de la canalisation principale de 914 mm (36 po)
Poteau kilométrique de la vanne de canalisation principale 30-3 + 0,245 km
Canalisation 100-4 de la canalisation principale de 1 067 mm (42 po)
Poteau kilométrique de la vanne de canalisation principale 30-4 + 0,220 km
Rapid City (Manitoba)

Le Bureau de la sécurité des transports du Canada (BST) a enquêté sur cet événement dans le but de promouvoir la sécurité des transports. Le Bureau n’est pas habilité à attribuer ni à déterminer les responsabilités civiles ou pénales. Le présent rapport n’est pas créé pour être utilisé dans le contexte d’une procédure judiciaire, disciplinaire ou autre. Voir Propriété et utilisation du contenu.

Table des matières

    Résumé

    À 5 h 42, heure normale de l'Est (HNE), le 29 juillet 1995, une rupture du gazoduc de gaz naturel de 1 067 mm (42 po) de la TransCanada PipeLines Limited (TCPL) se produit à la hauteur du poteau kilométrique de la vanne de canalisation principale 30-4 + 0,220 km, près de Rapid City (Manitoba), et un incendie se déclare. À 6 h 34, une deuxième rupture se produit, adjacente à la première, au même endroit, dans le gazoduc de gaz naturel de 914 mm (36 po) à la hauteur du poteau kilométrique de la vanne de canalisation principale 30-3 + 0,245 km. Là aussi un incendie se déclare. Le gazoduc de 1 219 mm (48 po) situé au poteau kilométrique de la vanne de canalisation principale 30-5 + 0,347 km, qui passe sous l'endroit où se sont produites les première et deuxième ruptures, est exposé au feu, mais ne se romp pas.

    Le Bureau a déterminé que la première rupture a été causée par une cassure ductile due à une surcharge consécutive à une fissuration par corrosion sous tension de la canalisation. La deuxième rupture a été attribuée à la chaleur du premier incendie et à la fermeture tardive de la canalisation 100-4.

    Ce rapport est également disponible en français.

    1.0 Renseignements de base

    1.1 L'accident

    À 5 h 42Note de bas de page 1, le 29 juillet 1995, le gazoduc principal de gaz naturel de 1 067 mm de diamètre extérieur (diamètre nominal de conduite de 42 po) de la TransCanada PipeLines Limited (TCPL), désigné sous le nom de canalisation principale 100-4, connaît simultanément une brusque perte de pression de service et une augmentation de l'écoulement du gaz naturel en aval de la station 30, près de Rapid City (Manitoba), à la hauteur de la vanne de canalisation principale 30-4. La station 30 est commandée à distance 24 heures sur 24 par le contrôleur des opérations régionales (COR) posté à la vanne de canalisation principale 39, près de Winnipeg (Manitoba), à quelque 204 km (127 mi) de là. Il y a du personnel à la station 30 pendant les heures d'ouverture normales de la station.

    À 5 h 44, l'opérateur de service à la station 30 essaie en vain de signaler au COR qu'il vient d'y avoir une explosion à la station, qu'un incendie fait rage et qu'il est légèrement blessé. En raison de la proximité de l'incendie, il décide de quitter le terrain de la station pour se rendre au téléphone d'urgence situé à l'extérieur du terrain, mais il est incapable d'appeler de cet endroit. Il revient alors à la barrière de la station où il emprunte le téléphone cellulaire d'un témoin pour signaler la situation au COR de Winnipeg. En sortant, l'opérateur appuie sur le bouton de fermeture d'urgence de la station située dans la boîte près des barrières principales d'entrée afin de commander sur place la fermeture de la station. Cependant, bien que l'opérateur ait enfoncé le bouton à plusieurs reprises, l'enquête révèle que, dans l'énervement du moment, l'opérateur n'a pas appuyé suffisamment fort sur le bouton pour déclencher la fermeture de la station.

    Au même moment, le COR de Winnipeg commande également la fermeture de la station à partir du pupitre de Winnipeg. Cette mesure doit normalement entraîner l'arrêt de tous les compresseurs de la station et la fermeture de toutes les vannes de la station; toutefois, l'écran du pupitre n'indique pas que la fermeture de la station a été commandée. Le COR commande alors l'isolement de la station 30, ce qui suppose la fermeture et le verrouillage de toutes les vannes de canalisation principale des six gazoducs du secteur, de toutes les vannes latérales connexes et des soupapes de raccordement en amont et en aval de la station. Or, l'écran du pupitre indique que l'ordre d'isoler la station 30 a été envoyé à la station 30, mais que cet ordre n'a pas été exécuté. Le COR essaiera d'isoler la station 30, à plusieurs reprises par la suite, mais en vain.

    Ne pouvant recevoir confirmation de la fermeture et du verrouillage de toutes les vannes de la station 30 par le réseau de contrôle du système et d'acquisition des données (SCADA), le COR commande l'isolement de la station 25, située à Moosomin (Saskatchewan), à quelque 110,96 km en amont de la station 30. À 6 h 4, l'écran du pupitre confirme que la station 25 a été isolée.

    À 6 h 4, le COR commande l'isolement de la station 34, située à Portage La Prairie (Manitoba), à quelque 108,8 km en aval de la station 30. L'écran du pupitre confirme que la station 34 a été isolée. Le fait qu'on a réussi à isoler le gazoduc entre les stations 25 et 34 permet d'empêcher que des volumes additionnels de gaz naturel s'écoulent vers la zone où a eu lieu l'accident.

    De 6 h 6 à 6 h 35, le COR commande la fermeture individuelle de vannes précises à la station 30. On utilise la commande manuelle de fermeture des vannes de canalisation principale de la station de compression pour isoler la partie rompue de la canalisation, mais cette commande n'entraîne pas le verrouillage automatique des vannes fermées. La vanne restera fermée pendant une période chronométrée de 15 minutes après avoir reçu l'ordre de fermeture, et s'il n'y a pas de pression différentielle de part et d'autre de la vanne, celle-ci s'ouvrira automatiquement. Le COR a dû commander à plusieurs reprises la fermeture des diverses vannes de canalisation principale qui n'étaient pas touchées par l'explosion et l'incendie dans le secteur de l'accident. Entre-temps, une équipe formée d'un employé de TCPL et de trois entrepreneurs, se présente à la barrière de la station 30 où elle est stoppée par la Gendarmerie royale du Canada (GRC). L'équipe avait pour mission de poursuivre ses levés topographiques sur le terrain de la station de compression, à la station 30.

    À 6 h 30, les mesures prises par le COR portent fruit, et la section de la canalisation 100-4 où l'accident s'est produit est isolée, entre les vannes de canalisation principale 30-4 et 31-4.

    À 6 h 34, le gazoduc principal de gaz naturel de 914 mm (diamètre nominal de conduite de 36 po) de la TCPL, désigné sous le nom de canalisation 100-3, se romp et prend feu en aval de la vanne de canalisation principale 30-3, à côté de la première rupture de la canalisation 100-4.

    À 6 h 35, grâce aux mesures prises par le COR et le personnel d'exploitation sur place, et grâce à l'action des dispositifs de fermeture en cas de basse pression de la vanne de canalisation principale 31-3, on parvient à isoler la section de la canalisation 100-3 où s'est produite la deuxième rupture, entre les vannes de canalisation principale 30-3 et 31-3.

    À 7 h 42, soit quelque deux heures après la première explosion et l'incendie de la canalisation 100-4, l'écoulement de gaz naturel en provenance du reste du réseau est effectivement interrompu grâce à la fermeture des vannes de canalisation principale 30 et 31 des canalisations 100-3 et 100-4, et l'incendie sur les lieux de la rupture s'éteint de lui-même. Toutefois, de petits foyers d'incendie continuent de brûler pendant plusieurs heures aux extrémités des conduites rompues.

    À 12 h 30, soit quelque six heures après la première explosion et le premier incendie, les petits foyers d'incendie qui brûlaient sur les lieux de l'accident sont tous éteints.

    À 18 h 45, le 1er août 1995, la canalisation 100-5 est remise en service.

    À 6 h 55, le 2 août 1995, la canalisation 100-3 est remise en service.

    À 17 h 46, le 12 août 1995, la canalisation 100-4 est remise en service.

    1.2 Victimes

    Un employé de la TCPL a subi des coupures mineures et des éraflures.

    1.3 Dommages au matériel et perte de produit

    La canalisation 100-4 s'est rompue sur 10,50 m (environ 34,5 pi) de longueur et s'est complètement séparée du réseau. La canalisation 100-3 s'est rompue sur 8,5 m (environ 27,9 pi) de longueur et s'est complètement séparée du réseau. La canalisation 100-5, qui passe à environ 100 cm sous les canalisations 100-3 et 100-4 au point de rupture, a été exposée au feu, mais seul son revêtement a été légèrement endommagé. Il a fallu remplacer un tronçon de 22,44 m (environ 73,6 pi) de la canalisation 100-5.

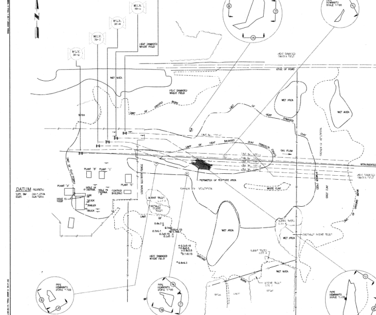
    Par suite des ruptures des canalisations 100-3 et 100-4, quatre fragments de conduite ont été projetés dans un rayon de 90 m (environ 295,3 pi) autour du cratère que l'explosion a creusé. Le cratère mesurait environ 23 m de largeur sur 51 m de longueur; d'une profondeur de quelque 5 m, il avait une superficie d'environ 725 m². L'incendie a rasé environ 19,62 hectares (ha) de terrain, soit 48,48 acres, autour des gazoducs; environ 80 ha (197,68 acres) de terrain ont été touchés par le feu et la chaleur. (Voir aux annexes A et B le croquis du secteur touché par la rupture des gazoducs.)

    Environ 19 600 000 m³ (692 163 700 pi³) de gaz naturel ont été consumés par l'incendie. Cette estimation comprend une estimation des volumes perdus par suite de la purge et de l'isolement effectués par mesure de sécurité.

    Puisque certaines sections de conduite non endommagées ont dû être retirées en amont et en aval du lieu de l'accident, l'ensemble des réparations de la canalisation 100-4 a nécessité l'installation de 131,82 m (432,5 pi) de conduite. Les réparations des canalisations 100-3 et 100-5 ont nécessité l'installation de 42,44 m (139,2 pi) et de 22,44 m (73,6 pi) de conduite, respectivement.

    La station de compression 30 a été lourdement endommagée. Le bâtiment de contrôle, l'extérieur des quatre postes de compression, les opérateurs en surface de la conduite principale et les vannes connexes, les fils qui servent à commander les vannes de la station de compression et divers éléments des conduites reliées aux installations de la station, ont été soit courbés et tordus par la chaleur, soit brûlés et arrachés par le feu et l'explosion. Dans le secteur entourant les lieux de l'incendie et de l'explosion, des dommages légers et des dommages considérables ont été causés à des éléments comme l'isolant des conduites, des parements et des toitures de bâtiments, des indicateurs à tube de verre, des lampadaires, des harnais de câblages, des câbles électriques et des clôtures. Le 15 août 1995, tous ces éléments avaient été réparés.

    Un camion de la TCPL et un véhicule appartenant à un particulier ont été lourdement endommagés par le feu. L'explosion et l'onde calorifique consécutive à l'explosion et à l'incendie ont légèrement endommagé l'intérieur de la salle de commande de l'installation « D ».

    1.4 Conditions météorologiques

    Le matin de l'accident, les conditions météorologiques suivantes prévalaient : ciel dégagé, température de 6,8 degrés Celsius, ciel clair, vents plutôt calmes, pression barométrique de 101,89 kilopascals (kPa), point de rosée de 5,2 et humidité relative de 87 %.

    1.5 Particularités du gazoduc

    La TCPL possède six canalisations parallèles sur les lieux de l'accident : la première, la canalisation 100-1, a un diamètre extérieur nominal de 864 mm (diamètre nominal de conduite de 34 po); la deuxième, la canalisation 100-2, a un diamètre extérieur nominal de 864 mm (diamètre nominal de conduite de 34 po); la troisième, la conduite 100-3, a un diamètre extérieur nominal de 914 mm (diamètre nominal de conduite de 36 po); la quatrième, la conduite 100-4, a un diamètre extérieur nominal de 1 067 mm (diamètre nominal de conduite de 42 po); la cinquième, la conduite 100-5, a un diamètre extérieur nominal de 1 219 mm (diamètre nominal de conduite de 48 po); la sixième, la conduite 100-6, a un diamètre extérieur nominal de 1 219 mm (diamètre nominal de conduite de 48 po). Les six conduites sont enterrées dans une formation morainique argileuse ou sablonneuse.

    La paroi de la canalisation 100-3 a une épaisseur nominale de 8,74 mm (0,344 po). La canalisation a été fabriquée en 1968 par la Canadian Phoenix. Elle présente un bourrelet longitudinal qui a été soudé selon le procédé de soudage double à l'arc sous flux en poudre (DSAW) et a une limite élastique minimale spécifiée de 414 mégapascals (MPa) (nuance de conduite X-60 de l'American Petroleum Institute (API)). La section de la canalisation 100-3 qui s'est rompue a été construite en 1968, et l'extérieur a été recouvert d'une couche de mastic d'apprêt, d'un revêtement d'émail asphalté appliqué à chaud et d'une couche extérieure en amiante et en papier kraft.

    La paroi de la canalisation 100-4 a une épaisseur nominale de 9,42 mm (0,371 po). Elle a été fabriquée en 1973 par la tuyauterie de la Stelco à Camrose (Alberta) et répond à la norme Z245.2 de l'Association canadienne de normalisation (CSA). Elle présente un bourrelet longitudinal qui a été soudé selon le procédé de soudage DSAW et a une limite élastique minimale spécifiée de 448 mégapascals (MPa) (nuance de conduite X-65). Lors de sa construction, en 1973, la section de la canalisation 100-4 qui s'est rompue a été reliée au tronçon de forte section de la canalisation 100-4, à la station 30, au moyen d'un raccord de transition de 3,41 m (11,19 pi) de longueur appelé « tube court ». Ce raccord de transition avait un diamètre extérieur nominal de 1 067 mm (42 po), une épaisseur nominale de 9,42 mm (0,371 po) et une limite élastique minimale spécifiée de 448 MPa (nuance de conduite X-65), et avait été fabriqué en 1973 par la Stelco d'après la norme Z245.2 de la CSA. Les conduites de la station reliées à la canalisation 100-4 ont un diamètre extérieur nominal de 1 067 mm (diamètre nominal de conduite de 42 po), une épaisseur nominale de 11,3 mm 0,445 po) et une limite élastique minimale spécifiée de 448 MPa (nuance de conduite X-65), et ont été fabriquées d'après la norme Z245.2 de la CSA. Lors de la construction de cette section de la canalisation 100-4, l'extérieur de la conduite a été recouvert d'une couche de mastic d'apprêt, d'un revêtement d'émail asphalté appliqué à chaud et d'une couche extérieure en amiante et en papier kraft. Le raccord de transition de 3,41 m (11,19 pi) et une petite section de la canalisation en amont et en aval de celui-ci ont été recouverts à la main d'un apprêt en ruban et d'un ruban de polyéthylène.

    La section de la canalisation 100-3 qui s'est rompue avait subi un essai de résistance hydrostatique en 1968, à une pression manométrique minimale de 8 487 kPa (1 231 lb/po²). L'autorisation de mise en service livrée à la TCPL le 28 novembre 1968 par l'Office national de l'énergie (ONE) prévoyait une pression manométrique maximale de service de 6 068 kPa (880 lb/po²), ce qui correspondait à 77 % de la limite élastique minimale spécifiée. La canalisation 100-3 a fait l'objet d'un nouvel essai en 1990 dans le cadre du Programme d'entretien des pipelines, mais la section touchée par la rupture n'avait pas été incluse aux fins du nouvel essai puisque la tête d'essai avait été placée à quelque 500 m (1 640 pi) en aval du lieu de l'accident.

    La section de la canalisation 100-4 qui s'est rompue avait été soumise à un essai de résistance hydrostatique en 1973, à une pression manométrique minimale de 7 585 kPa (1 100 lb/popo²). Le 30 août 1973, l'ONE avait délivré à la TCPL une autorisation de mise en service prévoyant une pression manométrique maximale de service de 6 068 kPa, ce qui correspondait à 77 % de la limite élastique minimale spécifiée. Depuis sa construction, cette section de la canalisation 100-4 n'avait fait l'objet d'aucun autre essai de résistance hydrostatique.

    Il n'y avait pas eu de réparations antérieures dans la section des canalisations 100-3, 100-4 et 100-5, entre la vanne de canalisation principale 30 et la vanne de canalisation principale 31. En 1987, 1988, 1990 et 1994, on avait inspecté cette portion du secteur ouest du pipeline à la recherche de signes éventuels de fissuration par corrosion sous tension (FCS), mais on n'y avait pas fait de travaux par la suite. Avant l'accident de Rapid City, il avait été prévu que des travaux additionnels relatifs à la FCS auraient lieu dans l'ouest du Canada en 1996, 1997 et 1998.

    La rupture des canalisations 100-3 et 100-4 a causé des dommages superficiels à la canalisation 100-5, mais n'a pas endommagé les canalisations 100-1, 100-2 et 100-6. La dernière patrouille aérienne au-dessus de cette section du réseau avant l'accident remontait à l'après-midi du 28 juillet 1995. Aucun problème n'avait été signalé à cette occasion.

    Dans le cadre des activités d'exploitation habituelles de la TCPL, des employés procèdent à une inspection annuelle du réseau, en parcourant l'emprise à pied avec des détecteurs de gaz portatifs à la recherche de fuites de gaz naturel.

    La dernière inspection de ce genre sur cette section du réseau, entre les vannes de canalisation principale 28 et 31, avait été faite entre mai et juin 1995. Aucune fuite de gaz naturel n'avait été détectée dans le secteur de la canalisation 100-4 à ce moment-là.

    1.6 Exploitation du productoduc

    Au centre de contrôle d'acheminement du gaz de la TCPL, à Calgary, on se fie à un certain nombre de données télémétriques envoyées des stations de compression et de comptage par le réseau de télémétrie du SCADA de la TCPL pour déterminer les stratégies d'exploitation optimales pour ce qui est du déplacement à contrat de quantités de gaz naturel de l'ouest du Canada. Le réseau de la TCPL est subdivisé en centres de contrôle régionaux (CCR) dont toutes les stations de compression sont commandées à distance par un COR. Au moment de l'accident, le COR se trouvait à Winnipeg.

    Après les ruptures des canalisations, la TCPL avait fait une enquête poussée sur la façon dont le SCADA commandait les vannes d'isolement, à partir du CCR de Winnipeg. Cette étude avait permis de relever dans le SCADA deux erreurs de programmation qui faisaient en sorte que les commandes de fermeture et d'isolement transmises à la station 30 restaient sans suite. On avait trouvé les causes des erreurs de programmation du SCADA et on avait trouvé des solutions pour remédier à la situation.

    Le jour de l'accident, l'opérateur de la TCPL devait être sur place en raison de problèmes mineurs liés aux communications et à la mise à jour des données du SCADA entre la station 30 et le CCR. Des employés affectés au SCADA devaient se rendre sur place le jour de l'accident pour corriger ces problèmes.

    Un examen des données de télémétrie pour la journée en question révèle qu'avant la rupture, l'écoulement quotidien de gaz naturel dans les six canalisations de la TCPL de l'ouest du Canada était d'environ 174,7 millions de m3 (6,2 milliards de pi³). Tout avait fonctionné normalement au cours des 24 heures précédentes, et l'examen n'avait révélé aucune anomalie.

    1.7 Protection cathodique des canalisations 100-3 et 100-4

    Sur chacune des six canalisations entre les vannes de canalisation principale 30 et 31, la protection cathodique (PC) est assurée au moyen d'un système à courant imposé. Le système de distribution de PC se trouve sur les terrains de la station de compression 30. Il n'y a pas d'installations d'anodes de magnésium dans cette section du réseau. En 1973, au moment de l'installation de la section de la canalisation 100-4 où la rupture s'est produite, la TCPL avait relié la canalisation au système existant à la station 30. En 1968, la TCPL avait procédé de la même façon lors de l'installation de la canalisation 100-3.

    Afin de déterminer l'efficacité du système de PC et d'assurer le respect de la norme minimale existante de 850 millivolts (mV) et celle de 900 mV, le personnel de la TCPL effectue des vérifications du système cathodique par points fixes rapprochés (close survey) à divers moments au cours de la durée utile du réseau. Les canalisations 100-3 et 100-4 avaient fait l'objet de ce type de vérifications en 1985 et 1991, ce qui avait permis de constater qu'à l'endroit de la rupture le courant était supérieur à la norme industrielle minimale.

    1.8 Programme d'atténuation de la FCS

    À la suite d'une série de ruptures en cours d'exploitation liées à la FCS, la première étant survenue en mars 1985, la TCPL a mis en place un Programme d'atténuation de la FCS dans le cadre de son Programme d'entretien des pipelines (PEP). Au départ, le Programme d'atténuation de la FCS a porté surtout sur la canalisation 100-2, dans le nord de l'Ontario. Le programme a ensuite été élargi pour inclure la canalisation 100-1 dans le couloir Toronto-Montréal, la canalisation 100-1 dans le nord de l'Ontario, et d'autres conduites choisies dans différentes régions du réseau de la TCPL.

    Le Programme d'atténuation de la FCS permet de :

    1. définir les conditions environnementales qui favorisent l'apparition de la FCS;
    2. déterminer l'étendue de la FCS dans le réseau au moyen d'essais hydrostatiques et d'excavations sélectives;
    3. d'identifier, grâce à des méthodes de détection non destructives, les défauts significatifs touchant plus de 10 % de la paroi des conduites, qui pourraient affecter l'intégrité du réseau.

    En juillet 1989, la TCPL a connu une fuite attribuable à la FCS à la vanne de canalisation principale 31-3 + 8,8 km, près de Brandon (Manitoba). En 1990, la TCPL a mené des essais hydrostatiques de la canalisation 100-3 entre les vannes de canalisation principale 30 et 31, et également entre les vannes de canalisation principale 31 et 32. En 1994, la TCPL a élargi la portée des essais sur la FCS dans le cadre du PEP, en faisant des excavations dans l'ouest du Canada. Toutefois, au jour de l'accident, les recherches effectuées dans le cadre du PEP au sujet de la FCS n'avaient pas encore dépassé les secteurs déjà examinés dans l'ouest du Canada. La TCPL avait pris cette décision pour les raisons suivantes :

    1. le sol était classé comme étant peu susceptible de causer l'apparition de FCS et n'était pas considéré comme un sol suscitant des inquiétudes;
    2. les dossiers relatifs à l'exploitation du réseau ne comprenait pas de cas liés à la FCS à cet endroit;
    3. aucune des 28 excavations faites depuis 1988 n'avait révélé une activité sensible en matière de FCS;
    4. le nouvel essai de résistance hydrostatique de la canalisation 100-3, en 1990, avait été couronné de succès.

    Avant l'accident de Rapid City, la TCPL avait prévu que des excavations additionnelles dans l'ouest du Canada commenceraient en 1996 pour se poursuivre jusqu'en 1998.

    Lorsque la canalisation 100-4 s'est rompue à Rapid City en juillet 1995, c'était la première fois que la TCPL connaissait une rupture due à la FCS sur la canalisation 100-4. C'était aussi la première fois qu'une rupture de canalisation se produisait à l'ouest de Winnipeg. L'enquête a révélé des similitudes entre cet accident et des ruptures précédentes liées à la FCS, survenues dans le réseau de la TCPL. Les similitudes sont les suivantes :

    • À l'origine, le gazoduc avait été recouvert de ruban de polyéthylène à l'endroit de la rupture; ce ruban était similaire au revêtement extérieur appliqué sur le gazoduc à d'autres endroits du réseau de la TCPL qui ont été touchés par des ruptures dues à la FCS.
    • La rupture s'est produite dans un champ de blé avoisinant des champs de canola et de luzerne, où le sol est fait d'une formation morainique argileuse ou sablonneuse, comme c'est le cas à d'autres endroits où des ruptures dues à la FCS se sont produites.
    • Le secteur est classé comme un secteur vallonné ou légèrement accidenté où des dépôts morainiques superficiels prédominent. De nombreux petits marais se trouvent le long du tracé du gazoduc dans cette section de vanne de canalisation principale. Il y avait sept marais aux environs du lieu de la rupture. Le terrain est classé comme un terrain imparfait et mal irrigué. Les conditions du sol où a eu lieu l'accident ressemblent à celles qu'on a relevées sur les lieux d'autres ruptures dues à la FCS dans le réseau de la TCPL.

    Pour avoir une vue d'ensemble du PEP de la TCPL et de l'information sur les conditions du sol et les revêtements de canalisation qui peuvent influer sur l'apparition de la FCS, on peut consulter les rapports nos P92T0005, P91H0041, P91H0117 et P95H0003 du BST.

    1.9 Espacement des canalisations principales du réseau de la TCPL

    Les dossiers de la TCPL indiquent que l'emprise de la TCPL mesure 66,10 m (220,33 pi) sur les lieux de la rupture. (Voir les annexes A et B.). À l'intérieur des limites de l'emprise, l'espacement entre les canalisations 100-1, 100-2, 100-3 et 100-4 est de 9,1 m (29,85 pi). À l'endroit où la rupture s'est produite, l'espacement horizontal entre les canalisations 100-3 et 100-4 était de 7 m (22,97 pi), ce qui est inférieur aux normes de la compagnie en matière d'espacement horizontal. La canalisation 100-6 se trouve à la limite nord de l'emprise de la TCPL et passe dans l'axe nord-sud sous les cinq autres canalisations, à un endroit situé en aval des lieux de l'accident.

    À l'endroit où la rupture s'est produite, la canalisation 100-5 passe sous les canalisations 100-1, 100-2, 100-3 et 100-4 avec un espacement minimal de 80 cm à 170 cm (2,62 pi à 5,58 pi) entre la partie supérieure de la canalisation 100-5 et la partie inférieure des quatre autres canalisations. Bien que l'espacement vertical entre les conduites du réseau de la TCPL soit généralement conforme aux normes de la CSA, il n'existe pas de règlement, ni de norme, ni de ligne directrice au sujet de l'espacement horizontal entre des conduites parallèles. La TCPL a plutôt établi des normes d'espacement horizontal entre les canalisations principales. Ces normes reposent sur des études relatives à la taille des cratères consécutifs aux ruptures de canalisation et tiennent compte du diamètre et des pressions de service des installations de la TCPL. Le réseau principal de la TCPL compte environ 270 croisements de canalisations similaires au croisement qu'on trouve à l'endroit où s'est produite la rupture de Rapid City.

    1.10 Essais métallurgiques

    La composition chimique et les propriétés mécaniques des sections de conduite enlevées des canalisations 100-3, 100-4 et 100-5, loin des endroits touchés par les ruptures, étaient conformes aux spécifications des conduites au moment de l'achat.

    Une analyse métallurgique a révélé que la cause de la rupture de la canalisation 100-4 est la présence d'un défaut préexistant à la hauteur du talon du bourrelet longitudinal de la soudure et qui dénotait une FCS externe. On a observé deux défauts importants (désignés « A » et « B ») qui se trouvaient à quelque 2,35 m (7,7 pi) l'un de l'autre et qui partaient de la surface extérieure dans le talon du bourrelet longitudinal de la soudure de type DSAW dans le raccord de transition de 3,41 m (11,19 pi) de la canalisation 100-4. La défaillance n'a pas pris naissance là où l'épaisseur de la paroi de la canalisation change, aux extrémités du raccord de transition, mais plutôt à une certaine distance d'une des extrémités. Ces défauts sont apparus durant la vie utile du gazoduc et ne sont pas attribuables à des défauts de la paroi de la conduite qui dateraient de la période précédant sa fabrication, son installation ou sa construction. La conduite s'est rompue lorsque le défaut « A » a progressé à 81 % de l'épaisseur nominale de la paroi de la conduite; après quoi la paroi était trop mince pour résister à la pression de service normale du gazoduc.

    Le défaut « B » était plus profond et plus long que le défaut « A », mais il était de forme irrégulière, de sorte que sa surface était inférieure à celle du défaut « A ». Il y avait une déformation marquée autour du défaut « B », mais pas autour du défaut « A ». L'analyse de surface a révélé la présence de corrosion de surface et de colonies de FCS (fissures secondaires à la surface) à proximité des deux défauts. La fractographie a révélé une zone récente de propagation de fissures à l'extrémité du défaut « A », mais pas à l'extrémité du défaut « B ». Le défaut « B » comptait des sites d'amorces multiples, ce qui concorde avec le fait que plusieurs fissures d'une colonie de FCS se regroupaient pour former un front de fissuration unique qui se propageait ensuite dans la zone affectée thermiquement du talon du bourrelet longitudinal de la soudure de type DSAW. Toutefois, le même mécanisme d'action n'était pas évident dans le cas du défaut « A ». L'examen métallurgique a conclu que le défaut « A » avait pris naissance dans un défaut préexistant du talon du bourrelet longitudinal de la soudure de type DSAW. L'examen métallurgique de plusieurs sections transversales du talon du bourrelet longitudinal de la soudure de type DSAW a révélé la présence de petits laminages qui se seraient séparés et propagés par suite des contraintes thermiques ou résiduelles dues au procédé de soudage DSAW.

    Une analyse métallurgique a permis de déterminer que la canalisation 100-3 s'est rompue sous l'action d'une surcharge causée par la chaleur de l'incendie qui a réduit les propriétés mécaniques de la conduite au point que la paroi de la conduite n'a pas résisté aux contraintes de la pression interne de service. L'analyse métallurgique a montré que des laminages associés à une microstructure en bandes et à des inclusions linéaires sont apparus à mesure que les contraintes augmentaient. Les laminages ne se trouvaient pas à l'endroit où la fracture a pris naissance et n'ont joué aucun rôle dans la défaillance, mais leur présence révèle des points faibles qui ont permis à la fracture de progresser.

    Une analyse métallurgique a révélé que la chaleur de l'incendie n'a pas affecté la composition métallurgique de la section de conduite enlevée sur la canalisation 100-5.

    Un contrôle par magnétisation des sections de conduite des canalisations 100-3 et 100-5 n'a révélé aucune FCS secondaire. Ce contrôle a permis de confirmer que la rupture des sections de conduite de la canalisation 100-3 a été causée par la rupture de la canalisation 100-4.

    2.0 Analyse

    2.1 Introduction

    L'analyse métallurgique a identifié la FCS comme étant à l'origine d'un affaiblissement du gazoduc qui a donné lieu à une surcharge à la hauteur d'un défaut préexistant sur la surface extérieure de la paroi de la conduite de la canalisation 100-4. La première explosion et la chaleur de l'incendie subséquent ont provoqué la rupture d'une autre canalisation. Le feu a également endommagé le revêtement extérieur de la surface de la conduite d'une troisième canalisation. Les ruptures des canalisations et la perte de pression de service interne des deux canalisations ont provoqué une intervention immédiate, déclenchant la mise en oeuvre d'une série de mesures d'urgence qui ont été prises à point nommé par le personnel d'exploitation et par le personnel de la TCPL qui se trouvaient sur les lieux.

    L'analyse portera surtout sur l'espacement des canalisations principales, la fermeture des installations, le revêtement et les conditions environnementales qui ont donné lieu à la FCS, ainsi que sur les politiques et les procédures de la TCPL concernant l'identification, l'excavation, les vérifications et les réparations des secteurs susceptibles d'être affectés par la FCS.

    2.2 Examen des faits

    2.2.1 Espacement horizontal des canalisations principales

    L'examen géométrique de la section de conduite rompue provenant de la canalisation 100-3 a révélé que cette section s'est rompue sous l'action directe de l'explosion de la canalisation 100-4 et de la chaleur intense due à la combustion du gaz naturel.

    Quand une compagnie conçoit un nouveau gazoduc, elle doit se conformer à diverses normes de la CSA et à divers règlements de l'ONE pour s'assurer que la conception est appropriée et satisfait aux exigences actuelles de sécurité et d'exploitation. Une des normes de la CSA précise l'espacement vertical minimal qu'il doit y avoir entre les canalisations qui se croisent. Cette norme de la CSA est très précise quant à l'espacement vertical minimal entre les canalisations, dans différentes situations. Toutefois, dans le cas de l'espacement horizontal de canalisations parallèles adjacentes, il n'existe pas de norme nationale de la CSA, ni de règlement de l'ONE, ni de ligne directrice de l'industrie.

    Bien que l'industrie des pipelines ne reçoive pas de directives sur l'espacement horizontal sûr, l'enquête a révélé que l'espacement actuel entre les canalisations 100-3 et 100-4 est plutôt standard dans l'industrie. La TCPL a des normes relatives à l'espacement horizontal des canalisations principales, mais l'industrie canadienne des pipelines n'a pas établi d'exigences en matière d'espacement horizontal entre des pipelines parallèles et n'a pas établi de normes nationales applicables à tous les pipelines au Canada.

    2.2.2 Fermeture d'urgence des installations

    Le manuel des procédures d'urgence de la TCPL expose clairement les étapes que le personnel de la compagnie doit suivre lors d'une situation d'urgence, n'importe où dans le réseau.

    Le système de fermeture d'urgence et le réseau SCADA de la TCPL font l'objet d'inspections et d'épreuves de rendement qui sont exécutés avec diligence. Dans le cas des sections qui présentent des problèmes, la TCPL améliore continuellement son système de fermeture d'urgence et son réseau SCADA pour que le réseau puisse réagir correctement et afin d'assurer l'exploitation et la fermeture en toute sécurité du réseau dans des conditions normales et lors d'une situation d'urgence.

    Bien que la TCPL s'acquitte de ces différentes tâches, il arrive que l'interface humain-machine ne réponde pas correctement lors d'une situation d'urgence. À partir des premiers moments jusqu'à l'isolement complet de la station de compression de Rapid City, le COR et l'employé de la TCPL ont essayé à maintes reprises de fermer les installations et le gazoduc et de les isoler.

    Avant cet accident, le système de fermeture d'urgence et le SCADA ne semblaient pas présenter de problèmes inhabituels de fonctionnement qui auraient exigé que la TCPL prenne des mesures immédiates. Le jour de l'accident, des employés affectés au SCADA étaient sur les lieux parce que le SCADA présentait des problèmes de fonctionnement qu'il fallait corriger. Cependant, lors de la situation d'urgence, le système n'a pas commandé la fermeture des installations quand cela est devenu prioritaire. Il y a eu un délai d'une durée inhabituelle avant la fermeture des installations et l'interruption de l'arrivée du gaz naturel sur les lieux de l'accident. Dès qu'on a fermé le réseau, notamment après avoir envoyé des commandes d'isolement vers les stations de compression en amont et en aval, puis, après avoir fermé chacune des vannes à la station de compression de Rapid City, le COR a dû envoyer à nouveau, toutes les 15 minutes, des commandes pour fermer les vannes principales. Le système de fermeture d'urgence est censé avoir la capacité de fermer les installations et de laisser échapper tout le gaz naturel contenu dans la conduite pour venir rapidement à bout d'une situation d'urgence. Une fois que la nature et l'étendue de l'accident sont déterminées, le COR peut remettre en fonction divers tronçons du réseau qui ne sont pas touchés et remettre le réseau en fonction en ouvrant une canalisation ou une vanne à la fois.

    L'employé de la TCPL qui se trouvait sur place a tenté à plusieurs reprises de fermer les installations, mais la fermeture n'a pas été amorcée parce que le bouton de fermeture d'urgence n'avait pas été enfoncé suffisamment. Des essais menés après l'accident ont permis de déterminer que le bouton de fermeture d'urgence était utilisable. On a conclu que le bouton n'avait pas été enfoncé suffisamment. L'opérateur a déclaré que, pendant sa formation, les indices lui permettant de savoir si la fermeture de la station de compression avait été commandée étaient le changement brusque du niveau de bruit, le son des alarmes et le bruit du gaz naturel qui s'échappait par les différentes vannes de purge situées sur le terrain de la station. Si le message n'a pas été envoyé, le bouton de fermeture d'urgence revient à sa position première, ce qui oblige la personne à essayer de nouveau. Cependant, lors de l'accident en cause, le bruit du gaz naturel qui fuyait et du feu a couvert le bruit de fond normal et le son des alarmes de la station. L'employé de la TCPL sur place a essayé à plusieurs reprises de fermer les installations, mais comme le bouton était conçu pour revenir à sa position première, il était impossible de savoir avec certitude si la fermeture des installations avait été commandée. S'il y avait eu un signal de retour pour indiquer que la fermeture d'urgence n'avait pas été commandée, il aurait été évident qu'il fallait enfoncer le bouton de nouveau.

    Pendant que le COR posté à Winnipeg et l'employé sur place de la TCPL essayaient à maintes reprises de fermer les installations en vue de limiter l'écoulement de gaz naturel vers les lieux de l'accident, le feu brûlait sans qu'on puisse intervenir. La première explosion et le violent incendie qui a suivi ont causé des dommages à diverses installations de la station de compression située à environ 200 m en amont du lieu de l'accident; notamment, les fils qui servent à commander et à fermer les installations et les vannes de la station de compression pendant l'exploitation normale et dans les situations d'urgence ont été endommagés par le feu et la chaleur. Diverses méthodes d'analyse permettent de cerner les manquements à la sécurité relatifs à la fiabilité des systèmes primaires et la disponibilité d'autres modes de contrôle. On peut par exemple appliquer la méthode d'analyse par arbre de défaillance pour déceler les lacunes du SCADA et du système de fermeture d'urgence existant et pour les corriger, le cas échéant.

    2.2.3 Revêtement extérieur et conditions environnementales

    Lancé en 1985, le PEP a pour objet de régler le problème de FCS que la TCPL a relevé dans son réseau. On sait maintenant que les revêtements de ruban de polyéthylène et d'asphalte montrent une propension particulière à la FCS dans certaines conditions environnementales. Du revêtement de ruban de polyéthylène a été trouvé sur les lieux de l'accident. Le revêtement de ruban de polyéthylène montre une susceptibilité beaucoup plus grande à la FCS que les autres revêtements susceptibles d'être touchés par la FCS. Les mesurages de PC faits par les employés de la TCPL ont révélé une PC complète dans la zone de la rupture.

    Le PEP a révélé que le revêtement extérieur de polyéthylène se détache ou se détériore, ou les deux, avec le temps, ce qui agit comme un écran électrique pour le courant de PC. On désigne ce phénomène sous le nom d'écran de PC. Quand ce phénomène se produit, le courant imposé du système de PC ne peut pas atteindre le métal exposé qui se trouve sous le revêtement. Cet écran électrique donne lieu à des changements du gradient de potentiel du système de PC, c'est-à-dire dans les secteurs où le courant de PC est insuffisant. Il s'ensuit que le système de PC ne protège pas suffisamment le secteur en question contre la FCS et qu'une rupture risque de se produire après un certain temps, si tous les autres facteurs qui provoquent la FCS sont présents à cet endroit.

    On sait que la présence de bactéries dans l'eau du sol et dans les eaux souterraines accélère le processus de FCS, mais on ne connaît pas bien le rôle des bactéries dans ce processus de détachement ou de détérioration et on ne le comprend pas bien. On a consacré beaucoup de temps et de ressources pour essayer de comprendre le phénomène de FCS, mais on comprend mal l'interaction entre les bactéries, le mastic d'apprêt et le revêtement de ruban de polyéthylène, et l'existence de FCS.

    2.2.4 Modèle de la TCPL concernant les sols susceptibles de causer la FCS

    L'établissement d'un modèle de sols est l'un des éléments clés du Programme d'atténuation de la FCS que la TCPL a lancé en 1985. Ce modèle a pour objet d'aider les employés de la TCPL à cerner les sols qu'on sait propices à l'apparition de la FCS. À l'heure actuelle, le modèle couvre surtout les installations de la TCPL situées à l'est de Winnipeg. La TCPL a exécuté certains travaux d'excavation à l'ouest de Winnipeg, mais elle n'a pas appliqué le modèle à ses installations de l'ouest du Canada. La recherche expérimentale et la recherche sur le terrain ont révélé la présence de FCS dans des gazoducs exploités dans les régions de l'ouest du Canada. Comme on l'a déjà signalé dans d'autres rapports d'enquête du BST sur des accidents liés à la FCS, le réseau de la TCPL situé dans l'ouest du Canada a connu une fuite attribuable à la FCS à Brandon, en 1989. Cependant, au moment de l'accident, la TCPL n'avait pas élargi à tout son réseau l'application de son modèle de sols sujets à la FCS, parce qu'elle attendait que les sommes nécessaires soient prévues au budget de 1994 pour la mise au point en 1995 d'un modèle de sols applicable à tout le réseau. Au moment de l'accident de Rapid City, la TCPL commençait seulement à mettre au point un modèle élargi concernant les sols sujets à la FCS, qui devait couvrir le réseau de la TCPL dans l'ouest du Canada. La TCPL prévoit que le modèle de sols applicable à tout le réseau sera en place en 1997.

    3.0 Faits établis

    3.1 Faits établis

    1. La rupture de la canalisation 100-4 a pris naissance au talon du bourrelet longitudinal de la soudure de type DSAW faite dans un raccord de transition de 3,41 m de longueur, à la suite d'une surcharge à la hauteur d'un défaut préexistant important qui présentait une FCS.
    2. Un deuxième défaut important causé par la FCS, et situé à quelque 2,35 m du défaut qui a causé la rupture, a été découvert dans le talon du bourrelet longitudinal de la soudure de type DSAW dans le même raccord de transition.
    3. La surface extérieure de la canalisation 100-4 avait été recouverte d'un revêtement asphalté. Le raccord de transition de 3,41 m de longueur avait été fabriqué sur place lors de la construction de la canalisation 100-4 et avait été recouvert sur place d'une couche d'apprêt et d'un ruban extérieur de polyéthylène appliqué à la main.
    4. On sait que la FCS se produit sous les revêtements extérieurs de polyéthylène, lesquels sont susceptibles de se détacher ou de se dégrader, ou les deux, ce qui crée à la surface de la conduite un secteur qui est isolé de l'effet du système de PC.
    5. Les études sur l'efficacité du système de PC ont montré qu'à l'endroit de la rupture, le courant de PC était supérieur aux normes minimales de l'industrie.
    6. La canalisation 100-3 est parallèle aux autres canalisations et passe à l'horizontale à quelque 7 m au nord. Sa rupture est le résultat d'une surcharge causée par l'action de l'incendie qui a suivi la rupture de la canalisation 100-4. Le feu a réduit les propriétés mécaniques de la surface de la conduite au point que la paroi de la conduite a cédé sous la pression interne de service.
    7. Bien que la TCPL ait établi des normes relatives à l'espacement horizontal entre les canalisations principales, il n'existe pas de règlement de l'ONE, ni de norme nationale de la CSA, ni de ligne directrice établissant des espacements horizontaux sûrs entre des canalisations parallèles, alors qu'il en existe au sujet de l'espacement vertical entre des canalisations qui se croisent.
    8. La canalisation 100-5 passait directement sous la zone de la rupture, mais elle ne s'est pas rompue; toutefois, le revêtement de surface de la canalisation a été endommagée par le feu et un tronçon de la canalisation a dû être remplacé par une conduite neuve.
    9. Bien que le COR de Winnipeg ait réagi immédiatement aux indications simultanées de perte de pression et de rupture du gazoduc, il a essayé à plusieurs reprises, pendant deux heures, de commander une fermeture d'urgence assistée par ordinateur de la station de compression de Rapid City, en vue d'interrompre l'arrivée de gaz naturel sur les lieux de l'accident, mais il n'a pas réussi en raison de l'action de l'explosion et de l'incendie sur l'équipement local de fermeture d'urgence dont dépendait l'exécution de ces commandes transmises par ordinateur, et en raison des erreurs de programmation du SCADA.
    10. Le COR de Winnipeg a dû envoyer la commande de fermeture toutes les 15 minutes parce que, lors d'une fermeture d'urgence, le SCADA n'a pas priorité sur le dispositif de fonctionnement aux 15 minutes lié aux commandes de fermeture.
    11. L'employé de la TCPL qui se trouvait à la station de compression 30 a essayé à plusieurs reprises, mais en vain, de commander la fermeture de la station, mais l'équipement n'a pas donné d'indication claire que la fermeture des installations avait été commandée.
    12. La TCPL a établi depuis 1985 un modèle des sols sujets à la FCS, mais au moment de l'accident, ce modèle ne portait que sur le réseau de pipelines situé à l'est de Winnipeg et ne portait pas sur le secteur dans lequel on a trouvé des sols susceptibles de causer la FCS.

    3.2 Causes

    La première rupture a été causée par une cassure ductile due à une surcharge consécutive à une fissuration par corrosion sous tension de la canalisation. La deuxième rupture a été attribuée à la chaleur du premier incendie et à la fermeture tardive de la canalisation 100-4.

    4.0 Mesures de sécurité

    4.1 Mesures prises

    4.1.1 Programme d'atténuation de la FCS de la TCPL

    À la suite de cet accident, la TCPL a accéléré l'application du Programme de gestion de la FCS dans l'ouest du Canada et en a modifié la portée, en procédant à de nouveaux essais hydrostatiques, à des modélisations de sols, à des excavations de recherche et au remplacement de canalisations. Elle a procédé à 91 excavations de recherche, dont 55 dans l'ouest du Canada. De plus, dans le cadre du Programme de gestion de la FCS mené par la TCPL :

    1. le modèle de sols sujets à la FCS a été modifié pour permettre son application à tous les tronçons du réseau de la TCPL;
    2. on a découvert que, dans 81 des endroits où l'on avait creusé, les canalisations étaient recouvertes d'un ruban extérieur de polyéthylène appliqué à la main;
    3. six tronçons de la canalisation 100-4 dans l'ouest du Canada avaient fait l'objet de nouveaux essais hydrostatiques pour établir si la canalisation montrait d'autres défauts de structure graves où la FCS pourrait apparaître;
    4. trois inspections internes ont été faites dans le nord de l'Ontario. Ces inspections ont révélé la présence de FCS à 12 endroits. À la fin de 1996, des excavations de recherche ont confirmé la présence de fissures (FCS) à quatre de ces endroits. La profondeur des fissures était inférieure à 10 % de la paroi de la canalisation. D'autres excavations devaient être faites aux huit autres endroits.

    4.1.2 Enquête de l'ONE sur la FCS

    Le 11 août 1995, l'ONE a annoncé la tenue d'une enquête publique sur les cas de FCS dans les réseaux d'oléoducs et de gazoducs du Canada. L'enquête de l'ONE a permis d'évaluer l'étendue de la FCS sur les pipelines et d'examiner les mesures qui pourraient être prises pour régler le problème.

    Le rapport de la commission d'enquête de l'ONE a été transmis à l'ONE et rendu public le 19 décembre 1996. Le rapport d'enquête renferme 27 recommandations ayant pour objet d'augmenter le niveau de sécurité du public en ce qui concerne les oléoducs et les gazoducs enfouis au Canada. Ces recommandations peuvent se regrouper dans les grandes catégories suivantes :

    1. programmes de gestion de la FCS;
    2. changements au niveau de la conception;
    3. recherche;
    4. base de données sur la FCS;
    5. procédures d'intervention en cas d'urgence;
    6. mise en commun de l'information.

    Le Bureau croit que la mise en oeuvre des mesures recommandées à la suite de l'enquête publique de l'ONE permettra de mieux gérer les risques associés à la FCS dans les pipelines.

    4.1.3 Programmation du SCADA

    La TCPL a fait savoir qu'elle avait corrigé les problèmes de programmation du SCADA, relatifs aux commandes de fermeture et d'isolement qui ont été relevés au cours de l'enquête.

    4.2 Mesures à prendre

    4.2.1 Système de fermeture d'urgence

    4.2.1.1 Fermeture d'urgence du Centre des opérations régionales

    Le Bureau est préoccupé par le fait que le COR ne soit pas arrivé à fermer rapidement le réseau, alors que le réseau est conçu pour assurer la fermeture des installations en cas d'urgence.

    La force de l'explosion a éliminé toutes les possibilités de communication à destination et en provenance de la station, de sorte que le COR ne pouvait plus commander le système de fermeture d'urgence en raison des dommages indirects causés à l'équipement de télécommunication de l'installation. L'ordinateur n'a pas pu exécuter les commandes transmises par le COR en raison de la panne de communication. Résultat, l'installation a continué de faire circuler le produit dans la conduite.

    Le COR et l'employé sur place de la TCPL ont essayé de fermer les installations, mais le réseau n'a été isolé complètement que près de deux heures après la première rupture de la canalisation 100-4. (Encore là, le COR a dû improviser pour réaliser la fermeture des installations en suivant un processus fastidieux consistant à fermer les vannes nécessaires l'une après l'autre et à assurer un suivi toutes les 15 minutes pour les garder fermées.) Entre-temps, l'arrivée ininterrompue de produit qui alimentait le feu a causé des dommages graves, notamment la rupture d'une deuxième canalisation et des dommages à une troisième. Au niveau de la conception, le Bureau croit que les systèmes de fermeture d'urgence devraient être renforcés contre les explosions et les incendies provoqués par les ruptures de ce genre. En fait, pour assurer une protection totale, le dispositif de fermeture d'urgence devrait être capable d'interrompre automatiquement l'arrivée de produit sur les lieux de l'accident, en se substituant à d'autres commandes au besoin, jusqu'à ce qu'on ait vérifié si l'exploitation normale peut reprendre sans danger. Par conséquent, le Bureau recommande :

    que l'Office national de l'énergie réévalue la conception du dispositif de fermeture d'urgence, partout dans le réseau de canalisations, pour permette une interruption rapide de l'arrivée du produit, en cas de rupture d'une canalisation.
    Recommendation P97-01 du BST

    4.2.1.2 Procédures locales de fermeture d'urgence

    En plus de cerner des lacunes dans le système relativement à la fermeture d'urgence commandée à distance par le COR, l'enquête a révélé des lacunes dans les procédures de fermeture d'urgence sur place. L'employé de la TCPL qui se trouvait sur place a essayé à plusieurs reprises de fermer la station. Quand une fermeture d'urgence est commandée pendant une séance de formation, le niveau du bruit de fonctionnement diminue considérablement à l'intérieur de l'installation, ce qui permet au personnel de savoir que la fermeture des installations a été amorcée. Toutefois, compte tenu des conditions qui régnaient au moment de l'accident, le niveau de bruit attribuable à la rupture des canalisations à proximité de l'installation était beaucoup plus élevé que le niveau normal de bruit dû au fonctionnement des installations. Par conséquent, rien n'indiquait à l'employé que la fermeture n'avait pas été amorcée comme prévu.

    Le Bureau reconnaît qu'il arrive souvent qu'il n'y ait pas de personnel dans les stations de compression. Toutefois, en guise de relève aux systèmes de fermeture d'urgence commandés à distance, des employés de la compagnie devraient être capables de commander sur place la fermeture de la station. Une telle mesure suppose non seulement la mise en place de l'équipement nécessaire et la formation des employés concernés, mais aussi l'installation d'un dispositif qui permettrait à l'employé de savoir si la fermeture a bel et bien été amorcée. Par conséquent, le Bureau recommande, dans le cadre de l'examen de conception proposé dans la recommandation P97-01 qui précède :

    que l'Office national de l'énergie réévalue le caractère adéquat des systèmes de fermeture d'urgence dans les stations de compression, pour permettre aux opérateurs d'être au courant de l'état de fonctionnement du réseau lors d'une situation d'urgence.
    Recommendation P97-02 du BST

    4.3 Préoccupations liées à la sécurité

    4.3.1 Espacement horizontal des canalisations

    Le Bureau sait que la CSA impose déjà des exigences en matière d'espacement vertical des canalisations au Canada. On comprend que ces exigences traitent de la sécurité des canalisations qui se croisent à la verticale. Il n'existe toutefois pas d'exigences similaires concernant l'espacement horizontal des canalisations.

    Compte tenu des conséquences catastrophiques que pourrait entraîner une rupture de gazoduc, surtout dans les régions à forte densité de population, il est essentiel que les canalisations adjacentes soient espacées les unes des autres, tant dans le sens vertical que dans le sens horizontal, de façon qu'elles soient protégées contre les risques de dommages indirects. Le Bureau croit que les normes actuelles à cet égard ne sont pas adéquates.

    Le présent rapport met fin à l'enquête du Bureau de la sécurité des transports sur cet accident. La publication de ce rapport a été autorisée le par le Bureau qui est composé du Président Benoît Bouchard et des membres Maurice Harquail, Charles Simpson et W.A. Tadros.

    Annexes

    Annexe A - Vue planimétrique du secteur touché

    Annexe B - Vue topographique du secteur touché