Rapport d'enquête maritime M98M0078

Chavirement
d'une petite embarcation à fond plat dans la baie de
Tracadie (Île-du-Prince-Édouard)

Le Bureau de la sécurité des transports du Canada (BST) a enquêté sur cet événement dans le but de promouvoir la sécurité des transports. Le Bureau n’est pas habilité à attribuer ni à déterminer les responsabilités civiles ou pénales. Le présent rapport n’est pas créé pour être utilisé dans le contexte d’une procédure judiciaire, disciplinaire ou autre. Voir Propriété et utilisation du contenu.

Table des matières

    Résumé

    La petite embarcation à fond plat, sans nom, équipée d'un moteur hors-bord, a quitté le port de Tracadie sur l'Île-du-Prince-Édouard pour aller récolter des moules dans la baie de Tracadie. En rentrant au port avec un plein chargement de moules, le moteur est tombé en panne. La petite embarcation à la dérive est venue en travers des vagues et a embarqué des paquets de mer pendant une vingtaine de minutes avant de chavirer. Les deux occupants sont tombés à l'eau et se sont noyés.

    This report is also available in English.

    Renseignements de base

    Nom Embarcation sans nom
    Pavillon Canada
    Type Petite embarcation à fond plat utilisée
    pour la récolte des moules
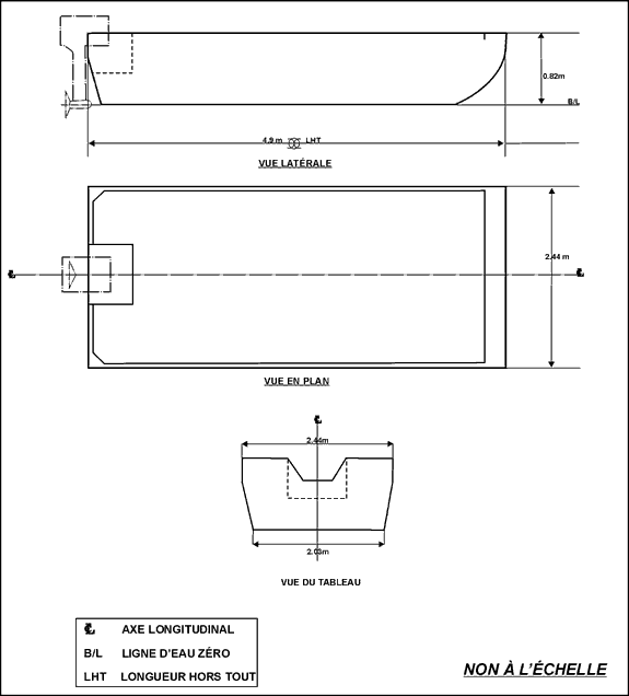
    LongueurNote de bas de page 1 4,9 m
    Largeur 2,44 m
    Creux 0,81 m
    Tirant d'eau (en charge) 0,51 m
    Construction East Isles Metal Fab Inc., Grandview, (Î.-P.-É.)
    Groupe propulseur Un moteur hors-bord Yamaha de 44,7 kW (60 HP)
    Équipage 2
    Propriétaire George Alvin Hambly, Murray River, (Î.-P.-É.)

    Il s'agit d'une petite embarcation à fond plat non pontée en aluminium. L'avant et l'arrière ont la même forme. L'embarcation n'a ni double fond ni emménagements ni bancs pour les occupants. Elle est propulsée par un hors-bord de 60 HP commandé et gouverné d'un endroit situé du côté tribord à l'avant. On peut voir un schéma de l'embarcation à l'annexe A.

    Le hors-bord est monté sur un puits profond au centre du tableau arrière. L'embarcation est munie d'un palan hydraulique articulé placé sur l'axe longitudinal à l'avant. Le palan est mû par une pompe entraînée par un moteur à essence portatif monté à l'arrière du côté bâbord. L'embarcation est aussi munie d'une pompe de cale électrique non automatique d'un débit d'environ 1,57 litre par seconde. L'embarcation n'est pas équipée d'une radio.

    L'embarcation a été construite en 1998 dans un atelier de soudure local selon des exigences précisées verbalement par le propriétaire. Aucun plan n'avait été produit. L'embarcation n'avait pas de permis et n'était pas enregistrée. Elle est considérée comme un bateau de pêche aux fins de l'application des règlements. Elle n'était pas assujettie à des inspections réglementaires de Transports Canada, et elle n'avait pas été inspectée. On n'avait pas préparé de données de stabilité, et les règlements n'exigeaient pas la production de telles données.

    Déroulement du voyage

    Le 22 octobre 1998, vers 7 h 30, heure avancée de l'Atlantique (HAA)Note de bas de page 2, la petite embarcation à fond plat quitte le port de Tracadie. Quelques minutes plus tard, le patron et son assistant rencontrent, dans la baie de Tracadie, le gestionnaire d'une exploitation myticole locale qui leur indique les lignesNote de bas de page 3 à récolter. Le patron de l'embarcation reçoit instruction de récolter l'équivalent de 16 bacsNote de bas de page 4 (caisses de transbordement) de moules pendant la journée. Le gestionnaire de l'exploitation myticole part ensuite pour un autre secteur de la baie.

    Le patron et son assistant récoltent une pleine charge de boudins remplis de moules. L'embarcation n'est pas assez large pour placer côte à côte deux rangées de bacs, et le patron a l'habitude de placer trois bacs l'un derrière l'autre sur l'axe longitudinal; au fond de l'embarcation, il place l'équivalent de deux bacs et demi de moules dans leurs boudins. Chargée de la sorte, l'embarcation a un franc-bord d'environ 30 cm, ce qui correspond aux conditions normales d'exploitationNote de bas de page 5.

    Vers 9 h, un vent du nord se lève et la mer grossit peu à peu. Selon l'information recueillie, les lames ont de 30 à 60 cm de hauteur.

    On termine le chargement de l'embarcation peu avant 9 h 30. On met le moteur en marche et on met le cap sur le quai de Tracadie Harbour. Quelques minutes plus tard, le hors-bord tombe en panne. Deux autres marins-pêcheurs aperçoivent l'embarcation qui dérive en travers des vagues pendant une vingtaine de minutes. Toutefois, comme ils savent que le moteur a des problèmes mécaniques de temps en temps et a parfois tendance à s'emballer et comme ils ne voient aucun signal de détresse, ils ne jugent pas nécessaire de prêter assistance aux occupants de l'embarcation. L'embarcation finit par chavirer, et ses deux occupants sont projetés à la mer. Ils portent tous les deux des bottes, une veste et des pantalons en caoutchouc lourds. Ils ne portent ni gilet de sauvetage ni vêtement de flottaison individuel, et il n'y en a pas à bord.

    En voyant l'embarcation chavirer, les autres marins-pêcheurs se dirigent aussitôt vers elle. Ils ne mettent que quelques minutes à arriver sur le lieu du naufrage, mais ils ne voient pas de survivants. À 9 h 51, le Centre de coordination des opérations de sauvetage de Halifax (Nouvelle-Écosse) est prévenu. Un hélicoptère de la Garde côtière canadienne décolle de Charlottetown (Île-du-Prince-Édouard). L'hélicoptère arrive sur les lieux et commence à quadriller le secteur environ 25 minutes plus tard. Il n'aperçoit pas de survivants.

    Vers 13 h 13 le même jour, des plongeurs de la Gendarmerie royale du Canada (GRC) repêchent les corps des deux disparus. L'autopsie révélera qu'ils sont morts d'asphyxie causée par la noyade.

    L'embarcation est récupérée le lendemain. Le moteur hors-bord est en position relevée.

    Brevets, certificats, formation et expérience

    Le patron travaillait dans le domaine de l'aquaculture depuis environ deux ans et il était propriétaire de l'embarcation depuis à peu près cinq mois. Aucune des deux victimes ne possédait de brevet ou de certificat de compétence, ce qui n'était pas obligatoire pour ce type d'embarcation. Ils n'avaient jamais reçu de formation nautique officielle et n'avaient jamais suivi de cours en sécurité nautique, ce qui n'était pas obligatoire dans leur cas.

    Analyse

    Problèmes mécaniques

    Selon l'information recueillie, le moteur hors-bord de l'embarcation tombait en panne de temps en temps. Le tableau arrière, là où le moteur est monté, émerge d'environ 40 cm au-dessus de la flottaison lorsque l'embarcation est vide. Toutefois, selon l'information recueillie, le puits du moteur se trouvait souvent à 3 cm sous la flottaison quand l'embarcation rentrait au port avec une pleine charge. Du fait que le moteur se trouvait très près de la flottaison, de l'eau a pu y pénétrer lorsque la hauteur des lames a augmenté. Les pannes intermittentes et les problèmes d'emballement du moteur sont typiques de problèmes liés à l'emplacement du moteur.

    Après l'accident, le hors-bord a été démonté et inspecté. Aucun dommage interne n'a été décelé. On a trouvé du carburant dans les conduites, dans la pompe à carburant et dans le corps du filtre à carburant. On a trouvé de l'eau dans les cuves à flotteur des carburateurs intermédiaire et inférieur. Alimenté en carburant propre et relié à une batterie, le moteur a démarré et a bien tourné sur tous les cylindres. L'absence de dommages internes, ainsi que la facilité du moteur à démarrer avec du carburant propre et une batterie, confirme que le moteur ne tournait pas, ou du moins qu'il ne tournait pas à pleine puissance lorsqu'il a été soudainement immergé quand l'embarcation a chaviré. Le fait que le moteur hors-bord se trouvait en position relevée lorsque l'embarcation a été récupérée montre aussi que le moteur ne fonctionnait pas au moment de l'accident.

    Le fait qu'il y avait du carburant dans les conduites et dans le corps du filtre à carburant indique qu'une panne d'alimentation en carburant est peu probable. Toutefois, le carburant récupéré était très altéré, ce qui peut expliquer les difficultés avec le moteur.

    Stabilité

    L'examen des dimensions de la coque et de la répartition de la charge, ainsi que l'examen des tirants d'eau et des francs-bord signalés, montre que l'embarcation avait une stabilité transversale à l'état intact positive, aussi bien vide qu'avec une pleine charge.

    Il n'existe pas de dispositions réglementaires régissant le tirant d'eau (et par le fait même le franc-bord) ou l'assiette autorisé pour le chargement sans danger d'un bateau de pêche comme l'embarcation qui a chaviré. Par conséquent, les petites embarcations à fond plat utilisées pour la récolte des moules n'ont pas de lignes de charge, et on s'en remet au bon jugement des exploitants pour qu'elles soient chargées d'une façon qui ne présente pas de danger.

    Dans le cas à l'étude, la charge donnait à l'embarcation un franc-bord d'environ 30 cm. Un tel franc-bord correspond à un chargement d'environ cinq tonnes et suffisait jusqu'à un angle d'inclinaison d'environ 14 degrés en eaux calmes pour empêcher l'immersion de la ligne de pont (plat-bord). La présence des caisses de transbordement (isolées) pleines sur l'axe longitudinal, ainsi que la répartition symétrique du reste du chargement de boudins à bâbord et à tribord, devait maintenir l'embarcation droite et lui fournir une hauteur métacentrique (GMt)Note de bas de page 6 transversale positive d'environ 67 cm.

    Le chargement de moules et les caisses de transbordement pleines étaient répartis de sorte que seules les extrémités avant et arrière étaient libres et non obstruées à l'intérieur de la coque non pontée. L'eau embarquée devait nécessairement être retenue principalement aux extrémités, où elle était libre de se déplacer sur toute la largeur de la coque.

    La présence d'eau « libre de se déplacer » à l'intérieur d'une coque a un effet néfaste sur la stabilité transversale parce qu'elle provoque l'élévation virtuelle et la fluctuation de la position du centre de gravité vertical du bâtiment. De façon générale, les marins-pêcheurs ne saisissent pas très bien les conséquences de cet « effet de carène liquide » et bien peu d'entre eux sont conscients de l'importante réduction de la stabilité transversale initiale qui survient lorsque de l'eau, même s'il ne s'agit que d'une couche de quelques pouces, est embarquée et retenue à bord. Un navire dont la stabilité est ainsi réduite est plus vulnérable à l'état de la mer. En outre, l'envahissement par les hauts provoqué par l'immersion intermittente du plat-bord provoque l'augmentation de la gîte et de l'effet de carène liquide, ce qui réduit davantage la stabilité transversale.

    L'effet de carène liquide d'une couche d'eau ne dépassant pas 7,5 cm dans les espaces non occupés à l'avant et à l'arrière du chargement devait abaisser le GMt virtuel de l'embarcation à environ 30 cm. De plus, le poids de l'eau à l'intérieur de la coque réduisait le franc-bord de façon à provoquer l'immersion du plat-bord sous un angle de 12,5 degrés en eaux calmes.

    La présence d'eau à bord, combinée aux effets dynamiques du mouvement de roulis du bateau, risquait de provoquer le ripage transversal du chargement sur la surface en aluminium dépourvue d'obstacles, affaiblissant ainsi les caractéristiques de stabilité transversale de l'embarcation. Un déplacement de 10 cm de la charge suffisait pour faire prendre de la gîte à l'embarcation et immerger le plat-bord. Cette immersion provoquant l'entrée d'eau supplémentaire à l'intérieur de la coque ne pouvait faire autrement que retarder progressivement le redressement de l'embarcation pour finalement le rendre impossible, l'envahissement continu amenant l'embarcation à s'emplir d'eau et à couler. Toutefois, l'embarcation n'a pas coulé. Il y avait assez d'air piégé dans la coque pour la garder à flot. Cela porte à croire que l'embarcation a chaviré rapidement.

    Le chavirement

    La réduction graduelle initiale et la perte soudaine, en dernier lieu, de la stabilité transversale ont très probablement été provoquées par l'effet de carène liquide de l'eau embarquée, par l'envahissement par les hauts ainsi que par l'énergie générée par le roulis dynamique alors que l'embarcation dérivait en travers des vagues. Lorsque l'embarcation a essuyé des vagues d'une hauteur correspondant à deux fois celle du franc-bord statique en charge, le mouvement de roulis s'est accentué, ce qui a fait augmenter la quantité d'eau embarquée et retenue à bord. Le mouvement de roulis associé à l'effet de carène liquide et aux effets lubrifiants de l'eau embarquée a fort probablement provoqué un léger déplacement des caisses de transbordement, et l'embarcation a brusquement perdu sa stabilité transversale.

    Utilisation de vêtements de flottaison individuels

    En vertu du Règlement sur l'inspection des petits bateaux de pêche du Canada, un bâtiment du type et de la longueur de l'embarcation doit avoir à bord, entre autres, un gilet de sauvetage approuvé pour chaque personne à bord, une bouée de sauvetage approuvée munie d'une ligne de 27 m et une boîte métallique étanche contenant six feux approuvés à allumage automatique. Dans le cas à l'étude, aucune des deux victimes ne portait de vêtement de flottaison individuel, et il n'y en avait pas à bord.

    L'embarcation, jaugeant moins de 15 tonneaux de jauge brute (tjb), n'était pas assujettie à des inspections obligatoires de Transports Canada et n'avait pas été inspectée. La réglementation n'obligeait pas le propriétaire à faire inspecter son embarcation. Toutefois, si une inspection avait été obligatoire, l'embarcation n'aurait pas répondu aux exigences parce qu'il n'y avait pas d'équipement de sauvetage à bord.

    Un autre bateau est arrivé sur les lieux quelques minutes après l'accident. Toutefois, ses occupants n'ont pas aperçu de survivants, ce qui semble indiquer que les victimes ont coulé rapidement. Selon toute vraisemblance, des vêtements de flottaison individuels auraient permis aux victimes d'être maintenues à flot jusqu'à l'arrivée des sauveteurs.

    Aptitudes à la survie et formation en sécurité nautique

    Aucun des occupants de l'embarcation n'avait suivi de cours en sécurité nautique; ils n'étaient pas tenu de recevoir ce genre de formation.

    Le Bureau demeure préoccupé par les pertes de vieNote de bas de page 7 liées à la vulnérabilité des bateaux de pêche en cas d'urgence. Conscient du fait que le manque de formation des équipages pour faire face aux situations d'urgence en mer diminue leurs chances de survie, le Bureau a recommandé en 1992 à Transports Canada de s'assurer que les équipages des bateaux de pêche reçoivent une formation en bonne et due forme sur l'équipement de sauvetage et les techniques de survieNote de bas de page 8. Le ministre des Transports a accepté la recommandation à titre provisoire; Transports Canada a publié le bulletin de la sécurité des navires no 6/95, daté du 7 février 1995, qui souligne l'importance de la formation aux Fonctions d'urgence en mer afin de préparer les équipages à faire face à des situations d'urgence. Cependant, étant donné que la formation aux Fonctions d'urgence en mer pour le personnel non breveté n'est pas régie par les règlements, le bulletin réitère qu'il appartient aux propriétaires et aux capitaines de bateaux de pêche de voir à ce que les personnes concernées reçoivent cette formation.

    Après des consultations avec l'industrie, Transports Canada a fait adopter le Règlement sur l'armement en équipage des navires qui est entré en vigueur en juillet 1997. Ce règlement exige que tout membre de l'effectif d'un navire obtienne, avant la fin de ses six premiers mois à bord du navire, un certificat attestant qu'il a suivi une formation aux Fonctions d'urgence en mer dans un établissement reconnu. Il s'agissait là d'une façon de respecter l'objet de la recommandation du BST.

    L'industrie de la pêche a indiqué qu'elle craignait que les marins-pêcheurs soient incapables de répondre à cette exigence parce que la demande de formation serait trop forte et excéderait la capacité des écoles maritimes. Par conséquent, Transports Canada a accepté de présenter une modification au Règlement sur l'armement en équipage des navires. Cette modification aurait pour effet de prolonger de deux ans le délai établi pour achever la formation aux Fonctions d'urgence en mer dans le cas des bateaux de pêche qui ne sont pas exploités au-delà des limites d'un voyage de pêche de classe II. Transports Canada prévoit que la modification réglementaire proposée entrera en vigueur au début de 2001. Toutefois, l'article pertinent du règlement ne s'appliquera pas aux marins-pêcheurs avant le 30 juillet 2002.

    Ni Transports Canada ni le ministère des Pêches et des Océans ne connaît le nombre exact de marins-pêcheurs qui auront besoin de suivre un cours de sécurité de base pour répondre aux exigences du Règlement sur l'armement en équipage des navires. Cependant, plusieurs établissements reconnus de l'Est du Canada ont indiqué que peu de marins-pêcheurs avaient demandé à suivre le cours de sécurité de base. Ces établissements ont également indiqué qu'ils sont désormais en mesure de donner un plus grand nombre de séances de formation, mais que l'échéance de 2002 risque de retarder la demande de formation et de provoquer une bousculade de dernière minute à l'approche de la date limite.

    Faits établis

    Faits établis quant aux causes et aux facteurs contributifs

    1. La petite embarcation à fond plat transportait un plein chargement d'environ cinq tonnes de moules lorsque le moteur hors-bord est tombé en panne.
    2. La cause exacte de la panne du moteur hors-bord n'a pu être déterminée avec certitude.
    3. L'embarcation avait une stabilité transversale à l'état intact positive, aussi bien à vide qu'avec une pleine charge.
    4. L'embarcation a dérivé en travers des vagues pendant une vingtaine de minutes et a embarqué des paquets de mer.
    5. L'effet de carène liquide de l'eau embarquée, un léger déplacement de la charge ainsi que les influences dynamiques du roulis causé par les lames ont fort probablement empêché l'embarcation de se redresser, et elle a brusquement chaviré.

    Faits établis quant aux risques

    1. Les deux occupants de l'embarcation ont été projetés à la mer; ni l'un ni l'autre ne portait de vêtement de flottaison individuel et il n'y en avait pas à bord; ils se sont noyés tous les deux.
    2. L'embarcation n'avait pas à bord l'équipement de sécurité exigé par le Règlement sur l'inspection des petits bateaux de pêche.
    3. Il n'existe aucune disposition obligeant le patron d'un petit bateau de pêche de 60 tjb ou moins à recevoir de la formation en sécurité nautique, et aucune des victimes n'avait reçu une telle formation.

    Le présent rapport met fin à l'enquête du Bureau de la sécurité des transports sur cet accident. Le Bureau a autorisé la publication du rapport le .

    Annexes

    Annexe A - Plan d'ensemble de la petite embarcation à fond plat

    Photo 1. Plan d'ensemble de la petite embarcation à fond plat
    Image
    Plan d'ensemble de la petite embarcation à fond plat

    Annexe B - Photographies

    Photo 2. L'embarcation au moment de sa récupération
    Image
    L'embarcation au moment de sa récupération
    Photo 3. Installation du moteur hors-bord
    Image
    Installation du moteur hors-bord