Rail transportation safety investigation report R18H0105

Main-track Collision between train and track unit
Canadian National Railway Company
Freight train X 14921-01 and
Unimat tamper
Mile 84.27, Kingston Subdivision
Crysler, Ontario

The Transportation Safety Board of Canada (TSB) investigated this occurrence for the purpose of advancing transportation safety. It is not the function of the Board to assign fault or determine civil or criminal liability. This report is not created for use in the context of legal, disciplinary or other proceedings. See Ownership and use of content.

Table of contents

    Summary

    On 02 October 2018, at about 0010 Eastern Daylight Time, Canadian National Railway Company (CN) westbound train X 14921-01, proceeding westward at about 48 mph on the south track, came into contact with a track machine that was working on the north track at Mile 84.27 of the CN Kingston Subdivision, near Crysler, Ontario. The track machine had its work heads (tamping tools) extended horizontally, foul of the south track. There were no injuries. The track machine sustained damage to its tamping tools. The train sustained damage to safety appliances on both locomotives and 3 cars. Seven other cars sustained minor damage.

    1.0 Factual information

    1.1 The accident

    On 01 October 2018, at 2200,Footnote 1 Canadian National Railway Company (CN) freight train X 14921-01 departed westward from Montréal, Quebec, en route to Brampton, Ontario (Figure 1). The train comprised 2 head-end locomotives and 153 loaded intermodal cars. It weighed 10 466 tons and was 9525 feet long. The train crew consisted of a locomotive engineer and a conductor. The crew members were qualified for their respective positions, were familiar with the territory, and met established rest and fitness requirements.

    Figure 1. Map of the occurrence location (Source: Railway Association of Canada, Canadian Railway Atlas, with TSB annotations)
    Image
    Map of the occurrence location (Source: Railway Association of Canada, Canadian Railway Atlas, with TSB annotations)

    Between Mile 82 and Mile 87 on the CN Kingston Subdivision, track work was under way that included lifting the rails to redistribute the ballast, lining the track, and stabilizing the track. This work was being performed with 3 track maintenance machines: a Unimat tamper,Footnote 2 a ballast regulator, and a track stabilizer.Footnote 3

    At this location, there are 2 main tracks, designated as the north track and the south track (Figure 2). At the time of the occurrence, work was being conducted on the north track under the protection of Canadian Rail Operating Rules (CROR) Rule 42 (Planned Protection).Footnote 4

    Figure 2. Occurrence site diagram showing the locations of the Rule 42 foreman, the sub-foreman, the operators, the operator trainer, and foreman 2 (Source: TSB)
    Image
    Occurrence site diagram showing the locations of the Rule 42 foreman, the sub-foreman, the operators, the operator trainer, and foreman 2 (Source: TSB)

    At 2355, as the train approached Mile 80 on the south track, the train crew called the Rule 42 foreman (the foreman) to request permission to operate through the work limits, as required by Rule 42. The foreman then contacted the sub-foreman,Footnote 5 who was protecting the track workers under delegated authority. Upon being told that everyone was clear of the south track, the foreman provided permission to the train crew to proceed on the south track through the work limits with no restrictions. The train crew was instructed to sound the bell and locomotive horn when passing workers and machinery.

    The foreman was positioned in his truck on the nearby highway overpass, about 0.6 miles northeast of the location where the sub-foreman and his crew were working on the tracks. The foreman had parked at this elevated location to ensure optimum radio broadcast capability with train crews and engineering employees. However, from this location, the foreman was not able to observe the employees who were working on the tracks within the limits of the area protected under Rule 42, nor was he required to.

    The sub-foreman, who was performing other operational duties, was in his truck, which was positioned on the north side of the railway right-of-way, about 250 feet east of the track maintenance machines that were under his protection (a track stabilizer, a ballast regulator, and a tamper). From his location, the sub-foreman was not in a position, nor required, to see the south side of the track maintenance machines, including the tamper.

    On 02 October 2018, at about 0010, with the westbound train travelling at about 48 mph on south track, the train crew observed that the tamping tools of the tamper were extended horizontally, foul of the south track (Figure 3). The train struck the tamping tools, and the crew applied the train brakes and brought the train to a controlled stop. There were no injuries. The tamper sustained damage to its tamping tools. The train sustained damage to safety appliances (ladders and sill steps) on both locomotives (IC 2721, CN 2679) and 3 cars. Seven other cars sustained minor damage (scrape marks).

    At the time of the occurrence, it was dark. The headlights on each track machine provided some lighting in the area. The tamper was facing eastward and its headlights were illuminated. Visibility was clear, and the temperature was 9 °C.

    Figure 3. Close-up of occurrence site diagram prior to the collision (Source: TSB)
    Image
    Close-up of occurrence site diagram prior to the collision (Source: TSB)

    1.2 Subdivision information

    The CN Kingston Subdivision extends westward from Dorval East (Mile 10.3) to Toronto Union Station (Mile 333.8). The portion of the Kingston Subdivision that runs from Dorval East, Quebec (Mile 10.3), to Oshawa, Ontario (Mile 301.6), is owned by CN. The portion that runs from Oshawa to Toronto Union Station (Mile 333.8) is owned by GO Transit (GO). In the vicinity of the occurrence, the track, consisting of 2 main tracks, was level and tangent. Depending on operational requirements, trains are operated on either track, in either direction.

    Train movements on this subdivision are governed by the centralized traffic control system (CTC), as authorized by the CROR and supervised by a rail traffic controller (RTC) located in Montréal.

    The daily traffic on this portion of the Kingston Subdivision is typically 13 passenger trains and 18 freight trains. In the vicinity of the occurrence, the track is designated as Class 5 in accordance with the Transport Canada–approved Rules Respecting Track Safety.

    1.3 Rule 42 of the Canadian Rail Operating Rules

    At the work location, CROR Rule 42 (Planned Protection) was in effect each day from 2100 to 0700 between Mile 82 and Mile 87 on both main tracks to accommodate the activities of a lifting gangFootnote 6 (Appendix A). The foreman oversaw track worker protection to ensure that all equipment, employees, and sub-foremen were clear of the track before trains were permitted to operate through the work limits. A CROR-qualified sub-foreman was on site to oversee the work.

    At the time of the occurrence, the track workers who were on the track or were directly involved with the track work included

    • an operator trainer and an operator trainee for the tamper,
    • an operator for the ballast regulator,
    • an operator for the track stabilizer,
    • the Rule 42 foreman,
    • an additional foreman (foreman 2), and
    • the sub-foreman.

    These track workers were qualified for their respective positions, were familiar with the territory, and met established rest and fitness requirements.

    The occurrence shift was the 7th of 9 scheduled consecutive shifts for these track workers. Based on their work and rest hours, there was no indication that any of the workers were fatigued on the night of the accident.

    For the occurrence shift, the sub-foreman was protecting the tamper, the ballast regulator, and the track stabilizer when they were on the track. The other workers and track maintenance machines were expected to remain clear of the tracks until otherwise required and authorized.

    At CN, when Rule 42 is used to protect a large work gang, the common practice was for a sub-foreman to take on the role of overseeing the activities of the workers and machines, while the Rule 42 foreman communicated with the RTC and approaching trains. Before permitting trains to pass through the work limits, the foreman would obtain confirmation from the sub-foreman that the track was clear of workers and machines. A sub-foreman performing these duties on a large gang was commonly referred to as the clearing foreman.

    Before starting work that day, the track workers were informed of the anticipated routing arrangements for trains. The foreman had previously discussed with the RTC the need for trains to be routed on the south track from either direction through the work limits. The RTC had therefore applied protection in the form of track blocking on the RTC screen to support this arrangement.

    Track work began at about 2330. Before the accident that night, one other westbound train had been given permission to operate through the work limits on the south track. This train passed through the working limits without incident.

    1.3.1 Clearing list

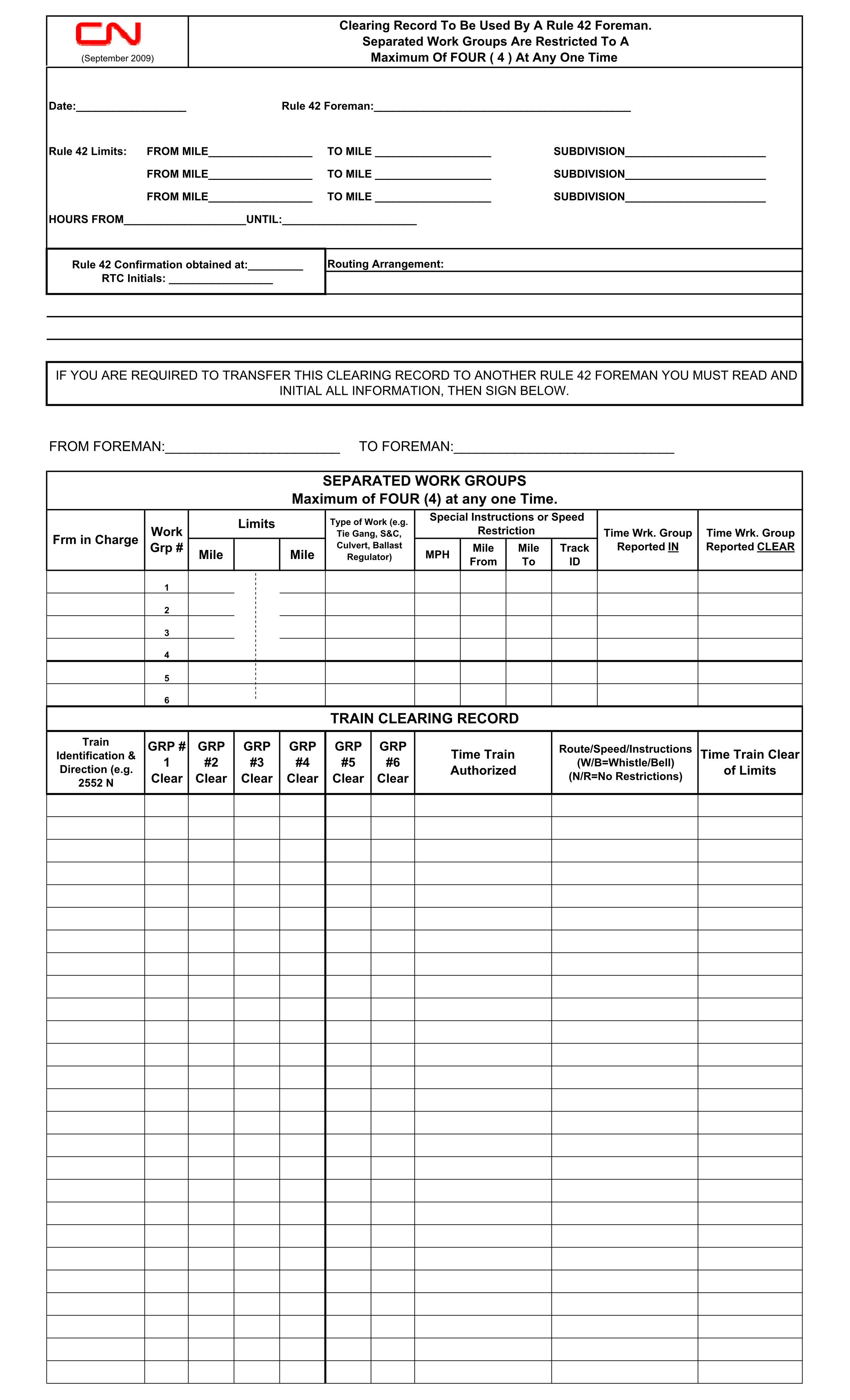
    CROR Rule 42 gives the designated foreman responsibility to ensure that the track is clear of workers and machines and is safe for the passage of trains before permitting a train to pass through the limits. Railway Rule 42 procedures establish the use of a clearing record form for Rule 42 foremen to be used as a memory aid (Appendix B). This form provides a convenient location for Rule 42 foremen to record particulars of the Rule 42 planned protection, such as the track and time limits, the time the Rule 42 was confirmed to the RTC, the RTC’s initials, and the names of employees to whom they have granted sub-foremen protection to protect separated work groups under the Rule 42.

    Under the heading “Separated Work Groups,” the form specifies a maximum of 4 sub-foremen and includes the limits the sub-foremen will be working in, the type of work, and the times the separated work groups begin work and report that they are clear of the track.

    In the section of the form entitled “Train Clearing Record,” the foreman records particulars of trains that have been cleared through the working limits, including train ID, direction, restrictions for movement through the limits, and the time that the trains are clear of the limits.

    Railway procedures for sub-foremen establish similar requirements before a sub-foreman notifies the foreman that the track is clear for the passage of trains (Appendix C). However, there is no document or template specifically used by sub-foremen to list the workers and machines they are protecting or to keep track of the location of the workers and machines when they are asked to clear the track for an approaching train.

    In this occurrence, the sub-foreman had adopted a process whereby the track workers were responsible for telling him if they would need to be consulted before a train was given permission to operate through the working limits. As part of this process, the sub-foreman had established the use of an informal clearing list with the names of all of the workers who would need to be consulted. Only the operator for the ballast regulator and the operator of the track stabilizer requested to be put on the list. The sub-foreman did not record the names of the track workers who had asked to be included on his clearing list; rather, he committed the 2 names to memory.

    If a track worker under the sub-foreman did not ask to be included on the clearing list, the sub-foreman would consider that worker to be clear of the track at all times. Therefore, when a train requested permission to pass through the limits of Rule 42, the track workers who were not on the sub-foreman’s clearing list would not be contacted before permission was given to the train.

    In this occurrence, when the train crew called for permission to travel through the Rule 42 work limits, the Rule 42 foreman contacted the sub-foreman to ascertain the status of the workers and equipment. The sub-foreman then called the track workers whose names he had committed to memory to ensure they would be clear of the track before telling the foreman to authorize the train to proceed through the working limits. The operator of the ballast regulator had opted to be on the clearing list. The operator of the track stabilizer had also chosen to be on the clearing list, even though the track stabilizer does not foul the adjacent track. The operator trainer and operator trainee on the tamper did not ask to be on the sub-foreman’s clearing list.

    The operator trainer and the operator trainee on the tamper believed that unless the tamper was at a switch, where the machine could foul the adjacent track, they could continue working while a train proceeded through the work limits on the adjacent track.

    1.4 Track worker information

    1.4.1 Rule 42 foreman

    The Rule 42 foreman was familiar with the territory and was qualified for his position. He had been hired as a conductor in 2014, and joined the flagging department at CN in June 2015. Over a number of shifts in the previous 2 years, he had been in charge of Rule 42 planned protection at various locations on CN’s Kingston Subdivision. The Rule 42 foreman had been working with this lifting gang for the previous 4 months.

    1.4.2 Sub-foreman

    The sub-foreman was familiar with the territory and was qualified for his position. He had worked at CN for 20 years in a number of engineering positions. However, the occurrence shift was the first time he had assumed sub-foreman responsibilities while working with the Unimat tamper. He had received no additional training to become a sub-foreman working with the Unimat tamper, as CN did not require such training to be provided.

    The sub-foreman had been working with this lifting gang for the 6 days before the accident. Although the sub-foreman had worked on other lifting gangs, he only had experience working with a different style of tamper machine, a Dynacat tamper.Footnote 7 He was unaware that the Unimat tamper had tamping tools that could be extended horizontally and could foul an adjacent track.

    1.4.3 Foreman 2

    Foreman 2 was an additional foreman on this lifting gang, who would normally have assumed the role of sub-foreman. He had been employed with CN for approximately 12 years and had been working with this gang for the past 4 months.

    On the night of the occurrence, the tamping machine (a Dynacat tamper) that was normally assigned to this gang had broken down at another location. Foreman 2 was required to attend to it for repairs. Because foreman 2 was not available to assume the sub-foreman duties, the only other foreman in the group was assigned these duties.

    Unlike the sub-foreman, foreman 2 was aware that the tamping tools on the Unimat tamper, when extended horizontally, could foul the adjacent track. When assuming the role of a sub-foreman for this gang, he would normally position himself on the ground to help the machine operators negotiate through more difficult areas such as switches, where tamping tools would need to be lifted to prevent damage.

    1.4.4 Tamper operator trainer

    The tamper operator trainer had approximately 7 years of experience at CN. In 2018, he trained intermittently to be an operator on the Unimat tamper. Before qualifying on 23 July 2018 on this type of tamper, he had completed 63 shifts as a Unimat tamper operator in training. In the 2 months before the occurrence, he had been working on his own as a Unimat tamper operator. In September 2018, he was told that he would be instructing a trainee on the Unimat tamper.

    Figure 4. Demonstration of how the operator trainee would have been seated at the controls at the time of the occurrence. The operator trainee would be facing east. The operator trainer was standing behind the empty seat in the position indicated by the arrow, beside the operator trainee (Source: TSB)
    Image
     Demonstration of how the operator trainee would have been seated at the controls at the time of the occurrence. The operator trainee would be facing east. The operator trainer was standing behind the empty seat in the position indicated by the arrow, beside the operator trainee (Source: TSB)

    Because the Unimat tamper is a complex machine to learn, it was not unusual at CN for an employee to work under the supervision of a peer for over 1 year before being qualified to operate this machine. Once an operator was deemed qualified, the operator might be required to train other employees.

    At the time of the occurrence, the operator trainer was in the cab of the Unimat tamper standing beside the operator trainee, facing west (Figure 4), in the opposite direction in which the machine was moving. The operator trainer was overseeing the operator trainee’s manipulation of the machine controls and conversing with foreman 2. He was aware that the tamping tools, if lifted and extended horizontally when not in use, could extend far enough to foul an adjacent track. However, he was unaware that the train was on the approach and that the operator trainee had lifted the tamping tools horizontally toward the south track.

    1.4.5 Tamper operator trainee

    The operator trainee had been working at CN since 2011. He was qualified to work on a number of different track machines. In 2018, he had trained for approximately 30 shifts intermittently on the Unimat tamper. In September 2018, he started training full time to qualify on the Unimat tamper. The occurrence shift was his 16th consecutive shift training on the machine (with days off in between).

    The operator trainee was at the controls of the tamper at the time of the occurrence. As a trainee, he would normally operate the machine unless there were time constraints, in which case the operator trainer would assume control of the machine.

    The operator trainee was aware of the train’s approach, as he had heard the train crew’s radio broadcast of its location. He was also aware that the tamping tools could foul an adjacent track at a switch. He raised the tamping tools on the Unimat tamper to their horizontal position as the tamper approached the switch, but was unaware that the tamping tools would foul the adjacent south track at that location near the switch.

    1.5 Ergonomics of the operator workstation for the Unimat tamper

    Workstation ergonomics relates to the design of controls, displays, and layout to optimize efficiency and usability while minimizing the risk of operator error. An operator can maintain awareness of system status notably by visual displays of dynamic information. The design and selection of displays depend on user needs. For example, qualitative displays such as brightly lit visual indicators provide for status or check reading.Footnote 8

    At the time of the occurrence, the Unimat tamper was being operated with its long nose leading (Figure 5). When seated at the operator workstation, the operator trainee could visually estimate how far the tamping tools were extended by leaning forward and looking through the viewing area (clear glass) located at the bottom of the workstation (Figure 6).

    Figure 5. Unimat tamper with long nose leading (Source: TSB)
    Image
     Unimat tamper with long nose leading (Source: TSB)
    Figure 6. Operator’s view of the tamping tools from inside the tamper, looking through the viewing area at the bottom of the workstation (Source: TSB)
    Image
     Operator’s view of the tamping tools from inside the tamper, looking through the viewing area at the bottom of the workstation (Source: TSB)

    The tamping tools could be extended to about 39 inches on both sides of the tamper (Figure 7). At the occurrence location, any tamping tools on the south side of the tamper that extended sideways beyond 31 inches would foul the adjacent track. At the time of the occurrence, the tamping tools on the south side of the tamper were lifted to the horizontal position to prevent striking and damaging the frog and switch further up the track while tamping continued on the north side of the track. The tamping tools on the south side of the tamper were also extended about 31 inches.

    The Unimat tamper crew must maintain awareness of the lateral extension of tamping tools, particularly when trains or vehicles have the authority to travel on an adjacent track. Control boxes for the tamping tools are located at the operator control stations on each side of the cab of the tamper. Each control box has 2 rotary switches and 2 joysticks for lateral movements (left and right in the horizontal plane) (Figure 8).

    Figure 7. Tamping tools extended (Source: TSB)
    Image
     Tamping tools extended (Source: TSB)
    Figure 8. Rotary switches and joysticks in the cab of the tamper (Source: TSB)
    Image
     Rotary switches and joysticks in the cab of the tamper (Source: TSB)

    The Unimat tamper cab is a relatively dark work environment, and there are no brightly lit visual displays associated with the controls. Furthermore, there were no displays to specifically indicate if any of the tamping tools were in the horizontal position and extended.

    1.6 Cognitive workload and distraction

    Workload can be described as the relationship between an individual’s capacity to perform work and the demands of the job at a given point in time. Job demands are characterized as the number of tasks within a job, the need to complete tasks concurrently, the demands and complexity of each task, and the amount of time required for each task.

    Cognitive workload relates to task demands on resources such as attention, problem solving, memory, and decision making. High cognitive workload can decrease operator performance, because the limited available resources are invariably allocated to parts of a task or to some of the tasks, to the detriment of other tasks.

    With respect to the Unimat tamper, the cognitive workload of the tamper operator trainer is high due to the need to oversee the work of the tamper operator trainee, particularly in certain complex locations, such as through turnouts. At the time of the occurrence, the tamper was working in a turnout location.

    Section 8, item 3 of CN’s General Operating Instructions states in part:

    3.1 Everyone (Management, Employees, Contractors, Visitors, etc.), Must:

    […]

             
    1. Employees assigned a trainee must be in a position which provides continuous monitoring of the trainee and allows for immediate intervention and corrective action of any non-compliant or unsafe activities observed.Footnote 9

    For track machines that require high cognitive workload, operator distractions should be kept to a minimum. In this occurrence, supplies such as water were stored in the cab of the tamper. Personnel would regularly enter the cab of the tamper while the machine was in operation to pick up supplies, to escape bad weather, and to converse with the tamper operator about operational matters.

    Section 8, item 4 of CN’s General Operating Instructions states in part:

    4.1 General Rules

    […]

    1.7 It is essential to safety, that employees while working give their undivided attention to the performance of their job. The following actions are prohibited while working:

    […]

    • Engaging in any activity which is not directly associated with your duties[….]Footnote 10

    CROR General Rule A states in part:

    1. Every employee in any service connected with movements, handling of main track switches and protection of track work and track units shall:
      […]
      1. while on duty, not engage in non-railway activities which may in any way distract their attention from the full performance of their duties[….]Footnote 11

    1.7 Memory aids

    Memory aids are widely used in the transportation industry. They help reduce the risk of memory lapse, where a person forgets something. Memory lapses can be the result of several factors, notably interference or distraction from competing or concurrent activities that require a person to shift their attention. This type of error can happen to even the most experienced and well-trained employees.

    At CN, sub-foremen on track maintenance gangs were not provided with any standard forms to help account for the employees and equipment under their direction. Some sub-foremen were using paper notes, while others were relying on memory to keep track of people and equipment they were protecting. The clearing record used by Rule 42 foremen (Appendix B) was available to sub-foremen for use as a standardized memory aid. However, in this occurrence, the sub-foreman was not aware that this form was available and that it was also intended for use by sub-foremen.

    1.8 Sequence of events

    Table 1 provides a summary of the sequence of events in this occurrence.

    Table 1. Sequence of events in this occurrence.
    Date Time (approximate) Event
    2018-10-01 2000:00 The engineering crew came on duty at Crysler.
    2018-10-01 2010:00 A job briefing was conducted and the sub-foreman established his clearing list with the operators of the ballast regulator and the track stabilizer.
    2018-10-01 2200:00 Train 149 departed Montréal.
    2018-10-01 2330:00 The tamper, the ballast regulator, and the track stabilizer began work.
    2018-10-01 2337:00 Train 309 was cleared through the Rule 42 limits on the south track with no restrictions.
    2018-10-01 2340:00 The tamper was working on the west switch at Crysler.
    2018-10-01 2345:00 Foreman 2 returned to the site and entered the cab of the tamper.
    2018-10-01 2354:00 The tamping tools were raised and extended horizontally as the tamper approached the frog at the west switch at Crysler.
    2018-10-01 2355:00 Train 149, operating on the south track, called the Rule 42 foreman to request permission to operate through the work limits.
    2018-10-01 2355:05 The Rule 42 foreman called the sub-foreman to inform him that train 149 was approaching on the south track and to enquire about the status of track workers under the sub-foreman’s direction.
    2018-10-01 2355:15 The sub-foreman contacted the track workers on the clearing list (which did not include the track workers on the tamper).
    2018-10-01 2355:20 The sub-foreman confirmed to the foreman that the track was clear of people and machines working under his direction.
    2018-10-01 2357:00 The Rule 42 foreman authorized train 149 to proceed through the work limits on the south track with no restrictions.
    2018-10-01 2357:15 The operator trainee heard the radio broadcast from train 149 as it approached the Rule 42 limits while the operator trainer was talking to foreman 2.
    2018-10-02 0004:01 The crew on train 149 sounded the horn as the train approached the location where the track machines were working.
    2018-10-02 0004:08 While travelling at about 48 mph, the crew of train 149 saw the tamping tools that were fouling the south track.
    2018-10-02 0004:08 to 0004:13 The crew on train 149 sounded the horn a number of times prior to the collision with the tamper.
    2018-10-02 0004:18 Train 149 struck the tamping tools on the tamper.
    2018-10-02 0004:23 The brakes were applied on train 149.
    2018-10-02 0007:00 Train 149 came to a controlled stop.

    1.9 Safety requirements for Canadian National Railway Company employees working on or near the track

    At CN, employees who perform maintenance-of-way activities are required to be CROR-qualified. These employees must also perform work in compliance with company rules, standards and instructions, including CN’s General Engineering Instructions and General Operating Instructions.

    CN’s General Engineering Instructions set out procedures for track worker protection. Section 8 of the General Operating Instructions sets out safe work procedures and safety rules.

    1.10 Job briefings

    Section 2.0, Job Briefing, of CN’s General Engineering Instructions states in part:

    2.1  Prior to commencing any work, the employee in charge of a work group will hold a job briefing session for all persons engaged in the activity[….]

    2.2  The job briefing session shall cover all relevant issues with respect to the task being performed and necessary safety precautions that must be taken, including, but not limited to the following:

    […]

    • A field level risk assessment specific to the task to be performed

    2.3  At the conclusion of the job briefing, all employees shall confirm understanding. Job briefing information shall be kept in writing, in prescribed job briefing books, for ready reference by each employee.Footnote 12

    On the day of the occurrence, the sub-foreman performed a job briefing that included the foreman, the machine operators, a signals employee, the boom truck operator, and a mechanic. For a list of issues that are required to be discussed during job briefings, see Appendix D.

    Once the sub-foreman had completed the job briefing, he retained the written copy (Appendix E). One other participating employee initialled it. In addition, the operator in charge of each machine and each employee made a written record of the job briefing.

    The Rule 42 foreman filled out a separate job briefing for his own reference before participating in the group job briefing. His separate job briefing was initialled by one other employee. He did not obtain a copy of the group job briefing.

    The person filling out the job briefing form is required to list the latest safety flash in effect (with the flash number and issue). The latest track standard bulletin in effect (with bulletin number and type) are also required to be listed, as well as engineering flashes, operating bulletins, track standards, and notices. Copies of the documents listed on the briefing form are to be distributed to employees present at the job briefing and are expected to be discussed immediately. Further reference to these documents is not made in subsequent job briefings. Employees are expected to periodically consult the electronic repository to stay current with new information.

    The job briefing form contains a section that requires hazards to be listed. On the day of the occurrence, no hazards specific to the Unimat tamper were listed, nor was it routine to do so.

    1.11 Critical task checklists

    CN’s Canadian Engineering Job Briefing Book contains critical task checklists that relate to tasks involving multiple steps, where the omission of one of these steps can have consequences affecting track infrastructure or employee safety.Footnote 13 These checklists are not limited to tasks that affect work limits and are not necessarily required to be completed before allowing a train to operate through the work limits.

    The critical task checklists identified on the sub-foreman and tamper operator job briefing forms were CT02 (disturbed track) and CT03 (turnout inspection and maintenance). If completed before permitting a train to operate over the track, these checklists can help verify specific track conditions.

    Another optional checklist specific to large machinery, CT04 (crane operation and material handling), to be used both on or off the track, reminds operators to return certain pieces of equipment to a stowed and locked position before permitting a train to operate over the track. There was no similar critical task checklist specific to the tamper, or for any other piece of engineering equipment (i.e., track units), with respect to stowing and locking pieces of equipment prior to trains operating through Rule 42 limits.

    1.12 Procedures for employees and machinery to clear the track for trains

    At CN, the procedures for employees and machinery to clear the track for trains approaching working limits have changed over time. The railway’s GEIs, dated November 2013, required the following:

    Subsection 7.3 of CN’s General Engineering Instructions stated in part:

    Workers required to clear for a train must position themselves in a safe location and clear a minimum of 19 feet (6 meters) from the nearest rail on which the train has been cleared. If it is not possible to clear a minimum of 19 feet (6 meters), the train speed must be reduced when passing the workers and not exceed 30 mph (48 km/hr). Under no circumstances may employees stand on live and unprotected track while observing passing trains on adjacent tracks[….]Footnote 14

    Subsection 8.2 of CN’s General Engineering Instructions stated:

    In multi-track territory, positive track protection must include the track or tracks immediately adjacent to the track on which the work is being performed. Tracks shall be considered adjacent when the measured distance between track centers is less than 25 feet (7.6 meters).Footnote 15

    Subsection 10.1 of CN’s General Engineering Instructions stated in part:

    Operators of track units, while on rail, must […] be knowledgeable of the physical characteristics of the unit in which they are operating and must become familiar with and be governed by the operating and maintenance instructions or manuals supplied by the Railway and/or Manufacturer[….]Footnote 16

    Subsection 10.7 of CN’s General Engineering Instructions stated:

    When a train is operating on an adjacent track, track units must be brought to a stop. If it can be done safely, the passing train should be inspected on both sides.Footnote 17

    Since 2015, CN had issued 2 engineering notices (Table 2) and conducted a risk assessment concerning clearing procedures. The risk assessment refers to the tasks and related hazards for a tamper, but not specifically to the Unimat tamper. Some risk-mitigation options identified were not included in current engineering notices, such as:

    • Under the task “Communicate with Foreman when advised train approaching”, the hazard is described as “Machine operator is not told of passing train”. The potential consequences were identified as: injury to employee or fatality, damage to machine, and / or damage to train. The risk control action was identified as “Foreman to use checklist and not clear train until confirmed machine operator has stopped work”.
    • Under the task “Operate machine as train passes”, the hazard is described as “Operator gets distracted and collides with machine in front or behind their machine, or goes out of limits”. The potential consequences were identified as: injury to employee or fatality, damage to machine, and / or damage to train. The risk control actions were identified as: “Job brief and rebrief”, “Ensure continuous monitoring of machine’s movement and machine’s operator to communicate when moving if they have a concern”, and “Stop”.
    • Under the task “Surfacing track”, the hazard is described as: “Workhead becomes unlocked and moves laterally towards live track”. The potential consequences were identified as: injury to an employee or fatality, damage to machine, and / or damage to train. The risk control actions were identified as: “All locks to be inspected daily to ensure no issues”, and “Job brief to remind everyone to ensure that live side is locked out”.
    Table 2. CN Engineering Notices
    Date issued Title of Engineering Notice Notice content
    2015-06-20 Clearing procedures when working on a Rule 42 in multi-track territory If all restrictions are met, trains can operate at track speed. Tampers can continue to work while trains pass; however, no switch surfacing is permitted. The switch surfacing restriction does not apply to a junior tamper.
    2017* 2017-E-012: Clearing procedures when working on a Rule 842 in multi-track territory. Limit freight speed to operate at 40 mph and passenger speeds at 60 mph. Tampers can continue to work while trains pass. Applicable to machines with hard sides and tempered glass.

    * The month and day were not provided by CN. The 2017 notice supersedes the 2015 notice and the related instructions in the 2013 General Engineering Instructions.

    On the night of the accident, the 2017 notice was in effect. The notice was not specifically available on site. This notice did not prohibit a tamper from continuing to work at a switch location while a train passed on an adjacent track.

    The job briefing that was conducted at the start of the occurrence shift did not include discussion of the requirements of the most recent notice on clearing procedures when working on a Rule 42 planned protection in multi-track territory. Most of the employees on site were unaware of which notice was in effect or of the requirements of that notice. In addition, the track supervisor, who attempted corrective action after the accident, then provided employees with a copy of the 2015 notice. The 2015 notice prohibits a tamper from continuing to work on a switch when a train is cleared through working limits.

    At CN, when bulletins and engineering notices are issued, each supervisor receives a copy via email and reviews the document with their employees to ensure that employees understand the change being made. Employees are expected to ask questions if they do not understand the message or have questions on how to apply the new instructions. The document is also posted on CN's intranet and remains readily available for employees to consult. Computers are available at CN terminals for employees to access this information. However, there is no requirement for personnel to have current engineering documents on the job site or for an adequate system to distribute them.

    For railway operating employees, a system exists for the controlled dissemination of information through CROR Rule 83, Operating Bulletins, which states the following:

    1. Operating Bulletins
    1. Operating bulletins will be issued by the proper authority and in the prescribed format. Employees responsible for posting or displaying operating bulletins must record on each bulletin the time and date it is posted or displayed. Operating bulletins will only contain information or instructions pertaining to the operation of movements. Duplicate bulletin numbers must not be in effect at the same time.
    2. Before commencing work at their home location where operating bulletins are posted or displayed, every employee responsible for the operation or supervision of movements must read and understand the operating bulletins that are applicable to the territory that they will operate on.
    3. A Summary bulletin, containing the number, date and contents of, or reference to, each operating bulletin remaining in effect, will be issued at intervals indicated in special instructions. Operating bulletins of a previous date, which are not included or referred to in the Summary bulletin, become void. Summary bulletins may also contain full content of operating bulletins that take effect on or after the effective date of the Summary bulletin and will not be posted or displayed. All employees responsible for the operation or supervision of movements must have a copy of the current Summary bulletin accessible while on duty.Footnote 18

    2.0 Analysis

    The investigation found nothing to indicate that the condition of the track or the manner in which train X 14921‑01 (train 149) was operated contributed to the occurrence. The analysis will focus on the protection of on-track maintenance activities when clearing trains through working limits on adjacent tracks, sub-foreman procedures, dissemination of safety-critical information to railway engineering employees, and job safety briefings. The analysis will also include cognitive workload, distraction, and workstation ergonomics.

    2.1 The accident

    The accident occurred when train 149 struck the Unimat tamper’s tamping tools, which had been extended horizontally before the switch and were foul of the south track. The collision resulted in damage to safety appliances on both locomotives and 3 cars, and to the tamping tools on the tamper.

    Train 149’s crew had permission from the foreman to operate through the work limits without restrictions. The tamper operator trainer and the operator trainee both believed they were permitted by engineering notice to continue tamping while trains were permitted to travel on the adjacent track, unless they were working at a switch location. The applicable CN engineering notice did not include the Unimat tamper in the list of equipment for which work heads must be pulled in and work stopped when trains operate on adjacent tracks.

    The operator trainer was aware that the tamping tools, if lifted and extended horizontally when not in use, could extend far enough to foul an adjacent track. The tamper operator trainer did not believe that the tamper would foul the adjacent track during the work that was being performed. However, the tamper operator trainer was not aware that train 149 was approaching, nor that the tamping tools had been lifted to the horizontal position and extended.

    When the operator trainee looked out the viewing area on the floor of the tamper, he could see that the tamping tools on the south side were extended to the horizontal position. However, his perception was that the tamping tools were not foul of the adjacent track; he was unaware that the tamping tools could be a problem at that location near the switch.

    The foreman and sub-foreman were in their respective vehicles and were not positioned to have a direct view of the south side of the tamper, nor were they required to be. As a result, they were unaware that the tamping tools had been extended horizontally toward the south track and that the tools were foul of the track as train 149 approached the working location.

    2.2 Dissemination of safety-critical information

    At CN, before 2015, the General Engineering Instructions (GEI) required all track units to be stopped and workers to be a minimum of 19 feet clear of the track. Further, workers were to be in a position to inspect passing trains on either side (if it was safe to do so) before allowing a train to pass through the working limits of a Rule 42 on an adjacent track.

    In 2015, CN issued an Engineering Notice titled “Clearing procedures when working on a Rule 42 in multi-track territory.” The notice specified that trains could operate at track speed and tampers could continue to work while trains passed; however, no switch surfacing was permitted.

    In 2017, CN issued another Engineering Notice (in effect at the time of the occurrence) that did not restrict the tamper from continuing to work while trains passed through the working limits of a Rule 42, whether or not the tamper was working at a switch.

    None of the above engineering notices contained provisions to account for the fact that the Unimat tamper tools had the ability to foul adjacent tracks. As this critical information was omitted from the notices, it was less likely to be included in job briefings.

    When job briefings are conducted, supervisors are expected to disseminate new notices or bulletins that are in effect and that apply to the engineering employees in the field. Employees are expected to ask questions to clarify their understanding. However, there is no requirement to discuss such information on subsequent shifts. After the information has been discussed once, employees are expected to understand and apply the contents of each document—even those employees who were not present when the new engineering notice or bulletin was discussed.

    Providing updated engineering notices and bulletins to employees in the railway engineering work environment can be challenging due to the size of the workplace (the entire railway right-of-way) and the fact that the workforce is dispersed throughout the railway. If safety-critical information is not disseminated effectively to all railway engineering employees, these employees may be unaware of changes to safe working practices, increasing the risk that they will inadvertently put themselves in harm’s way.

    2.3 Canadian National Railway Company Canadian Rail Operating Rules Rule 42 clearing procedures

    At CN, a form had been developed for the Rule 42 foremen to use as a memory aid. This document provides a convenient location for Rule 42 foremen to record particulars of the Rule 42, such as the track and time limits, the time the Rule 42 was confirmed to the rail traffic controller (RTC), the RTC’s initials, and the names of employees to whom they have granted sub-foremen protection to protect separated work groups under the Rule 42. Under the heading “Separated Work Groups,” the section provides for a maximum of 4 sub-foremen and includes the limits the sub-foremen will be working in, the type of work, and the times the separated work group begins work and reports that they are clear of the track.

    While Rule 42 foremen has a comprehensive memory aid to help them fulfill their responsibilities, there is no such preprinted form for sub-foremen to keep track of workers and machines under their protection. Even though it would be feasible for sub-foremen to adapt the Rule 42 foremen’s clearing record for their own use, this is not a common practice. If appropriate memory aids are not used to keep track of people and equipment during Rule 42 track protection, a sub-foreman may inadvertently forget to check on an employee, increasing the risk of an accident.

    In this occurrence, Rule 42 was being used to protect a large work activity involving multiple workers and machines. For such circumstances, the railway had developed a process of dividing the responsibility between the Rule 42 foreman and a sub-foreman: the sub-foreman would keep track of all work activities, while the Rule 42 foreman oversaw (in consultation with the sub-foreman) the authorization of trains through the limits.

    The sub-foreman, who had little experience working with the Unimat tamper, made his own plan to make the workers responsible for self-identifying and expressing their need of protection by including themselves on his clearing list. Also, in the absence of a formal location to make a written record of these workers, the sub-foreman chose to commit them to memory. Consequently, the tamper was not placed on the sub-foreman’s clearing list and the sub-foreman did not call the tamper when the Rule 42 foreman asked the sub-foreman to clear the track for train 149.

    The sub-foreman was trying to simplify his task of ensuring that workers and machines were clear of the track for the safe passage of trains. Although this action was well intended, the end result was a reversal of responsibility for protection from the sub-foreman to the workers being protected and a reliance upon the sub-foreman’s memory to keep track of the employees who needed to clear for trains. If ad hoc practices are developed in lieu of formal safe work processes, these practices may not be adequate to ensure safety, increasing the risk of accidents.

    2.3.1 Job briefings

    During job briefings at the start of the shift, the identified hazards are noted on the job briefing form. In this occurrence, the hazards that were noted during the job briefing pertained to employees and the track. There was no specific discussion relating to the hazards of the track machines, such as the possibility of a Unimat tamper fouling an adjacent track due to horizontally extended tamping tools.

    CN’s Canadian Engineering Job Briefing Book contains optional critical-task checklists to help identify what tasks need to be conducted before allowing a train to operate through the work limits. However, these checklists are not specific to any one particular track machine. No such checklist had been developed for the Unimat tamper, which has several additional hazards that differ from other tampers. There were only 2 Unimat tampers being used at CN.

    If a thorough job briefing identifying hazards pertaining to track machines is not conducted, employees may not know what must be done to ensure it is safe to permit a train to operate on an adjacent track, increasing the risk of accidents and injuries.

    2.4 Distraction

    Unnecessary distraction can cause operator error or lapses in judgment. Regulatory and railway requirements prohibit employees from engaging in distracting behaviour when performing safety-critical tasks. Railway requirements for employees providing training establish the expectation that focus is to be maintained on the trainee at all times. However, distraction cannot be avoided merely by stating that it must be avoided and that focus shall be maintained.

    At the time of the occurrence, another employee had entered the cab of the tamper to get supplies. This employee was engaged in conversation with the operator trainer who was responsible for overseeing the operation of the tamper by the operator trainee. The operator trainer therefore did not have his full attention on the operator trainee, who was at the controls of the tamper.

    There may be an operational necessity for other employees to enter the cab periodically while the tamper is in operation, and interactions between employees will naturally occur. To avoid the distraction in such circumstances, it may be necessary to minimize such interactions while the tamper is in operation. If railway procedures do not address distraction while heavy track machines are in operation, there is a risk that a lapse in operator attention may cause accident or injury.

    2.5 Workstation ergonomics for the Unimat tamper

    A tamper operator is expected to maintain awareness of the position of the tamping tools and to determine if the tools are fouling the adjacent track when they are in the horizontal position. Within the Unimat tamper, there are no specific indicators to assist the operator in determining the position of the tamping tools.

    3.0 Findings

    3.1 Findings as to causes and contributing factors

    These are conditions, acts or safety deficiencies that were found to have caused or contributed to this occurrence.

    1. The accident occurred when train 149 struck the Unimat tamper’s tamping tools that had been extended horizontally prior to the switch and were foul of the south track.
    2. The applicable CN engineering notice did not include the Unimat tamper in the list of equipment for which work heads must be pulled in and work stopped when trains operate on adjacent tracks.
    3. The tamper operator trainer was not aware that train 149 was approaching nor that the tamping tools had been lifted to the horizontal position and extended.
    4. The tamper was not placed on the sub-foreman’s clearing list and the sub-foreman did not call the tamper when the Rule 42 foreman asked the sub-foreman to clear the track for train 149.

    3.2 Findings as to risk

    These are conditions, unsafe acts or safety deficiencies that were found not to be a factor in this occurrence but could have adverse consequences in future occurrences.

    1. If safety-critical information is not disseminated effectively to all railway engineering employees, these employees may be unaware of changes to safe working practices, increasing the risk that they will inadvertently put themselves in harm’s way.
    2. If appropriate memory aids are not used to keep track of people and equipment during Rule 42 track protection, a sub-foreman may inadvertently forget to check on an employee, increasing the risk of an accident.
    3. If ad hoc practices are developed in lieu of formal safe work processes, these practices may not be adequate to ensure safety, increasing the risk of accidents.
    4. If a thorough job briefing identifying hazards pertaining to track machines is not conducted, employees may not know what must be done to ensure it is safe to permit a train to operate on an adjacent track, increasing the risk of accidents and injuries.
    5. If railway procedures do not address distraction while heavy track machines are in operation, there is a risk that a lapse of operator attention may cause accident or injury.

    3.3 Other findings

    These items could enhance safety, resolve an issue of controversy, or provide a data point for future safety studies.

    1. The absence of a visual status display on the workstation precluded the rapid awareness and confirmation that all tamping tools were closed and locked in the vertical position.

    4.0 Safety action

    4.1 Safety action taken

    4.1.1 Transportation Safety Board of Canada

    On 16 November 2018, the TSB issued Rail Safety Advisory 09/18to Transport Canada (TC)indicating that, given the potential risks when trains operate through work sites, TC might wish to review the application of Canadian Rail Operating Rules (CROR) Rule 42 that allows ongoing work activities when a train is passing on the adjacent track.

    4.1.2 Transport Canada

    On 11 December 2018, Transport Canada (TC) issued a letter of Non-Compliance to the Canadian National Railway (CN) for the contravention to CROR Rule 803, which states:

    1. Prior to the removal, cancellation or expiration of protection, or providing instructions to a movement; the foreman must ensure, unless otherwise protected:
      1. the track is safe for movements at normal speed; and
      2. employees or track units for which the foreman is responsible are clear of the track.

    On 28 December 2018, TC received a response from CN, which described the measures CN had taken following the occurrence. TC determined that the measures were sufficient in addressing the non-compliance.

    On 24 June 2019, TC responded to TSB Rail Safety Advisory 09/18 indicating that:

    The Canadian Rail Operating Rule (CROR) 42 is intended to allow the safe passage of rail traffic while work is being performed on or around a portion of the track. The rule informs operating employees of the requirements that must be met in order to proceed through a foreman’s working limits. The rule is not intended to permit or prohibit engineering work while a train is allowed through the working limits. It is the railway’s responsibility to determine what type of work can be performed with CROR 42 protection, including work activities when a train is passing on an adjacent track, and to ensure that all personnel working in the vicinity of rail traffic can safely carry out their assigned duties.

    4.1.3 Canadian National Railway Company

    On 04 October 2018, in response to this occurrence, CN issued Engineering Notice 2018-E‑06, “Clearing procedures for Track Services on major rail/tie gangs when working under Rule 842 Multi track territory.” As part of this notice, the Unimat tamper was added to the list of equipment for which work heads (tamping tools) must be pulled in and for which work must be stopped when trains operate on the adjacent track through Rule 42 limits.

    Following the occurrence, CN also implemented the following safety action:

    • The incident was communicated to Eastern Region engineering staff.
    • The engineering notice for the multi-track clearing policy was reviewed with all engineering production employees (specifically tamper operators) working in the Eastern Region.
    • A copy of Engineering Notice 2018-E-06 was placed in each engineering production machine.
    • Labels have been posted inside the cabs of the machines that are restricted from working when a train is passing on the adjacent track. These labels indicate that work must be stopped until all trains are clear of the limits.

    This report concludes the Transportation Safety Board of Canada’s investigation into this occurrence. The Board authorized the release of this report on It was officially released on

    Appendices

    Appendix A – Canadian Rail Operating Rules Rule 42 – Planned Protection

    1. Rule 42 signals must not be in place more than 30 minutes prior to or after the times stated in the GBO [General Bulletin Order] unless provided for in the GBO.

      Note: Foreman must refer to Rule 842 Footnote 19

    2. A movement in possession of the Form Y must not proceed beyond the red signal located at the identifiable location stated in the GBO, enter the track limits stated in the GBO, or make a reverse movement within such track limits until instructions have been received from the foreman named in the GBO. When a specific track is to be used, instructions from the foreman must specify the track upon which the instructions apply.
    3. The instructions must be repeated to, and acknowledged by, the foreman named in the GBO before being acted upon.
    4. When a signalled turnout is within two miles of Rule 42 protection which does not apply on all tracks, every movement must approach such location prepared to comply with the requirements of Rule 42 until it is known which route is to be used.

    Appendix B – Clearing record to be used by a Rule 42 foreman

    Source: Canadian National Railway Company

    Appendix C – Sub-foreman procedures

    CN’s Canadian Rail Operating Rules (CROR) define a sub-foreman as “[a] Rules qualified employee that works under the protection held by a foreman. “

    The Special Instructions section of CN CROR Rule 855, “Multiple Track Units and/or Track Work – Foreman Requirements, indicates in part:

    PROCEDURES FOR PROTECTION OF SUB-FOREMAN WORK GROUPS

    […]

    Sub-foreman protection is restricted for use for those work groups performing work directly related to the protecting foreman’s work project.

    The protecting foreman named on the original authority, must enter the name(s) of the sub-foreman in charge of the separated work group, in the applicable portion of the authority.

    […]

    Prior to commencing work, the sub-foreman must:

    1. be provided with or transmitted a copy of the protecting foreman’s TOP or Rule 42, from the protecting foreman.
    2.        
    3. if authority is transmitted, the employee copying this information must repeat it back to the protecting foreman who will check and underscore it as it is repeated back. Once repeated correctly, the foreman will advise the employee it was correct and they will compare time.
    4.       
    5. apply Rule 855 with any employees accompanying him.

    Any changes to the protecting foreman’s authority, including changes to other sub-foreman, must be communicated to the sub-foreman and they must document these changes.

    Prior to allowing a train to enter the working limits, the protecting foreman must:

    1. enter the designation and direction of the train on the clearing record
    2. advise sub-foreman of the train and direction, and receive confirmation from all sub-foreman that every employee and machine are clear of the track.
    3. place a check mark in the box whose number corresponds with that of the sub-foreman.
    4. record the time the train was authorized to enter the work limits as well as the authorized route/speed, on the clearing record.
    5.  
       

    Before allowing a sub-foreman work group to recommence work, the protecting foreman must:

    1. ensure any train authorized has departed the authority limits or work location of the foreman or sub-foreman.
    2. this must be done by personal observation or radio contact with the involved train by the foreman or sub-foreman and the clear time must be recorded on the clearing record of both the foreman and sub-foreman.

    The sub-foreman must advise the protecting foreman when protection is no longer required.

    Prior to cancelling the authority or prior to the expiration of the time limits on the Rule 42, the protecting foreman must receive confirmation from each sub-foreman that all employees and machines are clear of the track.

    Appendix D – Canadian National Railway Company’s General Engineering Instructions relating to job briefings

    Section 2.2 of Canadian National Railway Company’s General Engineering Instructions requires the following:

    The job briefing session shall cover all relevant issues with respect to the task being performed and necessary safety precautions that must be taken, including, but not limited to the following:

    • Designation of the employee in charge
    • Method of on-track protection being used and the limits of authority
    • Tracks(s) that may be fouled
    • Operational control of movements on adjacent tracks, if any
    • Procedure to arrange for protection on adjacent tracks, if necessary
    • Maximum zone speed and minimum sight line requirements when using safety watch protection, or if working adjacent to live tracks
    • Means of providing a warning when Safety Watch is used
    • Designated place of safety where workers will clear for trains or track units
    • Designated work zones around track units
    • Safe working and travelling distances between track units
    • A field level risk assessment specific to the task to be performed

    Appendix E – Job briefing form completed by one of the employees on the day of the occurrence

    Source: Canadian National Railway Company, with TSB annotations