Railway Investigation Report R06H0013

Risk of collision
Between
Goderich-Exeter Railway Company Train 518
and
VIA Rail Canada Inc. Train 87
Mile 72, Guelph Subdivision
New Hamburg, Ontario

The Transportation Safety Board of Canada (TSB) investigated this occurrence for the purpose of advancing transportation safety. It is not the function of the Board to assign fault or determine civil or criminal liability. This report is not created for use in the context of legal, disciplinary or other proceedings. See Ownership and use of content.

Table of contents

    Summary

    On 06 June 2006 at 1931 eastern daylight time, VIA Rail Canada Inc. passenger train 87, travelling westward at 30 mph, exceeded its limits of authority and stopped short of a head-on collision (within approximately one mile) with Goderich-Exeter Railway Company train 518 at Mile 74 of the Goderich-Exeter Railway Company Guelph Subdivision, near New Hamburg, Ontario. There were no injuries to the passengers or crew.

    Ce rapport est également disponible en français

    Factual information

    On 06 June 2006, westward VIA Rail Canada Inc. (VIA) train 87 (train 87), en route from Toronto, Ontario, to Sarnia, Ontario, was proceeding at 30 mph (over a temporary slow order) near New Hamburg, Ontario, on the Goderich-Exeter Railway Company (GEXR) Guelph Subdivision (Figure 1). At 1931 eastern daylight time,Footnote 1 GEXR train 518 (train 518), working on the main track at Mile 75, heard an automated radio broadcast report originating from the hot box detector (HBD) located at Mile 73.7. The automated report indicated that a train had just passed that location. Realizing that a train collision could be imminent, the crew of train 518, using the train radio, immediately requested the approaching train to stop. Upon hearing the radio broadcast from train 518, the crew of train 87 applied a full service brake application and the train came to a stop at approximately Mile 74.

    Figure 1. Incident location on the Guelph Subdivision (Source: Railway Association of Canada, Canadian Railway Atlas)
    Image
    Incident location on the Guelph Subdivision

    The crew of train 87 then called train 518 over the radio and asked for their cellular telephone number. After receiving the telephone number, train 87 contacted train 518 by cellular telephone. During this conversation, an agreement was made that train 87 would back up clear of the siding switch at Mile 73.85 (Alpine). Train 518 would then enter the siding to allow the passenger train to continue westward. After conducting these movements, both trains then completed their tours of duty. This incident was not reported to the appropriate personnel (at VIA and GEXR) at the time of the incident, nor upon completion of the crews' tours of duty.

    Before departing Kitchener, Ontario, train 87 had received a clearance to proceed from Mile 64 (Kitchener) to the west siding switch at Stratford (approximately Mile 88.5). This clearance contained a restriction to protect against train 518 between Mile 72 and the west siding switch at Stratford. At 1924, approximately seven minutes before reaching Mile 72, the conductorFootnote 2 on train 87 used the assigned cellular telephone to contact train 518 to obtain permission and instructions through the restricted limits. However, the conductor inadvertently dialed the wrong telephone number, resulting in a call to GEXR train 433 (train 433) that was working in London Yard (Mile 119.9). At that time, train 433 was performing a switching operation. With the conductor on the track at the rear of the train, the locomotive engineer answered the call.

    The conductor of train 87 immediately recognized the locomotive engineer's voice and thought that he was speaking to train 518. During the conversation, proper identification was not established and the misidentification was not detected. When train 87 requested permission to travel through the work limits, the crew of train 433 reasoned that train 87 would go through their work limits before they would return to foul the main track. While it was unusual that train 87 had called so early, train 433 did not foresee any problems with providing permission to the VIA train to travel through their work limits. Upon receiving permission, a clear understanding in writing of this permission given by train 433 to train 87 was not copied by all required crew members.

    As a result of the conversation, the crew members of train 87 believed that they had obtained permission through the limits of the clearance held by train 518. It was not until receiving the urgent request to stop and then speaking with the crew of train 518 that the crew members of train 87 realized that they did not have permission to enter the limits.

    Train information

    Train 87 was made up of one locomotive and four passenger coaches. There were 97 passengers on board. At the time of the incident, both GEXR trains were in the process of being built. As such, complete journals of the GEXR trains were not available.

    Crew information

    The operating crew of train 87 consisted of two locomotive engineers (as is normal practice with VIA). The operating crews of train 518 and train 433 each consisted of a locomotive engineer and a conductor. All employees were qualified for their respective positions and met company and regulatory fitness and rest standards.

    Guelph Subdivision

    The Guelph Subdivision is leased by GEXR (a subsidiary of RailAmerica, Inc.) from Canadian National (CN). This subdivision is single main track between Mile 30 (Silver) and Mile 119.9 (London Junction). Train movements on this subdivision are governed by the Occupancy Control System (OCS) method of train control, as authorized by the Canadian Rail Operating Rules (CROR), and are supervised by a rail traffic controller (RTC) located in North Bay, Ontario. At RailAmerica, Inc.'s rail traffic control office, there are two OCS on duty during the day from 0600 to 2200. At night, from 2200 to 0600, an RTC is the only person present in the building.

    The authorized timetable speed in the vicinity of the incident was 70 mph for passenger trains and 55 mph for freight trains. Three temporary slow orders were in effect for passenger trains including:

    • 60 mph between Mile 64 and Mile 78;
    • 50 mph at Mile 68.12; and
    • 30 mph at Mile 73.67.

    Approximately six passenger trains traverse the track on a daily basis. In addition, two freight trains and six work trains typically operate daily on this subdivision.

    Train control systems

    Train control systems provide for the safe operation of trains, track work, and maintenance on one or more main tracks. TheOCS and the Centralized Traffic Control System (CTC) are two methods of rail traffic control used by railways in Canada.

    TheOCS requires the RTC to issue and record train and track authorities over specific sections of track through the use of a computer-assisted dispatch system. The software supports a set of rules designed to prevent the issuance of conflicting authorities. Written authority (that is, clearance) is required by a train movement to occupy the track. Clearances are captured in the RTC's computer in an identical fashion to that written by crew members. Where theOCS exists exclusively, it is referred to as "dark territory." In this situation, there are no signals present in the field and normally no other indications on the RTC display to indicate track occupancies or switch positions. To keep track of train locations, the RTC must record the time a train passes various designated locations.

    In someOCS territories, a secondary line of defence exists in the form of an Automatic Block System (ABS). In this situation, a simplified signal system provides block occupancy information to the approaching train movement. This system can control train movements by indicating the need to be prepared to stop, to travel at a slower speed, and to be on the lookout for other train movements, broken rails, and open switches. Railway companies may upgrade the method of control when traffic levels or traffic composition changes.

    The CTC is the preferred method of train control. Through the use of the software, the RTC requests signals for trains. The signal system will then determine how permissive the signal will be. By establishing track circuits in the field, this system displays track occupancies on the RTC screen. This system provides signal indications to railway employees as to what speed they may operate, how far they are permitted to travel, or if the block ahead is occupied. When a track occupancy appears on the RTC screen, it normally indicates the presence of a train.

    In the United States, the Federal Railroad Administration (FRA) restricts all passenger trains in dark territory to a maximum speed of 59 mph due to the fact that there are fewer safety defences compared to other methods of train control.Footnote 3

    Voice communication on the Guelph Subdivision

    On the Guelph Subdivision, the primary method of communication with (and between) trains is by cellular telephone. In general, use of two-way radio on the Guelph Subdivision is restricted to a short range of approximately one to three miles.

    When using cellular telephones, communication between employees must comply with all of the formats and restrictions used for radio communication (as specified by RailAmerica, Inc.'s special instructions and in conformity with Transport Canada (TC)-approved CROR radio communication rules). This requirement includes starting all initial communications with train identification. Employees on the Guelph Subdivision are aware that these radio procedures must be used for work situations when communicating by cellular telephone. However, it was determined that a significant number of GEXR employees would often slip into inappropriate forms of speech (that is, deviations from radio rules) when using a cellular telephone. In addition, a 2002 TC audit determined that employees frequently omitted the formal aspects of the required communications when using a cellular telephone.

    The way a device is used determines the type and style of communications.Footnote 4 The following list summarizes some of the differences between cellular telephone communications and two-way radio communications:

    • Cellular telephone is more supportive of informal, spontaneous communication.
    • Radio broadcasts provide a means for allowing employees (locally on the track or at rail traffic control centres) to hear communications and identify issues that may affect them. This information can be essential for railway employees to allow them to maintain an understanding of work going on around them that might affect their safety.Footnote 5
    • Cellular telephone communications cannot normally be overheard by other crews or by the RTC. Since the speakerphone function is not normally used, only the employee using the cellular telephone can hear the relevant information. In these situations, other crew members would not be able to independently check the accuracy of the information communicated.
    • Since cellular telephone communications are not normally overheard or recorded (other than for communications involving the RTC), there is limited opportunity for peers, supervisors, or the regulator to monitor inappropriate use of the telephone.
    • Cellular telephone use requires dialing a string of numbers and may require repeated attempts to make contact. The person calling will dial a unique number, which they expect to be answered by the owner of that number.
    • For radio communications, the person responding may not necessarily be the person that is being requested. Radio broadcasts are open to any party on a particular radio channel. Anyone using the broadcast channel can answer.

    At GEXR, there were no formal requirements, rules, or procedures for crews to obtain cellular telephone numbers of other trains (or foremen) occupying track limits specified by the restrictions listed on a clearance. When obtaining clearances, several different methods were used to obtain the telephone numbers:

    • some employees developed their own lists of telephone numbers;
    • some employees relied on their memory of telephone numbers for the trains that they normally communicated with during their regular trip;
    • some employees relied on company-distributed lists of telephone numbers; and
    • some employees checked with the RTC for the appropriate telephone number.

    However, cellular telephone numbers associated with particular trains will occasionally change and, at the time of the incident, there were no specific procedures in place to ensure that all required employees were informed of any changes.

    Despite the reliance on cellular telephones, two-way radios are still expected to be used in the field by railway employees to call out certain identifiable locations, as prescribed by railway special instructions and CROR Rule 90 (see Appendix A, Part A). However, due to the absence of radio towers on the Guelph Subdivision, the distance that such communication can be transmitted to and heard from is very short (that is, a range of approximately one to three miles). Some train crews have indicated that, although they believe that they are applying Rule 90, they cannot always be effective when making announcements on the subdivision standby radio channel as per RailAmerica, Inc.'s special instruction to CROR Rule 90.

    Avoiding distraction during train operations

    Cellular telephones, when used for personal calls and sometimes operational and non-essential business calls, may become a distraction while operating a locomotive. VIA train crews have expressed their concerns about incoming telephone calls and their distraction to ongoing train operations.

    CROR Rule 124 (Avoiding Distraction) specifies that General Bulletin Orders (GBOs), authorities, or instructions must not be copied by the employee operating moving equipment if it will interfere with the safe operation of such equipment.

    In addition, Item 6.2 of VIA's special instructions (dated 30 April 2006) specifies that locomotive cab telephones are to be used strictly for operational matters. Cab cellular telephone calls to the crew office for personal matters (for example, displacements, temporary vacancies, medical, or training coordination) are prohibited while the train is in motion.

    In comparison, other railways have implemented even more stringent restrictions on the use of cellular telephones. For example, CN has prohibited the use of cellular telephones for the purpose of copying operating authorities, unless there are extenuating circumstances. In addition, an Irish railway (Iarnrod EireannFootnote 6) has issued instructions to its operating personnel indicating that the train must be stopped if a cellular telephone is to be used (see Appendix A, Part I).

    Train Clearance for documenting and managing instructions

    Railway clearances are used to define the operating limits and restrictions contained within the limits of an operating authority. Predominantly, two-way radio communications provide the means for train crews and the RTC to communicate these items. Appendix B presents the clearance used by GEXR on the Guelph Subdivision.

    GEXR's clearance is a two-sided document:

    • On the front page, there is space designated for recording restrictions that the crew must protect against.
    • On the back page, there is space designated to write instructions pertaining to the restrictions listed on the front.

    In contrast to this two-sided document, crew members have a number of other working documents for their trip that contain writing on the front pages only (for example, Daily Operating Bulletins [DOBs], Train Specific General Bulletin Orders [TGBOs], train journals and train performance reports).

    Other characteristics of GEXR's clearance (including how it is used) include:

    • There are no rules, instructions, or procedures indicating that written instructions must be placed on the back. At GEXR, some employees use the back of the clearance for this purpose, while most employees write only on the front of the clearance (as is the case on other railways) near the listed restriction.
    • There is no guidance or procedures on how the crew is to mark written instructions or additional instructions for restrictions on clearances. Different crews use different methods, which have been developed through trial and error.
    • The maximum number of restrictions permitted on the front of a clearance is three. Commonly, on the Guelph Subdivision, there are three restrictions listed for a clearance.
    • There is only room for three sets of instructions on the back of each clearance. However, often for just one clearance, it can take more than three conversations and three sets of instructions to get through one restriction. In these situations, many sheets have been required to record the restrictions given.
    • There is no regulatory requirement for train clearances to be retained at the end of a journey. In addition, neither GEXR nor VIA audits the use of these clearances after a journey has been completed.
    • When OCS issue clearances, there are no special rules or procedures with respect to obtaining and recording cellular telephone numbers for employees in the field. However, there is an expectation by field employees that the RTC will provide telephone numbers if there are restrictions on clearances.
    • The computerized clearance has no designated space to record telephone numbers. The RTC will normally record these numbers on the train sheet under the train identification and engine numbers.

    Assessment of cellular telephone use

    In 1998, when GEXR acquired the running rights on the Guelph Subdivision from CN, GEXR assessed the use of cellular telephone technology and determined that it was adequate for voice communications. At the same time, the existing towers that had been used by CN for radio communications were removed by CN. As part of the assessment, GEXR determined that, if the employees follow the required radio procedures when using cellular telephones, the system would operate as required. In the assessment, the use of cellular telephones was not identified as a safety issue.

    A study was conducted in March 2001 for GEXR concerning the cost and benefits of purchasing and installing radio towers on the Guelph Subdivision. VIA had indicated that the radio tower project was important for safety reasons. Following the study, the information was provided to VIA with the request to pay half the cost of the radio tower installations. VIA declined because it believed that radio tower installation was an operational issue to be resolved between GEXR and CN. While the studies indicated the benefits and feasibility of radio communication, the project to install radio towers was not implemented.

    Transport Canada audits of Goderich-Exeter Railway Company operations

    In a 2004 TC audit of the RailAmerica, Inc. rail traffic control office in North Bay, poor communication methods were identified as a potential issue. Specifically, the audit noted that cellular telephones were being used by GEXR staff for safety-critical communications. TC's audit indicated that no auditing of RTC telephone conversations was being conducted by GEXR management.

    A copy of the 2004 audit was provided to the rail traffic control centre. The OCS were requested to review the audit and to take appropriate corrective measures to ensure compliance to rules and operating manuals. In addition, the RTCs were reminded to assist with educating Operating and Engineering personnel on the rules and operating practices.

    Although RailAmerica, Inc. intended to forward the relevant information pertaining to this audit to the GEXR field office, it is unclear whether the appropriate field personnel received this information.

    Regulatory requirements for communications between railway employees

    There are a number of relevant rules within CROR that apply to communications between railway employees. These rules include:

    • Rule 121 - As required by CROR Rule 121, both the person initiating a radio communication and the responding party must establish positive identification. RailAmerica, Inc. developed a special instruction (see Appendix A, Part B) that specified how positive identification was to be established. This special instruction emphasized the need for positive identification when cellular telephone communication is used.
    • Rule 123 - CROR Rule 123 (Verification Procedures - see Appendix A, Part C) specifies the need to verify the contents of an order, authority, or instructions, in writing, by procedures prescribed by their specific rules.
    • Rule 132 - Verification procedures must be conducted while in compliance with CROR Rule 132 (Brevity, Clarity and Pronunciation - see Appendix A, Part D). The requirement to transmit and repeat all words and numbers using clear pronunciation is prescribed by this rule. In addition, if the communication must be copied in writing, numbers will be pronounced in full, and then repeated stating each digit separately. Numbers represented by a single digit must be pronounced, and then spelled.
    • Rule 142 - As prescribed by CROR Rule 142 (Understanding Between Crew Members) and by RailAmerica, Inc.'s special instructions (see Appendix A, Part E), operating employees must read and understand the contents of any orders, clearances, bulletins, and instructions pertaining to restrictions immediately after being received. In addition, these documents must be made available to other crew members for the same purpose as soon as possible.

    Obtaining permission through restrictions

    When a train crew has a restriction on a clearance to protect against another train, it cannot enter the work limits without first contacting the crew holding the track and receiving permission through the restriction, as per CROR Rule 309 (see Appendix A, Part F). This understanding must be in writing and must include information on the specific movement of each train and the protection to be provided until the train has left the work limits. Despite this requirement, no company guidelines are provided on how crew members are expected to establish an understanding in writing. As such, at GEXR, there is no consistency among crews on how (or where) to record this written information. In comparison, at Canadian Pacific Railway (CPR), to support Rule 309, a Rule of the Week was developed (see Appendix A, Part F). In the situation described in the Rule of the Week, CPR indicates "…the conductor or locomotive engineer may communicate the instructions…but both crew members must record the instructions." For situations where a train is inside the limits of another train (with or without permission from the crew holding authority) and the train must make a reverse movement, the train crew is required to obtain authority from the RTC before initiating this movement, as per CROR Rule 308.1 (Clearance to Proceed - see Appendix A, Part G). In this occurrence, the crew of train 87 did not request and obtain authority from the RTC before initiating their reverse movement.

    Incident reporting by crew members

    When an accident or incident occurs during train operations, the involved employees must report the occurrence to the appropriate railway personnel, as prescribed by CROR General Rule A and RailAmerica, Inc.'s General Operating Instructions (GOIs), Item 1.6 (see Appendix A, Part H).

    In this occurrence, the incident was not reported by either of the crews involved. In addition, there are indications that similar recent incidents were not reported by employees. A number of employees also indicated that, if they were not directly involved, but were aware of an incident, they might not report it either for fear of discipline or because of the lack of direct knowledge.

    With respect to consequences for an employee after committing a serious rule violation (such as the violation in this incident), VIA's discipline guideline indicates that consequences will vary depending on the previous discipline history, possible mitigating/aggravating factors, and the degree of acknowledgment of responsibility/remorse. VIA employs a demerit point system as follows:

    • An employee with an unblemished record would typically receive 30 to 55 demerit points for a serious violation and would then be sent back to work.
    • If an employee accumulates more than 60 demerit points, the employee can be dismissed.
    • If an employee already has a slightly blemished record (for example, 10 to 20 demerit points), another serious violation can potentially lead to job dismissal.
    • Should discipline be warranted following an investigation, it is assessed as a means of emphasizing the message that safety is a priority.

    In comparison, GEXR uses a deferred punishment approach for rule violations as follows:

    • The first serious violation within a 36-month period results in a maximum 15-day deferred suspension.
    • If there is a second serious violation within 36 months, the employee will receive a maximum 30-day actual suspension along with the previous deferred suspension for a maximum of 45 days.
    • For three serious violations within 36 months, the employee will be subject to dismissal.

    The inappropriate use of disciplinary measures creates a safety culture based on fear of reprisal rather than on the advancement of safety by communicating and learning from mistakes.Footnote 7 In contrast to the railway industry, other high-consequence industries (for example, aviation, medicine) have developed voluntary, protected safety information reporting systems as a means to increase the availability of key information about the safety of their industry.Footnote 8

    Such non-jeopardy reporting systems provide protection against disciplinary action or other negative repercussions provided that the employee reports the incident that he or she was involved in. These systems can lead to both an increase in reporting and a more thorough understanding for all parties of the cause and remedial actions required to prevent the type of occurrence from happening again. A non-jeopardy reporting system has been successfully implemented in the United Kingdom rail system.Footnote 9

    Running rights on the Guelph Subdivision

    Before GEXR acquired the lease from CN for the Guelph Subdivision, VIA had a formal Train Service Agreement (TSA) with CN regarding running rights. The TSA was dated 16 November 1995 and had been extended until December 2008. After GEXR acquired the lease on 16 November 1998, VIA trains continued to operate on the Guelph Subdivision. Both VIA and GEXR endeavour to operate in compliance with the provisions of the pre-existing TSA. However, GEXR does not recognize all the terms of the agreement and has requested that VIA negotiate a new one directly with GEXR. To date, VIA has declined, apparently on the basis that the pre-existing TSA applies to the relationship between VIA and GEXR.

    The Trans-Group reportFootnote 10 (commissioned by the Canada Transportation Act Review Panel) indicated that VIA pays for a significant part of infrastructure on many subdivisions on which it operates. However, the Guelph Subdivision is not listed as one of these subdivisions.

    "Joint Running Rights" refers to the situation where participating railways jointly operate over a segment of track by a formal agreement. As indicated in the Trans-Group report, usually one railway owns the track that the other operates over and payment to the owner is calculated by wheelage (that is, cost per wheel).

    In contrast, "Common Running Rights" describes the situation when access to another railway's track is accomplished by decree. This situation is often referred to as "forced access" since the owner of the track usually has little or no power to prevent the access. With regard to this occurrence, the operating relationship between VIA and GEXR on the Guelph Subdivision matches the "Common Running Rights" definition.

    Some of the observations from the Trans-Group report related to running rights and operating differences when multiple railways use the same track include:

    • If running rights arrangements between carriers shift from a more voluntary joint running rights arrangement between carriers to a more imposed or non-consensual (common) running rights, the shift may pose incremental increases in risk associated with train operation.
    • Alterations in train operations through common running rights would likely have an impact on main-track train collisions involving track units, crossing, trespasser, and passenger train accidents.
    • Risk can increase when employees from different companies run trains on another railway's tracks.

    Analysis

    In this occurrence, there were no train handling issues, no mechanical problems with the trains, and no contributing track problems. The analysis will focus on the communication procedures relating to cellular telephones (when used in lieu of portable two-way radios), on operational issues of passenger trains inOCS territory, and on non-reporting of rule violations by railway employees. In addition, the analysis will consider how the type of running rights for a railway affects the safety of train operations.

    The incident

    In this occurrence, a risk of collision occurred when train 87 entered the limits of train 518 without permission. Using the assigned cellular telephone and before entering the track limits, the crew on train 87 had attempted to contact train 518 to request permission to enter their limits. However, train 87 inadvertently called another GEXR train (train 433). During the communication with train 433, positive identification (CROR Rule 121) and verification (CROR Rule 123) was not established by either train crew. As a result, the mistake of contacting train 433 (instead of train 518) was not recognized and corrected.

    Because a cellular telephone had been used, only the actual crew members communicating on the telephone were privy to the full conversation. In this situation, the locomotive engineer of train 87 did not hear the full conversation with train 433, and therefore did not have the opportunity to identify the mistake. Furthermore, the instructions agreed upon during the conversation, which were required to be in writing, were not adequately verified by either crew.

    Railway operating employees on the Guelph Subdivision had developed an informal style of communication when using cellular telephones and did not follow all radio procedures. It is likely that this informal style of communication between train crews had developed over time due to the lack of specific company procedures for the use of cellular telephones.

    Use of cellular telephones as the primary method of communications

    CROR Rule 142 and Rule 309 (b) both deal with establishing an understanding between crew members. While the rules specify "between crews," this rule mainly applies to the information obtained from the RTC. The rules imply that all crew members must have the same understanding. However, when the conversations can only be heard by some crew members, it is often impossible to attain this goal. This difficulty may occur when a crew member is using a cellular telephone to communicate with other train crews to establish an agreement. Normally, the crew member who is involved in making the agreement will communicate the information to the other crew members as soon as possible (as prescribed by the rules). However, if a discrepancy occurs during the initial communication, the other crew members will not have an opportunity to identify the mistake.

    The use of cellular telephones as the primary means for communications between railway employees may result in some personnel not hearing safety-critical information, thereby increasing the risk of miscommunication between train crews.

    Avoiding distraction during train operations

    CROR Rule 124 deals with avoiding distraction while copying an authority. With respect to this rule, VIA issued a special instruction to clarify what is meant by possible distractions while the train is in motion. This instruction deals (in part) with the prohibited use of cellular telephones for personal reasons.

    When operating employees use cellular telephones to establish and copy authorities, much more attention (as compared to radio use) is required, thus reducing the attention available for train handling and for route and restriction observance. For example, without speed dialing programmed for the cellular telephone, many more numbers must be carefully entered in comparison to radio use where inputting is normally limited to a few numbers on the radio keypad. As a result, if distraction is to be avoided, the train crew may need to stop the train to become involved with making the agreement. However, in most situations, stopping the train is impractical.

    In an environment where there is excessive reliance on cellular telephone communications, in conjunction with the normal workload of operating a train, there is an increased risk of distracting train crews, leading to operating errors.

    Communication style when using cellular telephones

    Railway communication requirements are very different from using cellular telephones outside the work environment. A conscious effort must be made to apply the prescribed radio regulations when using a cellular telephone in lieu of a two-way radio. When two distinctly different types of hardware can be used on the railway, and each has its own specific communications methodology, the natural behaviour of a person operating the hardware is to converse in the manner most commonly associated with that hardware. Therefore, two-way radio communications are naturally formal, while cellular telephone communications are naturally casual.

    While there are no specific CROR rules for cellular telephone usage (that is, in lieu of two-way portable radios), all rules governing the use of radios are expected to be applied when using cellular telephones. Without formal rules and auditing of cellular telephone use, positive identification and verification of restrictions between railway employees are less likely to be consistently and properly obtained, increasing the risk of miscommunications between train crews and with other railway personnel.

    Operational risks in occupancy control system dark territory

    TheOCS method of train control does not provide train crews with a warning in the field if they are entering an occupied block. In comparison to other train control methods,OCS has fewer lines of defence for avoiding train conflicts.

    The primary line of defence inOCS dark territory is the use of clearances. The train crew and other qualified employees must obtain these clearances from the RTC before they can operate within the specified limits. Railway employees must use the prescribed form to perfectly copy, repeat, and acknowledge each clearance given by the RTC.

    As an additional defence inOCS dark territory, train crews must call out identifiable locations using radio broadcasts as they travel through the subdivision. In addition, for the Guelph Subdivision, RailAmerica, Inc. has a special instruction to CROR Rule 90. By broadcasting train locations over the radio, other trains or employees in the vicinity will be aware of the approaching train. However, for locations where there is limited radio range (for example, less than three miles), CROR Rule 90 and RailAmerica, Inc.'s special instruction will not be consistently effective.

    InOCS dark territory, when there are high-speed passenger trains on the same track as other train movements, in conjunction with a limited radio communication range, the effectiveness of broadcasting train location will be compromised, resulting in an increased risk of train collisions.

    Broadcast of safety-critical information

    In this occurrence, the crew members of train 518 were monitoring the standby radio channel and heard the automated radio broadcast from an HBD in their vicinity. The message indicated that a train had just passed the HBD location that was within the track limits of train 518. The vigilance of the crew of train 518 in recognizing the significance of the HBD alert and in rapidly taking action averted a collision.

    Non-reporting of rule violations

    The train crews involved in this occurrence did not report the incident to either railway. In addition, the train crews' follow-up actions resulted in another unsafe action. Specifically, train 87 reversed on the main track without requesting permission from the RTC.

    Past practices suggest that, had the incident been reported at the time of the occurrence, the train crews would likely have been disciplined. Given that this incident involved a number of rule infractions, the disciplinary measures could have ranged from being held out of service during the internal investigation, up to dismissal.

    From the perspective of many GEXR and VIA employees, internal investigations into rule violations are focused primarily on the allocation of blame. With the expectation of severe punishment (for example, demerit points, suspension, or dismissal) after a rule violation, some employees will weigh the risk of getting caught against the punishment, leading to situations where some rule violations are not reported.

    In contrast to disciplinary-based systems, non-jeopardy incident reporting systems have been shown to increase the level of reporting that can result in a greater understanding of how these incidents can be avoided. In this occurrence, because of the fear of discipline, the train crews did not report the near collision. The opportunity for a timely investigation and for the identification of defences to prevent similar incidents from occurring was compromised.

    Running rights agreement

    After GEXR leased the Guelph Subdivision from CN, a new agreement formalizing running rights was not established between GEXR and VIA. While VIA trains continued to operate on the Guelph Subdivision, there was no clear consensus between the parties as to the continued validity of the pre-existing commercial arrangement that had applied to CN and VIA.

    As an example, with respect to radio communications, GEXR had commissioned an independent study to verify the feasibility of installing radio towers on the Guelph Subdivision. VIA indicated that the radio tower project was important for safety reasons. However, when GEXR provided VIA with a copy of the report along with a request to pay half the cost of the radio tower installations, VIA declined because it believed that this was an operational issue between GEXR and CN.

    The lack of a new formal agreement directly between GEXR and VIA concerning running rights on the Guelph Subdivision was a barrier to the development of a cooperative approach for maintaining and upgrading railway infrastructure (for example, installing radio towers).

    Findings

    Findings as to causes and contributing factors

    1. A risk of collision occurred when train 87 entered the limits of train 518 after inadvertently contacting the wrong Goderich-Exeter Railway Company (GEXR) train (train 433) when requesting permission through an occupied track limit.
    2. During the cellular telephone communication between the crews of train 87 and train 433, positive identification and verification was not established, leading to the miscommunication.
    3. Given the lack of specific procedures, railway operating employees on the Guelph Subdivision had developed an informal style of communication when using cellular telephones and did not follow all radio procedures.

    Findings as to risk

    1. The use of cellular telephones as the primary means for communications between railway employees may result in some personnel not hearing safety-critical information, thereby increasing the risk of miscommunication between train crews.
    2. In an environment where there is excessive reliance on cellular telephone communications, in conjunction with the normal workload of operating a train, there is an increased risk of distracting train crews, leading to operating errors.
    3. Without formal rules and auditing of cellular telephone use, positive identification and verification of restrictions between railway employees are less likely to be consistently and properly obtained, increasing the risk of miscommunication between train crews and other railway personnel.
    4. In Occupancy Control System (OCS) dark territory, when there are high-speed passenger trains on the same track as other train movements, in conjunction with a limited radio communication range, the effectiveness of broadcasting train locations over the radio will be compromised, resulting in an increased risk for train collisions.

    Other findings

    1. The vigilance of the crew of train 518 in recognizing the significance of the hot box detector (HBD) alert and in rapidly taking action averted a collision.
    2. In this occurrence, because of the fear of discipline, the train crews did not report the near collision. The opportunity for a timely investigation and for the identification of defences to prevent similar incidents from occurring was compromised.
    3. The lack of a new formal agreement directly between GEXR and VIA Rail Canada Inc. (VIA) concerning running rights on the Guelph Subdivision was a barrier to the development of a cooperative approach for maintaining and upgrading railway infrastructure (for example, installing radio towers).

    Safety action taken

    Rail safety information letter

    The TSB issued Rail Safety Information letter (RSI) 05/06 on 21 November 2006 regarding the use of cellular telephones for safety-critical communications on the Goderich-Exeter Railway Company (GEXR) Guelph Subdivision. The RSI noted that the lack of clear and unambiguous exchange of information between employees on the Guelph Subdivision, specifically concerning the use of cellular telephones in lieu of two-way radio communication, may lead to miscommunication.

    Transport Canada's (TC) response of 10 January 2007 identified a number of initiatives taken following the occurrence:

    • TC conducted an audit of the RailAmerica, Inc. rail traffic control office in September 2006. A report was submitted to RailAmerica, Inc.
    • TC sent individual letters to GEXR and to VIA Rail Canada Inc. (VIA) outlining non-conformances and non-compliances noted during the audit.
    • TC followed up on the corrective action taken by VIA and GEXR.
    • TC conducted an extensive safety audit of GEXR's railway operations.

    Action taken by RailAmerica, Inc.

    On 09 November 2006, RailAmerica, Inc. distributed a "Rule of the Week" to all employees that discussed special instruction to CROR Rule 121 (a). The Rule of the Week reminded employees of the meaning of the rule, and provided an example that acts as specific interpretation of the rule.

    On 09 November 2006, RailAmerica, Inc. issued a memorandum to its rail traffic controllers (RTCs), providing instructions for the requirement and specifications of placing a telephone number on a clearance where a restriction is provided indicating that one train protect against another.

    RailAmerica, Inc. implemented new procedures to ensure that the RTC is advised of the particular cellular telephone number that the train or foreman will use before an Occupancy Control System (OCS) clearance is issued.

    Post audits of these communications are conducted monthly by both GEXR and VIA operating officers, and are subject to a joint safety conference call between VIA, GEXR, and rail traffic control officers.

    GEXR and VIA are conducting joint efficiency tests (four each year) for their train crews.

    GEXR and VIA have completed testing of cellular bag telephones equipped with a speaker and microphone. GEXR will supply all of their trains with a cellular bag telephone when operating over the Guelph Subdivision.

    Action taken by VIA Rail Canada Inc.

    On 17 November 2006, VIA responded to TC indicating that a safety awareness talk had been conducted with over 100 locomotive engineers, covering communications, rule compliance, pre-trip briefings, cab awareness, and best work practices.

    On 12 December 2006, VIA responded to TC indicating that its corrective action taken included a safety awareness talk to all its locomotive crews. This safety awareness initiative addressed communication (clear, concise, complete), the importance of complete pre-trip job briefings, staying focused on the tasks at hand, the importance of doing the smaller task right, and following the rules and best practices. VIA also issued two educational bulletins.

    A poster describing this incident was developed and posted in all locomotive engineers' booking in rooms system wide. VIA advised TC that joint efficiency testing will be conducted with GEXR to ensure compliance with the Canadian Rail Operating Rules (CROR) while operating on GEXR's Guelph Subdivision.

    VIA purchased cellular bag telephones to supply all of its trains that operate over the Guelph Subdivision.

    This report concludes the Transportation Safety Board's investigation into this occurrence. Consequently, the Board authorized the release of this report on .

    Appendices

    Appendix A – Rules, Special Instructions, and Restrictions

    Part A – Canadian Rail Operating Rules (CROR) Rule 90 (Communication between crew members)

    (This rule also applies to an engine in transfer service)

    1. When a crew member is located on other than the engine of a train and communication is possible, such crew member must voice communicate with a crew member on the engine between one and three miles from every point at which the train is;
      1. restricted by the clearance;
      2. to diverge from a main track when so instructed;
      3. restricted by Form Y;
      4. approaching yard limits or cautionary limits;
      5. to move over a drawbridge or railway crossing at grade;
      6. approaching a controlled location on single track;
      7. approaching a controlled location in multi-track, where so specified in special instructions; or
      8. approaching other locations specified in special instructions.
    2. If a crew member on the engine fails to acknowledge the communication, the train must be stopped before it reaches the controlled location, interlocking or point of restriction.

    RailAmerica, Inc.'s Special Instruction to CROR Rule 90

    1. In addition to the requirements of Rule 90, voice communication must be made at the following times and places:
      1. Before departure from location where crew receives operating authority stating;
      2. InOCS unless otherwise specified by subdivision footnote, before passing station one mile signs enroute, stating;
        • name of the station from which the train is departing.
        • location train first restricted by limit of operating authority (item 3), items 4, 6, 7 or 8 of clearance.
      3. Between one and three miles from locations where protection of impassable or slow track has been provided by GBO or DOB.
        • name of station
        • location train first restricted by limit of operating authority (item 3), items 4, 6, 7 or 8 of clearance
      4. Between one and three miles from locations where instructions from a foreman are required, as specified by Rule 311, 567.1, 611.
    2. When all crew members are located in the operating cab of the lead locomotive:
      • a crew member will make such announcement on the Subdivision Standby radio channel designated in the time table.
    3. On a work train, the train direction of movement must be included in the broadcast.

    Part B - RailAmerica, Inc.'s Special Instruction to CROR Rule 121 (a)

    When establishing positive identification, the initial broadcast must commence with the company initials (or name) of the party initiating the call. Example: RaiLink 401 South, RaiLink Eng. 1802, RaiLink Eng. CN 4318

    Telephone communication - Positive identification and procedures. In establishing and responding to an initial call, when telephone is used to communicate information or instructions pertaining to the movement of a train or engine or the protection of a track unit or track work:

    • the railway, the employee, train or engine being called and the employee calling must be identified; and
    • the verification procedures contained in Rule 123 apply.

    Part C - CROR Rule 123 (Verification Procedures)

    CROR Rule 123 states in part:

    1. When GBO, clearances, other authorities or instructions, required to be in writing are received by radio, they must be verified by the procedures prescribed by their specific rules.

    Part D - CROR Rule 132 (Brevity, Clarity and Pronunciation)

    CROR Rule 132 states:

    1. A GBO, clearance,TOP, authority, instruction and its record shall contain only essential information. It must be brief, but clear in its meaning, in the prescribed form when applicable, and without erasure or any condition which may render it difficult to read or understand.
    2. In transmitting and repeating by voice communication all words and numbers must be clearly pronounced. When the communication is required to be in writing, numbers will be pronounced in full, then repeated stating each digit separately. Numbers represented by a single digit must be pronounced, then spelled.

    Part E - CROR Rule 142 (Understanding Between Crew Members)

    CROR Rule 142 states in part:

    1. Every conductor, locomotive engineer, pilot and snow plow foreman must read and have a proper understanding of GBO, clearances and DOB as soon as possible after they have been received. Each GBO, clearance and DOB must be made available to other crew members, as soon as practicable, ensuring that each crew member has read and understands them and, when required, the arrangements for protection between crews and between foremen and crews.

    RailAmerica, Inc.'s special instruction to CROR Rule 142 (a) states in part

    1. Crew member(s) located in other than the leading unit must be in possession of a copy of all clearances and GBO or DOB for their train.

    Part F - CROR Rule 309

    CROR Rule 309 states in part:

    1. A train must not enter nor move within the working limits until a thorough understanding is established with the conductor and locomotive engineer of each work train. Such understanding must be in writing and include information with respect to the specific movements of each train and the protection to be provided. Such protection must be provided until the train has left the working limits.

    Canadian Pacific Railway's (CPR) Rule of the Week 037 (revised 17 May 2004) states in part:

    Situation: You are the conductor of a Work train. Your train is equipped with a caboose. Directional train "No 1" requests permission to enter your limits. Your train is clear of the main track and you make arrangements with your locomotive engineer to authorize No 1 to enter and pass through your limits. The locomotive engineer of the work train dictates the instructions to No 1.

    Question: Must both crew members (i.e., conductor and locomotive engineer of the work train) record the instructions provided to No 1?

    Answer: Yes.

    Interpretation: Rule 309 prescribes that a thorough understanding be established with the conductor and locomotive engineer of each work train. A thorough understanding means that it is complete and with no mistaken understanding. Therefore, the conductor and the locomotive engineer must have access to a record of the understanding. In our situation, the conductor or locomotive engineer may communicate the instructions to the directional train but both crew members must record the instructions.

    Part G - CROR Rule 308.1 (Clearance to Proceed)

    CROR Rule 308.1 states:

    Unless otherwise provided by rules or special instructions, when authorized to proceed by clearance, a train must move only in the specified direction.

    Part H - CROR General Rule A and RailAmerica, Inc.'s Item 1.6 of the General Operating Instructions (GOIs)

    CROR General Rule A states in part:

    Every employee in any service connected with the movement of trains or engines shall;

    1. provide every possible assistance to ensure every rule, special instruction and general operating instruction is complied with and shall report promptly to the proper authority any violations thereof; and
    2. communicate by the quickest available means to the proper authority any condition which may affect the safe movement of a train or engine and be alert to the company's interest and join forces to protect it.

    Item 1.6 of RailAmerica, Inc.'s General Operating Instructions states in part:

    As part of safety compliance, incidents and accidents must also be promptly reported as per instructions issued in RaiLink General Operating Instructions. This will allow the company to be pro-active in investigation of accidents, and to take action in the performance of on-going risk management.

    Part I - Restrictions for Cellular Telephone Use at Other Railways

    I.1 Canadian National

    Great Lakes District (GLD) Bulletin 5091 (dated 13 September 2005) is addressed to all operating employees about contacting the RTC for permission/authority. The bulletin indicates in part:

    Recently we experienced a serious near-miss incident in multi-track CTC territory involving a freight and a passenger train and the use of telephone to obtain RTC permission/authority to enter the main track. To avoid recurrence and firm up this procedure the following two Special Instructions are effective this date:

    Special Instruction to Operating Rules Note (iv)

    The radio system, when readily available, must be used as the primary means of contact with the RTC. The use of a telephone to obtain RTC authority/permission must only be used when the radio system is not operative, is interrupted, or is not viable.

    Special Instruction to CROR Rule 135 - Employees Addressed

    NOTE: A crew member of a train or engine copying a GBO, clearance, authority or permission from the RTC required to be in writing and transmitted by means of a telephone must ensure that at least one other crew member is provided access to the written form to ensure proper compliance with route and limits governing the movement.

    In addition, GLD RTC Notice 06005 (dated 30 March 2006) states in part:

    Further to these Special Instructions, the following Instructions are to be adhered to by the RTC:

    • The radio system MUST be utilized for all track authorities, CTC authorities (both written and verbal), OS Reports, switch reports, GBO's Rule 42 written routing arrangement between the Foreman and the RTC, and Rule 42/43 confirmations (except when such confirmations have been faxed in accordance with the "Note" as described in RTCM Item 703, paragraph 4).
    • When the radio system is not available, or when a malfunction of a remote radio occurs, after obtaining authorization from the MCO on duty (or Senior Manager, or Manager RTCC), cellular telephones and regular telephones (including satellite telephones) may be used for the issuance of track authorities.

    EXCEPTION:

    Due to the fact that both RTC NI on the both RTC NI on the Newmarket Sub and RTC YQ on the Uxbridge Sub operated on the same channel, it is not viable to issue the necessary clearances on the radio without substantial interference.

    Accordingly, it is permissible for OCS, YQ and NI to issueOCS clearances to, and obtain OS Reports from GO trains ONLY via telephone communication.

    I.2 Iarnrod Eireann (Irish Railway)

    The Professional Signalman's Handbook states in part:

    Mobile Telephones in Driving Cabs:

    • Personal mobile telephones must be turned off when in the driving cab of any traction unit. This instruction applies to all staff members authorized to travel in driving cabs (Note: normally, there is only one crew member in the locomotive cab).
    • Company issued mobile telephones must only be switched on and used if essential to the safe delivery of the work in hand and part of a safe system of work.
    • A mobile telephone must not be used in a driving cab to make or receive calls or make or receive text messages while the train is moving.

    Undertaking Safety Critical Work on or near the line:

    • A mobile telephone must only be used when standing still in a safe place.
    • Do not use a mobile telephone when walking on or near the line.
    • Personal mobile telephones must be turned off or switched to silent when on or near the line.
    • Train crew must abide by these instructions when on or near the line.

    The Safety Plan 2006 for operations states in part:

    • The Driver must not under any circumstances use a mobile phone while the train is moving.

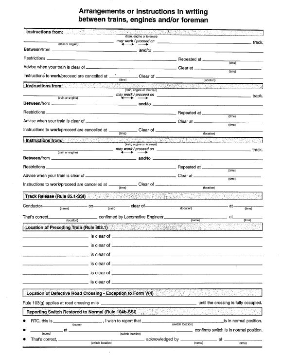
    Appendix B – Goderich-Exeter Railway Company Clearance

    Front of clearance
    Image
    Front of clearance
    Back of clearance
    Image
    Back of clearance

    Appendix C – Glossary

    ABS
    Automatic Block System
    CN
    Canadian National
    CPR
    Canadian Pacific Railway
    CROR
    Canadian Rail Operating Rules
    CTC
    Centralized Traffic Control System
    DOB
    Daily Operating Bulletin
    FRA
    Federal Railroad Administration
    GBO
    General Bulletin Order
    GEXR
    Goderich-Exeter Railway Company
    GOIs
    General Operating Instructions
    GLD
    Great Lakes District
    HBD
    hot box detector
    mph
    miles per hour
    OCS
    Occupancy Control System
    RSI
    Rail Safety Information
    RTC
    rail traffic controller
    TC
    Transport Canada
    TGBO
    Train Specific General Bulletin Order
    TOP
    track occupancy permit
    TSA
    Train Service Agreement
    TSB
    Transportation Safety Board of Canada
    VIA
    VIA Rail Canada Inc.