Marine Investigation Report M07L0040

Grounding
Chemical/products tanker Sichem Aneline
Port of Montréal, Quebec

The Transportation Safety Board of Canada (TSB) investigated this occurrence for the purpose of advancing transportation safety. It is not the function of the Board to assign fault or determine civil or criminal liability. This report is not created for use in the context of legal, disciplinary or other proceedings. See Ownership and use of content.

Table of contents

    Summary

    On 11 April 2007 at 1730 eastern daylight time, the chemical/products tanker Sichem Aneline, loaded with benzene, experienced a steering gear malfunction and grounded on the south side of the Pointe-aux-Trembles anchorage in the St. Lawrence River. The vessel was refloated on 15 April 2007 and towed to the Port of Montréal. There were no injuries or pollution and the vessel sustained only minor damage.

    Factual information

    Particulars of the vessel

    Name of vessel Sichem Aneline
    IMO number 9171735
    Port of registry Majuro
    Flag Marshall Islands
    Type Chemical/products tanker
    Gross tonnage 6202
    LengthFootnote 1 115.3 m
    DraughtFootnote 2 Forward: 7.7 m Aft: 8.3 m
    Built 1998
    Propulsion 3962 kW MAN B&W diesel driving a single controllable-pitch propeller
    Cargo Benzene (7781 tonnes)
    Crew 20
    Registered owner Daiichi Chuo Kisen, Japan
    Manager EMS Ship Management, India

    Description of the vessel

    The Sichem Aneline is a chemical/products tanker with machinery and accommodation located aft. The six cargo tanks are capable of closed loading and equipped with a vapour recovery system. Segregated ballast tanks outboard of the cargo tanks and double bottom tanks give this vessel a double hull configuration.

    Photo 1. Sichem Aneline
    Image
    Photo 1 - Sichem Aneline

    History of the voyage

    On 11 April 2007 at 1715Footnote 3, the Sichem Aneline departed section 105 of the Port of Montréal, Quebec, bound for Philadelphia, Pennsylvania, United States, with a load of 7781 tonnes of benzene. The vessel was under the conduct of a pilot, the wind was light, and visibility was very good. The vessel proceeded with the river current estimated at 1.5 to 2 knots. Both steering gear pumps were in operation.

    In addition to the pilot and an apprentice pilot, both the master and chief mate were on the bridge. The helmsman was at the steering control stand, but the officer of the watch (OOW) had not returned from the bow after letting go of the mooring lines.

    As the vessel began to near the centre of the channel and make way downbound, the pilot asked for half-ahead and then allowed the apprentice pilot to conduct the vessel on his behalf. The apprentice pilot requested 025° (G) but the helmsman, using the full-follow-up (FFU) steering wheel, was unable to execute the request. The rudder indicator showed the rudder stopped a few degrees to starboard and the helm did not respond. The apprentice pilot repeated the request as the chief mate assumed control of steering the vessel using the non-follow-up (NFU) lever. The helm responded normally and the apprentice pilot requested 20° of port rudder to which the vessel again responded normally. A helm request for amidships and a heading of 023° was completed without difficulty and steering duties were returned to the helmsman. The propeller pitch was set to full manoeuvring speed and the vessel was soon making 11.5 knots over the bottom.

    When the Sichem Aneline came abaft the beam of one of the vessels at anchor at the Pointe-aux-Trembles anchorage, the helmsman alerted the pilot that the helm was not responding and the rudder indicator had stopped between 5° and 10° to starboard. The pilot immediately requested slow ahead and the OOW, who had just returned to the bridge, put the NFU lever to port in an attempt to override the wheel steering function. With the helm now coming to port, the pilot requested hard-a-port and with the helm responding normally, the pilot requested the main engine throttle be set at half ahead in an attempt to accelerate the rate of the vessel turning to port.

    Despite these efforts, the Sichem Aneline left the navigable channel and passed astern of a vessel at anchor in the anchorage area. The pilot, seeing that the starboard sheer of the vessel could not be corrected in time to prevent grounding, requested the helm be placed amidships and full astern pitch be applied. Crew members deployed the starboard anchor, but the vessel continued to move forward at approximately five knots and, at about 1730, grounded at latitude 45°38.6′ N and longitude 073°28.6′ W (see position A, Appendix A) and assumed a 6° to 7° list to starboard. No water ingress was discovered in any of the compartments.

    Steering gear

    Power unit and control systems arrangement

    The electrohydraulic steering gear on the Sichem Aneline was manufactured by Fluidmecanica S.A. of Vigo, Spain. Four rams are hydraulically connected to twin power unit arrangements (see Figure 1).

    Figure 1. Steering gear arrangement
    Image
    Figure 1 - Steering gear arrangement

    Each power unit has an electric motor and hydraulic vane pump, as well as a control system (block valve assembly including, among others, the pilot valve: see "D" in Photo 2), directional valve (see "E" in Photo 2), and its associated counterbalancing valves (see "B" in Photo 2).

    Photo 2. Valve block and hose arrangement
    Image
    Photo 2 - Valve block and hose arrangement

    When one power unit is activated, either at the steering flat or in the wheelhouse, its respective control system is also powered-up by default. If the other power unit is put on-line, its control system will also be activated. The design is such that, when simultaneous operation of both power units is selected, both control systems are activated. If there is a malfunction or lack of the electrical signal to one control system, it could impede the functioning of the other by creating a hydraulic lock - a situation without an alarm.

    In the wheelhouse, the steering gear is controlled at the main steering control stand by either a FFU hand wheel or NFU lever. Although there is a switch to select NFU/hand wheel/autopilot operation, the NFU lever will override the hand wheel any time it is activated. The autopilot system is composed of two Sperry ADG 3000 units so fitted that either one may be selected (port or starboard) when autopilot operation is desired.

    Either one or two power units can be activated from a position in the wheelhouse. Alternatively, one power unit can be activated with the other placed on active standby, which means it will automatically come on-line if the original power unit fails.

    Subsequent tests with one power unit activated revealed that hard-over to hard-over rudder response was in the order of 25 to 26 seconds and, with two power units on-line, the time was reduced to approximately 13 seconds. Each power unit has four alarm possibilities:

    • low oil level
    • pump power supply failure (including phase failure)
    • control power failure (24 v DC)
    • overload

    The system is also equipped with a low-level alarm for the hydraulic oil retention tanks.

    Steering gear malfunctions

    Other than the following, no steering malfunctions had been recorded by the crew subsequent to the vessel's acquisition by the present manager in January 2007.

    On 03 April 2007, the steering gear malfunctioned momentarily without incident while the Sichem Aneline was approaching the berth at Montréal on the inbound voyage. At that time, as during the malfunction just prior to the grounding, no alarms sounded.

    After the vessel's arrival at Montréal, the No. 1 pilot valve was disassembled by the crew. The O-rings were found to be dried and cracked. One O-ring was broken and a small piece was lodged within one of the control ports of the valve. After the O-rings in this pilot valve were replaced, the steering gear was tested under a survey by Det Norske Veritas (DNV) on 04 April 2007 and found to be operating normally. The consensus at the time was that this was probably the cause of the malfunction on 03 April 2007 and that the problem had been rectified.

    Subsequent to the 11 April 2007 grounding, TSB investigators and a technician from the steering gear manufacturer made the following observations in relation to the steering gear:

    • oil leaking from all eight counterbalancing valves (four on each unit);
    • missing and damaged O-rings on counterbalancing valves;
    • dried and cracked O-rings in No. 2 pilot valve;
    • oil filters contained considerable debris, some of which appeared to be white pieces of teflon similar to material used in the O-rings;
    • inoperative unloader valve on No. 2 unit;Footnote 4
    • main output hoses of incorrect length on No. 1 unit (see "A" in Photo 2);
    • recently welded support bars in way of main output hoses on No. 1 unit so as to reduce the lateral forces that these hoses were subjected to due to incorrect length and 180-degree deviation (see "C" in Photo 2); and
    • running times of units No. 1 and No. 2 were indicated as 21 693 and 14 310 hours, respectively.

    Modifications were effected and the steering gear was tested by the technician and a DNV surveyor prior to departing from Montréal.

    On 26 April 2007, after having left Montréal but still in the confined waters of the St. Lawrence River, while using both pumps and steering with the FFU hand wheel, there was a momentary malfunction of the steering gear. The rudder stopped at 2° to starboard. Pump No. 2 was switched off and the helm responded immediately. Afterwards, pump No. 2 was put back on-line without incident.

    It was reported to the TSB that another vessel, the Gran Canaria CarFootnote 5, equipped with a steering gear by the same manufacturer, had experienced an intermittent steering gear malfunction in 2002. This was later found to be due to an excessive voltage drop between the bridge control and the steering gear that subsequently caused the malfunction of relays KA4 and KA5. The manufacturer corrected this malfunction on the Gran Canaria Car by re-wiring the starter boxes of the power pack units such that relays KA4 and KA5 were bypassed.Footnote 6

    Steering gear maintenance and records

    Although the management of the vessel had changed in January 2007, steering gear maintenance records dating from October 2005 were available on the chief engineer's computer.

    These records, which appear to correspond to the date on which the classification society changed from Bureau Veritas (BV) to DNV, indicate that a steering gear greasing routine was performed weekly and routine checks were done on the rams, electrical connections, and foundation every three months. Additionally, overall system checks were performed on 28 September 2005, 10 March 2006, and 21 November 2006. Items of interest as found on the vessel's records are summarized in the table below:

    Date Comments
    15 January 2006 Changed two hoses
    10 March 2006 Hoses changed where necessary due to leaks and other hoses orderedFootnote 7
    03 July 2006 Two relays changed on steering unit No. 1

    Because of the change of manager in January 2007, hydraulic oil consumption was only available from that date. These records indicate 40 litres were consumed in January 2007 and 50 litres were consumed in February 2007.

    The International Association of Classification Societies (IACS) unified requirement (UR) offers guidance in this respect to the manner in which hydraulic hoses are fitted in steering system applications. The requirement states, in part:

    Hose assemblies of type approved by the classification society may be installed between two points where flexibility is required but should not be subjected to torsional deflection (twisting) under normal operating conditions. In general, the hose should be limited to the length necessary to provide for flexibility and for proper operation of machinery.Footnote 8

    In this instance, no notes or conditions of class were issued to record the fact that the hydraulic hoses fitted to the No. 1 power unit were longer than necessary and not fitted within the confines of the conduit for which they were designed. To help withstand the lateral forces acting on the hose under operational conditions, the hoses were clamped to a stabilizing bar fabricated by crew members.

    Change of classification society and DNV annual survey

    BV surveyed the steering gear on successive years, from 2000 to 2004 inclusively; the last survey having taken place on 25 November 2004. In 2003, a five-year survey was conducted. At that time, the cylinders were removed and overhauled in a workshop, electric motors of both hydraulic pumps were disassembled and overhauled, Megger operational tests were carried out, and the low-level alarm for the hydraulic oil was checked on both tanks. No adverse comments or conditions of class were recorded during this interval.

    The vessel's previous manager had changed classification societies on 14 November 2005, switching from BV to DNV. An Interim Certificate of Class was issued at that time on the strength of the BV transfer of class documents. On 04 December 2006, the vessel, then at Beaumont, Texas, United States, underwent an annual survey by the DNV office in Houston, Texas. A full term Class Certificate was issued on 19 December 2006.

    According to DNV records, during the annual survey, the steering gear was tested and found to be satisfactory.

    Rudder

    The rudder as fitted on the Sichem Aneline is an articulated flap design. This design allows increased lateral force for any given rudder angle when compared to conventional rudders. Once alongside at Montréal, divers conducted an underwater inspection of the hull and rudder. It was noted that the upper pintle weld of the flap was broken and a small crack approximately 210 mm in length was visible on the flap just below the second uppermost pintle. The presence of visible corrosion meant that the crack was of a longstanding nature. This damage does not appear to have hampered its function.

    Change of ship management

    Over the nine-year history of the Sichem Aneline, the management of the vessel changed four times. Typically, as in this case, each time a manager takes charge of a vessel, that manager's maintenance program and records supersede the previous system. All maintenance records for the preceding period remain with the previous manager.

    A random 20 per cent sampling of the Sea-web databaseFootnote 9 for vessels between 8000 and 50 000 deadweight tonnes (DWT) constructed in 1997 shows that, on average, vessel management changes about twice per vessel after construction. Of the 100 vessels sampled, 45 had only one manager. The remainder had, on average, almost three managers per vessel over the intervening 10-year period.

    Personnel experience

    The master has a Master Mariner certificate of competency and began his sea service in 1977. He had been serving as master since 2006. He joined the vessel on 28 March 2007 and this was his first assignment on this vessel.

    The officer of the watch (OOW) began his sea service in 1999 and obtained his Chief Mate certificate of competency in 2005. He had joined the vessel on 21 March 2007.

    The pilot has a Master Mariner certificate of competency and has been a pilot since May 2006, having served two years prior to that as apprentice pilot.

    The chief engineer held a First Class Motor certificate of competency obtained in 2002. Although he had been on the vessel for some time, the exact date of his boarding was not recorded.

    Salvage operation

    The master contacted the ship's manager in India and began the salvage consultation process. The ship's manager contacted the emergency response service provider to have calculations conducted.Footnote 10

    In the hours following the grounding, a Transport Canada inspector boarded the vessel and gave the master a Marine Safety Notice stipulating the following conditions:

    • no attempt to free the vessel until a salvage plan is submitted to Transport Canada
    • salvage plan to include damage stability calculations in case ground contact areas such as ballast tanks or double bottoms were holed
    • underwater inspection of bottom contact area to be carried out before freeing operation
    • regular monitoring of ballast tanks and atmosphere to be carried out.

    On 12 April 2007, two teleconferences were held between members of the Salvage Consultative CommitteeFootnote 11 to discuss the Sichem Aneline salvage operations. It was decided to keep a tug on standby near the vessel and to have a harbour pilot continuously on board the Sichem Aneline.

    Meanwhile, a local tug master with salvage experience had boarded the vessel to serve as a consultant and as on-site contact with the tug company, Le Groupe Océan Ltée., providing tug service at the Port of Montréal. The vessel's hull insurance underwriters retained control of the salvage operation. Various re-floating scenarios were discussed but the consensus at the time was that lightering prior to re-floating would reduce the risks to the vessel and the environment.

    On 13 April 2007, draught marks indicated that the vessel had been settling into the river bottom. Later that day, Transport Canada was presented with a salvage plan which included tug arrangements and the available bollard pulls of each. However, the plan did not include stress or damage stability calculations.

    Transport Canada rejected the plan until provided with more information including the vessel's present stability condition, stress condition, and a more detailed proposal of the re-floating sequence of events. In accordance with the request, the ship's manager submitted a revised plan on 14 April 2007 that included the requested information. It also included an assessment that the risks associated with lightering made it an unacceptable option. Transport Canada conditionally accepted the plan subject to it receiving a favourable review by the Salvage Consultative Committee, which was given.

    Arrangements were made to raise the water level in the Port of Montréal to the extent possible. At about 1500 on 15 April 2007, salvage operations began and, at approximately 1545, the Sichem Aneline was pulled free and towed to a berth at the Port of Montréal.

    Analysis

    Steering failure

    Between 03 April and 26 April 2007, the steering malfunctioned on four occasions. Commonalities between each include use of FFU hand wheel, having both steering pumps on-line, the absence of alarms, and the vessel being underway. Testing at berth could not reproduce the malfunctions. The fourth malfunction, experienced on 26 April 2007, occurred in spite of extensive refurbishing of the hydraulic components and renewal of the hydraulic oil at Montréal prior to departure, as well as the replacement of one of the Sperry autopilot units on the bridge. Given that maintenance was carried out on the hydraulic system before the last occurrence, it is less likely that the nature of the malfunction pertains to the hydraulic system.

    Although the cause of the steering gear malfunction still cannot be determined, it is likely that an electrical anomaly occurred somewhere between and including the steering control stand and the power unit starter boxes in the steering flat. Action taken by the steering gear manufacturer on this vessel (see the Safety action section of this report) and on the Gran Canaria Car indicates that there may be intermittent problems with relays KA4 and KA5 located in the power unit starter boxes.

    In addition, some non-electrical factors increased the risk of a steering malfunction. The TSB database records two other occurrences during which steering malfunctions happened without alarms being activated. In both instances, the vessels grounded and both were operating two12 steering gear power units that, by default, also powered their own control systems. A malfunction of one of the servo-controls is capable of causing a hydraulic lock resulting in the rudder becoming non-functional without the benefit of an alarm being sounded. After the CedarFootnote 13 grounding, Transport Canada insisted that a switch be installed in the wheelhouse of the vessel, allowing only one telemotor (control system) at a time to be operated, even with both power units on-line.

    Adverse consequences associated with simultaneous operation of more than one steering gear power unit have also been identified by the major classification societies. The IACS unified requirement for machinery specifies that a notice be posted next to the steering control stand or incorporated into operating instructions on board the vessel that states the following:

    Caution: In some circumstances when two power units are running simultaneously, the rudder may not respond to helm. If this happens, stop each pump in turn until control is regained.Footnote 14

    The SOLAS (International Convention for the Safety of Life at Sea) requirementFootnote 15 to have more than one steering gear power unit in operation in areas where navigation demands special caution (and when such units are capable of simultaneous operation) is intended as a risk-reduction measure. Paradoxically, this regulatory measure may increase the risk of an accident. If one of the control systems malfunctions, rudder movement could be inhibited without sounding an alarm. Then, when it is realized that the steering gear is not responding, only by trial and error (shutting one unit off, trying the other and vice versa) can there be a resolution. This will waste valuable time and could contribute to grounding if the vessel is in restricted waters.

    The requirement to have more than one steering gear power unit in operation in areas where navigation demands special caution is prescriptive in nature as opposed to performance-based. Although well intentioned, this regulation loses its significance when applied to modern electrohydraulic systems with automatic back-up such as on the Sichem Aneline. Additionally, many vessels are much more manoeuvrable than in the past. Articulated flap-type rudders or pod propulsion/steering combinations have given vessels increased handling performance.

    The SOLAS Chapter V, Regulation 25 requirement for vessels to have more than one steering gear power unit in operation when navigation demands special caution is neither performance-based, nor is it necessarily in harmony with advancements in vessel steering design.

    Continuous lifetime maintenance

    Few maintenance records aboard the Sichem Aneline pre-dated January 2007 when the new management company took control of the ship. The absence of historical maintenance records inhibited engineers from being able to anticipate and prevent problems likely to occur with critical operational equipment such as steering gear.

    Although some older records for steering gear maintenance were found on the chief engineer's computer, they lacked detail and did not pre-date October 2005. The seven years of records that existed since the time of construction were not easily available even though they were important for analyzing system performance.

    The TSB's statistical sample suggests that a majority of vessels are not single-management ships and that these vessels often change managers two or three times in a 10-year span. The International Safety Management Code (ISM Code) requires that each management company ensure that records of machinery maintenance and of investigations of failures are kept on the ship.

    The IACS own guidance on maintenance states:

    As well as providing evidence of compliance with procedures, the records generated by shipboard maintenance activities may also be seen as a database from which to extract valuable management information. For example, the appropriate analysis of records of inspections, defects, nonconformities, and corrective actions may yield information that could lead to changes in inspection and planned maintenance intervals, thereby reducing unnecessary work and the frequency of failures. The same analysis could permit the identification of trends or repetitive problems that require further investigation and longer-term solutions.Footnote 16

    Once a vessel passes to new management, these records do not remain with the vessel but with the previous management company. Safety-critical information is therefore lost to new managers and crews. In 2000, the vessel Millenium Yama sustained a major main engine failure in the St. Lawrence estuary.Footnote 17 In that investigation, the Board found that:

    Safety is enhanced when the history of a vessel and its equipment is available. The Millenium Yama has changed ownership five times. The lack of information on its replacement parts history is due to relevant information not being passed on from previous owners to subsequent owners.

    High oil consumption, greatly different running times of power pack unit Nos. 1 and 2, the use of parts that are not to the manufacturer's specifications (such as hoses that are too long/short), and a non-functioning unloader valve on unit No. 2 represented valuable information concerning the performance of the steering system. However, an analytical understanding of the system that included performance history and repair history was not possible due to the unavailability of relevant records to the crew.

    Even though vessel particulars and classification survey status reports are forwarded to the new classification society when a change of class occurs, much of this information is high-level data concerning machinery, structure, and, as the name suggests, the status of surveys. Although the new society is to carry out a review of class survey records of the old society before issuing a "final entry into class," it does so only, with some specified exceptions, "to the extent deemed necessary."Footnote 18 Most aspects of the continuous maintenance undertaken by the crew on safety-critical components, such as steering gear, are not included in these records.

    Maintenance and failure information on safety-critical components are most useful if always available with the ship to which they relate, regardless of the identity of the ship's manager.

    The lack of a continuous lifetime maintenance record on a vessel may preclude risk-based preventative maintenance and trend analysis, thus increasing the risk of machinery failure.

    Salvage preparedness

    The Sichem Aneline grounded in the relatively benign environment of the Port of Montréal. With minimal water level fluctuations, a weak current, and mud bottom, damage to the vessel and environment was minimal. These conditions made it possible for salvage arrangements to be made and carried out over three days. In more adverse conditions, salvage operations are required to be completed more quickly to avoid the risk of major environmental and property damage.

    Findings

    Findings as to causes and contributing factors

    1. It is likely that an electrical anomaly in the steering gear control system circuitry caused the steering malfunction.
    2. The rudder remained at between 5° and 10° to starboard in a narrow waterway. After switching to non-follow-up (NFU) control, rudder response was regained but the vessel nonetheless left the channel and grounded.

    Findings as to risk

    1. When two steering gear control systems work simultaneously, a malfunction of one can inhibit rudder movement without accompanying alarms.
    2. Presently, an unknown number of steering gear units manufactured by Fluidmecanica S.A. are in service without the electrical modifications as effected on the Gran Canaria Car and the Sichem Aneline. These units have the potential to experience intermittent malfunctions similar to that experienced on the Sichem Aneline.
    3. The lack of a continuous lifetime maintenance record on a vessel may preclude proper maintenance and trend analysis, thus increasing the risk of machinery failure.

    Other findings

    1. The SOLAS (International Convention for the Safety of Life at Sea) Chapter V, Regulation 25 requirement for vessels to have more than one steering gear power unit in operation when navigation demands special caution is neither performance-based, nor is it necessarily in harmony with advancements in vessel steering design.
    2. Hoses that were not to the manufacturer's specifications - too long and bending over more than 180° from the design line of conduit - were being subjected to high lateral forces under operational conditions.

    Safety action

    Action taken

    On 04 May 2007, the TSB formally requested additional information from the steering gear manufacturer, Fluidmecanica S.A., as follows:

    • what work was done on the Gran Canaria Car to rectify the problem
    • if intermittent problems of this nature were on record for other vessels equipped with Fluidmecanica S.A. steering systems
    • if the company had made permanent changes to the wiring of power pack starter boxes now in production

    On 07 May 2007, while the Sichem Aneline was at berth at Philadelphia, United States, the starter boxes of power pack unit Nos. 1 and 2 were re-wired by a manufacturer's representative such that relays KA4 and KA5 were bypassed. This modification was approved by the classification society and endorsed by the flag state. The vessel has reportedly had no further steering gear malfunctions since this modification.

    On 08 August 2007, the vessel's classification society, Det Norske Veritas (DNV), issued a condition of class that included, among others, the instruction to use only one steering pump to prevent faults with the system when two units are run parallel.

    On 14 November 2007, the TSB issued Marine Safety Advisory (MSA) 06-07, addressed to the International Association of Classification Societies (IACS) with a copy to the steering gear manufacturer Fluidmecanica S.A. The MSA describes the modification undertaken on the starter boxes of the power pack units of the steering gear such that relays KA4 and KA5 were bypassed. The MSA requests that the IACS disseminate this information to managers of vessels classed with member societies. On 21 November 2007, the IACS responded that its member societies had been informed of this modification.

    On 14 November 2007, the TSB also issued Marine Safety Information Letter (MSI) 04-07, apprising Transport Canada of the IACS's unified requirement for the notice to be posted at the steering console or in on-board operating instructions. This notice cautions that, in some cases, when two power units are running simultaneously, the rudder may not respond to the helm and that one pump should be stopped. The MSI concluded that, although the SOLAS (International Convention for the Safety of Life at Sea) requirement to have more than one power unit in operation in certain areas appears to be a risk-reduction measure, such a requirement loses its significance when applied to modern systems with automatic backup. On 28 December 2007, Transport Canada replied that a copy of the MSI will be forwarded to the International Maritime Organization (IMO) for information purposes and any action if deemed appropriate.

    On 14 December 2007, the TSB issued MSI 08-07, informing Transport Canada that, for the application of the International Safety Management Code (ISM Code) to be truly effective, maintenance and failure information on safety-critical components should follow the ship for the entire lifetime of the vessel. The lack of such a continuous record on the vessel precludes risk-based preventative maintenance and trend analysis, thus increasing the risk of machinery failure, which in turn increases risks to the vessel, crew, and the environment. The letter concluded that Transport Canada may therefore wish to consider bringing the issue of continuity of maintenance records, irrespective of changes of management, classification society, and/or crew to the attention of other flag states and the IMO.

    On 14 December 2007, in response to MSA 06-07, the steering gear manufacturer indicated that its analysis of the situation led it to believe that the company's equipment neither caused nor contributed to the intermittent failures. Fluidmecanica S.A. did not specify if permanent changes to wiring, similar to those done on the Sichem Aneline in Philadelphia, had been adopted for new power pack wiring.

    In December 2007, the Department of Fisheries and Oceans (Canadian Coast Guard) and Transport Canada (Quebec Region) finalized a generic salvage plan checklist which is intended to be given to the manager and salvors of a stranded vessel. It was used for the first time in April 2008 with the grounding of a vessel near Trois-Rivières, Quebec. This checklist appears to be only in use by authorities in the Quebec Region.

    Action required

    Safety recommendation

    Continuity of maintenance and failure records

    Historical maintenance records and failure information on safety-critical equipment - including the steering, power, propulsion, lifesaving appliances, and damage control - are crucial to a ship's manager and crew when assessing system performance and planning risk-based preventive maintenance. In this occurrence, following a recent change in the vessel's management, previous managers retained historical records of failures and maintenance. As a result, adequate records and information on previous failures of and repairs to the steering gear were not readily available to the new manager and crew.

    As a result of this occurrence, the TSB issued MSA 08-07 on 14 December 2007, indicating to Transport Canada that, for the application of the ISM Code to be truly effective, maintenance and failure information on safety-critical components should follow ships for their entire lifetime. The MSA further indicated that Transport Canada may wish to consider bringing the issue of continuity of maintenance records to the attention of other flag states and the IMO. In December 2008, Transport Canada responded that there is no requirement in the ISM Code for a previous company to supply such inspection records once responsibility for a ship's operation has been transferred to a new company, and that such records would only be transferred if explicitly requested by a new owner at the time of purchase. However, the response was silent on the main issue.

    In the marine industry, a change in vessel management is not unusual. In this occurrence, although the Sichem Aneline was nine years old, the vessel had changed management companies four times, with the maintenance records on board dating only from the most recent change-six months prior.

    The business environment regarding domestic or international vessel ownership transfers does not encourage the disclosure or transfer of maintenance records. For example, the standard contract of sale in the maritime industry is the Norwegian Sales Form (NSF).Footnote 19 The NSF allows for an "as is, where is" buyer's inspection that offers no warranty or assurance of either the vessel's current condition or its past maintenance. With respect to knowledge of the vessel's maintenance history, the NSF operates on a principle of caveat emptor (let the buyer beware) and, unless amended, restricts the transfer of maintenance information to an examination of the classification records.

    The business of ship management is very competitive and, when a ship changes ownership, it usually changes its management company. Individual companies have proprietary safety management systems that, along with their attendant maintenance records, are not transferred to any subsequent management company. The risk to a vessel may be highest, therefore, when it is changing hands-particularly with a new crew that is unfamiliar with the vessel, its equipment, or maintenance history. This is applicable to Canada where at least 33 foreign flag commercial vesselsFootnote 20 have been imported and placed under Canadian flag in the past five years with no requirement for records to be transferred to the new manager.

    This is not the first instance where the TSB has identified the lack of continuous maintenance records as a safety issue. The investigation into an occurrence involving the Millenium YamaFootnote 21 in 2000 revealed that the vessel had changed management five times. At the time of the occurrence, no reference documentation was found on board that would have allowed engine room personnel to determine the condition and origin of a failed connecting rod. Such a situation left a new manager without adequate information to make informed maintenance decisions and to ensure continued safety. Consequently, the TSB informed the manager of the Millenium Yama, via MSI 07-01, of both the lack of maintenance records aboard and the lack of a system to pass them to subsequent managers. The manager of the vessel at the time of the occurrence agreed that, although the transfer of maintenance records to subsequent managers would be advantageous for the purposes of preventive maintenance, this was far from common.

    Canada is not alone in identifying the issue of continuity of maintenance records. Following a 2002 occurrenceFootnote 22 involving a lifeboat accident immediately after a change of vessel management, the United Kingdom's Marine Accident Investigation Branch (MAIB) noted that all of the vessel's records other than the ship's plans had been removed from the vessel. The MAIB went on to note that the practice in the aeronautical industry is for maintenance records to remain with an aircraft no matter how many times it might change ownership. The MAIB recommended to the IMO (through the United Kingdom Marine and Coast Guard Agency) that it:

    Include in the ISM Code, a requirement that all records and notes relating to the condition and maintenance of the equipment and machinery remain on board a vessel at the time of her sale to new owners, as an aid in maintaining a safe and efficient vessel.

    The issue was introduced at the IMO by the United Kingdom in 2004Footnote 23; however, to date, there has been little progress.

    The SOLAS Convention does recognize the importance of retaining certain records on board. The SOLAS Convention requires that a Continuous Synopsis Record be kept on board a vessel throughout its life.Footnote 24 This document is intended to provide an on-board record of the history of the vessel with respect to information including the vessel's previous names, ownership, classification societies, and administrations/organizations issuing the ISM Safety Management Certificate. There is no requirement, however, for the Continuous Synopsis Record to contain a history of maintenance and failures.

    Given these safety deficiencies and their recognition by other flag states, the Board is concerned that the IMO has not addressed the risks associated with the non-retention of proper maintenance and failure records.

    Therefore, the Board recommends that:

    The Department of Transport advocate at the International Maritime Organization (IMO) effective measures to ensure that maintenance and failure records remain on board throughout a vessel's life.
    Transportation Safety Recommendation M09-01

    Safety concern

    Continuity of maintenance and failure records on domestic vessels

    In the Canadian aviation industry, the Canadian Aviation Regulations (CARs) require that all maintenance and failure information be recorded and follow an aircraft throughout its service life. The CARsFootnote 25 require that:

    Every owner of an aircraft who transfers title of an aircraft, airframe, engine, propeller, or appliance to another person shall, at the time of transfer, also deliver to that person all of the technical records that relate to that aeronautical product.

    Although Transport Canada recognizes the importance of continuous maintenance records for aircraft, there are no similar requirements in place for the domestic marine industry. The Board is therefore concerned that ship managers may not be aware of previously identified latent or inherent problems with their vessels. This, in turn, may preclude proper maintenance and trend analysis and place passengers, crews, and the environment at risk. The Board will continue to monitor this issue.

    This report concludes the Transportation Safety Board's investigation into this occurrence. Consequently, the Board authorized the release of this report on .

    Appendices

    Appendix A - Area of occurrence

    Image
    Appendix A - Area of Occurrence

    Chartlet including Pointe-aux-Trembles anchorage, Port of Montréal

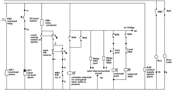
    Appendix B - Starter box wiring diagram

    Image
    Appendix B - Starter Box Wiring Diagram

    Appendix C - Steering Gear Survey Checklist (Det Norske Veritas)

    Steering control and monitoring arrangement [403] -
    Test alarms including power supply failure alarm, and verify function of alternative power supply where required MC.A The alternative power supply shall be activated automatically within 45 s. For applicability, see references [SOLAS 1986 Ch. II-1 Reg.29, HSC [High Speed Craft] Code 2000 Ch.12.5, MODU Code-89 2001 Ch.7.5.17 and SS Jan. 2004 Pt.3 Ch.3 Sec.2 J900].
    Test function of all modes of local and remote control systems on main and auxiliary steering gears, including a) indication, b) start of actuating motors, c) rudder angle limit switches, and d) safety valves. MC.A Verify that the indication system is independent from the steering gear control system. Test indicators on the navigation bridge and in the steering gear compartment. Limit switches shall be activated before the safety valves [SOLAS 1986 Ch. II-1 Reg.31].
    Test power units and actuators for rudder steering gears and actuating systems for azimuth thruster steering gears MC.A
    Steering gear arrangement [422] -
    Examine the steering arrangements including hydraulic piping, oil storage tanks, and oil filters, and verify that the oil filters are renewed according to the manufacturer's recommendation MC.A Examine with regards to leaks, oil spill, defects, corrosion, etc. Consider opening up of oil filters. Verify that essential components are permanently lubricated or provided with lubrication fittings. Examine condition of handrails and non-slip surfaces [SOLAS 1986 Ch.II-1 Reg.29].
    Steering gear > Power unit [C151] -
    Verify possibility of recharging one power actuating system MC.A Verify that at least one power actuating system including the reservoir tank can be recharged from a position within the steering gear compartment by means of a fixed storage tank to which a content gauge is fitted with fixed piping [SOLAS 1986 Ch.II-1 Reg.29 and SS Jan. 2004 Pt.3 Ch.3 Sec.2 J].

    Appendix D - Glossary

    BV
    Bureau Veritas
    CARs
    Canadian Aviation Regulations
    DC
    direct current
    DNV
    Det Norske Veritas
    DWT
    deadweight tonne
    FFU
    full-follow-up
    FSI
    Flag State Implementation
    G
    Gyro (degrees)
    GRT
    gross registered tons
    IACS
    International Association of Classification Societies
    IMO
    International Maritime Organization
    ISM Code
    International Management Code for the Safe Operation of Ships and for Pollution Prevention (International Safety Management Code)
    kW
    kilowatt
    m
    metre
    MAIB
    Marine Accident Investigation Branch (United Kingdom)
    mv
    motor vessel
    MSA
    Marine Safety Advisory
    MSI
    Marine Safety Information Letter
    N
    north
    NFU
    non-follow-up
    NSF
    Norwegian Sales Form
    OOW
    officer of the watch
    Sea-web
    Lloyd's Register-Fairplay's internet database of ship information
    SOLAS
    International Convention for the Safety of Life at Sea
    TSB
    Transportation Safety Board of Canada
    UR
    IACS unified requirement
    v
    volt
    W
    west
    °
    degree
    minute